# SQ - VILLA IN TOP LAGE MIT SWIMMINGPOOL UND TIEFGARAGE - - Objektnr. 5551754

1170
Ort
283,00 m²
Fläche
3.5
Zimmer

ECKDATEN
FindMyHome.at // Externe Immobilien-ID5551754 // 20831
ImmobilienartHaus - Eigentum
Anschrift1170 Wien,Hernals
Baujahr2001
Mietdauer5
Fläche283,00 m²
Grundfläche634,00 m²
Terrassen1 (9,00 m²)
Zimmer3.5
Bad2
WC3
Kaufpreis:€ 1.900.000,00
Ratenzahlung:Finanzierungsmöglichkeiten für diese Immobilie anzeigen
Provision:







BESCHREIBUNG

# SQ - VILLA IN TOP LAGE MIT SWIMMINGPOOL UND TIEFGARAGE -

Allgemeine Informationen

  • Objektart: Einfamilienhaus 
  • Grundstücksfläche der Villa: 634,00 m² (laut Grundbuch)
  • Nutzfläche: 283,87 m² der Villa
  • Baujahr: 2001
  • Bauweise: Massivbauweise
  • Dach: Walmdach, ziegelgedeckt mit Gauben
  • Fassade: Glatte Thermofassade
  • Heizung: Geothermal Energie (Erdwärme über Tiefenbohrung) und Vaillant Therme
  • Fenster: Isolierfenster
  • Böden: Parkett / Stein
  • Stiegen: Holzbeläge
  • Wände: Dispersionsfarbe
  • Garten: Eben, uneinsehbar durch Hecke und Mauer, Pool vorhanden

Gebäudeaufteilung

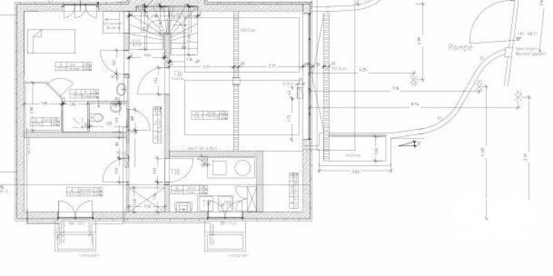
Kellergeschoss:

  • Garage: Platz für 2 Kfz
  • Abstellraum
  • Hauswirtschaftsraum
  • Flur
  • Weinkeller
  • Gästezimmer mit Dusche
  • WC
  • Sauna

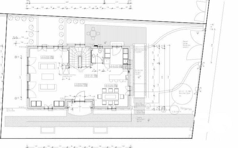
Erdgeschoss:

  • Vorraum
  • Wohnraum: Zugang zum Garten und Pool
  • Küche: Zugang zur Terrasse
  • Essbereich
  • Diele

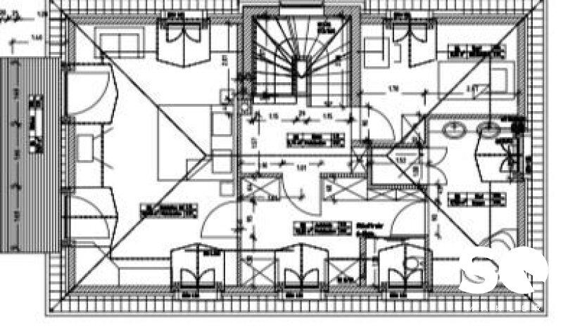
Obergeschoss:

  • Diele
  • Ankleide
  • Schlafzimmer: Zugang zum Balkon
  • Badezimmer
  • Gästezimmer/Arbeitszimmer/kleines Kinderzimmer

Beschreibung des Hauses

Das auf einem annähernd rechteckigen Grundstück erbaute Einfamilienhaus besticht durch seine Massivbauweise und eine glatte Thermofassade, welche zur energetischen Effizienz beiträgt. Das Walmdach ist ziegelgedeckt und mit Gauben versehen. Die Spenglerarbeiten sind in einem sehr guten Zustand.

Die Immobilie verfügt über drei Etagen: Kellergeschoss, Erdgeschoss und Obergeschoss. Die gesamte Nutzfläche beträgt 283,87 m².

Im Kellergeschoss befinden sich praktische Räumlichkeiten wie eine Garage für zwei Fahrzeuge, ein Hauswirtschaftsraum, ein Abstellraum sowie ein gemütlicher Weinkeller. Ein Gästezimmer mit Dusche und WC sowie eine Sauna runden das Angebot ab.

Das Erdgeschoss bietet einen einladenden Vorraum, einen großzügigen Wohnraum, eine Küche mit Zugang zur Terrasse sowie einen Essbereich und eine Diele.

Das Obergeschoss umfasst eine Diele, eine Ankleide, ein geräumiges Schlafzimmer mit Zugang zu einem Balkon, ein Badezimmer und ein weiteres Gästezimmer.

Die Beheizung des Hauses erfolgt über eine umweltfreundliche Geothermal Energieanlage in Kombination mit einer Vaillant Therme. Hochwertige Parkett- und Steinböden sowie Holzbeläge auf den Stiegen verleihen dem Haus eine elegante Note. Die Wände sind mit Dispersionsfarbe gestrichen.

Der Garten ist eben, uneinsehbar und wird durch eine Hecke sowie eine Mauer zu den Nachbargrundstücken abgegrenzt. Ein Pool sorgt für Erholung und Freizeitspaß im eigenen Garten.


Lage und Umgebung

Das Grundstück befindet sich in einer ruhigen und dennoch gut angebundenen Lage. Einkaufsmöglichkeiten, Schulen, Kindergärten und öffentliche Verkehrsmittel sind in der Nähe und bequem erreichbar. Die Umgebung bietet zahlreiche Freizeitmöglichkeiten und eine hohe Lebensqualität.


Kontakt

Für weitere Informationen oder zur Vereinbarung eines Besichtigungstermins stehen wir Ihnen gerne zur Verfügung.

Kontakt:

Arkadi Moullaev, BA

  • moullaev@stadtquartier.at
  • 0676 84 42 99 202

Hinweis gemäß Energieausweisvorlagegesetz: Ein Energieausweis wurde vom Eigentümer bzw. Verkäufer, nach unserer Aufklärung über die generell geltende Vorlagepflicht, sowie Aufforderung zu seiner Erstellung noch nicht vorgelegt. Daher gilt zumindest eine dem Alter und der Art des Gebäudes entsprechende Gesamtenergieeffizienz als vereinbart. Wir übernehmen keinerlei Gewähr oder Haftung für die tatsächliche Energieeffizienz der angebotenen Immobilie.

Wir weisen darauf hin, dass zwischen dem Vermittler und dem zu vermittelnden Dritten ein familiäres oder wirtschaftliches Naheverhältnis besteht.


Infrastruktur / Entfernungen

Gesundheit
Arzt <2.500m
Apotheke <2.000m
Klinik <3.500m
Krankenhaus <3.500m

Kinder & Schulen
Schule <500m
Kindergarten <1.500m
Universität <3.500m
Höhere Schule <4.500m

Nahversorgung
Supermarkt <2.000m
Bäckerei <2.500m
Einkaufszentrum <4.500m

Sonstige
Geldautomat <3.500m
Bank <3.500m
Post <2.000m
Polizei <4.000m

Verkehr
Bus <500m
Straßenbahn <2.500m
U-Bahn <4.500m
Bahnhof <4.500m
Autobahnanschluss <6.500m

Angaben Entfernung Luftlinie / Quelle: OpenStreetMap

Barrierefrei: JA
Provision:


Alle Details anzeigen

KONTAKT






 

Lasse dich kostenlos vom Anbieter dieser Immobilie zurückrufen.







 


 
STADTQUARTIER Home GmbH
Arkadi Moullaev
Telefonnummer anzeigen Telefon Allgemein: +43676844299202
Handy Bearbeiter: +43676844299202
 
Bitte dem Makler die FindMyHome.at - ID bekanntgeben: 5551754

Bewertungen dieses Anbieters
Qualitätsmakler
Qualitätsmakler:
2013, 2018, 2019, 2021,
Netiquette
Freundlichkeit

BEWERTUNGEN DIESES ANBIETERS

 
Qualit�tsmakler
Qualitätsmakler
2013, 2018, 2019, 2021
Freundlichkeit
BESONDERS
FREUNDLICH
Netiquette
FINDMYHOME
NETIQUETTE
Auch du kannst bewerten! 7 Tage nach deiner Anfrage erhältst du dafür von uns ein Bewertungsmail.
Alle Infos zu unseren Auszeichnungen und dem FINDMYHOME.AT Qualitätsprogramm findest du hier: Übersicht anzeigen

FINANZIERUNG
?>

Du willst wissen, wie viel dein Umzug kosten wird?

Mach gleich den kostenlosen Preisvergleich und schau, welche seriösen Anbieter in deiner Region günstig deinen Umzug organisieren


ZUM UMZUGS-VERGLEICH
-->

MYHOME BLOG
SuchAgentin auf FindMyHome.at
Unterschiedlichen Rechtsthemen, köstliche Rezepte, neueste Design-Highlights, sowie aktuelle Technik-Tools für Ihr Eigenheim.


FINDMYHOME.AT SUCHAGENTIN
SuchAgentin auf FindMyHome.at
Hallo, soll ich dir ähnliche Immobilien kostenfrei per E-Mail schicken?


ÄHNLICHE IMMOBILIEN
Aehnliche Immobilie - Vorschaubild 1

DORNBACH: Repräsentative Villa in Aussichtslage - Objektnr. 5561404

242,00 m² - 10.0 Zimmer
2000000 €
PLZ: 1170

Mehr anzeigen

Aehnliche Immobilie - Vorschaubild 2

1170 AM HEUBERG: GROßZÜGIGER FAMILIENWOHNSITZ E MIT INDOORPO... - Objektnr. 5509912

300,00 m² - 8 Zimmer
2250000 €
PLZ: 1170

Mehr anzeigen

Durch die Nutzung unserer Seite erklären Sie sich mit der Verwendung von Cookies zur Verbesserung Ihres Online-Erlebnisses einverstanden. Detaillierte Informationen zu diesem und weiteren Themen erhalten Sie in unserer Datenschutzerklärung.