MEIN ERGEBNIS ANPASSEN

DORNBACH: Repräsentative Villa in Aussichtslage - Objektnr. 5561404


ökologisch beheizt
1170
Ort
242,00 m²
Fläche
10.0
Zimmer

ECKDATEN
FindMyHome.at // Externe Immobilien-ID5561404 // 516
ImmobilienartHaus - Eigentum
Anschrift1170 Wien
Befeuerung
Holz
Fläche242,00 m²
Grundfläche1.570,00 m²
Terrassen1 (22,00 m²)
Zimmer10.0
Bad2
WC2
Kaufpreis:€ 2.000.000,00
Ratenzahlung:Finanzierungsmöglichkeiten für diese Immobilie anzeigen
Provision: 3% des Kaufpreises zzgl. 20% USt.







BESCHREIBUNG

DORNBACH: Repräsentative Villa in Aussichtslage

Großzügige Liegenschaft mit Aussicht in Cottage-Lage und Ausbau-Potential! 

Die Liegenschaft umfasst eine Gesamtfläche von rund 1.570m² und besticht durch ihre exklusive Lage und ihre rund 1.300m² großen Gartenflächen. Zusammen mit dem unverbaubare Fernblick, ist die diese Liegenschaft nicht nur besonders repräsentativ sondern auch wirklich einzigartig in diesem Preissegment.  Der ebene, nach hinten ausgerichtete und nicht einsehbare Garten ist und von allen Himmelsrichtungen gut belichtet.

Die Villa hat eine Nutzfläche von rund 320m² die sich in 240m² Wohnfläche und rund 80m² Keller gliedert. Weiteres ermöglich die aktuelle Flächenwidmung ein Erweiterungspotential des Gebäudes um knapp 200m² auf rd. 515m² Nutzfläche! Mit diesem Zubau würde man das Potential der Liegenschaft voll ausschöpfen und den repräsentativen Altbestand mit den Vorzügen modernen Wohngefühls vereinen. 

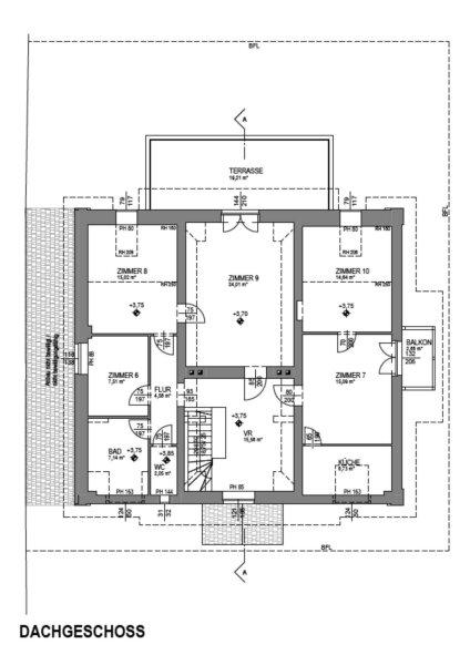
Die Flächen des Bestandsgebäudes gliedern sich wie folgt:

Erdgeschoß    
Vorraum 9,87m²  
Zimmer 20,58m²  
Zimmer 18,91m²  
Flur 21,13m²  
Zimmer 28,81m²  
Veranda 15,30m²  
Küche 9,94m²  
WC 1,00m²  
Bad 6,39m²  
Summe 131,93m²  
     
Dachgeschoß    
Flur 15,56m²  
Küche 6,73m²  
Zimmer 15,09m²  
Zimmer 14,54m²  
Zimmer 21,01m²  
Zimmer 15,02m²  
Zimmer 7,51m²  
Flur 4,56m²  
Bad 7,14m²  
WC 2,05m²  
Balkon   2,55m²
Terrasse   19,21m²
Summe 109,21m² 21,76m²
     
Keller    
Geräteraum 15,23m²  
Keller 24,16m²  
Keller 17,92m²  
Keller 8,03m²  
Heizraum 14,25m²  
Summe 79,59m²  
     
Gesamt 320,73m² 21,76m²

Von jeder Wohnebene genießt man den unverbaubaren Fern- und Grünblick auf den Schafberg und die stilvolle Nachbarschaft. Ein weiteres Highlight sind der parkähnliche Garten mit einer Fläche von rd. 1.300m² und das Erweiterungspotential der Villa auf rund 515m² Nutzfläche. Hierzu liegt bereits eine entsprechende Planung vor, die wir bei konkretem Interesse gerne zur Verfügung stellen.

In Summe stellt diese Immobilie zum angebotenen Preis ein erstklassiges Investment dar, welches den Kaufpreis alleine schon durch das Grundstück in Cottagelage mit einer Fläche von rd. 1.570m² begründet. 

Kontaktieren Sie uns und vereinbaren Sie einen Besichtigungstermin per Mail unter nikolaus@seifert-real.at oder telefonisch unter 06765309013!

Hinweis gemäß Energieausweisvorlagegesetz: Ein Energieausweis wurde vom Eigentümer bzw. Verkäufer, nach unserer Aufklärung über die generell geltende Vorlagepflicht, sowie Aufforderung zu seiner Erstellung noch nicht vorgelegt. Daher gilt zumindest eine dem Alter und der Art des Gebäudes entsprechende Gesamtenergieeffizienz als vereinbart. Wir übernehmen keinerlei Gewähr oder Haftung für die tatsächliche Energieeffizienz der angebotenen Immobilie.

Der Vermittler ist als Doppelmakler tätig.


Infrastruktur / Entfernungen

Gesundheit
Arzt <500m
Apotheke <1.000m
Klinik <2.000m
Krankenhaus <1.000m

Kinder & Schulen
Schule <1.500m
Kindergarten <500m
Universität <1.500m
Höhere Schule <3.000m

Nahversorgung
Supermarkt <500m
Bäckerei <500m
Einkaufszentrum <1.500m

Sonstige
Geldautomat <1.500m
Bank <1.500m
Post <500m
Polizei <2.000m

Verkehr
Bus <500m
Straßenbahn <500m
U-Bahn <2.000m
Bahnhof <2.000m
Autobahnanschluss <5.500m

Angaben Entfernung Luftlinie / Quelle: OpenStreetMap

Gartennutzung: JA
Provision: 3% des Kaufpreises zzgl. 20% USt.


Alle Details anzeigen

KONTAKT






 

Lasse dich kostenlos vom Anbieter dieser Immobilie zurückrufen.







 


 
Seifert Maxian Partner Immobilientreuhand GmbH & Co KG
Nikolaus Seifert
Telefonnummer anzeigen Telefon Allgemein: +436765309013
 
Bitte dem Makler die FindMyHome.at - ID bekanntgeben: 5561404

BEWERTUNGEN DIESES ANBIETERS


Die Anzahl der Bewertungen dieses Anbieters ist noch nicht aussagekrätig.
 
Auch du kannst bewerten! 7 Tage nach deiner Anfrage erhältst du dafür von uns ein Bewertungsmail.
Alle Infos zu unseren Auszeichnungen und dem FINDMYHOME.AT Qualitätsprogramm findest du hier: Übersicht anzeigen

FINANZIERUNG
?>

Du willst wissen, wie viel dein Umzug kosten wird?

Mach gleich den kostenlosen Preisvergleich und schau, welche seriösen Anbieter in deiner Region günstig deinen Umzug organisieren


ZUM UMZUGS-VERGLEICH
-->

MYHOME BLOG
SuchAgentin auf FindMyHome.at
Unterschiedlichen Rechtsthemen, köstliche Rezepte, neueste Design-Highlights, sowie aktuelle Technik-Tools für Ihr Eigenheim.


FINDMYHOME.AT SUCHAGENTIN
SuchAgentin auf FindMyHome.at
Hallo, soll ich dir ähnliche Immobilien kostenfrei per E-Mail schicken?


ÄHNLICHE IMMOBILIEN
Aehnliche Immobilie - Vorschaubild 1

# SQ - VILLA IN TOP LAGE MIT SWIMMINGPOOL UND TIEFGARAGE -... - Objektnr. 5551754

283,00 m² - 3.5 Zimmer
1900000 €
PLZ: 1170

Mehr anzeigen

Aehnliche Immobilie - Vorschaubild 2

360 TOUR // GENERALSANIERTES EINFAMILIENHAUS IN DORNBACH MIT... - Objektnr. 5537036

220,00 m² - 6.0 Zimmer
1850000 €
PLZ: 1170

Mehr anzeigen

Durch die Nutzung unserer Seite erklären Sie sich mit der Verwendung von Cookies zur Verbesserung Ihres Online-Erlebnisses einverstanden. Detaillierte Informationen zu diesem und weiteren Themen erhalten Sie in unserer Datenschutzerklärung.