# SQ - HELLE 2-ZIMMER DACHGESCHOSSWOHNUNG IN ZENTRALER UND RUHIGER LAGE DES 20. BEZIRKS - Objektnr. 5656975
ECKDATEN
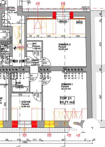
BESCHREIBUNG
KONTAKT
Lasse dich kostenlos vom Anbieter dieser Immobilie zurückrufen.
STADTQUARTIER Home GmbH
Adam Brandis
Adam Brandis
Telefonnummer anzeigen
Telefon Allgemein: +4369981470580
Handy Bearbeiter: +4369981470580
Bitte dem Makler die FindMyHome.at - ID bekanntgeben: 5656975
Handy Bearbeiter: +4369981470580
Bitte dem Makler die FindMyHome.at - ID bekanntgeben: 5656975
BEWERTUNGEN DIESES ANBIETERS
Qualitätsmakler
2013, 2018, 2019, 2021
2013, 2018, 2019, 2021
BESONDERS
FREUNDLICH
FREUNDLICH
FINDMYHOME.AT
NETIQUETTE
NETIQUETTE
Auch du kannst bewerten! 7 Tage nach deiner Anfrage erhältst du dafür von uns ein Bewertungsmail.
Alle Infos zu unseren Auszeichnungen und dem FINDMYHOME.AT Qualitätsprogramm findest du hier: Übersicht anzeigen
Alle Infos zu unseren Auszeichnungen und dem FINDMYHOME.AT Qualitätsprogramm findest du hier: Übersicht anzeigen
FINANZIERUNG
Du willst wissen, wie viel dein Umzug kosten wird?
Mach gleich den kostenlosen Preisvergleich und schau, welche seriösen Anbieter in deiner Region günstig deinen Umzug organisieren
ZUM UMZUGS-VERGLEICH

























