MEIN ERGEBNIS ANPASSEN

Stilvolle Maisonettewohnung mit Kamin und Dachterrassen im 4. Bezirk - Objektnr. 5655761

1040
Ort
197,70 m²
Fläche
4.0
Zimmer
WEITERE MEDIEN

ECKDATEN
FindMyHome.at // Externe Immobilien-ID5655761 // 84614
ImmobilienartWohnung - Eigentum
AnschriftSchelleingasse/7a
1040 Wien
Baujahr1910
Stock6
Geschosse8
Fläche197,70 m²
Terrassen4 (77,00 m²)
Zimmer4.0
Bad3
WC5
Kaufpreis:€ 2.495.000,00
Ratenzahlung:Finanzierungsmöglichkeiten für diese Immobilie anzeigen
Provision: 3% des Kaufpreises zzgl. 20% USt.







BESCHREIBUNG

Stilvolle Maisonettewohnung mit Kamin und Dachterrassen im 4. Bezirk

In einem charmanten Wiener Altbau aus dem Jahre 1910 gelangen 6 Wohnungen sowie ein Atelier in den Verkauf.

Diese einzigartigen Wohnungen bieten nicht nur historischen Flair, sondern auch modernen Komfort in einer der begehrtesten Wohngegenden der Stadt.

 

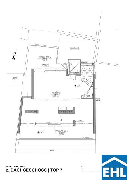
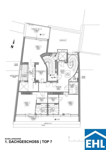
Das Highlight dieses Altbaujuwels ist zweifelsohne die wunderschöne Dachgeschoßwohnung, die lichtdurchfluteten Wohnraum inmitten einer historischen Kulisse bietet.

Diese Maisonette-Wohnung wurde ohne Dachschrägen neu errichtet, um höchste Ansprüche an Qualität und Design zu erfüllen. Jeder Raum wurde mit Liebe zum Detail gestaltet, um modernen Wohnkomfort zu gewährleisten. Auf beiden Ebenen findet sich ein eigener Zugang zum neu errichteten, verglasten Lift.

Die bodentiefen Fenster schaffen eine Verbindung zur umgebenden Stadt und verleihen der Wohnung ein helles, offenes Ambiente.

Das Herzstück dieser Immobilie ist der Kamin in der geräumigen Wohnküche, der für Gemütlichkeit und Wärme sorgt. Hier können Sie kulinarische Köstlichkeiten zubereiten und gleichzeitig das Flair eines Kaminabends genießen.

Die Wohnküche bietet direkten Zugang zu einer Ihrer, in den Innenhof ausgerichteten, Dachterrassen. Hier können Sie die warmen Sonnenstrahlen genießen, entspannen oder gesellige Abende mit Freunden und Familie verbringen.

Wenn Sie nach einem einzigartigen Wohnraum suchen, der Ihre Lebensqualität auf ein neues Level hebt, dann ist diese Wohnung im 4. Bezirk die perfekte Wahl für Sie.

 

Ausstattung:

  • Fischgrätparkettböden (Eiche natur) in den Wohnräumen
  • Großformatiges Feinsteinzeug in den Nassräumen
  • Luftwärmepumpe, Fußbodenheizung und -kühlung - teilweise auch in den Wohnungswänden
  • Großflächige Hebe-/Schiebetüren
  • Holz-Alu-Fenster
  • KNX-Verkabelung
  • Beleuchtungskörper von ´Romeo Babe´
  • Bewässerungsanlage auf den Terrassen
  • Video-Gegensprechanlage
  • Sonnenschutz: elektrisch betriebene Raffstores bei allen Fenstern
  • Terrassen mit Bewässerungsanlage und Außenbeleuchtung

Diese wunderschöne Dachgeschoß-Wohnung in einem prachtvollen Wiener Stadthaus bietet mit ihrer modernen Ausstattung, höchsten Komfort. Mit ihren großzügigen Räumen, den atemberaubenden Terrassen und der zentralen Lage ist sie ideal für Familien, Paare oder Einzelpersonen, die das Beste aus dem Wiener Stadtleben erleben möchten.


Machen Sie sich hier eine Überblick über die Wohnung!

Wir weisen darauf hin, dass zwischen dem Vermittler und dem zu vermittelnden Dritten ein familiäres oder wirtschaftliches Naheverhältnis besteht.

Der Vermittler ist als Doppelmakler tätig.


Infrastruktur / Entfernungen

Gesundheit
Arzt <250m
Apotheke <250m
Klinik <500m
Krankenhaus <1.250m

Kinder & Schulen
Schule <500m
Kindergarten <250m
Universität <1.250m
Höhere Schule <1.000m

Nahversorgung
Supermarkt <250m
Bäckerei <250m
Einkaufszentrum <750m

Sonstige
Geldautomat <250m
Bank <250m
Post <250m
Polizei <500m

Verkehr
Bus <250m
U-Bahn <250m
Straßenbahn <250m
Bahnhof <250m
Autobahnanschluss <2.250m

Angaben Entfernung Luftlinie / Quelle: OpenStreetMap

Klimaanlage: JA
Provision: 3% des Kaufpreises zzgl. 20% USt.


Alle Details anzeigen

KONTAKT






 

Lasse dich kostenlos vom Anbieter dieser Immobilie zurückrufen.







 


 
EHL Wohnen GmbH
Ilse Reindl
Telefonnummer anzeigen Telefon Allgemein: +4315127690410
Handy Bearbeiter: +4366488160143
 
Bitte dem Makler die FindMyHome.at - ID bekanntgeben: 5655761

Bewertungen dieses Anbieters
Qualitätsmakler
Qualitätsmakler:
Netiquette
Freundlichkeit
82 %

BEWERTUNGEN DIESES ANBIETERS

 
Qualitätsmakler
UNSERE HALL OF FAME DER BESTEN ANBIETER
Qualit�tsmakler
Qualitätsmakler
2012, 2013, 2014, 2015, 2016, 2017, 2018, 2019, 2020, 2021, 22/23, 2024, 2025, 2026
Weiterempfehlung
WIRD GERNE

Freundlichkeit
BESONDERS
FREUNDLICH
Netiquette
FINDMYHOME
NETIQUETTE
Auch du kannst bewerten! 7 Tage nach deiner Anfrage erhältst du dafür von uns ein Bewertungsmail.
Alle Infos zu unseren Auszeichnungen und dem FINDMYHOME.AT Qualitätsprogramm findest du hier: Übersicht anzeigen

FINANZIERUNG
?>

Du willst wissen, wie viel dein Umzug kosten wird?

Mach gleich den kostenlosen Preisvergleich und schau, welche seriösen Anbieter in deiner Region günstig deinen Umzug organisieren


ZUM UMZUGS-VERGLEICH
-->

MYHOME BLOG
SuchAgentin auf FindMyHome.at
Unterschiedlichen Rechtsthemen, köstliche Rezepte, neueste Design-Highlights, sowie aktuelle Technik-Tools für Ihr Eigenheim.


FINDMYHOME.AT SUCHAGENTIN
SuchAgentin auf FindMyHome.at
Hallo, soll ich dir ähnliche Immobilien kostenfrei per E-Mail schicken?


ÄHNLICHE IMMOBILIEN
Aehnliche Immobilie - Vorschaubild 1

LUXUS-PENTHOUSE DIREKT AM NASCHMARKT! Grandiose Dachterrasse... - Objektnr. 5653879

171,68 m² - 3.0 Zimmer
2590000 €
PLZ: 1040

Mehr anzeigen

Aehnliche Immobilie - Vorschaubild 2

4-Zimmer Erstbezug mit 18 m² Terrasse und 28 m² Dachterras... - Objektnr. 5654653

163,20 m² - 4.0 Zimmer
2750000 €
PLZ: 1040

Mehr anzeigen

Aehnliche Immobilie - Vorschaubild 3

Stilvolle Maisonettewohnung mit Kamin und Dachterrassen im 4... - Objektnr. 5655762

197,70 m² - 4.0 Zimmer
2495000 €
PLZ: 1040

Mehr anzeigen

Durch die Nutzung unserer Seite erklären Sie sich mit der Verwendung von Cookies zur Verbesserung Ihres Online-Erlebnisses einverstanden. Detaillierte Informationen zu diesem und weiteren Themen erhalten Sie in unserer Datenschutzerklärung.