MEIN ERGEBNIS ANPASSEN

WG-Traum im Herzen von Neubau - Top-Lage im Adlerhof! - Objektnr. 5652041

1070
Ort
€ 2.892,94
Gesamtkosten
137,12 m²
Fläche
5.0
Zimmer

ECKDATEN
FindMyHome.at // Externe Immobilien-ID5652041 // 16259
ImmobilienartWohnung - Miete
Anschrift1070 Wien,Neubau
Baujahr1874
Stock1
Mietdauer5
Zimmer5.0
WC2
 Abstellraum
Brutto-Miete:€ 2.892,94
Betriebskosten (inkl. MwSt):€ 354,21
Mehrwertsteuer:€ 266,78
Monatliche Gesamtkosten:€ 2.892,94
Provision: Gemäß Erstauftraggeberprinzip bezahlt der Abgeber die Provision.




BESCHREIBUNG

WG-Traum im Herzen von Neubau - Top-Lage im Adlerhof!

WG-Traum im Adlerhof

 

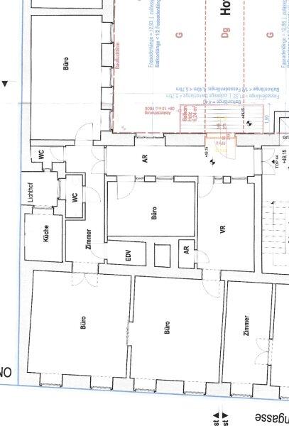
Zur Vermietung steht eine großzügige 4-Zimmer-Wohnung im 1. Obergeschoss perfekt geeignet für eine moderne WG in absoluter Bestlage des 7. Wiener Gemeindebezirks. Der Adlerhof vereint urbanes Flair mit ruhigem Innenhof-Charakter und bietet damit eine seltene Kombination aus zentralem Wohnen und angenehmer Rückzugsmöglichkeit.

Perfekt für alle, die das Wiener Stadtleben in einer der angesagtesten Lagen genießen möchten ideal für eine WG mit Anspruch.

 

Raumaufteilung

 

  • 4 Zimmer ideal für eine WG

  • Neue Küche (wird aktuell eingebaut)

  • Neues Badezimmer (in Umsetzung)

  • Toilette

  • 2 Abstellräume für zusätzlichen Stauraum

 

Die durchdachte Aufteilung ermöglicht sowohl Privatsphäre als auch ein angenehmes Zusammenleben.


 

Lage & Umfeld

 

Die Lage im Adlerhof zählt zu den begehrtesten Adressen des 7. Bezirks und bietet eine ideale Kombination aus urbaner Infrastruktur, historischer Bausubstanz und ruhiger Innenhoflage.

In unmittelbarer Gehdistanz befinden sich:

  • Vielfältige Einkaufsmöglichkeiten und Nahversorgung

  • Zahlreiche Restaurants, Bars und Cafés, darunter das beliebte Café Adlerhof im Haus

  • Apotheken und Banken

  • Die Mariahilfer Straße mit umfassendem Shopping- und Gastronomieangebot

Der 7. Bezirk steht für kulturelle Vielfalt, kreative Szene und wunderschön erhaltene Altbauten ein Standort, der Professionalität, Sichtbarkeit und Arbeitsqualität ideal verbindet.


 

Verkehrsanbindung

  • U-Bahn: U3 (Volkstheater / Neubaugasse), U6 (Burggasse-Stadthalle)

  • Straßenbahn: Linien 5, 49

  • Bus: Linie N71

Damit ist eine schnelle Anbindung an das Stadtzentrum und andere Bezirke gewährleistet.


 

Nebenkosten

  • 3 BMM Kaution
  • € 240,- Vertragserrichtungskosten

 

Maklervereinbarung: Wir ersuchen um Verständnis, dass wir bei Anfragen zur Objektadresse, bzw. Besichtigungstermin  aufgrund neuer gesetzlicher Bestimmungen Unterlagen erst dann zusenden können, wenn Sie vorab bestätigen, dass Sie unser sofortiges Tätigwerden wünschen und über Ihre Rücktrittsrechte aufgeklärt wurden. Sie bekommen nach Ihrer schriftlichen Anfrage mit vollständiger Angabe des Namens, Anschrift und Telefonnummer ein Email, in dem Sie diese Punkte bestätigen müssen.


Haftungsausschluss:  Wir weisen darauf hin, dass sämtliche Daten im vorliegenden Angebot sowie die von unserem Büro an Sie weitergegebenen Auskünfte, vom Eigentümer der Immobilie zur Verfügung gestellt wurden. Ebenso sind Informationen von Dritten (z.B. behördliche Informationen) eingeholt worden, auch für diese können wir unsererseits keinerlei Haftung für deren uneingeschränkte Richtigkeit übernehmen.

Wir weisen darauf hin, dass zwischen dem Vermittler und dem zu vermittelnden Dritten ein familiäres oder wirtschaftliches Naheverhältnis besteht.

Der Immobilienmakler erklärt, dass er entgegen dem in der Immobilienwirtschaft üblichen Geschäftsgebrauch des Doppelmaklers einseitig nur für den Vermieter tätig ist.


Infrastruktur / Entfernungen

Gesundheit
Arzt <500m
Apotheke <500m
Klinik <500m
Krankenhaus <1.500m

Kinder & Schulen
Schule <500m
Kindergarten <500m
Universität <500m
Höhere Schule <1.000m

Nahversorgung
Supermarkt <500m
Bäckerei <500m
Einkaufszentrum <500m

Sonstige
Geldautomat <500m
Bank <500m
Post <500m
Polizei <500m

Verkehr
Bus <500m
U-Bahn <500m
Straßenbahn <500m
Bahnhof <500m
Autobahnanschluss <4.500m

Angaben Entfernung Luftlinie / Quelle: OpenStreetMap

Provision: Gemäß Erstauftraggeberprinzip bezahlt der Abgeber die Provision.


Alle Details anzeigen

KONTAKT






 

Lasse dich kostenlos vom Anbieter dieser Immobilie zurückrufen.







 


 
Moritz Immobilien
Angelika Zierler
Telefonnummer anzeigen Telefon Allgemein: +4319978062
Handy Bearbeiter: +436605721536
 
Bitte dem Makler die FindMyHome.at - ID bekanntgeben: 5652041

Bewertungen dieses Anbieters
Netiquette
Freundlichkeit
100 %

BEWERTUNGEN DIESES ANBIETERS

 
Weiterempfehlung
WIRD SEHR GERNE

Freundlichkeit
BESONDERS
FREUNDLICH
Netiquette
FINDMYHOME
NETIQUETTE
Auch du kannst bewerten! 7 Tage nach deiner Anfrage erhältst du dafür von uns ein Bewertungsmail.
Alle Infos zu unseren Auszeichnungen und dem FINDMYHOME.AT Qualitätsprogramm findest du hier: Übersicht anzeigen


Du willst wissen, wie viel dein Umzug kosten wird?

Mach gleich den kostenlosen Preisvergleich und schau, welche seriösen Anbieter in deiner Region günstig deinen Umzug organisieren


ZUM UMZUGS-VERGLEICH
-->

MYHOME BLOG
SuchAgentin auf FindMyHome.at
Unterschiedlichen Rechtsthemen, köstliche Rezepte, neueste Design-Highlights, sowie aktuelle Technik-Tools für Ihr Eigenheim.


FINDMYHOME.AT SUCHAGENTIN
SuchAgentin auf FindMyHome.at
Hallo, soll ich dir ähnliche Immobilien kostenfrei per E-Mail schicken?


Durch die Nutzung unserer Seite erklären Sie sich mit der Verwendung von Cookies zur Verbesserung Ihres Online-Erlebnisses einverstanden. Detaillierte Informationen zu diesem und weiteren Themen erhalten Sie in unserer Datenschutzerklärung.