Im Falle der Notwendigkeit einer Fremdfinanzierung Ihrer Wunschimmobilie ermittelt unser Wohnbau-Finanzierungsexperte gerne die optimale Finanzierungslösung und findet das passende Zins- und Konditionsangebot für Sie. Er vergleicht die aktuellen Angebote aller relevanten Banken und Bausparkassen. Der Angebotsvergleich kann aus einem Portfolio von über 120 Banken erfolgen. Das Erstgespräch ist für Sie kostenfrei und unverbindlich, gerne auch bei Ihnen vor Ort. So sparen Sie Ihre wertvolle Zeit und erhalten eine professionelle und unabhängige Finanzierungslösung vom Spezialisten. Sprechen Sie uns wegen eines Termins gerne an!
Zum Verkauf gelangt ein außergewöhnliches Wohnungspaket in einer der gefragtesten Lagen des 3. Wiener Gemeindebezirkes!
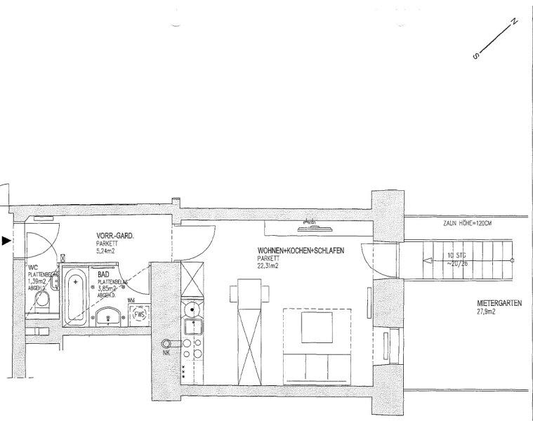
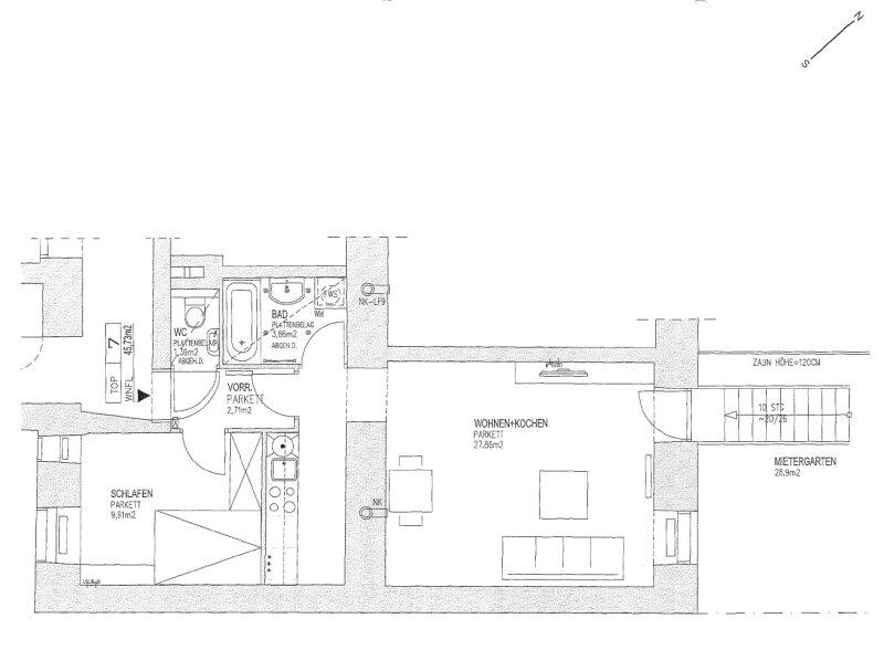
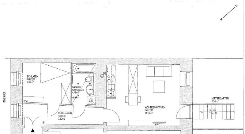
Drei eigenständige Altbauwohnungen mit Eigengärten, vereint in einer Liegenschaft mit exzellenter Infrastruktur und unmittelbarer U-Bahn-Anbindung. Dieses Ensemble eröffnet eine Vielzahl an Nutzungsmöglichkeiten von der klassischen Anlage über Mitarbeiterwohnungen bis hin zu einer intelligenten Kombination aus Eigennutzung und Vermietung. Die drei Einheiten umfassen insgesamt rund 121 m² Wohnfläche sowie großzügige private Gartenflächen von insgesamt rund 87 m² und bieten damit eine seltene Kombination aus urbanem Wohnen und privatem Freiraum mitten in der Stadt.
Alle Wohnungen befinden sich im Hochparterre eines stilvollen Altbaus aus dem Jahr 1911, welcher sich in ausgezeichnetem Zustand präsentiert. Das Wohnungseigentum wurde erst kürzlich begründet ein entscheidender Vorteil für Investoren.
Die Einheiten im Überblick:
- 2-Zimmer Gartenwohnung (ca. 42 m²) mit ca. 31 m² Garten
- 2,5-Zimmer Gartenwohnung (ca. 46 m²) mit ca. 29 m² Garten
- Garçonnière (ca. 33 m²) mit ca. 28 m² Garten
Jede Wohnung überzeugt durch durchdachte Grundrisse, moderne Zentralheizung, gepflegte Ausstattung (Parkett, Fliesen, Einbauküchen) sowie separate Kellerabteile.
Die stilvolle und bestens erhaltene Liegenschaft besticht durch ihre erstklassige Lage direkt am Kardinal-Nagl-Platz, eingebettet in eine ruhige, verkehrsberuhigte Einbahnstraße. Dank der unmittelbaren Nähe zur U-Bahn-Station ist eine hervorragende Anbindung an das Stadtzentrum gegeben, während die charmante Umgebung mit zahlreichen Geschäften, Cafés und Grünflächen ein angenehmes Wohngefühl vermittelt.
Gerne lassen wir Ihnen bei ernsthaftem Interesse - vor Kaufanbotlegung - weitere vertraulichen Dokumente zu dieser Liegenschaft zukommen, welche nicht veröffentlicht werden dürfen.
Überzeugen Sie sich selbst von diesem überaus attraktiven Objekt. Für Besichtigungen und nähere Informationen stehen wir Ihnen gerne zur Verfügung!
Frau Sophia Ehinger
national - Tel: 0681 813 96551
international - Tel: +43 681 813 96551
e-mail:
Wir weisen darauf hin, dass zwischen dem Vermittler und dem zu vermittelnden Dritten ein familiäres oder wirtschaftliches Naheverhältnis besteht.
Der Vermittler ist als Doppelmakler tätig.
Infrastruktur / Entfernungen
Gesundheit
Arzt <500m
Apotheke <500m
Klinik <500m
Krankenhaus <500m
Kinder & Schulen
Schule <500m
Kindergarten <500m
Universität <1.000m
Höhere Schule <500m
Nahversorgung
Supermarkt <500m
Bäckerei <500m
Einkaufszentrum <500m
Sonstige
Geldautomat <500m
Bank <500m
Post <500m
Polizei <500m
Verkehr
Bus <500m
U-Bahn <500m
Straßenbahn <1.000m
Bahnhof <500m
Autobahnanschluss <1.000m
Angaben Entfernung Luftlinie / Quelle: OpenStreetMap
Gartennutzung: JA
Provision: 3% des Kaufpreises zzgl. 20% USt.