MEIN ERGEBNIS ANPASSEN

Historischer Altbau in Belvedere-Nähe - seltene Projektchance in absoluter Toplage - Objektnr. 5648389

1030
Ort
126,36 m²
Fläche
5.0
Zimmer

ECKDATEN
FindMyHome.at // Externe Immobilien-ID5648389 // 3282
ImmobilienartWohnung - Eigentum
Anschrift1030 Wien
Baujahr1871
Befeuerung
Stock2
Geschosse4
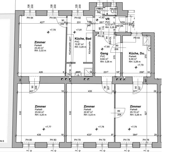
Fläche126,36 m²
Zimmer5.0
Bad1
WC1
Kaufpreis:€ 599.000,00
Ratenzahlung:Finanzierungsmöglichkeiten für diese Immobilie anzeigen
Provision: 3% des Kaufpreises zzgl. 20% USt.







BESCHREIBUNG

Historischer Altbau in Belvedere-Nähe - seltene Projektchance in absoluter Toplage

"Zum Schützen" - Altbaujuwel nahe dem Schloss Belvedere Raum für individuelle Wohnträume

In unmittelbarer Nähe zum Schloss Belvedere präsentiert sich dieses außergewöhnliche Altbauprojekt in absoluter Toplage als seltene Gelegenheit für Liebhaber klassischer Wiener Architektur. Das Objekt umfasst sechs Wohnungen mit Wohnflächen von ca. 31 m² bis ca. 126,36 m² und 1 bis 5 Zimmern und bietet damit vielfältige Möglichkeiten vom charmanten Stadtapartment bis zur großzügigen Familienwohnung.

Der Altbau besticht durch seine typischen Stilelemente, allen voran großzügige Raumhöhen, klassische Altbau-Holzfenster sowie den unverwechselbaren Charakter eines historischen Wohnhauses. Die Wohnungen befinden sich größtenteils in stark sanierungsbedürftigem Zustand und bieten somit die ideale Grundlage, um individuellen Wohnträumen freien Raum zu geben und zeitgemäßen Komfort mit historischer Substanz zu verbinden.

Die Heizungsversorgung erfolgt teilweise über Gasetagenheizungen, überwiegend jedoch über Gaskonvektoren. Der Sanitärstandard entspricht in den meisten Wohnungen nicht dem heutigen Wohnkomfort: Bis auf zwei Einheiten verfügen die Wohnungen derzeit über kein separates Badezimmer; in diesen Fällen ist lediglich eine Duschmöglichkeit in der Küche vorhanden. Im Zuge einer umfassenden Sanierung lassen sich jedoch moderne Badezimmerlösungen problemlos realisieren.

Ein Lift ist derzeit nicht vorhanden. Sollte es im Zuge eines späteren Dachgeschossausbaus zur Errichtung eines Aufzugs kommen, können Liftnutzungsrechte gegen anteilige Kostenübernahme erworben werden.

Das Stiegenhaus wird derzeit umfassend generalrevitalisiert und neu ausgemalt. Auch die Fassade des Gebäudes wird aktuell saniert, wodurch sich das gesamte Erscheinungsbild des Hauses deutlich aufwertet. Die dargestellten Visualisierungen der Fassade wurden KI-gestützt erstellt und dienen ausschließlich der Veranschaulichung des geplanten Erscheinungsbildes nach Abschluss der Sanierungsarbeiten. Abweichungen zur tatsächlichen Ausführung sind möglich.

Dieses Projekt richtet sich an Käuferinnen und Käufer, die den Charme eines klassischen Altbaus schätzen und bereit sind, durch eine individuelle Sanierung ein einzigartiges Zuhause in einer der begehrtesten Lagen Wiens zu schaffen.

Lage & Umfeld

Die Liegenschaft liegt in absoluter Toplage nahe dem Schloss Belvedere und vereint urbanes Wohnen mit unmittelbarer Nähe zu weitläufigen Grünanlagen. Belvedere, Botanischer Garten sowie Parks und Erholungsflächen befinden sich direkt vor der Tür. Gleichzeitig überzeugt die Lage durch eine ausgezeichnete Infrastruktur mit Nahversorgung, Ärzten, Schulen und kulturellen Einrichtungen in unmittelbarer Umgebung eine seltene Kombination aus City-Flair und Erholung im Grünen.

Rohdachboden Ausbaupotenzial

Zusätzlich zu den Wohnungen steht auch der Rohdachboden des Hauses zum Verkauf. Für diesen liegt bereits eine Ausbaustudie vor.

Laut Studie ist eine erzielbare Wohnnutzfläche von ca. 301,8 m² darstellbar. Der Kaufpreis wurde auf Basis erzielbarer Wohnnutzfläche kalkuliert und beträgt somit € 299.000,.

Im Zuge eines Ausbaus des Dachgeschosses ist die Errichtung eines Personenaufzugs verpflichtend vorzusehen. Weitergehende Planungen, Einreichungen sowie die konkrete Ausgestaltung des Dachgeschosses sind vom Käufer durchzuführen.

Ein besonderer Mehrwert dieser Immobilie:
Die Verkäuferseite kümmert sich auf eigene Kosten um die Einholung der Baubewilligung für hofseitige Balkone. Damit wird eine attraktive Erweiterung der Wohnfläche ermöglicht selbstverständlich im Einklang mit den geltenden Flächenwidmungs- und Bebauungsbestimmungen sowie der Wiener Bauordnung (WBO). Nach Fertigstellung der Balkone erhält der Käufer die Möglichkeit, gegen ein einmaliges Entgelt  abhängig von der jeweiligen Balkongröße eine zusätzliche Freifläche von ca. 4,40 m² bis 9,80 m²  (Flächenangaben können noch variieren) zu erwerben. Der Kostenrahmen liegt dabei zwischen EUR 5.000, und EUR 10.000, und stellt eine attraktive Investition in mehr Wohnqualität, Freiraum und Wertsteigerung dar.

Hinweis: Die dargestellten möblierten und sanierten Räume sind KI-generierte Visualisierungen und dienen lediglich der Veranschaulichung möglicher Einrichtungs- und Sanierungskonzepte. Die Möblierung und Sanierung ist nicht im Kaufpreis enthalten.

 

Verfügbare Einheiten 

Top  Stockwerk Nutzung Fläche m2 Kaufpreis
3+4 Parterre Wohnen 80,60 357.000 €
5 1.OG Wohnen 59,37 277.000 €
7+8 2.OG Wohnen 126,36 599.000 €
11 3.OG Wohnen 41,07 202.000 €
12 3.OG Wohnen 30,52 153.000 €
13 3.OG Wohnen 30,57

158.000 €

14    3.OG       Wohnen    45,43   236.000 €
RDB DG.  Wohnen.   301,00 299.000 €

Wir weisen darauf hin, dass zwischen dem Vermittler und dem zu vermittelnden Dritten ein familiäres oder wirtschaftliches Naheverhältnis besteht.

Der Vermittler ist als Doppelmakler tätig.


Infrastruktur / Entfernungen

Gesundheit
Arzt <500m
Apotheke <500m
Klinik <1.000m
Krankenhaus <500m

Kinder & Schulen
Schule <500m
Kindergarten <500m
Universität <500m
Höhere Schule <500m

Nahversorgung
Supermarkt <500m
Bäckerei <500m
Einkaufszentrum <1.000m

Sonstige
Geldautomat <500m
Bank <500m
Post <500m
Polizei <1.000m

Verkehr
Bus <500m
U-Bahn <1.000m
Straßenbahn <500m
Bahnhof <500m
Autobahnanschluss <2.000m

Angaben Entfernung Luftlinie / Quelle: OpenStreetMap

Provision: 3% des Kaufpreises zzgl. 20% USt.


Alle Details anzeigen

KONTAKT






 

Lasse dich kostenlos vom Anbieter dieser Immobilie zurückrufen.







 


 
ViennaEstate Makler GmbH
Pauline Socha
Telefonnummer anzeigen Telefon Allgemein: +4312360155816
Handy Bearbeiter: +4367683985816
 
Bitte dem Makler die FindMyHome.at - ID bekanntgeben: 5648389

Bewertungen dieses Anbieters
Qualitätsmakler
Qualitätsmakler:
2015, 2016, 2017, 2018, 2019, 2020, 2023 , 2026,
Netiquette
Freundlichkeit

BEWERTUNGEN DIESES ANBIETERS

 
Qualitätsmakler
UNSERE HALL OF FAME DER BESTEN ANBIETER
Qualit�tsmakler
Qualitätsmakler
2015, 2016, 2017, 2018, 2019, 2020, 22/23 2026
Freundlichkeit
BESONDERS
FREUNDLICH
Netiquette
FINDMYHOME
NETIQUETTE
Auch du kannst bewerten! 7 Tage nach deiner Anfrage erhältst du dafür von uns ein Bewertungsmail.
Alle Infos zu unseren Auszeichnungen und dem FINDMYHOME.AT Qualitätsprogramm findest du hier: Übersicht anzeigen

FINANZIERUNG
?>

Du willst wissen, wie viel dein Umzug kosten wird?

Mach gleich den kostenlosen Preisvergleich und schau, welche seriösen Anbieter in deiner Region günstig deinen Umzug organisieren


ZUM UMZUGS-VERGLEICH
-->

MYHOME BLOG
SuchAgentin auf FindMyHome.at
Unterschiedlichen Rechtsthemen, köstliche Rezepte, neueste Design-Highlights, sowie aktuelle Technik-Tools für Ihr Eigenheim.


FINDMYHOME.AT SUCHAGENTIN
SuchAgentin auf FindMyHome.at
Hallo, soll ich dir ähnliche Immobilien kostenfrei per E-Mail schicken?


ÄHNLICHE IMMOBILIEN
Aehnliche Immobilie - Vorschaubild 1

Altbaucharme mit Raum - 4-Zimmer Wohnung im 3.Bezirk... - Objektnr. 5600623

110,55 m² - 4.0 Zimmer
675000 €
PLZ: 1030

Mehr anzeigen

Aehnliche Immobilie - Vorschaubild 2

repräsentative Altetage - unbefristet VERMIETET - Objektnr. 5525501

151,00 m² - 4.0 Zimmer
680000 €
PLZ: 1030

Mehr anzeigen

Aehnliche Immobilie - Vorschaubild 3

Khunngasse - WG-tauglicher 3 Zimmer Neubau mit separater Ein... - Objektnr. 5572703

105,13 m² - 3.0 Zimmer
499000 €
PLZ: 1030

Mehr anzeigen

Durch die Nutzung unserer Seite erklären Sie sich mit der Verwendung von Cookies zur Verbesserung Ihres Online-Erlebnisses einverstanden. Detaillierte Informationen zu diesem und weiteren Themen erhalten Sie in unserer Datenschutzerklärung.