MEIN ERGEBNIS ANPASSEN

Die HAINBURG: Grünblick im 3.OG! Top Grundriss! - Objektnr. 5647466


ökologisch beheizt
  • Wohnküche
  • Wohnküche
  • Küche
  • Badezimmer
  • WC
  • Schlafzimmer
  • Hausansicht Hof
  • Schlafzimmer
  • Schlafzimmer
  • Vorraum
  • Vorraum
  • Hausansicht
  • Hauseingang
  • Hausansicht Hof
  • Stiegenhaus
  • Hof
1030
Ort
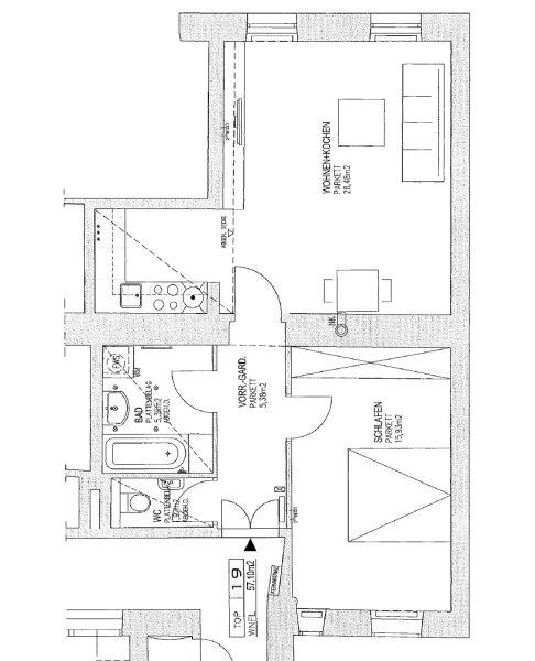
57,10 m²
Fläche
2.0
Zimmer

ECKDATEN
FindMyHome.at // Externe Immobilien-ID5647466 // 30834
ImmobilienartWohnung - Eigentum
AnschriftHainburger Straße 47/19
1030 Wien
Baujahr1911
Befeuerung
Fernwärme
Geschosse6
Fläche57,10 m²
Zimmer2.0
Bad1
WC1
Kaufpreis:€ 374.000,00
Ratenzahlung:Finanzierungsmöglichkeiten für diese Immobilie anzeigen
Provision: 3% des Kaufpreises zzgl. 20% USt.







BESCHREIBUNG

Die HAINBURG: Grünblick im 3.OG! Top Grundriss!

Die vor kurzem zu neuem Glanz erweckte "Hainburg" stellt eine architektonische Besonderheit in Bezug auf die schmiedeeiserne und frei schwebende Treppenkonstruktion dar. Das Dachgeschoß wurde bereits ausgebaut und ein Personenlift errichtet. Erleben Sie diese fantastische Konzeption hautnah!

Ein Meisterwerk des Altbaus, der momentan mehrere Wohnungen zum Kauf offeriert. Von Gartenwohnungen über das erste bis zum zweiten Obergeschoß, mit 1 bis 5 Zimmern. Auch Zusammenlegungen sind möglich. Die Wohneinheiten werden mit Fernwärme beheizt und sind mit Holzkastenfenstern und Parkettböden ausgestattet. Insgesamt befinden sich die Objekte in einem guten, sofort bezugsfertigen Gesamtzustand!

 

Wohnungsbeschreibung TOP 19 

Die im dritten Liftstock befindliche Zwei-Zimmer-Einheit verfügt über eine Wohnfläche im Ausmaß von ca. 57 qm. Frisch ausgemalt und mit Grünblick, erwartet sie Ihre Wohlfühlwohnung mit perfektem Grundriss!

Nachstehend finden Sie eine Übersicht der Räumlichkeiten:

  • der Vorraum (ca. 5,5 qm), über welchen alle Zimmer zentral zu begehen sind
  • die hofseitige Wohnküche (ca. 27,4 qm) mit voll ausgestatteter Einbauküche und Blick in den grünen Innenhof
  • das ruhige, ebenfalls in einen Innenhof orientierte Schlafzimmer (ca. 14,8 qm)
  • das Badezimmer mit und Wanne und Waschmaschinenanschluss (ca. 5,3 qm)
  • das separate WC mit Handwaschbecken

Die helle Wohneinheit ist mit Parkettböden, Gasetagenheizung und doppelt verglasten Holzfenstern ausgestattet.

 

Nachstehend finden Sie eine Übersicht aller verfügbaren Einheiten:

TOP 5

Diese Zwei-Zimmer-Einheit befindet sich im Hochparterre, verfügt über eine Wohnfläche im Ausmaß von ca. 43 qm sowie einen gemütlichen Garten.

TOP 6 

Die Ein-Zimmer-Wohnung im Hochparterre verfügt über eine Wohnfläche von ca. 33 qm sowie einen hübschen Garten.

TOP 7 

Ebenfalls im Hochparterre befindet sich diese Zwei-Zimmer-Einheit mit einer Wohnfläche im Ausmaß von ca. 46 qm sowie einem privaten Garten.

Zusammenlegungsmöglichkeiten

Die Gartenwohnungen Top 5, Top 6 und Top 7 können zusammengelegt werden.

TOP 10

Der 3-Zimmer-Altbau befindet sich im ersten Liftstock und verfügt über ca. 71 qm Wohnfläche. Die Lage im Hoftrakt garantiert optimale Ruhe und Blick in den grünen Baumbestand.

TOP 11 

Die im ersten Liftstock befindliche Zwei-Zimmer-Einheit verfügt über eine Wohnfläche im Ausmaß von ca. 55 qm. Die Wohnung in ruhiger Innenhoflage bietet einen sehr guten Grundriss und Grünblick.

TOP 13

Der bezugsfertige Zwei-Zimmer-Altbau befindet sich im zweiten Liftstock und bietet eine Wohnfläche im Ausmaß von ca. 70 qm. Hier erwartet Sie eine sehr gut aufgeteilte und helle Wohnung.

TOP 19 

Die im dritten Liftstock gelegene Zwei-Zimmer-Einheit verfügt über eine Wohnfläche von ca. 57 qm. Die bezugsfertige Wohnung mit Top-Grundriss befindet sich in Hoflage mit Grünblick.

Dieses Objekt wird Ihnen unverbindlich und freibleibend zum Kauf angeboten. Als Vermittlungshonorar gelten die allgemeinen Geschäftsbedingungen und die Verordnung für Immobilienmakler des BM für Handel, Gewerbe und Industrie, BGBL. 297/1996. Für den Fall, dass es diesbezüglich zu einem entsprechenden Rechtsgeschäft kommt, verrechnen wir Ihnen eine Vermittlungsprovision von 3 Prozent der Kaufsumme zuzüglich der gesetzlichen Mehrwertsteuer. Wir möchten noch darauf hinweisen, dass wir in einem wirtschaftlichen Naheverhältnis zur Verkäuferin stehen.

Wir weisen darauf hin, dass zwischen dem Vermittler und dem zu vermittelnden Dritten ein familiäres oder wirtschaftliches Naheverhältnis besteht.

Der Vermittler ist als Doppelmakler tätig.


Infrastruktur / Entfernungen

Gesundheit
Arzt <200m
Apotheke <200m
Klinik <50m
Krankenhaus <275m

Kinder & Schulen
Schule <175m
Kindergarten <125m
Universität <975m
Höhere Schule <425m

Nahversorgung
Supermarkt <100m
Bäckerei <75m
Einkaufszentrum <375m

Sonstige
Geldautomat <125m
Bank <125m
Post <125m
Polizei <350m

Verkehr
Bus <75m
U-Bahn <25m
Straßenbahn <600m
Bahnhof <25m
Autobahnanschluss <975m

Angaben Entfernung Luftlinie / Quelle: OpenStreetMap

Provision: 3% des Kaufpreises zzgl. 20% USt.


Alle Details anzeigen

KONTAKT






 

Lasse dich kostenlos vom Anbieter dieser Immobilie zurückrufen.







 


 
WINEGG Makler GmbH
Patrick Winkler
Telefonnummer anzeigen Telefon Allgemein: +4313157280
Handy Bearbeiter: +436608461085
 
Bitte dem Makler die FindMyHome.at - ID bekanntgeben: 5647466

Bewertungen dieses Anbieters
Qualitätsmakler
Qualitätsmakler:
2015, 2017, 2025,
Netiquette
Freundlichkeit
83 %

BEWERTUNGEN DIESES ANBIETERS

 
Qualit�tsmakler
Qualitätsmakler
2015, 2017, 2025
Weiterempfehlung
WIRD GERNE

Freundlichkeit
BESONDERS
FREUNDLICH
Netiquette
FINDMYHOME
NETIQUETTE
Auch du kannst bewerten! 7 Tage nach deiner Anfrage erhältst du dafür von uns ein Bewertungsmail.
Alle Infos zu unseren Auszeichnungen und dem FINDMYHOME.AT Qualitätsprogramm findest du hier: Übersicht anzeigen

FINANZIERUNG
?>

Du willst wissen, wie viel dein Umzug kosten wird?

Mach gleich den kostenlosen Preisvergleich und schau, welche seriösen Anbieter in deiner Region günstig deinen Umzug organisieren


ZUM UMZUGS-VERGLEICH
-->

MYHOME BLOG
SuchAgentin auf FindMyHome.at
Unterschiedlichen Rechtsthemen, köstliche Rezepte, neueste Design-Highlights, sowie aktuelle Technik-Tools für Ihr Eigenheim.


FINDMYHOME.AT SUCHAGENTIN
SuchAgentin auf FindMyHome.at
Hallo, soll ich dir ähnliche Immobilien kostenfrei per E-Mail schicken?


ÄHNLICHE IMMOBILIEN
Aehnliche Immobilie - Vorschaubild 1

Erstbezug mit Park- und Grünblick in toller Lage des 3.Bezir... - Objektnr. 5648025

57,37 m² - 3.0 Zimmer
436000 €
PLZ: 1030

Mehr anzeigen

Aehnliche Immobilie - Vorschaubild 2

U3 Schlachthausgasse: 3-Zimmerwohnung in gepflegtem Altbau... - Objektnr. 5245360

68,59 m² - 3.0 Zimmer
330000 €
PLZ: 1030

Mehr anzeigen

Aehnliche Immobilie - Vorschaubild 3

Super Grundriss // TOP Saniert // Gehweite zum Schweizergart... - Objektnr. 5452416

64,31 m² - 2.0 Zimmer
399000 €
PLZ: 1030

Mehr anzeigen

Durch die Nutzung unserer Seite erklären Sie sich mit der Verwendung von Cookies zur Verbesserung Ihres Online-Erlebnisses einverstanden. Detaillierte Informationen zu diesem und weiteren Themen erhalten Sie in unserer Datenschutzerklärung.