MEIN ERGEBNIS ANPASSEN

Sonnige 2-Zimmerwohnung in der Kaisergasse 12 - 14 - Top 20 - Objektnr. 5632671

4020
Ort
€ 797,12
Gesamtkosten
57,48 m²
Fläche
2.0
Zimmer

ECKDATEN
FindMyHome.at // Externe Immobilien-ID5632671 // 1939/217051
ImmobilienartWohnung - Miete
Anschrift4020 Linz
Baujahr1996
Mietdauer5
Fläche57,48 m²
Zimmer2.0
Brutto-Miete:€ 797,12
Betriebskosten (inkl. MwSt):€ 246,47
Mehrwertsteuer:€ 72,47
Monatliche Gesamtkosten:€ 797,12
Provision: Gemäß Erstauftraggeberprinzip bezahlt der Abgeber die Provision.




BESCHREIBUNG

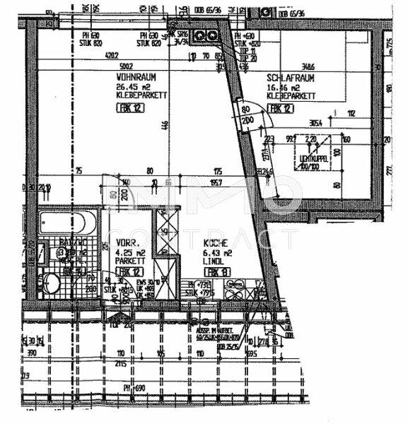
Sonnige 2-Zimmerwohnung in der Kaisergasse 12 - 14 - Top 20

Diese 2-Zimmerwohnung befindet sich in einer kleineren Wohnanlage in der Kaisergasse 12-14, Nähe der Donaulände. Die Wohnung liegt im 2. Obergeschoss (Lift vorhanden) und ist ausschließlich zum ruhigen Innenhof ausgerichtet..

Raumaufteilung: Vorraum, Bad/WC, Kochnische, Wohn- und Essbereich

Möbliert: Küche inkl. Geräte

Parken: Im Objekt gibt es Stapelparker/untere Plattform zur Anmietung (€ 79,00 / Monat) + Kaution / Provision / MV-Vergebührung.


 

Wir weisen darauf hin, dass zwischen dem Vermittler und dem zu vermittelnden Dritten ein familiäres oder wirtschaftliches Naheverhältnis besteht.

Der Immobilienmakler erklärt, dass er entgegen dem in der Immobilienwirtschaft üblichen Geschäftsgebrauch des Doppelmaklers einseitig nur für den Vermieter tätig ist.


Infrastruktur / Entfernungen

Gesundheit
Arzt <500m
Apotheke <500m
Klinik <500m
Krankenhaus <500m

Kinder & Schulen
Kindergarten <500m
Schule <500m
Universität <500m
Höhere Schule <500m

Nahversorgung
Supermarkt <500m
Bäckerei <500m
Einkaufszentrum <1.000m

Sonstige
Bank <500m
Geldautomat <500m
Post <500m
Polizei <1.000m

Verkehr
Bus <500m
Straßenbahn <1.000m
Bahnhof <1.000m
Autobahnanschluss <1.500m
Flughafen <3.500m

Angaben Entfernung Luftlinie / Quelle: OpenStreetMap

Provision: Gemäß Erstauftraggeberprinzip bezahlt der Abgeber die Provision.


Alle Details anzeigen

KONTAKT






 

Lasse dich kostenlos vom Anbieter dieser Immobilie zurückrufen.







 


 
IMMOcontract Immobilien Vermittlung GmbH
Klaus Egger
Telefonnummer anzeigen Telefon Allgemein: +4350450
Handy Bearbeiter: +43676841420424
 
Bitte dem Makler die FindMyHome.at - ID bekanntgeben: 5632671

Bewertungen dieses Anbieters
Netiquette

BEWERTUNGEN DIESES ANBIETERS

 
Netiquette
FINDMYHOME.AT
NETIQUETTE
Auch du kannst bewerten! 7 Tage nach deiner Anfrage erhältst du dafür von uns ein Bewertungsmail.
Alle Infos zu unseren Auszeichnungen und dem FINDMYHOME.AT Qualitätsprogramm findest du hier: Übersicht anzeigen


Du willst wissen, wie viel dein Umzug kosten wird?

Mach gleich den kostenlosen Preisvergleich und schau, welche seriösen Anbieter in deiner Region günstig deinen Umzug organisieren


ZUM UMZUGS-VERGLEICH
-->

MYHOME BLOG
SuchAgentin auf FindMyHome.at
Unterschiedlichen Rechtsthemen, köstliche Rezepte, neueste Design-Highlights, sowie aktuelle Technik-Tools für Ihr Eigenheim.


FINDMYHOME.AT SUCHAGENTIN
SuchAgentin auf FindMyHome.at
Hallo, soll ich dir ähnliche Immobilien kostenfrei per E-Mail schicken?


ÄHNLICHE IMMOBILIEN
Aehnliche Immobilie - Vorschaubild 1

Wohnen über den Dächern von Linz - ideale 2 Zi-Wohnung!... - Objektnr. 5624326

57,20 m² - 2.0 Zimmer
895.01 €
PLZ: 4020

Mehr anzeigen

Aehnliche Immobilie - Vorschaubild 2

Stilvolle 2-Zimmer Wohnung in der Museumstraße 15 zu vermiet... - Objektnr. 5606004

51,64 m² - 2.0 Zimmer
868 €
PLZ: 4020

Mehr anzeigen

Aehnliche Immobilie - Vorschaubild 3

Ruhig - hell - perfekt aufgeteilt - 2-Zimmer Wohnung mit kl.... - Objektnr. 5606427

53,77 m² - 2.0 Zimmer
836.85 €
PLZ: 4020

Mehr anzeigen

Durch die Nutzung unserer Seite erklären Sie sich mit der Verwendung von Cookies zur Verbesserung Ihres Online-Erlebnisses einverstanden. Detaillierte Informationen zu diesem und weiteren Themen erhalten Sie in unserer Datenschutzerklärung.