MEIN ERGEBNIS ANPASSEN

Lichtdurchfluteter 3-Zimmer Erstbezug mit Balkon - BEIM DONAUUFER - Objektnr. 5624868

1210
Ort
84,75 m²
Fläche
3.0
Zimmer

ECKDATEN
FindMyHome.at // Externe Immobilien-ID5624868 // 1939/216527
ImmobilienartEigentum
Anschrift1210 Wien
Baujahr2023
Stock5
Geschosse7
Fläche84,75 m²
Zimmer3.0
Bad1
WC1
 Abstellraum
Kaufpreis:€ 645.000,00
Ratenzahlung:Finanzierungsmöglichkeiten für diese Immobilie anzeigen
Provision: 3% des Kaufpreises zzgl. 20% USt.







BESCHREIBUNG

Lichtdurchfluteter 3-Zimmer Erstbezug mit Balkon - BEIM DONAUUFER

Bezugsfertiges Wohnen nahe der Alten Donau 

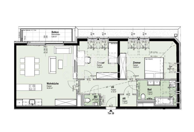
Willkommen in Ihrem neuen Zuhause: Diese helle 3-Zimmer-Wohnung im 1. Dachgeschoss überzeugt mit rund 85 m² Wohnfläche und einer durchdachten Raumaufteilung perfekt für Familien oder Pärchen, die großzügigen Wohnraum schätzen. Herzstück ist die großzügige, klimatisierte Wohnküche mit direktem Zugang zum Balkon, der zu entspannten Stunden einlädt. Zwei ebenfalls klimatisierte Zimmer, ein stilvolles Bad mit Doppelwaschbecken und Badewanne sowie ein separates WC und ein praktischer Abstellraum bieten höchsten Wohnkomfort. Ein Kellerabteil sorgt zusätzlich für wertvollen Stauraum.

Die Wohnung ist Teil des bereits fertiggestellten und sofort beziehbaren Projekts BEIM DONAUUFER, das modernes Eigentum mit hoher Lebensqualität verbindet. Nur wenige Gehminuten vom Ufer der Alten Donau entfernt, vereint das Projekt naturnahe Erholung, zeitgemäße Architektur und eine ausgezeichnete Anbindung.

Die 92 hochwertigen Eigentumswohnungen, verteilt auf zwei Stiegen, bieten durchdachte Grundrisse, helle Räume und vielfältige Wohnungsgrößen vom kompakten Studio bis zur großzügigen Vierzimmer-Familienwohnung. Freiflächen wie Loggien, Balkone, Terrassen oder Eigengärten erweitern den Wohnraum ins Freie und bieten private Rückzugsorte mit hoher Lebensqualität. Zusätzlich schafft ein vielseitig nutzbarer Gemeinschaftsraum mit Garten, Urban-Gardening-Beeten und Aufenthaltsbereichen sowie vollausgestatteter Küche Raum für Begegnung und Nachbarschaft. 

BEIM DONAUUFER steht für nachhaltiges Wohnen mit Zukunft. Das Gebäude entspricht der Energieklasse A, gilt damit als Niedrigenergiehaus und wurde DGNB Gold zertifiziert. Die energieeffiziente Bauweise, angenehme Fußbodenheizung mittels Fernwärme, Photovoltaikanlage am Dach sowie langlebige Qualitätsmaterialien aus Österreich sorgen für ein verantwortungsbewusstes Wohnkonzept und langfristige Wertbeständigkeit attraktiv für Eigennutzer ebenso wie für Anleger.

Projekthighlits im Überblick 

  • Erstbezug - bereits fertiggestellt und sofort bezugsbereit
  • Private Freiflächen mit Wasseranschlüssen (Loggia, Balkon, Terrasse oder Eigengarten)
  • Eichenparkettböden aus österreichischer Produktion
  • Hochwertige Feinsteinfliesen und Markensanitäranlagen (Dornbracht, Laufen "pro")
  • Angenehme Fußbodenheizung mittels Fernwärme
  • Photovoltaikanlage für Allgemeinflächen
  • Außenliegender, elektrischer Sonnenschutz
  • Klimatisierung im Dachgeschoß
  • Videogegensprechanlage
  • Paketboxanlage und digitales Schwarzes Brett
  • Zwei Stiegenhäuser mit moderner Aufzugsanlage
  • Hauseigene Tiefgarage mit 41 PKW-Stellplätzen (inkl. Vorbereitung für E-Ladestationen) sowie Motorradabstellplätzen
  • Großzügiger Gemeinschaftsraum mit Garten, Küche, Spiel- und Freizeitbereichen
  • Kinderwagen- und Fahrradraum, Einlagerungsräume zu jeder Wohnung
  • Nachhaltige Bauweise Energieklasse A / Niedrigenergiehaus, DGNB Gold zertifiziert

 

Bei Interesse oder für die Vereinbarung eines Besichtigungstermins kontaktieren Sie mich jederzeit gerne unter:

Tel: 0664 88271745, Mail: 

Wir weisen darauf hin, dass zwischen dem Vermittler und dem zu vermittelnden Dritten ein familiäres oder wirtschaftliches Naheverhältnis besteht.

Der Vermittler ist als Doppelmakler tätig.


Infrastruktur / Entfernungen

Gesundheit
Arzt <500m
Apotheke <500m
Klinik <500m
Krankenhaus <1.500m

Kinder & Schulen
Schule <500m
Kindergarten <500m
Universität <500m
Höhere Schule <500m

Nahversorgung
Supermarkt <500m
Bäckerei <500m
Einkaufszentrum <500m

Sonstige
Geldautomat <500m
Bank <500m
Post <500m
Polizei <1.000m

Verkehr
Bus <500m
U-Bahn <500m
Straßenbahn <500m
Bahnhof <500m
Autobahnanschluss <1.000m

Angaben Entfernung Luftlinie / Quelle: OpenStreetMap

Rollstuhlgerecht: JA
Barrierefrei: JA
Provision: 3% des Kaufpreises zzgl. 20% USt.


Alle Details anzeigen

KONTAKT






 

Lasse dich kostenlos vom Anbieter dieser Immobilie zurückrufen.







 


 
IMMOcontract Immobilien Vermittlung GmbH
Zuzanna Mazurek, MA
Telefonnummer anzeigen Telefon Allgemein: +4366488271745
Handy Bearbeiter: +4366488271745
 
Bitte dem Makler die FindMyHome.at - ID bekanntgeben: 5624868

Bewertungen dieses Anbieters
Netiquette

BEWERTUNGEN DIESES ANBIETERS

 
Netiquette
FINDMYHOME.AT
NETIQUETTE
Auch du kannst bewerten! 7 Tage nach deiner Anfrage erhältst du dafür von uns ein Bewertungsmail.
Alle Infos zu unseren Auszeichnungen und dem FINDMYHOME.AT Qualitätsprogramm findest du hier: Übersicht anzeigen

FINANZIERUNG
?>

Du willst wissen, wie viel dein Umzug kosten wird?

Mach gleich den kostenlosen Preisvergleich und schau, welche seriösen Anbieter in deiner Region günstig deinen Umzug organisieren


ZUM UMZUGS-VERGLEICH
-->

MYHOME BLOG
SuchAgentin auf FindMyHome.at
Unterschiedlichen Rechtsthemen, köstliche Rezepte, neueste Design-Highlights, sowie aktuelle Technik-Tools für Ihr Eigenheim.


FINDMYHOME.AT SUCHAGENTIN
SuchAgentin auf FindMyHome.at
Hallo, soll ich dir ähnliche Immobilien kostenfrei per E-Mail schicken?


ÄHNLICHE IMMOBILIEN
Aehnliche Immobilie - Vorschaubild 1

ERSTBEZUG nach Sanierung | Außergewöhnliches Loft mit Raumhö... - Objektnr. 4927459

95,21 m² - 2.0 Zimmer
545000 €
PLZ: 1210

Mehr anzeigen

Aehnliche Immobilie - Vorschaubild 2

Coming soon: SIEGFRIED63 | Naturnah wohnen, urban leben!... - Objektnr. 5565109

98,21 m² - 4.0 Zimmer
620000 €
PLZ: 1210

Mehr anzeigen

Aehnliche Immobilie - Vorschaubild 3

"DONAU PERLE" EXKLUSIV WOHNEN AM PARK - TERRASSENWOHNUNG MIT... - Objektnr. 5536234

91,31 m² - 4.0 Zimmer
709000 €
PLZ: 1210

Mehr anzeigen

Durch die Nutzung unserer Seite erklären Sie sich mit der Verwendung von Cookies zur Verbesserung Ihres Online-Erlebnisses einverstanden. Detaillierte Informationen zu diesem und weiteren Themen erhalten Sie in unserer Datenschutzerklärung.