MEIN ERGEBNIS ANPASSEN

NEU! FAMILIENTRAUM 6 ZIMMER GARTEN TERRASSE PKW-STELLPLÄTZE NÄHE LOBAU LUFTWÄRMEPUMPE 1220 WIEN - Objektnr. 5621848


ökologisch beheizt
1220
Ort
105,40 m²
Fläche
6.0
Zimmer

ECKDATEN
FindMyHome.at // Externe Immobilien-ID5621848 // 28431
ImmobilienartHaus - Eigentum
Anschrift/1
1220 Wien
Baujahr2026
Befeuerung
Luftwärmepumpe
Geschosse3
Fläche105,40 m²
Terrassen1
Zimmer6.0
WC3
Kaufpreis:€ 549.000,00
Ratenzahlung:Finanzierungsmöglichkeiten für diese Immobilie anzeigen
Provision: 3% des Kaufpreises zzgl. 20% USt.







BESCHREIBUNG

NEU! FAMILIENTRAUM 6 ZIMMER GARTEN TERRASSE PKW-STELLPLÄTZE NÄHE LOBAU LUFTWÄRMEPUMPE 1220 WIEN

  • PERFEKT FÜR FAMILIEN UND HOME OFFICE:

Wir haben die bisherigen Wünsche unserer zahlreichen Kunden genau analysiert und diese sorgfältig in unser neuestes Projekt integriert.

Das Ergebnis ist ein auch für junge Familien gut leistbares Haus, das ausreichend Platz für Kinder, Homeoffice sowie zusätzlichen Stauraum bietet.

Das Grundstück steht im Eigentum, sodass keine monatlichen, inflationsindexierten Pacht- oder Baurechtsgebühren anfallen, die eine zukünftige Vermietung oder einen Weiterverkauf erschweren könnten. 

Um das Hausbudget nach dem Kauf langfristig zu entlasten, wird eine energieeffiziente Luftwärmepumpe mit Fußbodenheizung und -kühlung installiert, ergänzt durch eine Photovoltaikanlage am Dach.

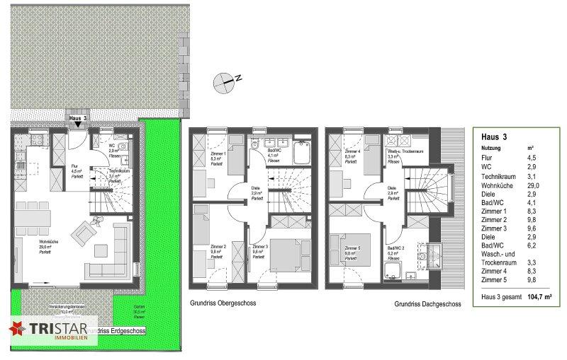
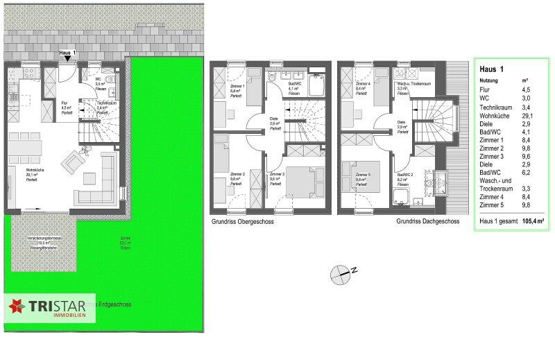
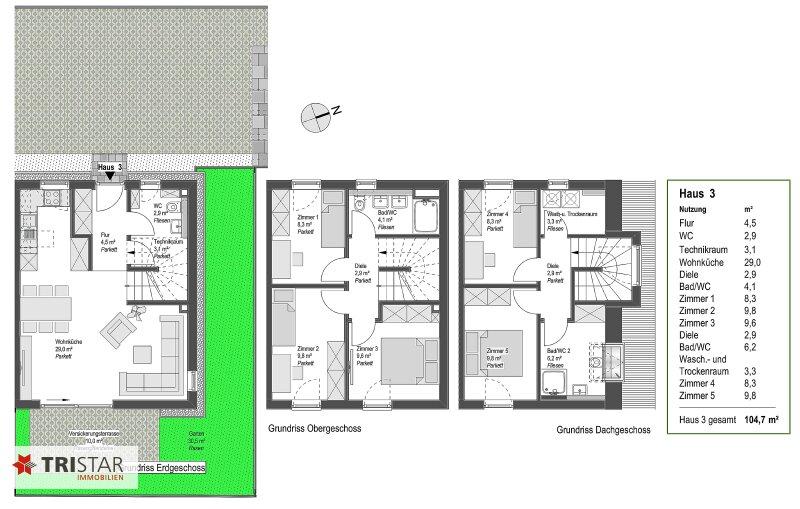
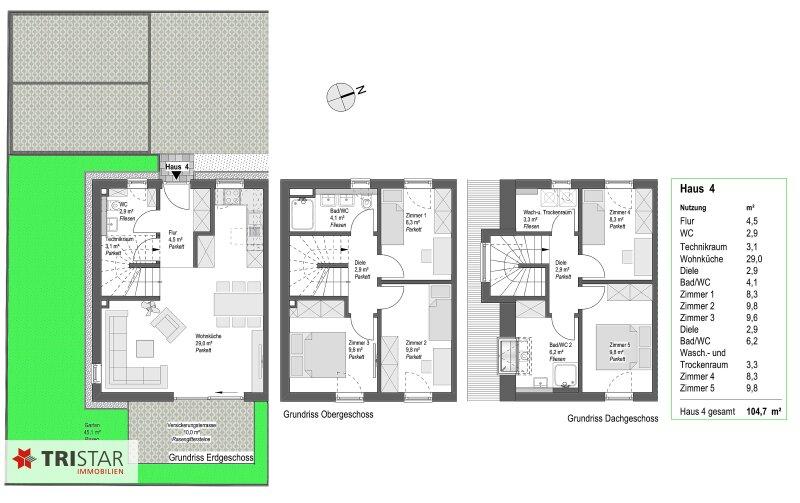
  • GARTEN / ERDGESCHOSS / OBERGESCHOSS / DACHGESCHOSS:

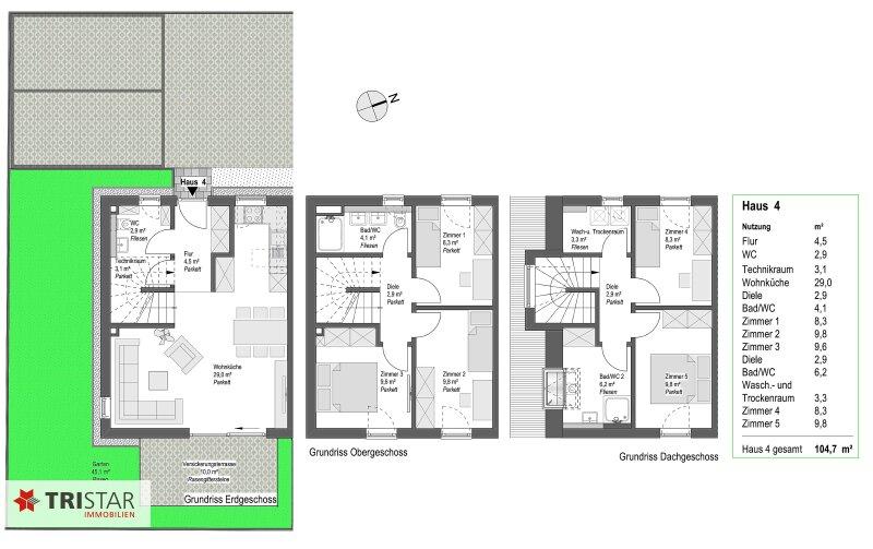
6 Zimmer, (WNFL ca. 105,40 m²), Eigengarten (ca. 83 m²), Terrasse, PKW-Stellplatz.

Erdgeschoss: Helle Wohnküche (ca. 29 m²) mit direktem Zugang zur Terrasse und in den Garten, WC, Technikraum, Flur.

Obergeschoss: 3 Schlafzimmer, Badezimmer, Flur.

Dachgeschoss: 2 Schlafzimmer, Badezimmer, Abstellraum, Diele.

  • KAUFPREIS / ZUSTAND:

Um die größtmögliche individuelle Gestaltungsfreiheit zu gewährleisten, werden die Häuser vorerst belagsfertig zu einem Preis von EUR 549.000 angeboten.

Der Käufer kann die Fertigstellung entweder in Eigenregie durchführen oder gegen einen Aufpreis von rund EUR 50.000 direkt vom Bauträger bis zum schlüsselfertigen Zustand beauftragen inklusive Materialien und Farbgestaltung nach eigenem Geschmack.

  • FOTOS:

Die Fotos sind Symbolfotos (Referenzprojekt) aus einem bereits realisierten und verkauften Projekt des Bauträgers und dienen dazu, den schlüsselfertigen Zustand (ohne Küche) besser einschätzen zu können. 

  • LOBAU (Nationalpark Donau-Auen, Teilbereich Lobau):

Der Nationalpark Donau-Auen, Teilbereich Lobau, ist in etwa sechs Minuten mit dem Fahrrad erreichbar somit wird jeder Ausflug mit der Familie zu einem unvergesslichen Naturerlebnis. Das weitläufige Erholungsgebiet eignet sich ideal für Spaziergänge, Radtouren sowie Ausflüge mit dem Kinderwagen.

  • ENERGIEEFFIZIENT UND NACHHALTIG:

Luft-Wärmepumpe für Heizen und Kühlen über den Fußboden

3-fach isolierverglaste Fenster

Außenliegender Sonnenschutz

Sorgt für niedrige Betriebskosten und hohen Wohnkomfort.

  • LAGE UND INFRASTRUKTUR / VERKEHRSANBINDUNG:

Ein detailliertes Lageexposé (48 Seiten) steht nach Anfrage zum Download bereit.

NEU! FAMILIENTRAUM 6 ZIMMER GARTEN TERRASSE PKW-STELLPLÄTZE NÄHE LOBAU LUFTWÄRMEPUMPE 1220 WIEN

Wir weisen darauf hin, dass zwischen dem Vermittler und dem zu vermittelnden Dritten ein familiäres oder wirtschaftliches Naheverhältnis besteht.

Der Vermittler ist als Doppelmakler tätig.

Objekt ist für eine Wohngemeinschaft geeignet
Klimaanlage: JA
Gartennutzung: JA
Provision: 3% des Kaufpreises zzgl. 20% USt.


Alle Details anzeigen

KONTAKT






 

Lasse dich kostenlos vom Anbieter dieser Immobilie zurückrufen.







 


 
TRISTAR Immobilien
TRISTAR Immobilien
Telefonnummer anzeigen Handy Bearbeiter: +436769017374
 
Bitte dem Makler die FindMyHome.at - ID bekanntgeben: 5621848

Bewertungen dieses Anbieters
Qualitätsmakler
Qualitätsmakler:
2017, 2019, 2020, 2021,
Netiquette
Freundlichkeit

BEWERTUNGEN DIESES ANBIETERS

 
Qualit�tsmakler
Qualitätsmakler
2017, 2019, 2020, 2021
Freundlichkeit
BESONDERS
FREUNDLICH
Netiquette
FINDMYHOME
NETIQUETTE
Auch du kannst bewerten! 7 Tage nach deiner Anfrage erhältst du dafür von uns ein Bewertungsmail.
Alle Infos zu unseren Auszeichnungen und dem FINDMYHOME.AT Qualitätsprogramm findest du hier: Übersicht anzeigen

FINANZIERUNG
?>

Du willst wissen, wie viel dein Umzug kosten wird?

Mach gleich den kostenlosen Preisvergleich und schau, welche seriösen Anbieter in deiner Region günstig deinen Umzug organisieren


ZUM UMZUGS-VERGLEICH
-->

MYHOME BLOG
SuchAgentin auf FindMyHome.at
Unterschiedlichen Rechtsthemen, köstliche Rezepte, neueste Design-Highlights, sowie aktuelle Technik-Tools für Ihr Eigenheim.


FINDMYHOME.AT SUCHAGENTIN
SuchAgentin auf FindMyHome.at
Hallo, soll ich dir ähnliche Immobilien kostenfrei per E-Mail schicken?


ÄHNLICHE IMMOBILIEN
Aehnliche Immobilie - Vorschaubild 1

Ein Haus für kreative Köpfe - Objektnr. 5593222


95,00 m² - 4 Zimmer
650000 €
PLZ: 1220

Mehr anzeigen

Aehnliche Immobilie - Vorschaubild 2

"Neu! Doppelhaushälfte Breitenlee-Neuessling-Aspern-See... - Objektnr. 5565788

107,00 m² - 4.0 Zimmer
587000 €
PLZ: 1220

Mehr anzeigen

Aehnliche Immobilie - Vorschaubild 3

Ihr neues Zuhause: Exklusives 3-Zimmer-Townhouse mit Eigenga... - Objektnr. 5608059

86,32 m² - 3.0 Zimmer
542000 €
PLZ: 1220

Mehr anzeigen

Durch die Nutzung unserer Seite erklären Sie sich mit der Verwendung von Cookies zur Verbesserung Ihres Online-Erlebnisses einverstanden. Detaillierte Informationen zu diesem und weiteren Themen erhalten Sie in unserer Datenschutzerklärung.