MEIN ERGEBNIS ANPASSEN

Sanierungsbedürftige 3,5-Zimmer-Wohnung mit traumhaften Ausblick in Gersthof - Objektnr. 5617512

1180
Ort
93,42 m²
Fläche
3.5
Zimmer

ECKDATEN
FindMyHome.at // Externe Immobilien-ID5617512 // 16187
ImmobilienartWohnung - Eigentum
Anschrift1180 Wien
Befeuerung
Geschosse3
Fläche93,42 m²
Zimmer3.5
Bad1
WC1
Kaufpreis:€ 614.314,00
Ratenzahlung:Finanzierungsmöglichkeiten für diese Immobilie anzeigen
Provision: 3% des Kaufpreises zzgl. 20% USt.







BESCHREIBUNG

Sanierungsbedürftige 3,5-Zimmer-Wohnung mit traumhaften Ausblick in Gersthof

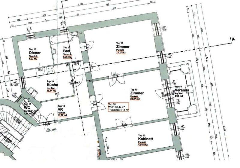
Diese 3-Zimmer-Wohnung befindet sich in begehrter Lage im 18. Wiener Gemeindebezirk und bietet eine interessante Gelegenheit für Käufer, die eine Immobilie nach eigenen Vorstellungen gestalten möchten. Die Wohnung liegt im 2. Obergeschoß eines gepflegten Altbaus ohne Lift und verfügt über eine großzügige Wohnfläche von 93,44 m².

Die Raumaufteilung ist funktional und gut durchdacht:
Über den Vorraum gelangt man in das Wohnzimmer mit Zugang auf den Südbalkon. Rechts davon befindet sich ein weiteres, kleineres Zimmer, links ein Schlafzimmer. Vom Vorraum aus sind außerdem die Küche mit separater Speis, das Badezimmer sowie eine separate Toilette erreichbar. Vom Badezimmer aus gelangt man zusätzlich in das große Schlafzimmer.

Die hellen Räume bieten eine sehr gute Basis für eine individuelle Sanierung und Modernisierung. Die Wohnung ist sanierungsbedürftig und eröffnet dadurch entsprechendes Wertsteigerungspotenzial.

Ein besonderer Mehrwert ergibt sich aus der bereits erteilten Bewilligung für einen Dachgeschossausbau inklusive Erwerb des Dachgeschosses. Im Zuge dieses DG-Ausbaus ist auch der Einbau eines Liftes vorgesehen, was den Wohnkomfort und den langfristigen Wert der Liegenschaft zusätzlich erhöht.

Das Haus wird bis Sommer umfassend saniert. Die Kosten hierfür tragt der Verkäufer. Die Sanierungsmaßnahmen umfassen die Allgemeinteile unter anderem:

  • das Stiegenhaus,

  • die Fassade,

  • die Dachverblechung,

  • neu errichtete Kellerabteile für jede Einheit,

  • sowie die Erneuerung des Zaunsockels.

Die Verkehrsanbindung ist ausgezeichnet: Bus, Straßenbahn und Zug sind fußläufig erreichbar und ermöglichen eine schnelle Anbindung in alle Teile der Stadt. Auch die Infrastruktur überzeugt Ärzte, Apotheken, Kliniken, Schulen, Supermärkte und Bäckereien befinden sich in unmittelbarer Nähe. Die Nähe zur Universität und zu höheren Schulen macht die Wohnung zudem für Studierende oder Akademiker attraktiv.

Der Kaufpreis beträgt € 614.315,.


Eine Besichtigung lohnt sich, um sich persönlich von Lage, Grundriss und Entwicklungspotenzial dieser Immobilie zu überzeugen.

 

 

Kontakt
Für weitere Informationen oder zur Vereinbarung eines Besichtigungstermins kontaktieren Sie bitte
Frau Julia Koch persönlich unter +43 660 664 7444 oder per E-Mail an koch@moritz-immobilien.at.

Unser Büro erreichen Sie unter office@moritz-immobilien.at.

 

  • Grunderwerbssteuer: 3.5% 
  • Grundbucheintragung Kosten: 1.1% 
  • Vertragserrichtungsgebuehr: ca. 1,2% des Kaufpreises zzgl. 20% USt. durch SRG Stock Rafaseder Gruszkiewicz Rechtsanwälte
  • Maklerprovision: 3% des Kaufpreises zzgl. 20% USt.

 

Maklervereinbarung: Wir ersuchen um Verständnis, dass wir bei Anfragen zur Objektadresse, bzw. Besichtigungstermin  aufgrund neuer gesetzlicher Bestimmungen Unterlagen erst dann zusenden können, wenn Sie vorab bestätigen, dass Sie unser sofortiges Tätigwerden wünschen und über Ihre Rücktrittsrechte aufgeklärt wurden. Sie bekommen nach Ihrer schriftlichen Anfrage mit vollständiger Angabe des Namens, Anschrift und Telefonnummer ein Email, in dem Sie diese Punkte bestätigen müssen.


Haftungsausschluss:  Wir weisen darauf hin, dass sämtliche Daten im vorliegenden Angebot sowie die von unserem Büro an Sie weitergegebenen Auskünfte, vom Eigentümer der Immobilie zur Verfügung gestellt wurden. Ebenso sind Informationen von Dritten (z.B. behördliche Informationen) eingeholt worden, auch für diese können wir unsererseits keinerlei Haftung für deren uneingeschränkte Richtigkeit übernehmen.

Wir weisen darauf hin, dass zwischen dem Vermittler und dem zu vermittelnden Dritten ein familiäres oder wirtschaftliches Naheverhältnis besteht.


Infrastruktur / Entfernungen

Gesundheit
Arzt <500m
Apotheke <500m
Klinik <500m
Krankenhaus <1.500m

Kinder & Schulen
Schule <500m
Kindergarten <500m
Universität <1.000m
Höhere Schule <1.000m

Nahversorgung
Supermarkt <500m
Bäckerei <500m
Einkaufszentrum <2.000m

Sonstige
Geldautomat <500m
Bank <500m
Post <500m
Polizei <1.000m

Verkehr
Bus <500m
U-Bahn <1.500m
Straßenbahn <500m
Bahnhof <1.000m
Autobahnanschluss <3.500m

Angaben Entfernung Luftlinie / Quelle: OpenStreetMap

Provision: 3% des Kaufpreises zzgl. 20% USt.


Alle Details anzeigen

KONTAKT






 

Lasse dich kostenlos vom Anbieter dieser Immobilie zurückrufen.







 


 
Moritz Immobilien
Julia Koch
Telefonnummer anzeigen Telefon Allgemein: +436606647444
 
Bitte dem Makler die FindMyHome.at - ID bekanntgeben: 5617512

Bewertungen dieses Anbieters
Netiquette
Freundlichkeit
100 %

BEWERTUNGEN DIESES ANBIETERS

 
Weiterempfehlung
WIRD SEHR GERNE

Freundlichkeit
BESONDERS
FREUNDLICH
Netiquette
FINDMYHOME
NETIQUETTE
Auch du kannst bewerten! 7 Tage nach deiner Anfrage erhältst du dafür von uns ein Bewertungsmail.
Alle Infos zu unseren Auszeichnungen und dem FINDMYHOME.AT Qualitätsprogramm findest du hier: Übersicht anzeigen

FINANZIERUNG
?>

Du willst wissen, wie viel dein Umzug kosten wird?

Mach gleich den kostenlosen Preisvergleich und schau, welche seriösen Anbieter in deiner Region günstig deinen Umzug organisieren


ZUM UMZUGS-VERGLEICH
-->

MYHOME BLOG
SuchAgentin auf FindMyHome.at
Unterschiedlichen Rechtsthemen, köstliche Rezepte, neueste Design-Highlights, sowie aktuelle Technik-Tools für Ihr Eigenheim.


FINDMYHOME.AT SUCHAGENTIN
SuchAgentin auf FindMyHome.at
Hallo, soll ich dir ähnliche Immobilien kostenfrei per E-Mail schicken?


ÄHNLICHE IMMOBILIEN
Aehnliche Immobilie - Vorschaubild 1

ALTBAU-TRAUM IN WÄHRING - 4 ZIMMER LIFT & BALKON KOMMEN! T... - Objektnr. 5596013

91,42 m² - 4.0 Zimmer
729000 €
PLZ: 1180

Mehr anzeigen

Aehnliche Immobilie - Vorschaubild 2

Neuer Preis-3,5-Zimmer-Altbauwohnung mit Loggia! - Objektnr. 5642354

90,69 m² - 3.5 Zimmer
599350 €
PLZ: 1180

Mehr anzeigen

Aehnliche Immobilie - Vorschaubild 3

Zeitlose Eleganz im Stilaltbau: Luxuriös sanierte Traumwohnu... - Objektnr. 5652883

106,30 m² - 4.0 Zimmer
725000 €
PLZ: 1180

Mehr anzeigen

Durch die Nutzung unserer Seite erklären Sie sich mit der Verwendung von Cookies zur Verbesserung Ihres Online-Erlebnisses einverstanden. Detaillierte Informationen zu diesem und weiteren Themen erhalten Sie in unserer Datenschutzerklärung.