MEIN ERGEBNIS ANPASSEN

Traumhafte 4-Zimmer-Wohnung in 1030 Wien Top-Ausstattung und U-Bahn-Nähe! - Objektnr. 5617511


ökologisch beheizt
1030
Ort
€ 2.799,99
Gesamtkosten
143,68 m²
Fläche
4.0
Zimmer

ECKDATEN
FindMyHome.at // Externe Immobilien-ID5617511 // 16189
ImmobilienartWohnung - Miete
AnschriftReisnerstraße
1030 Wien
Baujahr1974
Befeuerung
Fernwärme
Stock5
Mietdauer5
Fläche143,68 m²
Zimmer4.0
Bad2
WC2
Brutto-Miete:€ 2.799,99
Betriebskosten (inkl. MwSt):€ 366,99
Mehrwertsteuer:€ 254,54
Monatliche Gesamtkosten:€ 2.799,99
Provision: Gemäß Erstauftraggeberprinzip bezahlt der Abgeber die Provision.




BESCHREIBUNG

Traumhafte 4-Zimmer-Wohnung in 1030 Wien Top-Ausstattung und U-Bahn-Nähe!

Großzügige 4-Zimmer-Wohnung mit Kabinett in zentraler Lage 1030 Wien

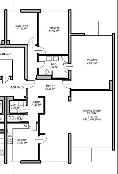
Zur Vermietung gelangt eine großzügige Wohnung im 5. Obergeschoss eines modernen Wohnhauses im 3. Wiener Gemeindebezirk. Die Wohnung verfügt über eine Wohnfläche von ca. 143,68 m² und befindet sich in zentraler Lage mit sehr guter Infrastruktur.


Objektbeschreibung

Die Wohnung befindet sich in einem gepflegten Erhaltungszustand und zeichnet sich durch helle, großzügige Räume aus. Die Wohn- und Aufenthaltsräume sind mit Parkettböden ausgestattet, die Sanitärräume mit Fliesen.

Die Küche ist separat ausgeführt und nicht in den Wohnbereich integriert. Eine Wohnküche ist nicht vorhanden.

Der Eingangsbereich verfügt über eine Garderobe. Das Badezimmer ist mit Dusche und Waschbecken ausgestattet. Die Toilette ist separat angeordnet.

Der großzügige Wohnraum bildet den Mittelpunkt der Wohnung. Ergänzend stehen zwei weitere Zimmer sowie ein Kabinett zur Verfügung, die flexibel als Schlaf-, Arbeits- oder Gästezimmer genutzt werden können.

Die Beheizung erfolgt zentral. Ein Personenaufzug ist vorhanden und ermöglicht einen komfortablen Zugang zur Wohnung.


Raumaufteilung (ca. 143,68 m²)

  • Vorraum mit Garderobenbereich

  • Separate Küche mit Einbauküche

  • Großes Wohnzimmer

  • Zwei Zimmer

  • Kabinett

  • Badezimmer mit Dusche und Waschbecken

  • Separate Toilette


Lage

Die Liegenschaft befindet sich im 3. Wiener Gemeindebezirk in zentraler innerstädtischer Lage. Die Umgebung verfügt über eine sehr gute Infrastruktur mit Nahversorgung, medizinischer Betreuung und Bildungseinrichtungen.


Verkehrsanbindung

  • U-Bahn (U3, U4)

  • S-Bahn Wien Mitte

  • Bus- und Straßenbahnlinien

  • Bahnhof in fußläufiger Entfernung

  • Gute Anbindung an das Straßennetz

 

  • Tiefgaragenstellplatz (optional): € 140 zzgl. 20 % USt

Wir möchten Sie höflichst darauf hinweisen, dass der Mietvertrag jährlich an den Verbraucherpreisindex angepasst wird. 

 

Nebenkosten:

  • 3 Bruttomonatsmieten Kaution

 

Kontakt
Für weitere Informationen oder zur Vereinbarung eines Besichtigungstermins kontaktieren Sie bitte
Frau Julia Koch persönlich unter +43 660 664 7444 oder per E-Mail an koch@moritz-immobilien.at.

Unser Büro erreichen Sie unter office@moritz-immobilien.at.

 

Maklervereinbarung: Wir ersuchen um Verständnis, dass wir bei Anfragen zur Objektadresse, bzw. Besichtigungstermin  aufgrund neuer gesetzlicher Bestimmungen Unterlagen erst dann zusenden können, wenn Sie vorab bestätigen, dass Sie unser sofortiges Tätigwerden wünschen und über Ihre Rücktrittsrechte aufgeklärt wurden. Sie bekommen nach Ihrer schriftlichen Anfrage mit vollständiger Angabe des Namens, Anschrift und Telefonnummer ein Email, in dem Sie diese Punkte bestätigen müssen.


Haftungsausschluss:  Wir weisen darauf hin, dass sämtliche Daten im vorliegenden Angebot sowie die von unserem Büro an Sie weitergegebenen Auskünfte, vom Eigentümer der Immobilie zur Verfügung gestellt wurden. Ebenso sind Informationen von Dritten (z.B. behördliche Informationen) eingeholt worden, auch für diese können wir unsererseits keinerlei Haftung für deren uneingeschränkte Richtigkeit übernehmen.

Wir weisen darauf hin, dass zwischen dem Vermittler und dem zu vermittelnden Dritten ein familiäres oder wirtschaftliches Naheverhältnis besteht.

Der Immobilienmakler erklärt, dass er entgegen dem in der Immobilienwirtschaft üblichen Geschäftsgebrauch des Doppelmaklers einseitig nur für den Vermieter tätig ist.


Infrastruktur / Entfernungen

Gesundheit
Arzt <250m
Apotheke <500m
Klinik <250m
Krankenhaus <500m

Kinder & Schulen
Schule <500m
Kindergarten <250m
Universität <250m
Höhere Schule <1.000m

Nahversorgung
Supermarkt <250m
Bäckerei <250m
Einkaufszentrum <750m

Sonstige
Geldautomat <500m
Bank <500m
Post <250m
Polizei <500m

Verkehr
Bus <250m
U-Bahn <500m
Straßenbahn <500m
Bahnhof <500m
Autobahnanschluss <2.500m

Angaben Entfernung Luftlinie / Quelle: OpenStreetMap

Provision: Gemäß Erstauftraggeberprinzip bezahlt der Abgeber die Provision.


Alle Details anzeigen

KONTAKT






 

Lasse dich kostenlos vom Anbieter dieser Immobilie zurückrufen.







 


 
Moritz Immobilien
Julia Koch
Telefonnummer anzeigen Telefon Allgemein: +436606647444
 
Bitte dem Makler die FindMyHome.at - ID bekanntgeben: 5617511

Bewertungen dieses Anbieters
Netiquette
Freundlichkeit
100 %

BEWERTUNGEN DIESES ANBIETERS

 
Weiterempfehlung
WIRD SEHR GERNE

Freundlichkeit
BESONDERS
FREUNDLICH
Netiquette
FINDMYHOME
NETIQUETTE
Auch du kannst bewerten! 7 Tage nach deiner Anfrage erhältst du dafür von uns ein Bewertungsmail.
Alle Infos zu unseren Auszeichnungen und dem FINDMYHOME.AT Qualitätsprogramm findest du hier: Übersicht anzeigen


Du willst wissen, wie viel dein Umzug kosten wird?

Mach gleich den kostenlosen Preisvergleich und schau, welche seriösen Anbieter in deiner Region günstig deinen Umzug organisieren


ZUM UMZUGS-VERGLEICH
-->

MYHOME BLOG
SuchAgentin auf FindMyHome.at
Unterschiedlichen Rechtsthemen, köstliche Rezepte, neueste Design-Highlights, sowie aktuelle Technik-Tools für Ihr Eigenheim.


FINDMYHOME.AT SUCHAGENTIN
SuchAgentin auf FindMyHome.at
Hallo, soll ich dir ähnliche Immobilien kostenfrei per E-Mail schicken?


ÄHNLICHE IMMOBILIEN
Aehnliche Immobilie - Vorschaubild 1

Luxus trifft Geschichte: Ihr neues Zuhause im Herzen Wiens... - Objektnr. 5530424

150,50 m² - 4.0 Zimmer
3162.01 €
PLZ: 1030

Mehr anzeigen

Aehnliche Immobilie - Vorschaubild 2

Stilvolle 4-Zimmer-Altbauwohnung mit 132 m² und hochwertiger... - Objektnr. 5627661

131,98 m² - 4.0 Zimmer
2828.07 €
PLZ: 1030

Mehr anzeigen

Aehnliche Immobilie - Vorschaubild 3

STILALTBAU BEIM STADTPARK - 4 ZIMMER - Objektnr. 5607929


139,71 m² - 4.0 Zimmer
2469.51 €
PLZ: 1030

Mehr anzeigen

Durch die Nutzung unserer Seite erklären Sie sich mit der Verwendung von Cookies zur Verbesserung Ihres Online-Erlebnisses einverstanden. Detaillierte Informationen zu diesem und weiteren Themen erhalten Sie in unserer Datenschutzerklärung.