Im Falle der Notwendigkeit einer Fremdfinanzierung Ihrer Wunschimmobilie ermittelt unser Wohnbau-Finanzierungsexperte gerne die optimale Finanzierungslösung und findet das passende Zins- und Konditionsangebot für Sie. Er vergleicht die aktuellen Angebote aller relevanten Banken und Bausparkassen. Der Angebotsvergleich kann aus einem Portfolio von über 120 Banken erfolgen. Das Erstgespräch ist für Sie kostenfrei und unverbindlich, gerne auch bei Ihnen vor Ort. So sparen Sie Ihre wertvolle Zeit und erhalten eine professionelle und unabhängige Finanzierungslösung vom Spezialisten. Sprechen Sie uns wegen eines Termins gerne an!
Zum Verkauf gelangt ein 2- Zimmer Apartement in einem erlesenen Projekt:
Nur fünf Fahrminuten von der Autobahn entfernt, eröffnet sich eine neue Welt: Inmitten der Weinberge, mit Blick auf die Hügellandschaft steht das Architekturjuwel seit 2007, das sich mit seiner geradlinigen Form perfekt in die Gegend einbettet. Die moderne Fassade schafft einen spannenden Kontrast zur Natur. Nun wird der Bestand mit viel Feingefühl vom renommierten Architekturbüro Goebl Architecture erweitert. Sie genießen Ihr Apartment mit allen Annehmlichkeiten mit Nutzung des Relax-Bereichs, Infinity-Pools, Fitness-Bereichs etc. exklusiv in einer der schönsten Regionen Österreichs.
Zu dem Kaufpreis kommen noch 20% Ust. hinzu.
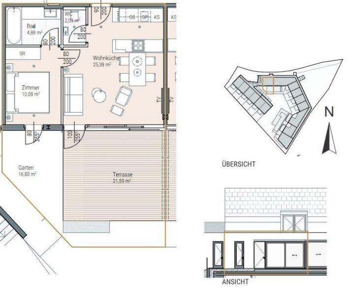
Das traumhafte Appartement weist eine Gesamtfläche von ca. 42 m² auf. Die Wohnfläche erstreckt sich über eine Wohnküche, ein Zimmer, ein Badezimmer sowie ein separates WC. Zusätzlich dazu verfügt die Wohnung über eine Terrasse sowie einen Garten. Ein Kellerabteil steht Ihnen ebenfalls zur Verfügung. Beheizt wird mittels Pellets. Die Wohnung ist vollklimatisiert.
Sie betreten die exquisite Residenz und befinden sich sofort im wichtigesten Wohlfühlraum des Apartments, der Wohnküche, welche ca. 25,38 m² aufweist und einen Blick auf Ihre Terrasse mit ca. 21,59 m² und die umliegenden Weinberge bietet. Unmittelbar neben der Eingangstüre befindet sich eine separate Toilette und der Eingang zum Schlafzimmer mit ca. 10 m² und Blick in den eigenen Garten. Von hier aus gelangen Sie ins Badezimmer, welches mit einer Badewanne ausgestattet ist. Ihr eigener Garten mit ca. 16,80 m² gehört zum Apartement dazu, der Blick dahinter in die Region ist wesentlich umfangreicher wie auch atemberaubend.
Wie ein perfekt ausbalancierter Wein gibt es im Living Cuvée - Paket eine Mischung der Nutzung Ihrer Immobilie: Zusätzlich zum Living Deluxe organisiert der Betreiber und Kooperationspartner die Vermietung Ihrer Einheit. Sie entscheiden dabei, wann und wie oft Sie vermieten möchten.
Es besteht die Möglichkeit einen PKW-Stellplatz in der Höhe von 16.700 € zu erwerben.
Gerne lassen wir Ihnen bei ernsthaftem Interesse - vor Kaufanbotlegung - weitere vertraulichen Dokumente zu dieser Liegenschaft zukommen, welche nicht veröffentlicht werden dürfen.
Überzeugen Sie sich selbst von diesem überaus attraktiven Objekt. Für Besichtigungen und nähere Informationen stehen wir Ihnen gerne zur Verfügung!
Mag. Viola Wasmuth
national - Tel: 0670 4039361
international - Tel: +43 670 4039361
e-mail:
Der Vermittler ist als Doppelmakler tätig.
Infrastruktur / Entfernungen
Gesundheit
Arzt <2.500m
Apotheke <2.500m
Kinder & Schulen
Schule <2.500m
Kindergarten <2.500m
Nahversorgung
Supermarkt <2.000m
Bäckerei <5.000m
Einkaufszentrum <7.000m
Sonstige
Geldautomat <3.000m
Bank <3.000m
Post <2.500m
Polizei <2.500m
Verkehr
Bus <2.500m
Autobahnanschluss <2.000m
Bahnhof <2.500m
Angaben Entfernung Luftlinie / Quelle: OpenStreetMap
Klimaanlage: JA
Gartennutzung: JA
Swimmingpool: JA
Rollstuhlgerecht: JA
Barrierefrei: JA
Provision: 3% des Kaufpreises zzgl. 20% USt.