MEIN ERGEBNIS ANPASSEN

Investieren in Lebensqualität: Vermietbare Wohnungen in der idyllischen Marktgemeinde Kaltenleutgeben - Objektnr. 5612466


ökologisch beheizt
2391
Ort
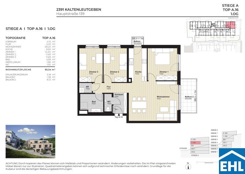
93,34 m²
Fläche
4.0
Zimmer
WEITERE MEDIEN

ECKDATEN
FindMyHome.at // Externe Immobilien-ID5612466 // 83177
ImmobilienartAnlage-Vorsorgewohnung - Eigentum
AnschriftHauptstraße/16
2391 Kaltenleutgeben
Baujahr2022
Befeuerung
Luftwärmepumpe
Stock1
Fläche93,34 m²
Zimmer4.0
Bad1
WC1
 Abstellraum
Kaufpreis:€ 449.074,07
Ratenzahlung:Finanzierungsmöglichkeiten für diese Immobilie anzeigen
Provision: Provisionsfrei für den Käufer!







BESCHREIBUNG

Investieren in Lebensqualität: Vermietbare Wohnungen in der idyllischen Marktgemeinde Kaltenleutgeben

Kaltenleutgeben Die Ruhe des Wienerwalds

Nähere Details finden Sie auf unserer Projekthomepage.


Dieses neu fertiggestellte Wohnprojekt liegt mitten im malerischen Wienerwald und verbindet eine ideale Kombination aus naturnaher Umgebung und der Nähe zu Wien. Insgesamt befinden sich 39 Vorsorgewohnungen mit großzügigen Freiflächen auf zwei Bauteilen. Beide Bauteile sind mit der Tiefgarage verbunden, zusätzlich steht eine große Gemeinschaftsterrasse zur Verfügung.

Nachhaltig investieren Ihr Vorsorgeprojekt


Im Sinne der Ökologisierung, Ressourcenschonung und Kreislaufwirtschaft steht die "Greenline" für Nachhaltigkeit durch umweltfreundliche Lösungen von der Planung bis zur Fertigstellung. Dieses Gebäude erfüllt nicht nur die modernsten geforderten Standards, sondern bietet ein gesundes Zuhause zum Wohlfühlen ideal für Anleger, die eine nachhaltige Investition suchen.

Heizung und Kühlung mit erneuerbarer Energie
Holz-Alu-Fenster sind die erste Wahl
Alle Baustoffe sind schadstoffgeprüft

 

Vorsorgewohnungen mit Zukunftspotenzial


Die Vorsorgewohnungen sind großzügig geschnitten und zeichnen sich durch eine intelligente Grundrissgestaltung aus. Alle Wohnungen sind mit hochwertigen Dielenböden in den Wohnräumen, großformatigem Feinsteinzeug in den Nebenräumen und Bädern sowie außenliegendem Sonnenschutz ausgestattet. Zudem verfügen sie über eine Fußbodenheizung und eine Temperierung für den Sommer.

Die Heizung und Warmwasserbereitung erfolgen durch eine moderne Luftwärmepumpe. Eine hauseigene Photovoltaikanlage erzeugt zusätzlichen grünen Strom für das gesamte Haus.

Heizung und Kühlung mittels Luftwärmepumpe
Hauseigene Photovoltaikanlage
Hochwertige Dielenböden in den Wohnräumen
Großformatiges Feinsteinzeug in den Bädern und Nebenräumen
Holz-Alu-Fenster mit 3-Scheiben-Isolierverglasung
Außenliegender, elektrisch bedienbarer Sonnenschutz
Fußbodenheizung und Temperierung für den Sommer

 

Ihre Lage in Kaltenleutgeben im Wienerwald

Die waldreiche Umgebung lädt zu vielfältigen Outdoor-Aktivitäten ein, darunter Wandern, Radfahren und im Winter auch Langlaufen. Zudem gibt es in der Nähe den Fitnesspark des Emmelparks und den Sportplatz auf der Eiswiese, die für sportliche Betätigungen genutzt werden können.

Für Familien mit Kindern bietet Kaltenleutgeben eine gute Bildungsinfrastruktur. Die örtliche Volksschule legt Wert auf innovative Lehrmethoden und moderne Technik, einschließlich interaktiver Schultafeln und Tablets im Unterricht. Zudem gibt es einen Kindergarten in der Gemeinde, der eine enge Zusammenarbeit mit der Volksschule pflegt, um einen nahtlosen Übergang für die Kinder zu gewährleisten.

 

Ihre Kapitalanlage in Kaltenleutgeben - sichern Sie sich jetzt Ihre Vorsorgewohnung und profitieren Sie von einer wertstabilen Investition in einer begehrten Wohnlage!

 

Bezugsfertig!
Provisionsfrei für den Käufer!

Kaufpreise der Vorsorgewohnungen

von EUR 257.407, - bis EUR 640.740, - netto zzgl. 20% USt.

Zu erwartender Mietertrag

von ca. EUR 12,50 bis EUR 14,00 netto/m²

 

Bei diesem Angebot handelt es sich um eine Vorsorgewohnung, die zu Vermietungszwecken erworben wird. Der angegebene Kaufpreis versteht sich daher zzgl. 20% USt. Diese Daten sind vorbehaltlich möglicher Änderungen.

Wir weisen darauf hin, dass zwischen dem Vermittler und dem zu vermittelnden Dritten ein familiäres oder wirtschaftliches Naheverhältnis besteht.


Infrastruktur / Entfernungen

Gesundheit
Arzt <1.250m
Klinik <2.750m
Apotheke <1.500m
Krankenhaus <5.250m

Kinder & Schulen
Schule <1.250m
Kindergarten <1.250m
Höhere Schule <7.750m
Universität <7.750m

Nahversorgung
Supermarkt <1.750m
Bäckerei <2.750m
Einkaufszentrum <7.500m

Sonstige
Bank <1.250m
Geldautomat <3.250m
Post <1.750m
Polizei <2.750m

Verkehr
Bus <500m
Straßenbahn <6.250m
U-Bahn <9.500m
Bahnhof <7.500m
Autobahnanschluss <4.500m

Angaben Entfernung Luftlinie / Quelle: OpenStreetMap

Klimaanlage: JA
Provision: Provisionsfrei für den Käufer!


Alle Details anzeigen

KONTAKT






 

Lasse dich kostenlos vom Anbieter dieser Immobilie zurückrufen.







 


 
EHL Wohnen GmbH
Andrea PÖCHHACKER; MSc
Telefonnummer anzeigen Telefon Allgemein: +4315127690411
Handy Bearbeiter: +436648373481
 
Bitte dem Makler die FindMyHome.at - ID bekanntgeben: 5612466

Bewertungen dieses Anbieters
Qualitätsmakler
Qualitätsmakler:
Netiquette
Freundlichkeit
82 %

BEWERTUNGEN DIESES ANBIETERS

 
Qualitätsmakler
UNSERE HALL OF FAME DER BESTEN ANBIETER
Qualit�tsmakler
Qualitätsmakler
2012, 2013, 2014, 2015, 2016, 2017, 2018, 2019, 2020, 2021, 22/23, 2024, 2025
Weiterempfehlung
WIRD GERNE

Freundlichkeit
BESONDERS
FREUNDLICH
Netiquette
FINDMYHOME
NETIQUETTE
Auch du kannst bewerten! 7 Tage nach deiner Anfrage erhältst du dafür von uns ein Bewertungsmail.
Alle Infos zu unseren Auszeichnungen und dem FINDMYHOME.AT Qualitätsprogramm findest du hier: Übersicht anzeigen

FINANZIERUNG
?>

Du willst wissen, wie viel dein Umzug kosten wird?

Mach gleich den kostenlosen Preisvergleich und schau, welche seriösen Anbieter in deiner Region günstig deinen Umzug organisieren


ZUM UMZUGS-VERGLEICH
-->

MYHOME BLOG
SuchAgentin auf FindMyHome.at
Unterschiedlichen Rechtsthemen, köstliche Rezepte, neueste Design-Highlights, sowie aktuelle Technik-Tools für Ihr Eigenheim.


FINDMYHOME.AT SUCHAGENTIN
SuchAgentin auf FindMyHome.at
Hallo, soll ich dir ähnliche Immobilien kostenfrei per E-Mail schicken?


ÄHNLICHE IMMOBILIEN
Aehnliche Immobilie - Vorschaubild 1

Nachhaltige Wertanlage vor den Toren Wiens: Moderne Vorsorge... - Objektnr. 5612463

86,72 m² - 3.0 Zimmer
434259.26 €
PLZ: 2391

Mehr anzeigen

Aehnliche Immobilie - Vorschaubild 2

Nachhaltige Wertanlage vor den Toren Wiens: Moderne Vorsorge... - Objektnr. 5612475

82,86 m² - 3.0 Zimmer
415740.74 €
PLZ: 2391

Mehr anzeigen

Aehnliche Immobilie - Vorschaubild 3

Sichere Investition im Grünen: Vorsorgewohnungen in Kaltenle... - Objektnr. 5612480

88,66 m² - 3.0 Zimmer
374074.07 €
PLZ: 2391

Mehr anzeigen

Durch die Nutzung unserer Seite erklären Sie sich mit der Verwendung von Cookies zur Verbesserung Ihres Online-Erlebnisses einverstanden. Detaillierte Informationen zu diesem und weiteren Themen erhalten Sie in unserer Datenschutzerklärung.