MEIN ERGEBNIS ANPASSEN

Kohlgasse/Ecke Brandmayergasse: Gepflegte Singlewohnung nahe dem Siebenbrunnenmarkt und dem Hauptbahnhof - Objektnr. 5600609

1050
Ort
€ 833,82
Gesamtkosten
47,46 m²
Fläche
1.0
Zimmer
WEITERE MEDIEN

Dokumente


ECKDATEN
FindMyHome.at // Externe Immobilien-ID5600609 // 12171
ImmobilienartWohnung - Miete
Anschrift1050 Wien
Baujahr1996
Stock3
Mietdauer5
Fläche47,46 m²
Zimmer1.0
Bad1
WC1
Kaution:€ 2.501,46
Brutto-Miete:€ 833,82
Betriebskosten (inkl. MwSt):€ 162,62
Monatliche Gesamtkosten:€ 833,82
Provision: Gemäß Erstauftraggeberprinzip bezahlt der Abgeber die Provision.




BESCHREIBUNG

Kohlgasse/Ecke Brandmayergasse: Gepflegte Singlewohnung nahe dem Siebenbrunnenmarkt und dem Hauptbahnhof

Die monatlichen Vorschreibung beinhaltet bereits ein Heizungsakonto!

Dieses Singleapartment wartet auf einen liebevollen Mieter der dieses Kleinod sorgsam und pfleglich behandelt. Die Warmwasseraufbereitung erfolgt über einen Heißwasserspeicher. Die zentral gelegene Singlewohnung befindet sich nahe dem Siebenbrunnenmarkt gleich bei der Reinprechtsdorferstraße und wird auf 5 Jahre befristet vermietet. Die vom Hauptbahnhof sehr gut erreichbare Wohnung befindet sich im 3. Liftstock und ist durch die französischen Fenster hell und freundlich. 

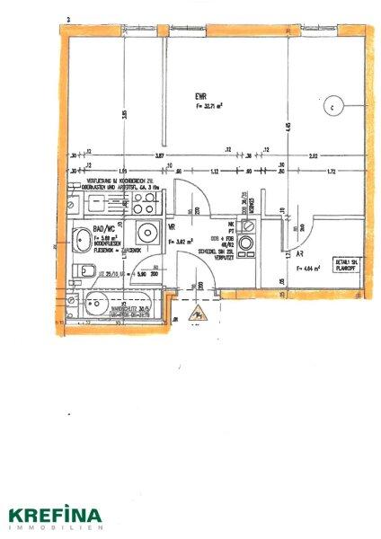
Die Raumaufteilung gliedert sich wie folgt:
- kleiner Vorraum
- Wohn-/Schlafraum mit angrenzendem AR bzw. begehbarer Garderobe
- Küchenzeile (Grundausstattung)
- Badezimmer mit Wanne, Waschbecken, Waschmaschinenanschluss und WC

Ausstattung:
- Gegensprechanlage
- Heißwasserspeicher

Ein Stapelparkplatz könnte in der nahegelegenen Liegenschaft Leitgebgasse 9 um € 96,- inkl. 20% USt angemietet werden (Plattform Maße:
Länge 5,00 m, Breite: 1,90 m, Höhe: 1,50m).

Die Nahversorgung, der Komfort und die gute Infrastruktur ist durch die zentrale Lage und Nähe zum Siebenbrunnenmarkt, der Reinprechtsdorferstraße und der Wiedner Hauptstraße gewährleistet. Die Wohnung ist aufgrund des öffentlichen Verkehrsnetz gut angebunden. 

Busverbindungen:
12A - von Schmelz/Gablenzgasse bis Eichenstraße
14A - vom Reumannplatz bis zur Neubaugasse

Straßenbahnlinien:
6 - von Burggasse/Stadthalle bis Leebgasse/Siccardsburggasse
18 - Schlachthausgasse bis Burggasse/Stadthalle
62 - Wolkersbergenstraße bis Karlsplatz/Oper


 

Wir weisen darauf hin, dass zwischen dem Vermittler und dem zu vermittelnden Dritten ein familiäres oder wirtschaftliches Naheverhältnis besteht.

Der Immobilienmakler erklärt, dass er entgegen dem in der Immobilienwirtschaft üblichen Geschäftsgebrauch des Doppelmaklers einseitig nur für den Vermieter tätig ist.

Provision: Gemäß Erstauftraggeberprinzip bezahlt der Abgeber die Provision.


Alle Details anzeigen

KONTAKT






 

Lasse dich kostenlos vom Anbieter dieser Immobilie zurückrufen.







 


 
KREFINA Immobilien
Angelika ERTLER
Telefonnummer anzeigen Telefon Allgemein: +431587873725
Handy Bearbeiter: +4369911001125
 
Bitte dem Makler die FindMyHome.at - ID bekanntgeben: 5600609

Bewertungen dieses Anbieters
Qualitätsmakler
Qualitätsmakler:
2015, 2016, 2017, 2019, 2020, 2021, 2023 , 2025,
Netiquette
Freundlichkeit

BEWERTUNGEN DIESES ANBIETERS

 
Qualit�tsmakler
Qualitätsmakler
2015, 2016, 2017, 2019, 2020, 2021, 22/23 2025
Freundlichkeit
BESONDERS
FREUNDLICH
Netiquette
FINDMYHOME
NETIQUETTE
Auch du kannst bewerten! 7 Tage nach deiner Anfrage erhältst du dafür von uns ein Bewertungsmail.
Alle Infos zu unseren Auszeichnungen und dem FINDMYHOME.AT Qualitätsprogramm findest du hier: Übersicht anzeigen


Du willst wissen, wie viel dein Umzug kosten wird?

Mach gleich den kostenlosen Preisvergleich und schau, welche seriösen Anbieter in deiner Region günstig deinen Umzug organisieren


ZUM UMZUGS-VERGLEICH
-->

MYHOME BLOG
SuchAgentin auf FindMyHome.at
Unterschiedlichen Rechtsthemen, köstliche Rezepte, neueste Design-Highlights, sowie aktuelle Technik-Tools für Ihr Eigenheim.


FINDMYHOME.AT SUCHAGENTIN
SuchAgentin auf FindMyHome.at
Hallo, soll ich dir ähnliche Immobilien kostenfrei per E-Mail schicken?


Durch die Nutzung unserer Seite erklären Sie sich mit der Verwendung von Cookies zur Verbesserung Ihres Online-Erlebnisses einverstanden. Detaillierte Informationen zu diesem und weiteren Themen erhalten Sie in unserer Datenschutzerklärung.