MEIN ERGEBNIS ANPASSEN

15469 Entspannen im Eigengarten mitten in der City - Objektnr. 5600252

  • IMG_9006
  • IMG_8997
  • IMG_8998
  • IMG_9000
  • IMG_9001
  • IMG_9002
  • IMG_9007
  • IMG_8988
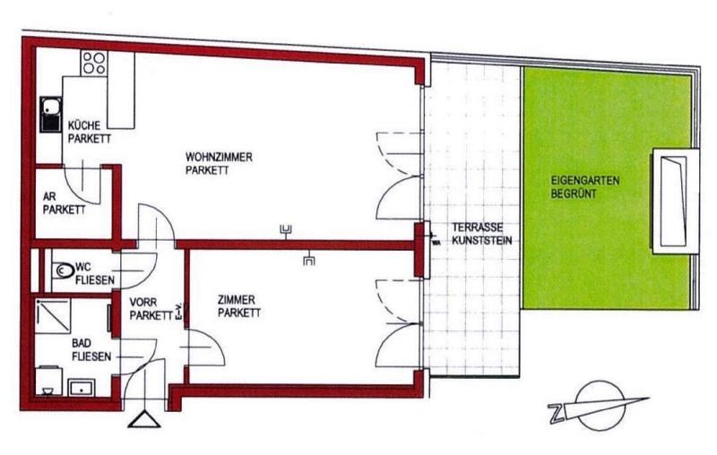
  • Plan
1170
Ort
€ 1.063,03
Gesamtkosten
59,00 m²
Fläche
2
Zimmer

ECKDATEN
FindMyHome.at // Externe Immobilien-ID5600252 // 215/15469
ImmobilienartWohnung - Miete
Anschrift1170 Wien
Beziehbar abnach Vereinbarung
Fläche59,00 m²
Gartenfläche18,00 m²
Balkon1
Zimmer2
Bad1
WC1
Kaution:€ 4.480,00
sonstige Kosten (inkl. MwSt):€ 169,25
Mehrwertsteuer:€ 96,64
Monatliche Gesamtkosten:€ 1.063,03




BESCHREIBUNG

15469 Entspannen im Eigengarten mitten in der City

Entspannen im Eigengarten mitten in der City

Die Wohnung befindet sich in der Rosensteingasse 43 in einem neu errichteten Wohnhaus im Erdgeschoss und wird kostengünstig mit Fernwärme beheizt. Durch die Fernwärme entfällt für den Mieter der Punkt Thermenwartung!

Die Wohnung gliedert sich in einen Vorraum, eine Wohnküche mit allen Geräten und großen Panoramafenstern, Speis und große Glastüre mit Zugang zum Eigengarten, ein Schlafzimmer mit Gartenausgang, ein Badezimmer mit Dusche, Waschmaschinenanschluss und ein separates WC mit Handwaschbecken.

Ausgestattet ist die Wohnung mit Eichen Echtholzparkett und neuer Küche.

Der Wohnung ist ein Kellerabteil zugeordnet, ein Garagenplatz kann im Haus angemietet werden.

Die Miete beträgt 1.063,03 inklusive Betriebskosten. Die Heizkosten und Warmwasser von € 126,97 werden von der Hausverwaltung extra verrechnet.


Alle Details anzeigen

KONTAKT






 

Lasse dich kostenlos vom Anbieter dieser Immobilie zurückrufen.







 


 
Oswald H. Borger
Alexander WASTL
Telefonnummer anzeigen Telefon Allgemein: +43274235233210
 
Bitte dem Makler die FindMyHome.at - ID bekanntgeben: 5600252

Bewertungen dieses Anbieters
Qualitätsmakler
Qualitätsmakler:
2018,

BEWERTUNGEN DIESES ANBIETERS

 
Qualit�tsmakler
Qualitätsmakler
2018
Auch du kannst bewerten! 7 Tage nach deiner Anfrage erhältst du dafür von uns ein Bewertungsmail.
Alle Infos zu unseren Auszeichnungen und dem FINDMYHOME.AT Qualitätsprogramm findest du hier: Übersicht anzeigen


Du willst wissen, wie viel dein Umzug kosten wird?

Mach gleich den kostenlosen Preisvergleich und schau, welche seriösen Anbieter in deiner Region günstig deinen Umzug organisieren


ZUM UMZUGS-VERGLEICH
-->

MYHOME BLOG
SuchAgentin auf FindMyHome.at
Unterschiedlichen Rechtsthemen, köstliche Rezepte, neueste Design-Highlights, sowie aktuelle Technik-Tools für Ihr Eigenheim.


FINDMYHOME.AT SUCHAGENTIN
SuchAgentin auf FindMyHome.at
Hallo, soll ich dir ähnliche Immobilien kostenfrei per E-Mail schicken?


ÄHNLICHE IMMOBILIEN
Aehnliche Immobilie - Vorschaubild 1

RUHIGE 2 Zimmer Neubauwohnung mit LOGGIA beim KONGRESSPARK... - Objektnr. 5595431

54,86 m² - 2.0 Zimmer
1082.4 €
PLZ: 1170

Mehr anzeigen

Durch die Nutzung unserer Seite erklären Sie sich mit der Verwendung von Cookies zur Verbesserung Ihres Online-Erlebnisses einverstanden. Detaillierte Informationen zu diesem und weiteren Themen erhalten Sie in unserer Datenschutzerklärung.