MEIN ERGEBNIS ANPASSEN

TANBRUCKGASSE - ROLLINGERGASSE, 51 m2 Neubau, 2 Zimmer, Komplettküche, Wannenbad, Parketten, Bahnhof Meidling - Objektnr. 5598197

1120
Ort
€ 929,70
Gesamtkosten
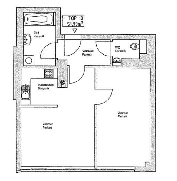
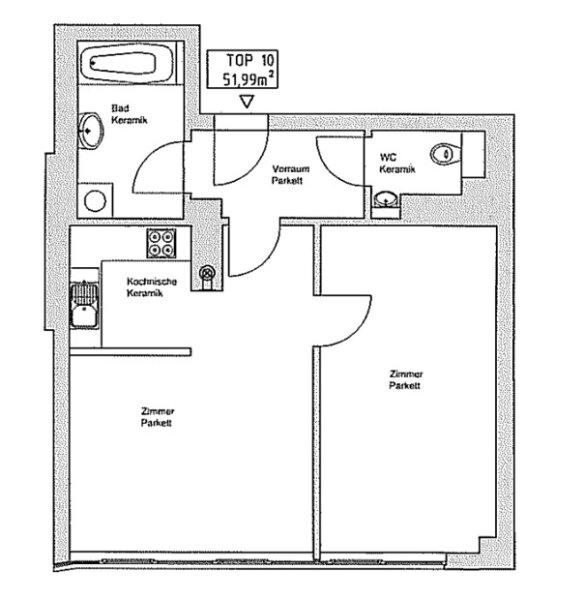
51,99 m²
Fläche
2.0
Zimmer

ECKDATEN
FindMyHome.at // Externe Immobilien-ID5598197 // 2357
ImmobilienartWohnung - Miete
AnschriftRollingergasse
1120 Wien
Stock3
Mietdauer5
Zimmer2.0
Bad1
WC1
Kaution:€ 2.790,00
Brutto-Miete:€ 929,70
Betriebskosten (inkl. MwSt):€ 130,97
Mehrwertsteuer:€ 84,52
Monatliche Gesamtkosten:€ 929,70
Provision: Gemäß Erstauftraggeberprinzip bezahlt der Abgeber die Provision.




BESCHREIBUNG

TANBRUCKGASSE - ROLLINGERGASSE, 51 m2 Neubau, 2 Zimmer, Komplettküche, Wannenbad, Parketten, Bahnhof Meidling

IN DER ROLLINGERGASSE - ECKE TANBRUCKGASSE GELANGT DIESE CA. 51,99 m2 NEUBAUWOHNUNG IM 3. LIFTSTOCK ZUR BEFRISTETEN VERMIETUNG

Vorzimmer, Wohnküche, Schlafzimmer, Badezimmer, separates WC und Kellerabteil

Ausstattung: 

+ Küche mit Einbaugeräte
+ Bad mit Badewanne, Waschtisch und Waschmaschinenanschluss
+ separates WC mit Waschgelegenheit
+ Parketten, Fliesen in den Nassräumen
+ Telekabelfernsehanschluss, Gegensprechanlage
+ Fernwärmeheizung
+ Kellerabteil
+ Fahrradabstellraum im Haus
+ HWB 54,76 kWh/m2a

Lage

ROLLINGERGASSE ECKE TANBRUCKGASSE mit bester Infrastruktur des 12. Bezirks (Meidlinger Hauptstraße, Ruckergasse, Tanbruckgasse, Eichenstraße, Bahnhof Meidling) und optimalen Verkehrsverbindungen, der Bahnhof Meidling mit der S-Bahn Meidling, die U6-Station Meidling (Philadelphiabrücke) sowie die Linien 62, WLB, 7A, 8A, 9A, 63A, N8 + N62 sind in unmittelbarer Nähe


Sonstiges

Gesamtmiete € 929,70 inklusive Betriebskosten, Aufzug, 10 % MwSt.
Heizung und Strom wird separat zur Vorschreibung gebracht.

 
Kaution: € 2.790,00 per Überweisung
auf 5 Jahre befristete Hauptmiete, ablösefrei, Sofortbezug möglich!
1 Jahr Kündigungsverzicht, 3 Monate Kündigungsfrist

Anbindung öffentlicher Verkehr

der Bahnhof Meidling mit der S-Bahn Meidling, die U6-Station Meidling (Philadelphiabrücke) sowie die Linien 62, WLB, 7A, 8A, 9A, 63A, N8 + N62 sind in unmittelbarer Nähe

Der Immobilienmakler erklärt, dass er entgegen dem in der Immobilienwirtschaft üblichen Geschäftsgebrauch des Doppelmaklers einseitig nur für den Vermieter tätig ist.


Infrastruktur / Entfernungen

Gesundheit
Arzt <250m
Apotheke <250m
Klinik <500m
Krankenhaus <1.250m

Kinder & Schulen
Schule <250m
Kindergarten <250m
Universität <1.000m
Höhere Schule <500m

Nahversorgung
Supermarkt <250m
Bäckerei <250m
Einkaufszentrum <250m

Sonstige
Geldautomat <250m
Bank <250m
Post <500m
Polizei <500m

Verkehr
Bus <250m
U-Bahn <250m
Straßenbahn <250m
Bahnhof <250m
Autobahnanschluss <2.250m

Angaben Entfernung Luftlinie / Quelle: OpenStreetMap

Kabel/SAT/TV: JA
Barrierefrei: JA
Provision: Gemäß Erstauftraggeberprinzip bezahlt der Abgeber die Provision.


Alle Details anzeigen

KONTAKT






 

Lasse dich kostenlos vom Anbieter dieser Immobilie zurückrufen.







 


 
ROS REALITÄTEN OG
Alexander Ros
Telefonnummer anzeigen Handy Bearbeiter: +436644665202
 
Bitte dem Makler die FindMyHome.at - ID bekanntgeben: 5598197

Bewertungen dieses Anbieters
Qualitätsmakler
Qualitätsmakler:
2014, 2016, 2017, 2018, 2021, 2025,
Netiquette
Freundlichkeit

BEWERTUNGEN DIESES ANBIETERS

 
Qualit�tsmakler
Qualitätsmakler
2014, 2016, 2017, 2018, 2021, 2025
Freundlichkeit
BESONDERS
FREUNDLICH
Netiquette
FINDMYHOME
NETIQUETTE
Auch du kannst bewerten! 7 Tage nach deiner Anfrage erhältst du dafür von uns ein Bewertungsmail.
Alle Infos zu unseren Auszeichnungen und dem FINDMYHOME.AT Qualitätsprogramm findest du hier: Übersicht anzeigen


Du willst wissen, wie viel dein Umzug kosten wird?

Mach gleich den kostenlosen Preisvergleich und schau, welche seriösen Anbieter in deiner Region günstig deinen Umzug organisieren


ZUM UMZUGS-VERGLEICH
-->

MYHOME BLOG
SuchAgentin auf FindMyHome.at
Unterschiedlichen Rechtsthemen, köstliche Rezepte, neueste Design-Highlights, sowie aktuelle Technik-Tools für Ihr Eigenheim.


FINDMYHOME.AT SUCHAGENTIN
SuchAgentin auf FindMyHome.at
Hallo, soll ich dir ähnliche Immobilien kostenfrei per E-Mail schicken?


ÄHNLICHE IMMOBILIEN
Aehnliche Immobilie - Vorschaubild 1

AB SOFORT VERFÜGBAR | 2-ZIMMER-WOHNUNG IN MEIDLING | GEPFLEG... - Objektnr. 5593446

0,00 m²
929.7 €
PLZ: 1120

Mehr anzeigen

Aehnliche Immobilie - Vorschaubild 2

Baujahr 2020 - 2 Zimmer Neubau zu vermieten - Objektnr. 5594736

39,44 m² - 2.0 Zimmer
823.78 €
PLZ: 1120

Mehr anzeigen

Aehnliche Immobilie - Vorschaubild 3

Rotenmühlgasse - hofseitiger 2 Zimmer Neubau mit Balkon zu v... - Objektnr. 5578035

57,71 m² - 2.0 Zimmer
1100 €
PLZ: 1120

Mehr anzeigen

Durch die Nutzung unserer Seite erklären Sie sich mit der Verwendung von Cookies zur Verbesserung Ihres Online-Erlebnisses einverstanden. Detaillierte Informationen zu diesem und weiteren Themen erhalten Sie in unserer Datenschutzerklärung.