MEIN ERGEBNIS ANPASSEN

Freiheit und pure Lebensqualität! Ihr neues Zuhause über den Dächern von Graz-Liebenau - großzügige 4-Zimmer-Wohnung mit 36 m² Sonnenbalkon! - Objektnr. 5589405

8041
Ort
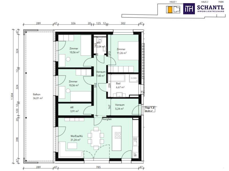
88,88 m²
Fläche
4.0
Zimmer

ECKDATEN
FindMyHome.at // Externe Immobilien-ID5589405 // 291964
ImmobilienartWohnung - Eigentum
Anschrift8041 Graz,07.Bez.:Liebenau
Baujahr2026
Geschosse4
Fläche88,88 m²
Zimmer4.0
Bad1
WC1
Kaufpreis:€ 464.900,00
Ratenzahlung:Finanzierungsmöglichkeiten für diese Immobilie anzeigen
Provision: Provision bezahlt der Abgeber.







BESCHREIBUNG

Freiheit und pure Lebensqualität! Ihr neues Zuhause über den Dächern von Graz-Liebenau - großzügige 4-Zimmer-Wohnung mit 36 m² Sonnenbalkon!

Freiheit und pure Lebensqualität! Ihr neues Zuhause über den Dächern von Graz-Liebenau großzügige 4-Zimmer-Wohnung mit 36 m² Sonnenbalkon!

Mehr Raum. Mehr Natur. Mehr Zuhause exklusive Wohnung in Graz-Liebenau!

Diese hochwertig ausgestattete Wohnung ist ein wahres Refugium für alle, die urbanes Wohnen mit großzügigem Freiraum verbinden möchten. Eingebettet in eine kleine, exklusive Wohnanlage mit nur 12 Einheiten, bietet diese Wohnung ein beeindruckendes Raumgefühl sowie einen außergewöhnlich großen Balkon ein echtes Highlight am Grazer Wohnungsmarkt.

 

5 überzeugende Fakten:

  • 88,88 m² perfekt geschnittene Wohnfläche
  • Großzügiger Balkon mit über 36 m² Fläche Ihr privates Sonnenparadies
  • Lichtdurchfluteter Wohn-Ess-Koch-Bereich mit über 31 m²
  • Zwei Stellplätze in der Tiefgarage zusätzlich erwerbbar (je € 27.500)
  • Ruhige Lage in einem energieeffizienten Neubauprojekt mit moderner Architektur

 

Raumaufteilung:

  • Zimmer: 10,56 m²
  • Zimmer: 11,26 m²
  • Zimmer: 10,56 m²
  • Wohn-Ess-Koch-Bereich: 31,24 m²
  • Separates WC: 2,04 m²
  • Badezimmer mit Dusche und Badewanne: 6,67 m²
  • Vorraum: 12,64 m²
  • Abstellraum: 3,91 m²

10 Highlights, die begeistern:

  • Riesiger Balkon ideal für entspannte Stunden im Freien
  • Offener Wohn-Ess-Koch-Bereich mit eleganter Küchenanschlussmöglichkeit
  • Drei gut geschnittene Zimmer vielseitig nutzbar als Schlafzimmer, Büro oder Gästezimmer
  • Stilvolles Badezimmer mit Dusche und Badewanne
  • Separates WC für zusätzlichen Komfort
  • Praktischer Abstellraum für mehr Ordnung
  • Barrierefreier Zugang durch Lift und niveaugleiche Wege
  • Fußbodenheizung, 3-fach-verglaste Fenster und Raffstores sorgen für angenehmes Raumklima
  • Energieeffizienz trifft Design: Photovoltaik, Tiefgarage, Kellerabteil & niedrige Betriebskosten
  • Schlüsselfertige Übergabe bis voraussichtlich November 2027

Erleben Sie exklusives Wohnen mit Balkon-Flair diese Wohnung ist ein seltenes Fundstück mit Wohlfühlgarantie.
Jetzt informieren und Ihren Wohntraum sichern!

Irrtum und Druckfehler vorbehalten. Alle Angaben beruhen auf Informationen des Abgebers und sind ohne Gewähr. Sämtliche Pläne und Renderings sind als Muster zu verstehen. Es wurden teilweise Beispielbilder verwendet. Änderungen ausdrücklich vorbehalten.

 

Worauf noch warten

Vereinbaren Sie noch heute eine Besichtigung oder eine persönliche Beratung mit uns!

Sie wollen Ihre Immobilie verkaufen Dann sind Sie bei uns goldrichtig!
Wir sind gerne für Sie da und unterstützen Sie unverbindlich bei der Bewertung Ihrer Immobilie. Mit viel Sorgfalt stellen wir Ihnen alle wichtigen Informationen und Unterlagen zusammen, damit Sie die besten Entscheidungen treffen können.

In Kooperation mit unserer SFI Vermögenstreuhand begleiten wir Sie bei der Verwirklichung Ihres Traumobjekts und unterstützen Sie beim nachhaltigen Vermögensaufbau. Mit unseren erfahrenen Experten sorgen wir dafür, dass Sie die besten Konditionen erhalten damit Ihre Träume Wirklichkeit werden!

http://www.schantl-ith.at in Kooperation mit www.sfi-invest.com 

Die Angaben über das angebotene Objekt erfolgen mit der Sorgfalt eines ordentlichen Immobilienmaklers; für die Richtigkeit solcher Angaben, die auf Informationen der über das Objekt Verfügungsberechtigten beruhen, wird keine Gewähr geleistet!

Wir weisen darauf hin, dass zwischen dem Vermittler und dem zu vermittelnden Dritten ein familiäres oder wirtschaftliches Naheverhältnis besteht.


Infrastruktur / Entfernungen

Gesundheit
Arzt <500m
Apotheke <500m
Klinik <4.500m
Krankenhaus <4.000m

Kinder & Schulen
Schule <500m
Kindergarten <500m
Universität <3.000m
Höhere Schule <4.000m

Nahversorgung
Supermarkt <500m
Bäckerei <500m
Einkaufszentrum <1.000m

Sonstige
Geldautomat <1.000m
Bank <500m
Post <1.000m
Polizei <1.000m

Verkehr
Bus <500m
Straßenbahn <1.000m
Autobahnanschluss <1.000m
Bahnhof <1.000m
Flughafen <5.500m

Angaben Entfernung Luftlinie / Quelle: OpenStreetMap

Barrierefrei: JA
Provision: Provision bezahlt der Abgeber.


Alle Details anzeigen

KONTAKT






 

Lasse dich kostenlos vom Anbieter dieser Immobilie zurückrufen.







 


 
Schantl ITH Immobilientreuhand GmbH
Nikolaus Kronabitter
Telefonnummer anzeigen Handy Bearbeiter: +436642540410
 
Bitte dem Makler die FindMyHome.at - ID bekanntgeben: 5589405

Bewertungen dieses Anbieters
Qualitätsmakler
Qualitätsmakler:
2015, 2016, 2018, 2019, 2020, 2021, 2023 , 2024, 2025,
Netiquette
Freundlichkeit
79 %

BEWERTUNGEN DIESES ANBIETERS

 
Qualit�tsmakler
Qualitätsmakler
2015, 2016, 2018, 2019, 2020, 2021, 22/23, 2024, 2025
Antwortzeit
ø 48h ANTWORT
Weiterempfehlung
WIRD GERNE

Freundlichkeit
BESONDERS
FREUNDLICH
Netiquette
FINDMYHOME
NETIQUETTE
Auch du kannst bewerten! 7 Tage nach deiner Anfrage erhältst du dafür von uns ein Bewertungsmail.
Alle Infos zu unseren Auszeichnungen und dem FINDMYHOME.AT Qualitätsprogramm findest du hier: Übersicht anzeigen

FINANZIERUNG
?>

Du willst wissen, wie viel dein Umzug kosten wird?

Mach gleich den kostenlosen Preisvergleich und schau, welche seriösen Anbieter in deiner Region günstig deinen Umzug organisieren


ZUM UMZUGS-VERGLEICH
-->

MYHOME BLOG
SuchAgentin auf FindMyHome.at
Unterschiedlichen Rechtsthemen, köstliche Rezepte, neueste Design-Highlights, sowie aktuelle Technik-Tools für Ihr Eigenheim.


FINDMYHOME.AT SUCHAGENTIN
SuchAgentin auf FindMyHome.at
Hallo, soll ich dir ähnliche Immobilien kostenfrei per E-Mail schicken?


ÄHNLICHE IMMOBILIEN
Aehnliche Immobilie - Vorschaubild 1

Ein wunderschöne helle Wohnung im einem feinen kleinem Neuba... - Objektnr. 5586878

84,56 m² - 4.0 Zimmer
439712 €
PLZ: 8041

Mehr anzeigen

Aehnliche Immobilie - Vorschaubild 2

Grünblick Peterstal - Exklusive Eigentumswohnungen... - Objektnr. 5589217

79,47 m² - 4.0 Zimmer
499000 €
PLZ: 8042

Mehr anzeigen

Aehnliche Immobilie - Vorschaubild 3

SPITZE! EIN TRAUMHAFTES PENTHOUSE! EINE GRÜNE OASE! Mehr Rau... - Objektnr. 5589401

82,69 m² - 3.0 Zimmer
454900 €
PLZ: 8041

Mehr anzeigen

Durch die Nutzung unserer Seite erklären Sie sich mit der Verwendung von Cookies zur Verbesserung Ihres Online-Erlebnisses einverstanden. Detaillierte Informationen zu diesem und weiteren Themen erhalten Sie in unserer Datenschutzerklärung.