MEIN ERGEBNIS ANPASSEN

Neubau in Döbling: Hochwertige Wohnungen für Menschen, die mehr erwarten - Objektnr. 5585674

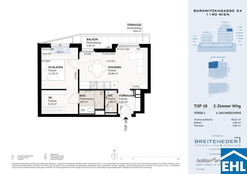
1190
Ort
46,01 m²
Fläche
2.0
Zimmer
WEITERE MEDIEN

ECKDATEN
FindMyHome.at // Externe Immobilien-ID5585674 // 91504
ImmobilienartWohnung - Eigentum
AnschriftBarawitzkagasse
1190 Wien
Baujahr2027
Stock5
Geschosse7
Fläche46,01 m²
Terrassen1 (5,00 m²)
Zimmer2.0
Bad1
WC1
Kaufpreis:€ 390.000,00
Ratenzahlung:Finanzierungsmöglichkeiten für diese Immobilie anzeigen
Provision: Provision bezahlt der Abgeber.







BESCHREIBUNG

Neubau in Döbling: Hochwertige Wohnungen für Menschen, die mehr erwarten

In der Barawitzkagasse 24 entsteht ein Zuhause, das mehr ist als nur vier Wände sind ein Ort, an dem modernes Wohnen auf echte Lebensqualität trifft. Mit nur wenigen, exklusiv ausgestatteten Wohneinheiten und 13 komfortablen PKW-Stellplätzen bietet dieses Projekt Raum für Menschen, die Wert auf Ruhe, Stil und ein hochwertiges Wohngefühl legen.

Das Gebäude umfasst zwei eigenständige Stiegen: Straßenseitig fügt sich die Architektur elegant und selbstverständlich in das charmante Grätzel ein, während die Gartenstiege im geschützten Innenhof einen stillen, grünen Rückzugsort eröffnet ein Platz zum Durchatmen, Ankommen und Wohlfühlen.

Das Projekt vereint zeitgemäße Architektur mit höchstem Wohnkomfort und spricht all jene an, die ein Zuhause mit Qualität und Charakter in einem der begehrtesten Bezirke Wiens suchen. Die Wohnungen sind sorgfältig geplant, um unterschiedlichste Lebenssituationen zu begleiten vom berufstätigen Paar bis hin zu Menschen, die barrierefreie Wohnqualität besonders schätzen.

Projektübersicht

  • 26 Wohnungen, jeweils mit privater Freifläche
  • Wohnflächen von ca. 40 bis 105 m²
  • 2- bis 4-Zimmer-Wohnungen
  • Zwei moderne Baukörper
  • 13 KFZ-Stellplätze in der hauseigenen Garage
  • Einlagerungsräume für jede Einheit
  • Fahrrad- und Kinderwagenabstellraum

Ausstattung

  • Fußbodenheizung mittels Luftwärmepumpe, kombiniert mit einer PV-Anlage am Dach
  • Temperierung über eine Fußbodenheizung, welche im Sommer auch zur Kühlung verwendet wird
  • Edler Eichen-Echtholzparkett in allen Wohnräumen
  • Hochwertige Markenfliesen (Format 30 × 60 cm) in den Bädern
  • Dreifach-isolierverglaste, wärmegedämmte Kunststofffenster
  • Elektrische Außenjalousien aus Aluminium
  • Klimaanlagen-Leerverrohrung im Dachgeschoss
  • Moderne Gegensprechanlage mit Farbvideo

Lage

Die Barawitzkagasse 24 liegt im exklusiven 19. Bezirk Döbling einer der elegantesten und begehrtesten Wohnadressen Wiens. Die Umgebung besticht durch eine harmonische Mischung aus stilvollen Neubauten, repräsentativen Altbauten und grünen Villenvierteln, die dem Grätzel eine besonders ruhige und zugleich kultivierte Atmosphäre verleihen.

 

In unmittelbarer Nähe finden sich zahlreiche Einkaufsmöglichkeiten sowie charmante Cafés und Restaurants, die zum Verweilen einladen. Ein BILLA und BIPA liegen nur rund 200 Meter entfernt, eine Tankstelle befindet sich ebenfalls gleich ums Eck ideal für alle Besorgungen des täglichen Lebens. Für besondere Anlässe oder den feinen Wocheneinkauf ist der SPAR-Gourmet in lediglich 57 Gehminuten erreichbar. Rund 400 Meter entfernt steht zudem eine Apotheke zur Verfügung, was die hervorragende Nahversorgung perfekt abrundet.

Die öffentliche Verkehrsanbindung ist hervorragend: Die Buslinie 10A und die Straßenbahnlinie 37 befinden sich praktisch direkt vor der Haustür und bieten eine schnelle Verbindung in die umliegenden Bezirke und die Wiener Innenstadt. Der Bahnhof Heiligenstadt, in etwa 10 Gehminuten erreichbar, ermöglicht zudem den Anschluss an die U4, diverse S-Bahn-Linien sowie Regional- und Schnellzüge.

Für Erholung im Grünen stehen gleich mehrere Parks in unmittelbarer Nähe bereit darunter der stimmungsvolle Setagayapark, der weitläufige Wertheimsteinpark sowie die traditionsreiche Hohe Warte. Auch das umliegende Radwegenetz eröffnet bequeme und sichere Routen bis ins Stadtzentrum.

Öffentliche Anbindung

  • U-Bahn: U4 Heiligenstadt
  • Bus: 10A, 38A, 39A
  • Straßenbahn: D, 37
  • S-Bahn: S40, S45
  • Regionalzüge: R40, REX4, REX41

Durch die Nähe zur A22 und A23 profitieren auch Autofahrer von einer ausgezeichneten Verkehrsanbindung der Flughafen Wien ist in rund 25 Minuten erreichbar.

Ein detaillierten Überblick finden Sie auf unserer Projekthomepage!

Provisionsfrei für den Käufer!
Fertigstellung voraussichtlich Q3 2027

Wir weisen darauf hin, dass zwischen dem Vermittler und dem zu vermittelnden Dritten ein familiäres oder wirtschaftliches Naheverhältnis besteht.

Der Vermittler ist als Doppelmakler tätig.


Infrastruktur / Entfernungen

Gesundheit
Arzt <500m
Apotheke <500m
Klinik <500m
Krankenhaus <1.000m

Kinder & Schulen
Schule <500m
Kindergarten <500m
Universität <750m
Höhere Schule <750m

Nahversorgung
Supermarkt <250m
Bäckerei <500m
Einkaufszentrum <1.250m

Sonstige
Geldautomat <250m
Bank <250m
Post <750m
Polizei <500m

Verkehr
Bus <250m
U-Bahn <500m
Straßenbahn <250m
Bahnhof <750m
Autobahnanschluss <750m

Angaben Entfernung Luftlinie / Quelle: OpenStreetMap

Klimaanlage: JA
Kabel/SAT/TV: JA
Provision: Provision bezahlt der Abgeber.


Alle Details anzeigen

KONTAKT






 

Lasse dich kostenlos vom Anbieter dieser Immobilie zurückrufen.







 


 
EHL Wohnen GmbH
Daniel Bolataschwili
Telefonnummer anzeigen Telefon Allgemein: +4315127690414
Handy Bearbeiter: +4366488160127
 
Bitte dem Makler die FindMyHome.at - ID bekanntgeben: 5585674

Bewertungen dieses Anbieters
Qualitätsmakler
Qualitätsmakler:
Netiquette
Freundlichkeit
82 %

BEWERTUNGEN DIESES ANBIETERS

 
Qualitätsmakler
UNSERE HALL OF FAME DER BESTEN ANBIETER
Qualit�tsmakler
Qualitätsmakler
2012, 2013, 2014, 2015, 2016, 2017, 2018, 2019, 2020, 2021, 22/23, 2024, 2025
Weiterempfehlung
WIRD GERNE

Freundlichkeit
BESONDERS
FREUNDLICH
Netiquette
FINDMYHOME
NETIQUETTE
Auch du kannst bewerten! 7 Tage nach deiner Anfrage erhältst du dafür von uns ein Bewertungsmail.
Alle Infos zu unseren Auszeichnungen und dem FINDMYHOME.AT Qualitätsprogramm findest du hier: Übersicht anzeigen

FINANZIERUNG
?>

Du willst wissen, wie viel dein Umzug kosten wird?

Mach gleich den kostenlosen Preisvergleich und schau, welche seriösen Anbieter in deiner Region günstig deinen Umzug organisieren


ZUM UMZUGS-VERGLEICH
-->

MYHOME BLOG
SuchAgentin auf FindMyHome.at
Unterschiedlichen Rechtsthemen, köstliche Rezepte, neueste Design-Highlights, sowie aktuelle Technik-Tools für Ihr Eigenheim.


FINDMYHOME.AT SUCHAGENTIN
SuchAgentin auf FindMyHome.at
Hallo, soll ich dir ähnliche Immobilien kostenfrei per E-Mail schicken?


ÄHNLICHE IMMOBILIEN
Aehnliche Immobilie - Vorschaubild 1

Ihr Rückzugsort in einer der besten Lagen Wiens - Wohnen mit... - Objektnr. 5584911

46,87 m² - 2.0 Zimmer
355000 €
PLZ: 1190

Mehr anzeigen

Aehnliche Immobilie - Vorschaubild 2

Hochwertiger Pärchentraum in Döbling - Objektnr. 5376380


40,63 m² - 2.0 Zimmer
406300 €
PLZ: 1190

Mehr anzeigen

Aehnliche Immobilie - Vorschaubild 3

PROVISIONSFREI - Urban Homes 170 - Ihr Zuhause für höchste L... - Objektnr. 5483315

52,82 m² - 2.0 Zimmer
339500 €
PLZ: 1190

Mehr anzeigen

Durch die Nutzung unserer Seite erklären Sie sich mit der Verwendung von Cookies zur Verbesserung Ihres Online-Erlebnisses einverstanden. Detaillierte Informationen zu diesem und weiteren Themen erhalten Sie in unserer Datenschutzerklärung.