MEIN ERGEBNIS ANPASSEN

61 m² Mietwohnung mit möblierter Küche, Balkon und Lift - Objektnr. 5581106


ökologisch beheizt
  • top eingerichtete Küche
  • Aussicht vom Balkon
  • Vorraum
  • Blick vom Wohnzimmer in die Küche
  • Wohnzimmer mit Ausgang auf Balkon
  • Vorraum möbliert
  • Einbauküche
  • separates WC
  • Badezimmer mit Badewanne möbliert
  • wunderschönes Badezimmer mit Fenster
  • neues Schlafzimmer
  • Schlafzimmer möbliert
8020
Ort
€ 849,37
Gesamtkosten
61,00 m²
Fläche
2.5
Zimmer

ECKDATEN
FindMyHome.at // Externe Immobilien-ID5581106 // 11800
ImmobilienartWohnung - Miete
Anschrift8020 Graz
Befeuerung
Fernwärme
Geschosse5
Fläche61,00 m²
Zimmer2.5
Bad1
WC1
Brutto-Miete:€ 849,37
Betriebskosten (inkl. MwSt):€ 238,37
Mehrwertsteuer:€ 82,67
Monatliche Gesamtkosten:€ 849,37
Provision: Gemäß Erstauftraggeberprinzip bezahlt der Abgeber die Provision.




BESCHREIBUNG

61 m² Mietwohnung mit möblierter Küche, Balkon und Lift

61 m² Mietwohnung mit Loggia, optimal für Wohngemeinschaft nahe FH Campus, FH Joanneum

Die helle, sonnige Mietwohnung mit großem Balkon wurde komplett neu saniert mit neuen Böden, Fliesen und Türen. Das WC ist getrennt vom Badezimmer mit Badewanne. Die getrennt, begehbaren 2 Zimmern sind in Erstbezugsqualität und haben eine sehr modern eingerichtete, bestens funktionierende Küche, ein neu eingerichtetes Schlafzimmer mit Bett und Schrank, sowie ein Kellerabteil. Auch der Vorraum wurde liebevoll möbliert. Für Fahrräder oder Auto ist genügend Platz vor dem Haus. Rund um das Gebäude sind nicht gebührenpflichtige KFZ-Abstellplätze vorhanden. Diese sind öffentliche Parkplätze und stellen kein Wohnungszubehör dar. Eine optimale Anbindung an die Straßenbahnlinie ist gegeben, da die Ein- bzw. Ausstiegstelle nur wenig entfernt liegt.

Diese Liegenschaft befindet sich im 5. Stock, mit Lift.

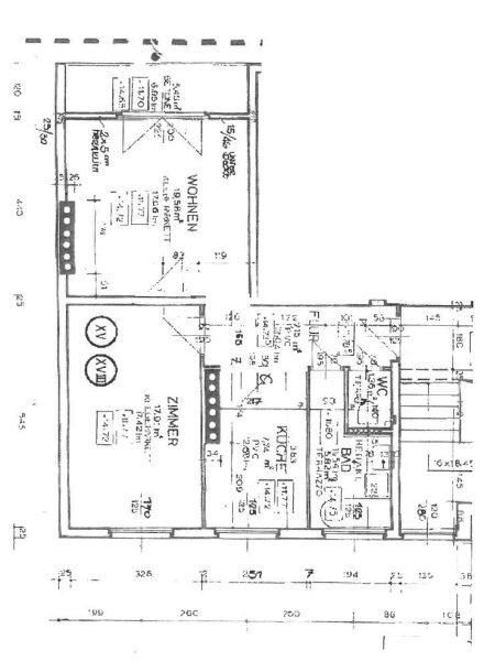
Die Zimmeraufteilung ist wie folgt:

- Vorraum

- Koch-Esszimmer mit Einbauküche und Essbereich

- Badezimmer möbliert mit Badewanne

- separates WC

- Wohnzimmer

- Schlafzimmer möbliert (Erstbezug)

- Balkon

- Kellerabteil

 

Beheizt wird diese Wohnung mittels Fernwärme (selbst anzumelden) und der Wohnbereich ist mit Parkett und der Sanitärbereich mit Fliesen ausgestattet. 

 

Gemäß § 6 Abs. 4 Maklergesetz wird auf das wirtschaftliche Naheverhältnis zum Verkäufer betreffend des angebotenen Objektes hingewiesen und es sind die Immobilienmakler der Bischof Immobilien GesmbH kraft bestehenden Geschäftsgebrauchs nicht als Doppelmakler tätig.

 

Für eine Besichtigung bitten wir um Ihre Kontaktaufnahme!

 

BITTE BEACHTEN SIE, DASS WIR AUFGRUND DER NACHWEISPFLICHT GEGENÜBER DEM EIGENTÜMER NUR ANFRAGEN MIT VOLLSTÄNDIGER ANGABE DER ANSCHRIFT BEARBEITEN KÖNNEN.

 

Der Immobilienmakler erklärt, dass er entgegen dem in der Immobilienwirtschaft üblichen Geschäftsgebrauch des Doppelmaklers einseitig nur für den Vermieter tätig ist.


Infrastruktur / Entfernungen

Gesundheit
Arzt <500m
Apotheke <1.000m
Klinik <500m
Krankenhaus <1.000m

Kinder & Schulen
Schule <500m
Kindergarten <500m
Universität <1.000m
Höhere Schule <1.000m

Nahversorgung
Supermarkt <1.000m
Bäckerei <500m
Einkaufszentrum <2.000m

Sonstige
Geldautomat <1.000m
Bank <500m
Post <1.000m
Polizei <1.000m

Verkehr
Bus <500m
Straßenbahn <1.000m
Autobahnanschluss <3.500m
Bahnhof <1.000m
Flughafen <9.000m

Angaben Entfernung Luftlinie / Quelle: OpenStreetMap

Objekt ist für eine Wohngemeinschaft geeignet
Kabel/SAT/TV: JA
Rollstuhlgerecht: JA
Provision: Gemäß Erstauftraggeberprinzip bezahlt der Abgeber die Provision.


Alle Details anzeigen

KONTAKT






 

Lasse dich kostenlos vom Anbieter dieser Immobilie zurückrufen.







 


 
Bischof Immobilien Ges.m.b.H
Klaus jun Bischof
Telefonnummer anzeigen Telefon Allgemein: +43357286882
 
Bitte dem Makler die FindMyHome.at - ID bekanntgeben: 5581106

Bewertungen dieses Anbieters
Netiquette
Freundlichkeit

BEWERTUNGEN DIESES ANBIETERS

 
Freundlichkeit
BESONDERS
FREUNDLICH
Netiquette
FINDMYHOME
NETIQUETTE
Auch du kannst bewerten! 7 Tage nach deiner Anfrage erhältst du dafür von uns ein Bewertungsmail.
Alle Infos zu unseren Auszeichnungen und dem FINDMYHOME.AT Qualitätsprogramm findest du hier: Übersicht anzeigen


Du willst wissen, wie viel dein Umzug kosten wird?

Mach gleich den kostenlosen Preisvergleich und schau, welche seriösen Anbieter in deiner Region günstig deinen Umzug organisieren


ZUM UMZUGS-VERGLEICH
-->

MYHOME BLOG
SuchAgentin auf FindMyHome.at
Unterschiedlichen Rechtsthemen, köstliche Rezepte, neueste Design-Highlights, sowie aktuelle Technik-Tools für Ihr Eigenheim.


FINDMYHOME.AT SUCHAGENTIN
SuchAgentin auf FindMyHome.at
Hallo, soll ich dir ähnliche Immobilien kostenfrei per E-Mail schicken?


ÄHNLICHE IMMOBILIEN
Aehnliche Immobilie - Vorschaubild 1

Ihr Traumzuhause wartet - Objektnr. 5437607


59,48 m² - 2.0 Zimmer
899 €
PLZ: 8020

Mehr anzeigen

Aehnliche Immobilie - Vorschaubild 2

Ihr Traumzuhause wartet - Objektnr. 5565117


62,36 m² - 3.0 Zimmer
989 €
PLZ: 8020

Mehr anzeigen

Aehnliche Immobilie - Vorschaubild 3

| 1. MONAT MIETFREI | 4. ETAGE | AB JÄNNER 2026 VERFÜGBAR | ... - Objektnr. 5577330

50,55 m² - 2.0 Zimmer
769 €
PLZ: 8020

Mehr anzeigen

Durch die Nutzung unserer Seite erklären Sie sich mit der Verwendung von Cookies zur Verbesserung Ihres Online-Erlebnisses einverstanden. Detaillierte Informationen zu diesem und weiteren Themen erhalten Sie in unserer Datenschutzerklärung.