Stilvolle Dachterrassenwohnung mit einzigartiger Aussicht - Objektnr. 5581007
WEITERE MEDIEN
ECKDATEN
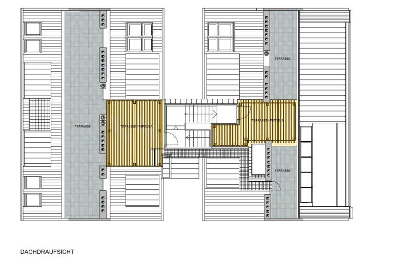
BESCHREIBUNG
KONTAKT
Lasse dich kostenlos vom Anbieter dieser Immobilie zurückrufen.
AKKADIA Immobilienvermittlung GmbH
Elijah Euler-Rolle
Elijah Euler-Rolle
Telefonnummer anzeigen
Telefon Allgemein: +431512908558
Handy Bearbeiter: +431512908558
Bitte dem Makler die FindMyHome.at - ID bekanntgeben: 5581007
Handy Bearbeiter: +431512908558
Bitte dem Makler die FindMyHome.at - ID bekanntgeben: 5581007
BEWERTUNGEN DIESES ANBIETERS
WIRD GERNE
WEITEREMPFOHLEN
WEITEREMPFOHLEN
BESONDERS
FREUNDLICH
FREUNDLICH
FINDMYHOME.AT
NETIQUETTE
NETIQUETTE
Auch du kannst bewerten! 7 Tage nach deiner Anfrage erhältst du dafür von uns ein Bewertungsmail.
Alle Infos zu unseren Auszeichnungen und dem FINDMYHOME.AT Qualitätsprogramm findest du hier: Übersicht anzeigen
Alle Infos zu unseren Auszeichnungen und dem FINDMYHOME.AT Qualitätsprogramm findest du hier: Übersicht anzeigen
Du willst wissen, wie viel dein Umzug kosten wird?
Mach gleich den kostenlosen Preisvergleich und schau, welche seriösen Anbieter in deiner Region günstig deinen Umzug organisieren
ZUM UMZUGS-VERGLEICH




































