MEIN ERGEBNIS ANPASSEN

++NEU++ LEGALE KURZZEITVERMIETUNG 4 OBJEKTE ZUM SELBSTVERWIRKLICHEN - Objektnr. 5578886

1100
Ort
102,00 m²
Fläche
5.0
Zimmer

ECKDATEN
FindMyHome.at // Externe Immobilien-ID5578886 // 62505
ImmobilienartWohnung - Eigentum
AnschriftQuellenstraße/6-9
1100 Wien
Befeuerung
Fläche102,00 m²
Zimmer5.0
Bad1
WC1
Kaufpreis:€ 299.000,00
Ratenzahlung:Finanzierungsmöglichkeiten für diese Immobilie anzeigen
Provision: 3% des Kaufpreises zzgl. 20% USt.







BESCHREIBUNG

++NEU++ LEGALE KURZZEITVERMIETUNG 4 OBJEKTE ZUM SELBSTVERWIRKLICHEN

Zum Verkauf steht eine ehemalige 102m² große sanierungsbedürftige Altbauwohnung im Erdgeschoss eines soeben ausgebauten Gebäudes. Die Wohnung wurde aufwändig in 4 Unterkunftsräume baupolizeilich umgewidmet. Die Kurzzeitvermietung ist somit Stand 1.1.2026 legal. Zusätzlich ist die Kurzzeitvermietung laut WEV zugelassen. 


Besichtigung

Zur Vereinbarung eines Besichtigungstermins bitten wir Sie, uns unbedingt eine schriftliche Anfrage zukommen zu lassen. Wir antworten verlässlich am selben Tag!


Objektdetails

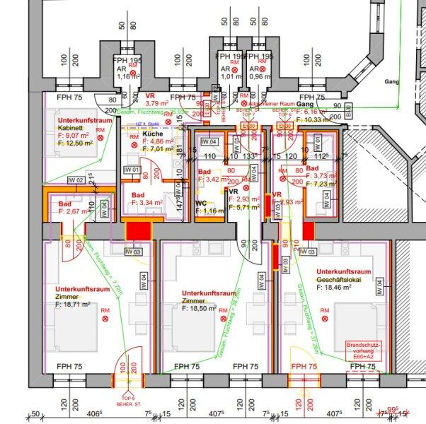
  • Lage: Erdgeschoss
  • Räumlichkeiten:
    • Top 6 ca. 26m²
    • Top 7 ca. 26m²
    • Top 8 ca. 22m²
    • Top 9 ca  21m²

Somit gesamt ca 95m² ohne Abstellräume (siehe Plan)

(Details entnehmen Sie bitte den Fotos und dem Grundriss.)

  • Zustand:
    Das Objekt befindet sich in einem sanierungsbedürftigen Zustand und wird wie sie liegt und steht verkauft.

Das Gebäude

Das Objekt befindet sich im Erdgeschoss eines gepflegten Altbaus. Ein Dachgeschossausbau wurde soeben fertiggestellt und ein Aufzug eingebaut.

  • Der einmalige Lifterrichtungsbeitrag beträgt:
    • Mezzanin: 4.000 €
    • 1. Stock: 6.000 €
    • 2. und 3. Stock: 8.000 €

Lage

Die Wohnung liegt in der Quellenstraße, einer ruhigen Wohngegend mit hervorragender Infrastruktur:

  • Einkaufsmöglichkeiten: Alle Geschäfte des täglichen Bedarfs befinden sich in unmittelbarer Nähe.
  • Ärztliche Versorgung: Allgemein- und Fachärzte sind fußläufig erreichbar.

Verkehrsanbindung

  • Straßenbahnlinien:
    • 6: Burggasse/Stadthalle Reumannplatz
    • 11: Otto-Probst-Platz Kaiserebersdorf
    • D: Nußdorf Alfred-Adler-Straße

Die Haltestellen sind nur 2 Gehminuten entfernt und bieten eine exzellente Anbindung.


Preis

Kaufpreis: 299.000 €

monatliche Kosten: 331,20 €

  • Vertragserrichtung und Abwicklung:
    ENGINDENIZ Rechtsanwälte für Immobilienrecht GmbH
    Adresse: Marc-Aurel-Straße 6/5, 1010 Wien
    Mindestvertragserrichtungskosten: 3.000 € + Barauslagen + 20 % USt
    Alternativ: 1,5 % des Kaufpreises + Barauslagen + 20 % USt

 

Sollten Sie Fragen haben oder einen Besichtigungstermin wünschen, zögern Sie bitte nicht mich zu kontaktieren. (am besten via E-Mail Anfrage)

Zur Vereinbarung eines Besichtigungstermins lassen Sie uns bitte jedenfalls eine E-Mailanfrage zukommen!

Der IMMY ist die renommierteste Auszeichnung für Wiener Makler- und Verwalterbetriebe im Bereich Wohnimmobilien. Wir sind stolz den goldenen IMMY für das Jahr 2019 gewonnen zu haben!

Vielen Dank vor allem an unsere Kunden! Unser Unternehmen wurde auch zum Besten Start Up und in den Jahren 2015, 2018, 2019 und 2020 als Qualitätsmakler ausgezeichnet!

Bitte achten Sie darauf, dass Sie diese Immobilie, nach Ihrer Anfrage bei Adonia Immobilien, nicht auch bei einem anderen Immobilienmaklerbüro anfragen! Vielen Dank!

Nicht alle unsere Immobilien finden Sie auf den gängigen Plattformen. Wir freuen uns auf Ihren Besuch auf unserer Homepage unter adonia.at 

Wir weisen ausdrücklich auf unser wirtschaftliches Naheverhältnis mit dem Abgeber/ der Abgeberin hin!  Unsere gesetzlichen Pflichten als Doppelmakler werden dadurch jedoch nicht beeinträchtigt. Irrtum und Änderungen vorbehalten. 

Alle hier veröffentlichen Informationen basieren auf den uns von dem Abgeber/ der Abgeberin zur Verfügung gestellten Informationen und wurden nicht selbst erhoben.

Unsere Allgemeinen Geschäftsbedingungen können Sie sowohl in dem Ihnen zugesandten Expose einsehen als auch auf unserer Homepage. Wir weisen ausdrücklich darauf hin, dass diese AGBs Vertragsinhalt werden.

Der Schutz von personenbezogenen Daten ist uns wichtig und auch gesetzlich gefordert. Die Verarbeitung Ihrer personenbezogenen Daten erfolgt nach den datenschutzrechtlichen Bestimmungen. Auf unserer Homepage (unter Datenschutzinformation) finden Sie eine Übersicht die Sie über die wichtigsten Aspekte der Verarbeitung personenbezogener Daten informieren soll.

Wir weisen darauf hin, dass zwischen dem Vermittler und dem zu vermittelnden Dritten ein familiäres oder wirtschaftliches Naheverhältnis besteht.

Der Vermittler ist als Doppelmakler tätig.


Infrastruktur / Entfernungen

Gesundheit
Arzt <750m
Apotheke <250m
Klinik <1.000m
Krankenhaus <2.500m

Kinder & Schulen
Schule <250m
Kindergarten <250m
Universität <250m
Höhere Schule <2.000m

Nahversorgung
Supermarkt <250m
Bäckerei <250m
Einkaufszentrum <1.500m

Sonstige
Geldautomat <250m
Bank <500m
Post <500m
Polizei <1.250m

Verkehr
Bus <250m
U-Bahn <1.000m
Straßenbahn <250m
Bahnhof <500m
Autobahnanschluss <500m

Angaben Entfernung Luftlinie / Quelle: OpenStreetMap

Provision: 3% des Kaufpreises zzgl. 20% USt.


Alle Details anzeigen

KONTAKT






 

Lasse dich kostenlos vom Anbieter dieser Immobilie zurückrufen.







 


 
Adonia Realitätenvermittlung GmbH
Rene Motamedi
Telefonnummer anzeigen Telefon Allgemein: +4369910983719
 
Bitte dem Makler die FindMyHome.at - ID bekanntgeben: 5578886

Bewertungen dieses Anbieters
Qualitätsmakler
Qualitätsmakler:
2015, 2018, 2019, 2020, 2023, 2024,
Netiquette
Freundlichkeit

BEWERTUNGEN DIESES ANBIETERS

 
Qualit�tsmakler
Qualitätsmakler
2015, 2018, 2019, 2020, 22/23, 2024
Freundlichkeit
BESONDERS
FREUNDLICH
Netiquette
FINDMYHOME
NETIQUETTE
Auch du kannst bewerten! 7 Tage nach deiner Anfrage erhältst du dafür von uns ein Bewertungsmail.
Alle Infos zu unseren Auszeichnungen und dem FINDMYHOME.AT Qualitätsprogramm findest du hier: Übersicht anzeigen

FINANZIERUNG
?>

Du willst wissen, wie viel dein Umzug kosten wird?

Mach gleich den kostenlosen Preisvergleich und schau, welche seriösen Anbieter in deiner Region günstig deinen Umzug organisieren


ZUM UMZUGS-VERGLEICH
-->

MYHOME BLOG
SuchAgentin auf FindMyHome.at
Unterschiedlichen Rechtsthemen, köstliche Rezepte, neueste Design-Highlights, sowie aktuelle Technik-Tools für Ihr Eigenheim.


FINDMYHOME.AT SUCHAGENTIN
SuchAgentin auf FindMyHome.at
Hallo, soll ich dir ähnliche Immobilien kostenfrei per E-Mail schicken?


ÄHNLICHE IMMOBILIEN
Aehnliche Immobilie - Vorschaubild 1

3-Zimmer-Altbau mit Potenzial - in Top-Lage des 10. Bezirks... - Objektnr. 5589609

84,00 m² - 3.0 Zimmer
315000 €
PLZ: 1100

Mehr anzeigen

Aehnliche Immobilie - Vorschaubild 2

Gellertplatz - Sanierungsbedürftig - U-Bahn Nähe - Balkon op... - Objektnr. 5575628

116,00 m² - 4.0 Zimmer
348000 €
PLZ: 1100

Mehr anzeigen

Aehnliche Immobilie - Vorschaubild 3

4 Zimmer mit Balkon ? viel Platz, sofort bezugsbereit... - Objektnr. 5589532

104,00 m² - 4.0 Zimmer
339000 €
PLZ: 1100

Mehr anzeigen

Durch die Nutzung unserer Seite erklären Sie sich mit der Verwendung von Cookies zur Verbesserung Ihres Online-Erlebnisses einverstanden. Detaillierte Informationen zu diesem und weiteren Themen erhalten Sie in unserer Datenschutzerklärung.