MEIN ERGEBNIS ANPASSEN

Neues Projekt in der Schwarzelackenau beim Marchfeldkanal - noch 18 Einheiten verfügbar! - Objektnr. 5578120

  • Neues Projekt in der Schwarzelackenau beim Marchfeldkanal - noch 18 Einheiten verfügbar!  /  / 1210 Wien / Bild 0
  • Neues Projekt in der Schwarzelackenau beim Marchfeldkanal - noch 18 Einheiten verfügbar!  /  / 1210 Wien / Bild 1
1210
Ort
88,04 m²
Fläche
2
Zimmer

ECKDATEN
FindMyHome.at // Externe Immobilien-ID5578120 // 27931
ImmobilienartWohnung - Eigentum
Anschrift1210 Wien
HeizungFußbodenheizung
Liftja
Fläche88,04 m²
Zimmer2
Bad1
WC1
 Abstellraum
Kaufpreis:€ 569.000,00
Ratenzahlung:Finanzierungsmöglichkeiten für diese Immobilie anzeigen







BESCHREIBUNG

Neues Projekt in der Schwarzelackenau beim Marchfeldkanal - noch 18 Einheiten verfügbar!

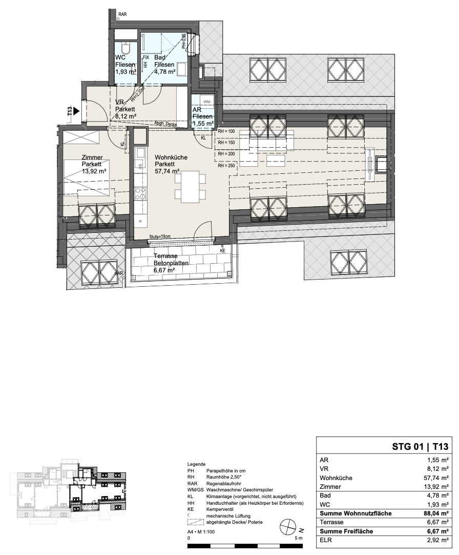
Top 13 | 2 Zimmer | ca. 88 €m² + ca. 7 €m² Freifläche

Die helle, loftartige Wohnung bietet auf ca. 88?m² ein großzügiges Raumgefühl. Herzstück ist die ca. 58?m² große Wohnküche, die durch bodentiefe Fenstertüren und zahlreiche Dachfenster lichtdurchflutet ist. Zusätzlich steht ein weiteres, vielseitig nutzbares Zimmer zur Verfügung. Von der Wohnküche aus gelangt man auf die ca. 7?m² große Terrasse, die den Wohnbereich ins Freie erweitert und für ein offenes, freundliches Ambiente sorgt.

Raumaufteilung:

  • Abstellraum: ca. 1,55?m²
  • Vorraum: ca. 8,12?m²
  • Wohnküche: ca. 57,74?m²
  • Zimmer: ca. 13,92?m²
  • Bad: ca. 4,78?m²
  • WC: ca. 1,93?m²
  • Terrasse: ca. 6,67?m²

Ein Kellerabteil mit ca. 2,92?m² ist der Wohnung zugeordnet.

Besonders hervorzuheben: Der Bau hat bereits begonnen € das ermöglicht Ihnen als Käufer, gemeinsam mit dem Architekten individuelle Anpassungen in der Raumgestaltung vorzunehmen und Ihre persönlichen Wohnideen zu verwirklichen (solange es noch möglich ist).

Die Architektur ist klar und zeitgemäß, das Wohnkonzept auf langfristige Qualität ausgerichtet: Alle Wohnungen sind  barrierefrei zugänglich. Beheizt wird mittels Luft/Wasser-Wärmepumpe , ergänzt durch eine Photovoltaikanlage zur Unterstützung des Allgemeinstroms. Eine Tiefgarage mit gesamt 19 Stellplätzen , steht Ihnen zur Verfügung. 

Technische Ausstattung & Komfort:

  • Wärmepumpe 
  • Photovoltaik/Solaranlage zur Reduktion von Energie- und Betriebskosten
  • Fußbodenheizung mit Raumthermostaten  
  • Fußbodentemperierung in sämtlichen Zimmern
  • Hochwertige Innenausstattung (Eichenparkett, Feinsteinfliesen u.v.m.)
  • 3?fach verglaste Kunststoff?Alu?Fenster und Sonnenschutz in allen Wohnungen (Rollladen, Raffstores, Markisoletten) 
  • Kleinkinderspielplatz auf Eigengrund

Kaufpreis:

Der  Verkaufspreis   beläuft sich auf  Euro 569.000.-

Diese Wohnung kann auch als  Vorsorge- / Anlagewohnung   mit Umsatzsteuerausweisung (weitere Vermietung verpflichtend!) erworben werden: 

Anlegerpreis: Euro 512.612,61.-  (zzgl. 20% Ust).  

Alle Preise verstehen sich ohne Kücheneinrichtung und Tiefgaragenstellplatz ( á € 32.256.- bzw. 29.059,46.- Netto + USt) , in schlüsselfertiger Ausführung! 

Was überzeugt? Ein klar strukturiertes Konzept, intelligente Grundrisse und eine Lage mit Lebensqualität. Egal ob zur Kapitalanlage oder für den Eigenbedarf € Mit diesem Wohnbauprojekt investieren Sie in Lebensqualität und Substanz! Immobilien gelten als wertbeständige und sichere Anlageform. Alle Wohnungen und Stellplätze können auch als  Vorsorge- / Anlagewohnung   mit Umsatzsteuerausweisung (weitere Vermietung verpflichtend!) erworben werden! 

Sichern Sie sich Ihre neue Vorsorgewohnung - gerne beraten wir Sie dazu!

Infina, Österreichs beliebtester Wohnbau-Finanz-Experte, begleitet Sie ganzheitlich rund um Ihr Immobilienvorhaben.

Unser Team von Immobilienexperten unterstützt Sie beim geplanten Kauf als auch bei einem möglichen Verkauf Ihrer bestehenden Immobilie. Zudem bieten unsere Finanzierungsexperten auf Wunsch maßgeschneiderte Finanzierungslösungen durch den Vergleich der besten Kredite von über 120 Banken in Österreich und Deutschland.

Wir möchten Sie unabhängig, transparent und flexibel als starker Partner in allen Immobilienangelegenheiten unterstützen.

Kontaktieren Sie uns für einen persönlichen Besichtigungstermin oder eine unverbindliche und kostenfreie Finanzierungsberatung.

Was kann Infina noch für Sie tun?

Wenn Sie eine Finanzierung für Ihre Traumimmobilie wünschen, begleiten wir Sie gerne von der strategischen Planung bis zur Realisierung und darüber hinaus. Wir sind Österreichs beliebtester Wohnbau-Finanz-Experte und unsere Mission lautet: Jeder Kunde hat das Recht auf den besten Kredit.

  • Infina kooperiert mit über 120 Banken in Österreich und Deutschland
  • Über 600 Kreditprodukte im Vergleich
  • Über 100-mal vor Ort in ganz Österreich

Ebenso unterstützen wir unsere Kunden beim Verkauf und der Vermietung Ihrer Immobilien sowie bei der Immobiliensuche durch unsere Immobilienexperten.


Wir weisen Sie darauf hin, dass die gemachten Angaben und Informationen lediglich unverbindliche Vorabinformationen sind und daher ohne Gewähr erfolgen. Der Vermittler ist als Doppelmakler tätig.

In der Nähe der großflächigen Grünzone der Schwarzlackenau entsteht ein exklusives Neubau-Wohnprojekt in ruhiger, naturnaher Umgebung
Dieses Projekt ist für alle, die Natur und Freizeit direkt vor der Haustür schätzen.

Naherholung am Wasser: Nur wenige Minuten bis zur Donauinsel, Neuen und Alten Donau € perfekte Bedingungen für Sport, Entspannung und Naturgenuss
Erholung & Freizeitsport: Schwimmen, Fischen, Segeln, Radfahren und Joggen € alles schnell erreichbar.

Nahversorger:
-Eurospar: ca. 750m
-Billa: ca. 800m

Öffentliche Verkehrsmittel:
-Bahnhof Wien Floridsdorf (U6, S1, S2, S3, S4, S7, Regionalzüge):
-Ist der wichtigste Verkehrsknotenpunkt im Bezirk. Mit den Buslinien 30A oder 31A erreicht man den Bahnhof in ca. 10?15 Minuten.

S-Bahn-Station Strebersdorf (S3, S4):
-Diese Station ist mit der Buslinie 32A gut erreichbar.




Barrierefrei: JA


Provision: 20.484,00 € inkl. 20 % USt.


Alle Details anzeigen

KONTAKT






 

Lasse dich kostenlos vom Anbieter dieser Immobilie zurückrufen.







 


 
INFINA Credit Broker GmbH
Benjamin Bornschein
Telefonnummer anzeigen Handy Bearbeiter: +436644255264
 
Bitte dem Makler die FindMyHome.at - ID bekanntgeben: 5578120

Bewertungen dieses Anbieters
Netiquette

BEWERTUNGEN DIESES ANBIETERS

 
Netiquette
FINDMYHOME.AT
NETIQUETTE
Auch du kannst bewerten! 7 Tage nach deiner Anfrage erhältst du dafür von uns ein Bewertungsmail.
Alle Infos zu unseren Auszeichnungen und dem FINDMYHOME.AT Qualitätsprogramm findest du hier: Übersicht anzeigen

FINANZIERUNG
?>

Du willst wissen, wie viel dein Umzug kosten wird?

Mach gleich den kostenlosen Preisvergleich und schau, welche seriösen Anbieter in deiner Region günstig deinen Umzug organisieren


ZUM UMZUGS-VERGLEICH
-->

MYHOME BLOG
SuchAgentin auf FindMyHome.at
Unterschiedlichen Rechtsthemen, köstliche Rezepte, neueste Design-Highlights, sowie aktuelle Technik-Tools für Ihr Eigenheim.


FINDMYHOME.AT SUCHAGENTIN
SuchAgentin auf FindMyHome.at
Hallo, soll ich dir ähnliche Immobilien kostenfrei per E-Mail schicken?


ÄHNLICHE IMMOBILIEN
Aehnliche Immobilie - Vorschaubild 1

Nordglück - Dachgartentraum für Familien oder Paare - 4 Zimm... - Objektnr. 5567892

103,17 m² - 4 Zimmer
648000 €
PLZ: 1210

Mehr anzeigen

Aehnliche Immobilie - Vorschaubild 2

Nordglück - Großzügig wohnen mit Stil 4-Zimmer-Wohnung Top-A... - Objektnr. 5568314

94,86 m² - 4 Zimmer
540000 €
PLZ: 1210

Mehr anzeigen

Aehnliche Immobilie - Vorschaubild 3

Neues Projekt in der Schwarzelackenau beim Marchfeldkanal - ... - Objektnr. 5578127

73,18 m² - 3 Zimmer
513000 €
PLZ: 1210

Mehr anzeigen

Durch die Nutzung unserer Seite erklären Sie sich mit der Verwendung von Cookies zur Verbesserung Ihres Online-Erlebnisses einverstanden. Detaillierte Informationen zu diesem und weiteren Themen erhalten Sie in unserer Datenschutzerklärung.