MEIN ERGEBNIS ANPASSEN

Renovierungsbedürftige 4,5-Zimmer Wohnung in zentraler Lage - Objektnr. 5571878

1050
Ort
147,42 m²
Fläche
4.5
Zimmer

ECKDATEN
FindMyHome.at // Externe Immobilien-ID5571878 // 5097
ImmobilienartWohnung - Eigentum
Anschrift1050 Wien,Margareten
Baujahr1910
Stock1
Fläche147,42 m²
Zimmer4.5
Bad1
WC2
 Abstellraum
Kaufpreis:€ 849.000,00
Ratenzahlung:Finanzierungsmöglichkeiten für diese Immobilie anzeigen
Provision: 3% des Kaufpreises zzgl. 20% USt.







BESCHREIBUNG

Renovierungsbedürftige 4,5-Zimmer Wohnung in zentraler Lage

Im Falle der Notwendigkeit einer Fremdfinanzierung Ihrer Wunschimmobilie ermittelt unser Wohnbau-Finanzierungsexperte gerne die optimale Finanzierungslösung und findet das passende Zins- und Konditionsangebot für Sie. Er vergleicht die aktuellen Angebote aller relevanten Banken und Bausparkassen. Der Angebotsvergleich kann aus einem Portfolio von über 120 Banken erfolgen. Das Erstgespräch ist für Sie kostenfrei und unverbindlich, gerne auch bei Ihnen vor Ort. So sparen Sie Ihre wertvolle Zeit und erhalten eine professionelle und unabhängige Finanzierungslösung vom Spezialisten. Sprechen Sie uns wegen eines Termins gerne an!

 

Zum Verkauf gelangt eine renovierungsbedürftige 4,5-Zimmer Wohnung im 5. Wiener Gemeindebezirk

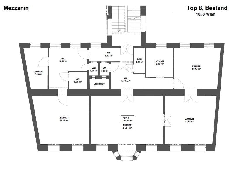
Die Liegenschaft befindet sich im 1. Stock eines im Jahre 1910 erbauten Altbaus und erstreckt sich über eine Wohnfläche von ca. 147 m². Die Wohnung teilt sich in mehrere Vorräume, eine Küche, 4 Zimmer, 1 Kabinett, 1 Badezimmer und zwei separate Toiletten auf. Das Objekt überzeugt mit Fischgrätparkett, wunderschönen Flügeltüren und traumhaftem Stuck. In den nächsten 6 Monaten wird außerdem ein Aufzug auf Kosten des Eigentümers installiert.

Sie betreten die Wohnung und befinden sich im ca. 5 m² großen Vorraum. Gerade durch die schöne Flügeltür hindurch, erreichen Sie einen weiteren ca. 10 m² großen Vorraum, welcher das Badezimmer, die Küche, ein WC, ein 17 m² großes Schlafzimmer und das absolute Highlight der Wohnung, der traumhafte Salon, miteinander verbindet. Der märchenhafte ca. 34 m² große Salon verfügt über einen wunderschönen Erker und viele Fenster. Die süd-östliche Ausrichtung garantiert Ihnen viel Tageslicht und sorgt für eine angenehme Atmossphäre. Über das Wohnzimmer können Sie ein weiteres ca. 22 m² großes Zimmer betretet. Zurück zum Vorraum, wenn Sie diesem Rechterhand folgen, erreichen Sie die restlichen Räumlichkeiten der Wohnung, das ca. 24 m² große Schlafzimmer, ein ca. 8 m² großes Kabinett und einen praktischen Abstellraum, sowie ein weiteres WC. 

Diese imposante Altbauwohnung sprüht nur so von Wiener Architekturgeschichte. Gerade wegen des renovierungsbedürftigen Zustandes hat diese Wohnung einzigartiges Entwicklungspotenzial.

Die Lage und Infrastruktur der Wohnung ist als sehr gut zu bewerten. In unmittelbarer Nähe befinden sich diverse Geschäfte des täglichen Lebens (Supermarkt, Kiosk etc.). Ebenso sind mehrere Restaurants fußläufig erreichbar. Die Anbindung an den öffentlichen Verkehr ist durch die U4 sowie die Autobuslinien 12A, 13A und 59A gewährleistet. Für genauere Informationen zur Infrastruktur, fordern Sie bitte unser Exposé an.

Gerne lassen wir Ihnen bei ernsthaftem Interesse - vor Kaufanbotlegung - weitere vertraulichen Dokumente zu dieser Liegenschaft zukommen, welche nicht veröffentlicht werden dürfen.

Überzeugen Sie sich selbst von diesem überaus attraktiven Objekt. Für Besichtigungen und nähere Informationen stehen wir Ihnen gerne zur Verfügung!

Mag. Viola Wasmuth
national - Tel: 0670 4039361
international - Tel: +43 670 4039361
e-mail:

Wir weisen darauf hin, dass zwischen dem Vermittler und dem zu vermittelnden Dritten ein familiäres oder wirtschaftliches Naheverhältnis besteht.

Der Vermittler ist als Doppelmakler tätig.

 

 


Infrastruktur / Entfernungen

Gesundheit
Arzt <500m
Apotheke <500m
Klinik <500m
Krankenhaus <1.000m

Kinder & Schulen
Schule <500m
Kindergarten <500m
Universität <1.000m
Höhere Schule <500m

Nahversorgung
Supermarkt <500m
Bäckerei <500m
Einkaufszentrum <1.000m

Sonstige
Geldautomat <500m
Bank <500m
Post <500m
Polizei <500m

Verkehr
Bus <500m
U-Bahn <500m
Straßenbahn <1.000m
Bahnhof <500m
Autobahnanschluss <4.000m

Angaben Entfernung Luftlinie / Quelle: OpenStreetMap

Provision: 3% des Kaufpreises zzgl. 20% USt.


Alle Details anzeigen

KONTAKT






 

Lasse dich kostenlos vom Anbieter dieser Immobilie zurückrufen.







 


 
IM Lifestyle Properties GmbH
Viola Wasmuth
Telefonnummer anzeigen Telefon Allgemein: +4315121484
Handy Bearbeiter: +436704039361
 
Bitte dem Makler die FindMyHome.at - ID bekanntgeben: 5571878

Bewertungen dieses Anbieters
Qualitätsmakler
Qualitätsmakler:
2019, 2023,
Netiquette
Freundlichkeit

BEWERTUNGEN DIESES ANBIETERS

 
Qualit�tsmakler
Qualitätsmakler
2019, 22/23
Freundlichkeit
BESONDERS
FREUNDLICH
Netiquette
FINDMYHOME
NETIQUETTE
Auch du kannst bewerten! 7 Tage nach deiner Anfrage erhältst du dafür von uns ein Bewertungsmail.
Alle Infos zu unseren Auszeichnungen und dem FINDMYHOME.AT Qualitätsprogramm findest du hier: Übersicht anzeigen

FINANZIERUNG
?>

Du willst wissen, wie viel dein Umzug kosten wird?

Mach gleich den kostenlosen Preisvergleich und schau, welche seriösen Anbieter in deiner Region günstig deinen Umzug organisieren


ZUM UMZUGS-VERGLEICH
-->

MYHOME BLOG
SuchAgentin auf FindMyHome.at
Unterschiedlichen Rechtsthemen, köstliche Rezepte, neueste Design-Highlights, sowie aktuelle Technik-Tools für Ihr Eigenheim.


FINDMYHOME.AT SUCHAGENTIN
SuchAgentin auf FindMyHome.at
Hallo, soll ich dir ähnliche Immobilien kostenfrei per E-Mail schicken?


ÄHNLICHE IMMOBILIEN
Aehnliche Immobilie - Vorschaubild 1

Altbaucharme mit großem Potenzial – 5-Zimmerwohnung im Herze... - Objektnr. 5571479

147,42 m² - 5 Zimmer
849000 €
PLZ: 1050

Mehr anzeigen

Aehnliche Immobilie - Vorschaubild 2

Außergewöhnliche Wohnung mit Loft-Charakter in Toplage!... - Objektnr. 5572908

118,00 m² - 2.5 Zimmer
690000 €
PLZ: 1050

Mehr anzeigen

Aehnliche Immobilie - Vorschaubild 3

Schönbrunner Straße 60 - Elegante Altbau-Stadtresidenzen... - Objektnr. 5571555

147,42 m² - 6.0 Zimmer
849000 €
PLZ: 1050

Mehr anzeigen

Durch die Nutzung unserer Seite erklären Sie sich mit der Verwendung von Cookies zur Verbesserung Ihres Online-Erlebnisses einverstanden. Detaillierte Informationen zu diesem und weiteren Themen erhalten Sie in unserer Datenschutzerklärung.