MEIN ERGEBNIS ANPASSEN

#SQ - ERSTBEZUG NÄHE MÄRZSTRASSE: DACHTERRASSENWOHNUNG IN RUHELAGE! - Objektnr. 5571143

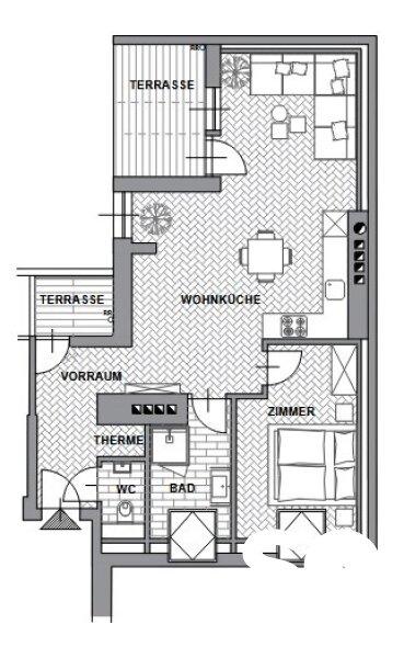
  • Grundriss
1150
Ort
59,85 m²
Fläche
2.0
Zimmer

ECKDATEN
FindMyHome.at // Externe Immobilien-ID5571143 // 20959
ImmobilienartWohnung - Eigentum
Anschrift1150 Wien,Rudolfsheim-Fünfhaus
Fläche59,85 m²
Terrassen2 (9,00 m²)
Zimmer2.0
Bad1
WC1
Kaufpreis:€ 399.000,00
Ratenzahlung:Finanzierungsmöglichkeiten für diese Immobilie anzeigen
Provision: 3% vom KP zzgl. gesetzl. MwSt.







BESCHREIBUNG

#SQ - ERSTBEZUG NÄHE MÄRZSTRASSE: DACHTERRASSENWOHNUNG IN RUHELAGE!

Zum Verkauf gelangt ein Erstbezug, eine topsanierte 2-Zimmer-Wohnung mit 2 Terrassen im Dachgeschoss eines Altbaus, wenige Minuten zu Fuß entfernt von der nächsten U3-Station. Die Liegenschaft verfügt über einen Personenlift.

Im gesamten Gebäude werden im Dachgeschoss insgesamt 5 Einheiten verkauft, ca. 60 - 87m² zzgl. Außenflächen. Die Wohnungen sind mit sehr viel Liebe zum Detail fertiggestellt worden. Für die Ausstattung der Wohnungen wurden ausschließlich hochwertige Materialien verwendet. Kein Wunsch bleibt hier offen!

Eckdaten im Überblick:
Gewichtete WNFL: ca. 64,60m²
Wohnfläche: ca. 59,85m²  
Terrassen: ca. 9,49m²
Zimmer: 2
Küche: Anschlüsse verfügbar
Bad: 1
WC: 1
Lift: ja

Raumaufteilung:
Vorraum
Wohnküche
Schlafzimmer
Bad mit Dusche
WC
2 Terrassen

Ausstattung:
3-fach verglaste Fenster und Fenstertüren, Aluminium
Beschattung (Raffstore)
FAKRO GREENVIEW Dachflächen-Schwingfenster mit hoher Energieeffizienz
Stahlsicherheitstüre WK3 mit Mehrfachverriegelung
Luftwärmepumpe (Vaillant)
Fußbodenheizung
Vorbereitung für Klimageräte in jedem Zimmer (Wohn- und Schlafzimmer)
Wohnräume/Küche/Esszimmer: Französisches Fischgrät
BAD, WC: Grande Paonazzetto | 9,5mm/ 60x120cm
Terrassenholz: Thermokiefer oder gleichwertiges
Bad: Deckenspots, Handtuchtrockner, Radio (GIRA)

Kosten:
Kaufpreis: EUR 399.000,--
Provision: 3% vom KP zzgl. gesetzl. MwSt.

Hinweis: Die Fotos im Exposee sind zT. von der spiegelverkehrten Wohnung vis-a-vis.

**Nähere Informationen zur Gebührenbefreiung finden Sie unter: https://www.bmj.gv.at/themen/Fokusthemen/Befreiung-von-der-Grundbuch-Eintragungsgebühr-bei-Erwerb-von-Wohnraum.html

Es stehen noch weitere Wohnungen im Dachgeschoß zum Verkauf!
Gerne stehen wir Ihnen für nähere Informationen zur Verfügung.

Hinweis gemäß Energieausweisvorlagegesetz: Ein Energieausweis wurde vom Eigentümer bzw. Verkäufer, nach unserer Aufklärung über die generell geltende Vorlagepflicht, sowie Aufforderung zu seiner Erstellung noch nicht vorgelegt. Daher gilt zumindest eine dem Alter und der Art des Gebäudes entsprechende Gesamtenergieeffizienz als vereinbart. Wir übernehmen keinerlei Gewähr oder Haftung für die tatsächliche Energieeffizienz der angebotenen Immobilie.

Wir weisen darauf hin, dass zwischen dem Vermittler und dem zu vermittelnden Dritten ein familiäres oder wirtschaftliches Naheverhältnis besteht.

Der Vermittler ist als Doppelmakler tätig.


Infrastruktur / Entfernungen

Gesundheit
Arzt <500m
Apotheke <500m
Klinik <1.500m
Krankenhaus <2.000m

Kinder & Schulen
Schule <500m
Kindergarten <500m
Universität <1.000m
Höhere Schule <1.500m

Nahversorgung
Supermarkt <500m
Bäckerei <500m
Einkaufszentrum <500m

Sonstige
Geldautomat <500m
Bank <500m
Post <1.000m
Polizei <500m

Verkehr
Bus <500m
U-Bahn <500m
Straßenbahn <500m
Bahnhof <500m
Autobahnanschluss <5.000m

Angaben Entfernung Luftlinie / Quelle: OpenStreetMap

Provision:


Alle Details anzeigen

KONTAKT






 

Lasse dich kostenlos vom Anbieter dieser Immobilie zurückrufen.







 


 
STADTQUARTIER Home GmbH
Mona Taghavi
Telefonnummer anzeigen Telefon Allgemein: +436502311113
Handy Bearbeiter: +436502311113
 
Bitte dem Makler die FindMyHome.at - ID bekanntgeben: 5571143

Bewertungen dieses Anbieters
Qualitätsmakler
Qualitätsmakler:
2013, 2018, 2019, 2021,
Netiquette
Freundlichkeit

BEWERTUNGEN DIESES ANBIETERS

 
Qualit�tsmakler
Qualitätsmakler
2013, 2018, 2019, 2021
Freundlichkeit
BESONDERS
FREUNDLICH
Netiquette
FINDMYHOME
NETIQUETTE
Auch du kannst bewerten! 7 Tage nach deiner Anfrage erhältst du dafür von uns ein Bewertungsmail.
Alle Infos zu unseren Auszeichnungen und dem FINDMYHOME.AT Qualitätsprogramm findest du hier: Übersicht anzeigen

FINANZIERUNG
?>

Du willst wissen, wie viel dein Umzug kosten wird?

Mach gleich den kostenlosen Preisvergleich und schau, welche seriösen Anbieter in deiner Region günstig deinen Umzug organisieren


ZUM UMZUGS-VERGLEICH
-->

MYHOME BLOG
SuchAgentin auf FindMyHome.at
Unterschiedlichen Rechtsthemen, köstliche Rezepte, neueste Design-Highlights, sowie aktuelle Technik-Tools für Ihr Eigenheim.


FINDMYHOME.AT SUCHAGENTIN
SuchAgentin auf FindMyHome.at
Hallo, soll ich dir ähnliche Immobilien kostenfrei per E-Mail schicken?


ÄHNLICHE IMMOBILIEN
Aehnliche Immobilie - Vorschaubild 1

HERBSTAKTION - NEUE PREISE | 2-Zimmer Altbauwohnung mit gerä... - Objektnr. 5562324

63,24 m² - 2.0 Zimmer
380000 €
PLZ: 1150

Mehr anzeigen

Aehnliche Immobilie - Vorschaubild 2

Hochwertigste Ausstattung in wunderschönem Altbau... - Objektnr. 5571456

52,29 m² - 2.0 Zimmer
325000 €
PLZ: 1150

Mehr anzeigen

Aehnliche Immobilie - Vorschaubild 3

HERBSTAKTION - NEUE PREISE | 2-Zimmer Altbauwohnung mit groß... - Objektnr. 5562326

53,83 m² - 2.0 Zimmer
349000 €
PLZ: 1150

Mehr anzeigen

Durch die Nutzung unserer Seite erklären Sie sich mit der Verwendung von Cookies zur Verbesserung Ihres Online-Erlebnisses einverstanden. Detaillierte Informationen zu diesem und weiteren Themen erhalten Sie in unserer Datenschutzerklärung.