MEIN ERGEBNIS ANPASSEN

Altbauwohnung beim Parlament - ERSTBEZUG - Objektnr. 5570963

  • Plan
1010
Ort
€ 4.186,82
Gesamtkosten
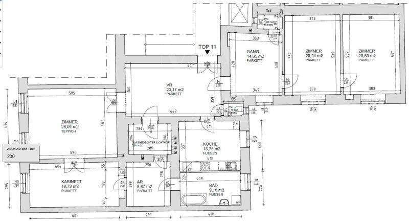
166,00 m²
Fläche
5.0
Zimmer

ECKDATEN
FindMyHome.at // Externe Immobilien-ID5570963 // 1096/19749
ImmobilienartWohnung - Miete
Anschrift1010 Wien
Baujahr1900
Befeuerung
Mietdauer5
Fläche166,00 m²
Zimmer5.0
Bad1
WC2
Kaution:€ 14.372,00
Brutto-Miete:€ 4.186,82
Betriebskosten (inkl. MwSt):€ 539,00
Mehrwertsteuer:€ 380,62
Monatliche Gesamtkosten:€ 4.186,82
Provision: Gemäß Erstauftraggeberprinzip bezahlt der Abgeber die Provision.




BESCHREIBUNG

Altbauwohnung beim Parlament - ERSTBEZUG

Erstbezug nach Renovierung - Altbauwohnung zentraler Lage

RAUMAUFTEILUNG
sehr großer Vorraum, 5 Räume Küche mit Essplatzmöglichkeit,
1 Abstellraum, Tageslicht-Badezimmer mit Wanne, 2 separate Toiletten

AUSSTATTUNG
neue Parkettböden, Fliesen im Bad, hohe Räume, Stuckelemente, neue Holz Kastenfenster, Innen Kombi Brennwerttherme, Aufzug,
trockenes Kellerabteil.

**----------**

First letting after renovation - central but quietly located 

LAYOUT
large entrance area, 5 rooms, spacious kitchen with window, 1 bathroom with bathtub and window, 2 seperate toilets,
storage room

FIXTURES AND FITTINGS
Wooden flooring, tiled bathroom, high ceilings, new windows, new gas heating, elevator, dry storage in basement

LOCATION
great infrastructure due to the proximity to Josefstädterstraße (2 supermarkets) within walking distance and very good public transport (1, 2, 71, D, U2)

Noch nichts gefunden Wir informieren Sie über geeignete Immobilienangebote noch vor allen anderen.
Legen Sie jetzt Ihren individuellen Suchagenten unter folgendem Link an. Wir schicken Ihnen passende Immobilien exklusiv vorab zu.
Suchagent anlegen - https://realkanzlei-hildegard-mayerl-eva-krulis.service.immo/registrieren/de

Hinweis gemäß Energieausweisvorlagegesetz: Ein Energieausweis wurde vom Eigentümer bzw. Verkäufer, nach unserer Aufklärung über die generell geltende Vorlagepflicht, sowie Aufforderung zu seiner Erstellung noch nicht vorgelegt. Daher gilt zumindest eine dem Alter und der Art des Gebäudes entsprechende Gesamtenergieeffizienz als vereinbart. Wir übernehmen keinerlei Gewähr oder Haftung für die tatsächliche Energieeffizienz der angebotenen Immobilie.

Wir weisen darauf hin, dass zwischen dem Vermittler und dem zu vermittelnden Dritten ein familiäres oder wirtschaftliches Naheverhältnis besteht.

Der Immobilienmakler erklärt, dass er entgegen dem in der Immobilienwirtschaft üblichen Geschäftsgebrauch des Doppelmaklers einseitig nur für den Vermieter tätig ist.


Infrastruktur / Entfernungen

Gesundheit
Arzt <500m
Apotheke <500m
Klinik <1.000m
Krankenhaus <1.500m

Kinder & Schulen
Schule <500m
Kindergarten <1.000m
Universität <1.000m
Höhere Schule <1.000m

Nahversorgung
Supermarkt <500m
Bäckerei <500m
Einkaufszentrum <1.000m

Sonstige
Geldautomat <500m
Bank <500m
Post <500m
Polizei <500m

Verkehr
Bus <500m
U-Bahn <500m
Straßenbahn <500m
Bahnhof <500m
Autobahnanschluss <4.000m

Angaben Entfernung Luftlinie / Quelle: OpenStreetMap

Provision: Gemäß Erstauftraggeberprinzip bezahlt der Abgeber die Provision.


Alle Details anzeigen

KONTAKT






 

Lasse dich kostenlos vom Anbieter dieser Immobilie zurückrufen.







 


 
MAYERL IMMOBILIEN
Eva Krulis
Telefonnummer anzeigen Telefon Allgemein: +431479411710
 
Bitte dem Makler die FindMyHome.at - ID bekanntgeben: 5570963

Bewertungen dieses Anbieters
Netiquette

BEWERTUNGEN DIESES ANBIETERS

 
Netiquette
FINDMYHOME.AT
NETIQUETTE
Auch du kannst bewerten! 7 Tage nach deiner Anfrage erhältst du dafür von uns ein Bewertungsmail.
Alle Infos zu unseren Auszeichnungen und dem FINDMYHOME.AT Qualitätsprogramm findest du hier: Übersicht anzeigen


Du willst wissen, wie viel dein Umzug kosten wird?

Mach gleich den kostenlosen Preisvergleich und schau, welche seriösen Anbieter in deiner Region günstig deinen Umzug organisieren


ZUM UMZUGS-VERGLEICH
-->

MYHOME BLOG
SuchAgentin auf FindMyHome.at
Unterschiedlichen Rechtsthemen, köstliche Rezepte, neueste Design-Highlights, sowie aktuelle Technik-Tools für Ihr Eigenheim.


FINDMYHOME.AT SUCHAGENTIN
SuchAgentin auf FindMyHome.at
Hallo, soll ich dir ähnliche Immobilien kostenfrei per E-Mail schicken?


ÄHNLICHE IMMOBILIEN
Aehnliche Immobilie - Vorschaubild 1

Erstbezug! Elegante 5-Zimmer Altbauwohnung Nähe Hoher Markt... - Objektnr. 5483612

190,61 m² - 5.0 Zimmer
4523.97 €
PLZ: 1010

Mehr anzeigen

Aehnliche Immobilie - Vorschaubild 2

Nahe Stadtpark - Design-Altbau mit kleinem Balkon - perfekte... - Objektnr. 5574414

140,11 m² - 4.0 Zimmer
3786.75 €
PLZ: 1010

Mehr anzeigen

Aehnliche Immobilie - Vorschaubild 3

DACHMAISONETTE MIT BALKON - AB JÄNNER 2026 - Objektnr. 5551999


154,00 m² - 3.0 Zimmer
4105.07 €
PLZ: 1010

Mehr anzeigen

Durch die Nutzung unserer Seite erklären Sie sich mit der Verwendung von Cookies zur Verbesserung Ihres Online-Erlebnisses einverstanden. Detaillierte Informationen zu diesem und weiteren Themen erhalten Sie in unserer Datenschutzerklärung.