MEIN ERGEBNIS ANPASSEN

Wunderschöne AltbauWohnung in sehr guter Lage - Objektnr. 5569097

1070
Ort
€ 2.194,94
Gesamtkosten
135,00 m²
Fläche
3.5
Zimmer

ECKDATEN
FindMyHome.at // Externe Immobilien-ID5569097 // 7111
ImmobilienartWohnung - Miete
AnschriftLindengasse
1070 Wien
Baujahr1900
Stock2
Mietdauerunbefristet
Fläche135,00 m²
Zimmer3.5
Bad1
WC1
Kaution:€ 7.000,00
Brutto-Miete:€ 2.194,94
Betriebskosten (inkl. MwSt):€ 281,69
Mehrwertsteuer:€ 199,54
Monatliche Gesamtkosten:€ 2.194,94
Provision: Gemäß Erstauftraggeberprinzip bezahlt der Abgeber die Provision.




BESCHREIBUNG

Wunderschöne AltbauWohnung in sehr guter Lage

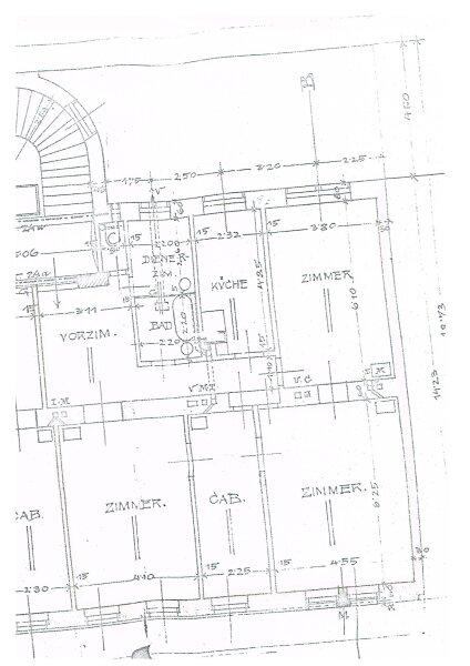
Eckdaten und Raumaufteilung:

- Wohnfläche ca. 135 m2

- geräumiges Vorzimmer 

- Platz für Garderobe oder Einbauschrank

- 3 sehr große Zimmer 

- 1 größeres Kabinett

- Küchenbereich mit Anschlüssen für die Küche

- großes Badezimmer mit Wanne, Dusche, Waschbecken

- Toilette ist separat

- Stuck an der Decke

- Holzkastenfenster 

- Parkettboden (dieser wird gerade geschliffen und versiegelt)

- Nassräume sind verfliest

- Kamin (funktionstüchtig)

- Kabinett und zwei Zimmer sind straßenseitig

- 1 Zimmer hofseitig

- 1. Stock

- Lift ist vorhanden

- Fahrräder können im Innenhofe abgestellt werden 

- Wohnung wird noch ausgemalt

- ab Dezember verfügbar

- unbefristete Hauptmiete

 

 

Infrastruktur:

- ausgezeichnete Lage

- Cafès, Bars, Restaurants etc. in unmittelbarer Nähe

- Geschäfte des täglichen Bedarfs in der Umgebung

- U3, Straßenbahn, Autobus etc. zu Fuß erreichbar

 

 

Konditionen:

- Miete inkl. BK und Steuer € 2.194,94

- Kaution € 7.000,00

 

 

WICHTIG: es werden NUR Anfragen mit vollständig ausgefüllten KontaktDaten bearbeitet

Für weitere Fragen stehen wir Ihnen jeder Zeit gerne zur Verfügung. Wir möchten Sie darauf hinweisen, dass die Firma MK Real in einem wirtschaftlichen Naheverhältnis zum Vermieter/Eigentümer steht und gegebenenfalls auch als Doppelmakler tätig ist.

 

Auf unserer Website finden Sie weitere ImmobilienAngebote  http://www.mirela-kristo.at

Bei Interesse kontaktieren Sie bitte

Frau WÖHNHART-KRISTO

+43 (0) 664 306 79 79

 

Maklervereinbarung: Wir ersuchen um Verständnis, dass wir bei Anfragen zur Objektadresse, bzw. Besichtigungstermin aufgrund neuer gesetzlicher Bestimmungen Unterlagen erst dann zusenden können, wenn Sie vorab bestätigen, dass Sie unser sofortiges Tätigwerden wünschen und über Ihre Rücktrittsrechte aufgeklärt wurden. Sie bekommen nach Ihrer schriftlichen Anfrage mit vollständiger Angabe des Namens, Anschrift und Telefonnummer ein Email, in dem Sie diese Punkte bestätigen müssen.

Konditionen: Da es sich um ein Maklerangebot handelt, gelten die Bedingungen der Landesinnung für Immobilien- und Vermögenstreuhänder. Ein entsprechendes Informationsblatt wird dem Exposé beigelegt. Nebenkosten/Kauf: Grunderwerbssteuer 3,5%, Grundbuchseintrag 1,1%, Maklergebühren:3% +20% MwSt.

Nebenkosten/Miete: 2Bruttomonatsmieten bei Wohnimmobilien (Bestellerprinzip), 3 Bruttomonatsmieten bei Gewerbeimmobilien, jeweils + 20% MwSt.

Haftungsausschluss: Wir weisen darauf hin, dass sämtliche Daten im vorliegenden Angebot sowie die von unserem Büro an Sie weitergegebenen Auskünfte, vom Verkäufer der zu vermittelnden Liegenschaft zur Verfügung gestellt wurden. Ebenso sind Informationen von Dritten (z.B. behördliche Informationen) eingeholt worden, auch für diese können wir unsererseits keinerlei Haftung für deren uneingeschränkte Richtigkeit übernehmen.

Der Immobilienmakler erklärt, dass er entgegen dem in der Immobilienwirtschaft üblichen Geschäftsgebrauch des Doppelmaklers einseitig nur für den Vermieter tätig ist.


Infrastruktur / Entfernungen

Gesundheit
Arzt <250m
Apotheke <250m
Klinik <250m
Krankenhaus <1.000m

Kinder & Schulen
Schule <250m
Kindergarten <500m
Universität <750m
Höhere Schule <1.000m

Nahversorgung
Supermarkt <250m
Bäckerei <250m
Einkaufszentrum <250m

Sonstige
Geldautomat <250m
Bank <250m
Post <250m
Polizei <500m

Verkehr
Bus <250m
U-Bahn <250m
Straßenbahn <250m
Bahnhof <250m
Autobahnanschluss <4.500m

Angaben Entfernung Luftlinie / Quelle: OpenStreetMap

Kabel/SAT/TV: JA
Provision: Gemäß Erstauftraggeberprinzip bezahlt der Abgeber die Provision.


Alle Details anzeigen

KONTAKT






 

Lasse dich kostenlos vom Anbieter dieser Immobilie zurückrufen.







 


 
Mirela Kristo Immobilientreuhand GmbH
Mirela WÖHNHART-KRISTO
Telefonnummer anzeigen Telefon Allgemein: +436643067979
 
Bitte dem Makler die FindMyHome.at - ID bekanntgeben: 5569097

Bewertungen dieses Anbieters
Netiquette
75 %

BEWERTUNGEN DIESES ANBIETERS

 
Weiterempfehlung
WIRD GERNE

Netiquette
FINDMYHOME
NETIQUETTE
Auch du kannst bewerten! 7 Tage nach deiner Anfrage erhältst du dafür von uns ein Bewertungsmail.
Alle Infos zu unseren Auszeichnungen und dem FINDMYHOME.AT Qualitätsprogramm findest du hier: Übersicht anzeigen


Du willst wissen, wie viel dein Umzug kosten wird?

Mach gleich den kostenlosen Preisvergleich und schau, welche seriösen Anbieter in deiner Region günstig deinen Umzug organisieren


ZUM UMZUGS-VERGLEICH
-->

MYHOME BLOG
SuchAgentin auf FindMyHome.at
Unterschiedlichen Rechtsthemen, köstliche Rezepte, neueste Design-Highlights, sowie aktuelle Technik-Tools für Ihr Eigenheim.


FINDMYHOME.AT SUCHAGENTIN
SuchAgentin auf FindMyHome.at
Hallo, soll ich dir ähnliche Immobilien kostenfrei per E-Mail schicken?


ÄHNLICHE IMMOBILIEN
Aehnliche Immobilie - Vorschaubild 1

HELL UND SEHR GROSSZÜGIG - HOCHWERTIG SANIERTE 5-ZIMMER-WOHN... - Objektnr. 5568652

127,10 m² - 5.0 Zimmer
2590 €
PLZ: 1070

Mehr anzeigen

Aehnliche Immobilie - Vorschaubild 2

ALTBAUWOHNUNG am SPITTELBERG // CLASSIC STYLE APARTMENT next... - Objektnr. 5550868

138,00 m² - 3.0 Zimmer
2249.81 €
PLZ: 1070

Mehr anzeigen

Aehnliche Immobilie - Vorschaubild 3

LINDENGASSE - Weitläufiger Wohnraum mit Balkon - Objektnr. 5556327

115,00 m² - 3.0 Zimmer
2500 €
PLZ: 1070

Mehr anzeigen

Durch die Nutzung unserer Seite erklären Sie sich mit der Verwendung von Cookies zur Verbesserung Ihres Online-Erlebnisses einverstanden. Detaillierte Informationen zu diesem und weiteren Themen erhalten Sie in unserer Datenschutzerklärung.