Hier einige kurze Informationen zur Immobilie:
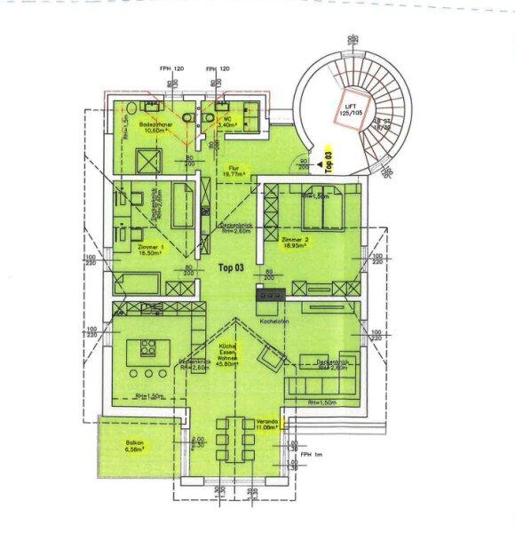
- Nutzfläche ca. 126 m² in traumhafter Dachgeschoßlage
- Süd-Westausrichtung mit großer Terrasse und Weitblick auf die Berge, Stadt und Grünflächen
- Offenes Wohnkonzept mit Design-Küche, Essbereich und Wohnzimmer mit Kaminanschluss
- Moderne Einbauküche mit hochwertigen Geräten für gehobene Ansprüche
- Hochwertiger Kunststoffboden pflegeleicht, vielseitig und visuell zeitlos
- Großes Badezimmer mit Fenster, Dusche, stilvoller Ausstattung, WC
- Personenlift direkt ins Dachgeschoß barrierefreier Zugang zur Wohnung
- Großer, Kellerraum (ca. 16 m²) vielfältig nutzbar, z. B. als Lager, Atelier oder Hobbyraum
- KFZ-Abstellplatz im Freien vorhanden
- Lehmputz im Keller sorgt für ein gutes Raumklima und natürliche Luftfeuchtigkeit
- Fernwärmeheizung zentral, effizient und zukunftssicher
- Wohnungseigentum - nur 3 Einheiten im Objekt - Erstbezug
- Haus in Eigenverwaltung schlanke Struktur, volle Kontrolle, niedrige Betriebskosten
- Beziehbar ab sofort
Die Miete setzt sich zusammen aus:
Nettomiete - € 1.800,-
Umsatzsteuer - € 180,-
Betriebskosten - ca. € 350,-
Infina, Österreichs beliebtester Wohnbau-Finanz-Experte, begleitet Sie ganzheitlich rund um Ihr Immobilienvorhaben.
Die Entscheidung, ob man eine Immobilie mieten oder kaufen möchte, sollte gut überlegt sein. Unser Mieten-oder-Kauf-Vergleichsrechner bietet Ihnen eine optimale finanzielle Entscheidungsgrundlage.
Der Vergleich lohnt sich. Jetzt bei Infina
Mietpreis gesamt EUR 2.330,00
(Sämtliche o.a. m²-Angaben laut Nutzwertgutachten gem. Kauf & Wohnungseigentumsvertrag bzw. Einreichplanung)
Für weitere Informationen fordern Sie bitte unser ausführliches Exposé an.
Nina Prock, MA
nina.prock@infina-partner.at
Was kann Infina noch für Sie tun
Wenn Sie eine Finanzierung für Ihre Traumimmobilie wünschen, begleiten wir Sie gerne von der strategischen Planung bis zur Realisierung und darüber hinaus. Wir sind Österreichs beliebtester Wohnbau-Finanz-Experte und unsere Mission lautet: Jeder Kunde hat das Recht auf den besten Kredit.
- Infina kooperiert mit über 120 Banken in Österreich und Deutschland
- Über 600 Kreditprodukte im Vergleich
- Über 100-mal vor Ort in ganz Österreich
Ebenso unterstützen wir unsere Kunden beim Verkauf und der Vermietung Ihrer Immobilien sowie bei der Immobiliensuche durch unsere Immobilienexperten.
Wir weisen Sie darauf hin, dass die gemachten Angaben und Informationen lediglich unverbindliche Vorabinformationen sind und daher ohne Gewähr erfolgen.
Der Immobilienmakler erklärt, dass er entgegen dem in der Immobilienwirtschaft üblichen Geschäftsgebrauch des Doppelmaklers einseitig nur für den Vermieter tätig ist.
Infrastruktur / Entfernungen
Gesundheit
Arzt <500m
Apotheke <1.000m
Klinik <1.000m
Krankenhaus <1.500m
Kinder & Schulen
Schule <500m
Kindergarten <500m
Universität <1.500m
Höhere Schule <6.000m
Nahversorgung
Supermarkt <1.000m
Bäckerei <1.000m
Einkaufszentrum <4.000m
Sonstige
Bank <1.000m
Geldautomat <1.000m
Post <1.000m
Polizei <1.000m
Verkehr
Bus <500m
Straßenbahn <3.500m
Autobahnanschluss <2.000m
Bahnhof <1.500m
Angaben Entfernung Luftlinie / Quelle: OpenStreetMap
Provision: Gemäß Erstauftraggeberprinzip bezahlt der Abgeber die Provision.