MEIN ERGEBNIS ANPASSEN

Repräsentative, moderne Villa mit Pool in absoluter Grünruhelage - Objektnr. 5565266

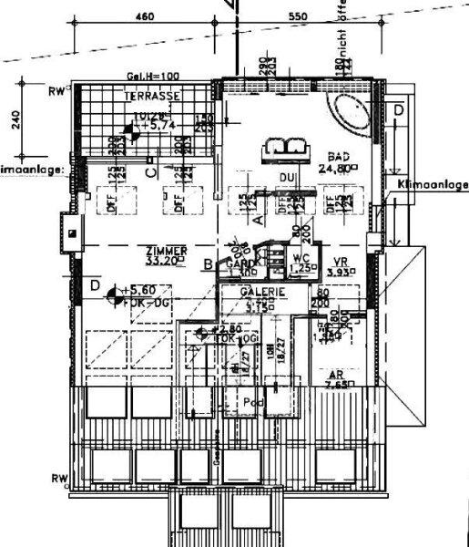
  • Plan EG
  • Plan 1. OG
  • DG
  • Keller
1190
Ort
€ 6.989,00
Gesamtkosten
350,00 m²
Fläche
7.0
Zimmer

ECKDATEN
FindMyHome.at // Externe Immobilien-ID5565266 // 1096/10727
ImmobilienartHaus - Miete
Anschrift1190 Wien
Baujahr2013
Befeuerung
Mietdauer4
Fläche350,00 m²
Grundfläche860,00 m²
Terrassen2 (57,00 m²)
Zimmer7.0
Bad6
WC7
 Abstellraum
Brutto-Miete:€ 6.989,00
Mehrwertsteuer:€ 635,36
Monatliche Gesamtkosten:€ 6.989,00
Provision: Gemäß Erstauftraggeberprinzip bezahlt der Abgeber die Provision.




BESCHREIBUNG

Repräsentative, moderne Villa mit Pool in absoluter Grünruhelage

MODERNE VILLA IN GRÜNRUHELAGE IN GRINZING -
UNEINSICHTIGER SÜDSEITIGER GARTEN, BEHEIZTER OUTDOOR POOL


RAUMAUFTEILUNG
EG: Vorraum, Garderobe, großzügiger Wohn- Essbereich mit Ausgang auf die südseitige Terrasse und in den Garten, Küche (Marke Faulmann und komplett ausgestattet) mit eigenem Eingang und Abstellraum, Gästetoilette, Abstellraum
1.STOCK: 4 (Schlaf)-Zimmer, 3 davon jeweils mit en suite Badezimmer und Toilette und 2 davon mit Zugang auf einen Balkon, Arbeitszimmer oder begehbare Garderobe
DG: Master Bedroom Suite (ca. 62m²) mit Blick in den Garten, Garderobe, Ausgang auf die ca. 16m² große Südterrasse, en suite Badezimmer (Badewanne+Dusche), separate Toilette
SOUTERRAIN: Sauna, Dusche, Toilette, Waschmaschinenanschluss, Abstellräume, Zugang zur Garage
Dienstboten-oder Nannywohnung mit separatem Eingang: Kitchenette, Duschbad mit Toilette, Wohn-Schlafzimmer.

AUSSTATTUNG
Klimanlage, Fußbodenheizung, ca. 860m² uneinsichtiger Garten, beheizter Outdoor Pool, Sauna, voll ausgestattete Küche, Garage/Stellplatz für 3-4 PKW, bis in das Dach hinauf verglastes Stiegenhaus mit italienischen Steinplatten, Parkett in den Schlafzimmern, viele Deckenspots, Alarmanlage

der Mietpreis versteht sich inklusive den gesetzlichen Betriebskosten, verbrauchsabhängiige Kosten (Strom, Gas, Wasser) sowie Gartenpflege und Wartungskosten obliegen dem Mieter.

*----------*

Modern villa with outdoor pool and south-facing garden in best residential area of Grinzing

LAYOUT
ground floor: hall, wardrobe, spacious living-dining area and access to a south-facing terrace and garden, kitchen (brand Faulmann) with separate entrance, pantry
1st floor: 4 (bed-)rooms - two of them with access to a balcony and 3 of them with en-suite bathroom and toilet, study or dressing room
attic floor: master bedroom suite (approx. 62m²) with approx. 16m² south-facing terrace and facing the garden, en-suite bathroom (approx.21m²) with bathtub and shower, wardrobe, toilet separated
basement/souterrain: sauna, shower, toilet, washing machine connection, storeroom, access to the garage
separarte unit (for a maid or nanny) with a separate entrance and access to the garden, kitchenette, shower and toilet and living room/bedroom

FIXTURES AND FITTINGS
approx. 900m² garden, heated outdoor pool, sauna, garage for 3-4 cars, floorheating / gas heating, air conditioning, completely equipped kitchen (brand Faulmann), glazed and well-lit hallway right up to the roof, ground floor: italian marble, bedrooms: wooden flooring, ceiling spots, alarm system
costs for heating, water, electricity as well as the maintainance of garden and pool are NOT included in the total rent!

Noch nichts gefunden Wir informieren Sie über geeignete Immobilienangebote noch vor allen anderen.
Legen Sie jetzt Ihren individuellen Suchagenten unter folgendem Link an. Wir schicken Ihnen passende Immobilien exklusiv vorab zu.
Suchagent anlegen - https://realkanzlei-hildegard-mayerl-eva-krulis.service.immo/registrieren/de

Wir weisen darauf hin, dass zwischen dem Vermittler und dem zu vermittelnden Dritten ein familiäres oder wirtschaftliches Naheverhältnis besteht.

Der Immobilienmakler erklärt, dass er entgegen dem in der Immobilienwirtschaft üblichen Geschäftsgebrauch des Doppelmaklers einseitig nur für den Vermieter tätig ist.


Infrastruktur / Entfernungen

Gesundheit
Arzt <1.000m
Apotheke <500m
Klinik <1.000m
Krankenhaus <2.000m

Kinder & Schulen
Schule <1.000m
Kindergarten <1.000m
Universität <1.500m
Höhere Schule <1.500m

Nahversorgung
Supermarkt <500m
Bäckerei <500m
Einkaufszentrum <2.000m

Sonstige
Geldautomat <1.500m
Bank <500m
Post <500m
Polizei <1.500m

Verkehr
Bus <500m
U-Bahn <2.000m
Straßenbahn <500m
Bahnhof <2.000m
Autobahnanschluss <2.000m

Angaben Entfernung Luftlinie / Quelle: OpenStreetMap

Klimaanlage: JA
Gartennutzung: JA
Swimmingpool: JA
Provision: Gemäß Erstauftraggeberprinzip bezahlt der Abgeber die Provision.


Alle Details anzeigen

KONTAKT






 

Lasse dich kostenlos vom Anbieter dieser Immobilie zurückrufen.







 


 
MAYERL IMMOBILIEN
Eva Krulis
Telefonnummer anzeigen Telefon Allgemein: +431479411710
 
Bitte dem Makler die FindMyHome.at - ID bekanntgeben: 5565266

Bewertungen dieses Anbieters
Netiquette

BEWERTUNGEN DIESES ANBIETERS

 
Netiquette
FINDMYHOME.AT
NETIQUETTE
Auch du kannst bewerten! 7 Tage nach deiner Anfrage erhältst du dafür von uns ein Bewertungsmail.
Alle Infos zu unseren Auszeichnungen und dem FINDMYHOME.AT Qualitätsprogramm findest du hier: Übersicht anzeigen


Du willst wissen, wie viel dein Umzug kosten wird?

Mach gleich den kostenlosen Preisvergleich und schau, welche seriösen Anbieter in deiner Region günstig deinen Umzug organisieren


ZUM UMZUGS-VERGLEICH
-->

MYHOME BLOG
SuchAgentin auf FindMyHome.at
Unterschiedlichen Rechtsthemen, köstliche Rezepte, neueste Design-Highlights, sowie aktuelle Technik-Tools für Ihr Eigenheim.


FINDMYHOME.AT SUCHAGENTIN
SuchAgentin auf FindMyHome.at
Hallo, soll ich dir ähnliche Immobilien kostenfrei per E-Mail schicken?


ÄHNLICHE IMMOBILIEN
Aehnliche Immobilie - Vorschaubild 1

EINFAMILIENHAUS IN GRINZING AM WEINBERG MIT WIENBLICK... - Objektnr. 5565191

297,19 m² - 7.0 Zimmer
6490 €
PLZ: 1190

Mehr anzeigen

Aehnliche Immobilie - Vorschaubild 2

Repräsentative Familienvilla in bester Grünruhelage... - Objektnr. 5546542

326,00 m² - 5.0 Zimmer
6990 €
PLZ: 1190

Mehr anzeigen

Durch die Nutzung unserer Seite erklären Sie sich mit der Verwendung von Cookies zur Verbesserung Ihres Online-Erlebnisses einverstanden. Detaillierte Informationen zu diesem und weiteren Themen erhalten Sie in unserer Datenschutzerklärung.