MEIN ERGEBNIS ANPASSEN

++NEU++ Fantastischer 3-Zimmer Neubauwohnung mit zwei Balkonen, Ruhelage im Hof! - Objektnr. 5564167

1220
Ort
49,00 m²
Fläche
3.0
Zimmer

ECKDATEN
FindMyHome.at // Externe Immobilien-ID5564167 // 62366
ImmobilienartEigentum
Anschrift1220 Wien
Baujahr2019
Stock1
Fläche49,00 m²
Zimmer3.0
Bad1
WC1
Kaufpreis:€ 299.000,00
Ratenzahlung:Finanzierungsmöglichkeiten für diese Immobilie anzeigen
Provision: 3% des Kaufpreises zzgl. 20% USt.







BESCHREIBUNG

++NEU++ Fantastischer 3-Zimmer Neubauwohnung mit zwei Balkonen, Ruhelage im Hof!

Zum Verkauf gelangt diese wunderschöne, ca. 49m² große 3-Zimmer Neubauwohnung mit zwei Balkonen und optimalem Grundriss!

++ZUR VEREINBARUNG eines BESICHTIGUNGSTERMINS lassen SIE uns BITTE JEDENFALLS eine schriftliche ANFRAGE am besten gleich mit Ihren TERMINWÜNSCHEN zukommen! (wir antworten verlässlich am selben Tag!)++

In diesem kürzlich komplett neu gebauten Hofgebäude stehen insgesamt 4 hochwertige Neubauwohnung ideal auch für Anleger zum Verkauf.

 

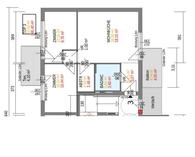
Raumaufteilung: Top 3 1. Etage (mit Lift)

  • Vorraum 
  • Bad mit WC
  • Wohnküche mit Einbauküche
  • Abstellraum
  • Schlafzimmer
  • Zimmer
  • Balkone auf beiden Seiten

(siehe Plan und Fotos)

Zustand:

Die Wohnungen wurden kürzlich neu gebaut und sind sehr gut ausgestattet. Jede Wohnung ist bereits mir einer Einbauküche versehen.

Haus:

Die Wohnung befindet sich im neu gebauten Hoftrakt des Hauses und ist damit ruhig gelegen!

Lage:

Der Kagraner Platz befindet sich in bester Lage des 22. Wiener Gemeindebezirk Donaustadt, welcher heute zu den schnellst wachsenden und beliebtesten, aber noch gut leistbaren, Wiener Wohnbezirken zählt. Selten vereint eine Lage so viele entscheidende Lebensfaktoren an einem Ort: 

Die nur zwei bzw. drei U-Bahn-Stationen entfernt liegende Alte Donau als auch Donauinsel sind ein idealer Ort um die Natur in vollen Zügen zu genießen. Darüber hinaus bietet die Lage auch die Annehmlichkeiten eines modernen Stadtteils mit umfangreichen sozialen, pädagogischen, kulturellen und sportlichen Einrichtungen sowie diversen Möglichkeiten der Nahversorgung genießen kann.

Highlights in der unmittelbaren Umgebung: 

  • Alte Donau 
  • Donauzentrum Wien 
  • Nahversorger vor der Haustüre
  • Gewerbepark Stadlau 
  • Veterinärmedizinische Universität 
  • Lediglich 15 Minuten Fahrt in den ersten Bezirk ab U-Bahn Station Kagraner Platz  (U1)

Öffentliche Anbindung:

Die Anbindung an das öffentliche Verkehrsnetz könnte besser nicht sein. Die in unmittelbarer Nähe liegende U-Bahn (U1) Station Kagraner Platz gehört zu den besten Anbindungen der Stadt, diese bietet innerhalb einer Station (Kagran) eine der größten Shoppingmöglichkeiten der Stadt: Donauzentrum Wien. Eine weitere Haltestelle führt Sie zu einer der schönsten Freizeitzentren als auch Badeplätze Wiens: Alte Donau. Eine weitere Station führt Sie auf die mittlerweile weltberühmte Donauinsel Wien. 

Falls Sie widerstehen können an diesen fantastischen Plätzen auszusteigen, erreichen Sie innerhalb von nur 15 Minuten den Kern der Wiener Innenstadt, den ersten Bezirk mit seinem berühmten Wahrzeichen, dem Stephansdom. 

Die wenige Gehminuten vor der Türe liegenden Straßenbahnhaltestelle 26 als auch Buslinie 24A runden diese ideale Anbindung zusätzlich ab. 

Preis: 

Der lastenfreie Kaufpreis beträgt EUR 299.000.

Vertragserrichtung: Mag. Markus Wieneroiter 1,5% + Barauslagen und Beglaubigungskosten + 20% Ust

 

Sollten Sie Fragen haben, zögern Sie bitte nicht mich zu kontaktieren. 

 

Nicht alle unserer Immobilien werden auf die gängigen Immobilienplattformen exportiert! Besuchen Sie unsere Homepage unter adonia.at um alle Immobilien sehen zu können!

 

Der IMMY ist die renommierteste Auszeichnung für Wiener Makler- und Verwalterbetriebe im Bereich Wohnimmobilien. Wir sind stolz den goldenen IMMY für das Jahr 2019 gewonnen zu haben!

Vielen Dank vor allem an unsere Kunden! Unser Unternehmen wurde auch zum Besten Start Up und in den Jahren 2015, 2018, 2019 und 2020 als Qualitätsmakler ausgezeichnet!

Bitte achten Sie darauf, dass Sie diese Immobilie, nach Ihrer Anfrage bei Adonia Immobilien, nicht auch bei einem anderen Immobilienmaklerbüro anfragen! Vielen Dank!

 

Alle hier veröffentlichen Informationen basieren auf den uns von dem Abgeber/ der Abgeberin zur Verfügung gestellten Informationen und wurden nicht selbst erhoben. Irrtum und Änderungen vorbehalten.

Unsere Allgemeinen Geschäftsbedingungen können Sie sowohl in dem Ihnen zugesandten Expose einsehen als auch auf unserer Homepage. Wir weisen ausdrücklich darauf hin, dass diese AGBs Vertragsinhalt werden.

Der Schutz von personenbezogenen Daten ist uns wichtig und auch gesetzlich gefordert. Die Verarbeitung Ihrer personenbezogenen Daten erfolgt nach den datenschutzrechtlichen Bestimmungen. Auf unserer Homepage (unter Datenschutzinformation) finden Sie eine Übersicht die Sie über die wichtigsten Aspekte der Verarbeitung personenbezogener Daten informieren soll.

Wir weisen darauf hin, dass zwischen dem Vermittler und dem zu vermittelnden Dritten ein familiäres oder wirtschaftliches Naheverhältnis besteht.

Der Vermittler ist als Doppelmakler tätig.


Infrastruktur / Entfernungen

Gesundheit
Arzt <500m
Apotheke <500m
Klinik <2.500m
Krankenhaus <3.500m

Kinder & Schulen
Schule <500m
Kindergarten <500m
Universität <1.500m
Höhere Schule <500m

Nahversorgung
Supermarkt <500m
Bäckerei <500m
Einkaufszentrum <1.000m

Sonstige
Geldautomat <500m
Bank <500m
Post <500m
Polizei <1.000m

Verkehr
Bus <500m
U-Bahn <500m
Straßenbahn <500m
Bahnhof <500m
Autobahnanschluss <1.500m

Angaben Entfernung Luftlinie / Quelle: OpenStreetMap

Provision: 3% des Kaufpreises zzgl. 20% USt.


Alle Details anzeigen

KONTAKT






 

Lasse dich kostenlos vom Anbieter dieser Immobilie zurückrufen.







 


 
Adonia Realitätenvermittlung GmbH
Luca Schelodetz
Telefonnummer anzeigen Telefon Allgemein: +436649101540
 
Bitte dem Makler die FindMyHome.at - ID bekanntgeben: 5564167

Bewertungen dieses Anbieters
Qualitätsmakler
Qualitätsmakler:
2015, 2018, 2019, 2020, 2023, 2024,
Netiquette
Freundlichkeit

BEWERTUNGEN DIESES ANBIETERS

 
Qualit�tsmakler
Qualitätsmakler
2015, 2018, 2019, 2020, 22/23, 2024
Freundlichkeit
BESONDERS
FREUNDLICH
Netiquette
FINDMYHOME
NETIQUETTE
Auch du kannst bewerten! 7 Tage nach deiner Anfrage erhältst du dafür von uns ein Bewertungsmail.
Alle Infos zu unseren Auszeichnungen und dem FINDMYHOME.AT Qualitätsprogramm findest du hier: Übersicht anzeigen

FINANZIERUNG
?>

Du willst wissen, wie viel dein Umzug kosten wird?

Mach gleich den kostenlosen Preisvergleich und schau, welche seriösen Anbieter in deiner Region günstig deinen Umzug organisieren


ZUM UMZUGS-VERGLEICH
-->

MYHOME BLOG
SuchAgentin auf FindMyHome.at
Unterschiedlichen Rechtsthemen, köstliche Rezepte, neueste Design-Highlights, sowie aktuelle Technik-Tools für Ihr Eigenheim.


FINDMYHOME.AT SUCHAGENTIN
SuchAgentin auf FindMyHome.at
Hallo, soll ich dir ähnliche Immobilien kostenfrei per E-Mail schicken?


ÄHNLICHE IMMOBILIEN
Aehnliche Immobilie - Vorschaubild 1

Herbstaktion! Die schöne Seite Wiens! TOP Neubauprojekt im G... - Objektnr. 5565397

55,35 m² - 3.0 Zimmer
322252 €
PLZ: 1220

Mehr anzeigen

Aehnliche Immobilie - Vorschaubild 2

NEU ERSTBEZUG EIGENTUM 1-3 ZIMMER BALKON/TERRASSE/GARTEN... - Objektnr. 5341005

54,75 m² - 3.0 Zimmer
339000 €
PLZ: 1220

Mehr anzeigen

Aehnliche Immobilie - Vorschaubild 3

Licht. Luft. Neubau. Terrasse. Zuhause.! Die perfekte Anlage... - Objektnr. 5602601

43,64 m² - 2.0 Zimmer
256036 €
PLZ: 1220

Mehr anzeigen

Durch die Nutzung unserer Seite erklären Sie sich mit der Verwendung von Cookies zur Verbesserung Ihres Online-Erlebnisses einverstanden. Detaillierte Informationen zu diesem und weiteren Themen erhalten Sie in unserer Datenschutzerklärung.