MEIN ERGEBNIS ANPASSEN

Vermietet & rentabel - Ihre Rendite ab dem ersten Tag - Objektnr. 5562696

1220
Ort
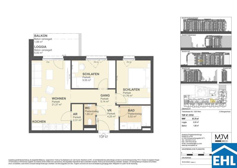
61,75 m²
Fläche
3.0
Zimmer
WEITERE MEDIEN

ECKDATEN
FindMyHome.at // Externe Immobilien-ID5562696 // 87153
ImmobilienartAnlage-Vorsorgewohnung - Eigentum
AnschriftTokiostraße 5A/47
1220 Wien
Baujahr2022
Stock3
Geschosse9
Beziehbar ab2028-12-01
Fläche61,75 m²
Zimmer3.0
Bad1
WC1
 Abstellraum
Kaufpreis:€ 349.000,00
Ratenzahlung:Finanzierungsmöglichkeiten für diese Immobilie anzeigen
Provision: Provisionsfrei für den Kunden!







BESCHREIBUNG

Vermietet & rentabel - Ihre Rendite ab dem ersten Tag

Attraktive vermietete Vorsorgewohnungen nahe der Alten Donau

Nur wenige Schritte vom idyllischen Kirschblütenpark und rund sieben Gehminuten von der Alten Donau entfernt entsteht ein modernes Wohnbauprojekt mit perfekt durchdachten Grundrissen und hochwertiger Ausstattung ideal für Anleger, die Wert auf eine nachhaltige Vermietungsperspektive legen. Die Kombination aus einer gefragten Lage im Naherholungsgebiet und der Nähe zu Geschäften, medizinischer Versorgung und Bildungseinrichtungen macht dieses Projekt zu einer lohnenden Investition.

Projektbeschreibung

  • Zeitgemäßer Neubau in hoher Bauqualität

  • Drei separate Stiegenhäuser

  • Insgesamt 46 Einheiten (Eigentums- und Vorsorgewohnungen)

  • 23 Garagenplätze

  • Großzügig angelegter Innenhof

  • Abstellräume für Kinderwagen und Fahrräder

  • Spielplatz für Kleinkinder im Hof

  • Fahrradstellplätze im Außenbereich

  • Gemeinschaftliche Waschküche

Wohnungsgrößen & Freiflächen

  • Zwei- und Dreizimmerwohnungen

  • Wohnflächen zwischen ca. 36 m² und 88 m²

  • Großteil der Wohnungen mit Balkon, Loggia oder Terrasse

Ausstattungsmerkmale

  • Edler Holzparkettboden

  • Fußbodenheizung über Fernwärme

  • Moderne Komplettküchen mit Miele-Geräten (Geschirrspüler, Backrohr mit Herd, Kühlschrank, Dunstabzug) nicht im Kaufpreis enthalten

  • Stilvoll gestaltete Badezimmer

  • Außenjalousien

  • Küche in jeder Wohnung verpflichtend anzukaufen: € 9.000,- netto zzgl. 20 % USt.

  • Stellplatz (falls zugeordnet): € 26.000,- netto zzgl. 20 % USt.

 

Kaufpreise der Vorsorgewohnungen

von EUR 249.000,- bis EUR 349.000,- netto zzgl. 20 % USt.

Zu erwartender Mietertrag

siehe Preisliste mit entsprechender derzeit veranschlagten Nettomieteinnahme pro Monat.

Provisionsfrei für den Käufer!


Fertigstellung: bereits erfolgt

Konzeptionsgebühr beim Kauf einer Vorsorgewohnung: EUR 60 netto/m²

Bei diesem Angebot handelt es sich um eine Vorsorgewohnung, die zu Vermietungszwecken erworben wird. Der angegebene Kaufpreis versteht sich daher zzgl. 20% USt. Diese Daten sind vorbehaltlich möglicher Änderungen.

Wir weisen darauf hin, dass zwischen dem Vermittler und dem zu vermittelnden Dritten ein familiäres oder wirtschaftliches Naheverhältnis besteht.

Der Vermittler ist als Doppelmakler tätig.


Infrastruktur / Entfernungen

Gesundheit
Arzt <350m
Apotheke <325m
Klinik <2.475m
Krankenhaus <2.675m

Kinder & Schulen
Schule <275m
Kindergarten <175m
Universität <700m
Höhere Schule <950m

Nahversorgung
Supermarkt <300m
Bäckerei <650m
Einkaufszentrum <775m

Sonstige
Geldautomat <750m
Bank <750m
Post <1.000m
Polizei <750m

Verkehr
Bus <175m
U-Bahn <600m
Straßenbahn <225m
Bahnhof <650m
Autobahnanschluss <2.225m

Angaben Entfernung Luftlinie / Quelle: OpenStreetMap

Provision: Provisionsfrei für den Kunden!


Alle Details anzeigen

KONTAKT






 

Lasse dich kostenlos vom Anbieter dieser Immobilie zurückrufen.







 


 
EHL Wohnen GmbH
Andrea PÖCHHACKER; MSc
Telefonnummer anzeigen Telefon Allgemein: +4315127690411
Handy Bearbeiter: +436648373481
 
Bitte dem Makler die FindMyHome.at - ID bekanntgeben: 5562696

Bewertungen dieses Anbieters
Qualitätsmakler
Qualitätsmakler:
Netiquette
Freundlichkeit
81 %

BEWERTUNGEN DIESES ANBIETERS

 
Qualitätsmakler
UNSERE HALL OF FAME DER BESTEN ANBIETER
Qualit�tsmakler
Qualitätsmakler
2012, 2013, 2014, 2015, 2016, 2017, 2018, 2019, 2020, 2021, 22/23, 2024, 2025
Weiterempfehlung
WIRD GERNE

Freundlichkeit
BESONDERS
FREUNDLICH
Netiquette
FINDMYHOME
NETIQUETTE
Auch du kannst bewerten! 7 Tage nach deiner Anfrage erhältst du dafür von uns ein Bewertungsmail.
Alle Infos zu unseren Auszeichnungen und dem FINDMYHOME.AT Qualitätsprogramm findest du hier: Übersicht anzeigen

FINANZIERUNG
?>

Du willst wissen, wie viel dein Umzug kosten wird?

Mach gleich den kostenlosen Preisvergleich und schau, welche seriösen Anbieter in deiner Region günstig deinen Umzug organisieren


ZUM UMZUGS-VERGLEICH
-->

MYHOME BLOG
SuchAgentin auf FindMyHome.at
Unterschiedlichen Rechtsthemen, köstliche Rezepte, neueste Design-Highlights, sowie aktuelle Technik-Tools für Ihr Eigenheim.


FINDMYHOME.AT SUCHAGENTIN
SuchAgentin auf FindMyHome.at
Hallo, soll ich dir ähnliche Immobilien kostenfrei per E-Mail schicken?


ÄHNLICHE IMMOBILIEN
Aehnliche Immobilie - Vorschaubild 1

Investieren in Zukunftssicherheit: Wohnträume in der Donaust... - Objektnr. 5559339

63,28 m² - 2.0 Zimmer
345400 €
PLZ: 1220

Mehr anzeigen

Aehnliche Immobilie - Vorschaubild 2

Top Anlageobjekt - Sofortige Mieteinnahmen garantiert... - Objektnr. 5562690

50,97 m² - 2.0 Zimmer
289000 €
PLZ: 1220

Mehr anzeigen

Aehnliche Immobilie - Vorschaubild 3

IMMOBILIENGOLD statt Sparbuch – Wohnung mit WOHNRECHT... - Objektnr. 5544379

72,69 m² - 3 Zimmer
292500 €
PLZ: 1220

Mehr anzeigen

Durch die Nutzung unserer Seite erklären Sie sich mit der Verwendung von Cookies zur Verbesserung Ihres Online-Erlebnisses einverstanden. Detaillierte Informationen zu diesem und weiteren Themen erhalten Sie in unserer Datenschutzerklärung.