MEIN ERGEBNIS ANPASSEN

++ NEU in St. Andrä Wördern ++ MIETKAUF oder KAUF - Objektnr. 5562208

  • 1-17
  • A
  • B
  • C
  • D
  • E
  • F
  • G
  • H
  • I
  • J
  • K
  • L
  • M
  • N
  • O
  • P
  • Q
  • R
  • S_01_T17
  • S_01_T17_Lage
  • W-Haus1
  • W-Haus2
  • W-Haus3
  • W-Haus4
  • X-Lift
  • X-Stiege
  • Y-Garage
  • Y-Multibild
  • Z-PRIMA
3423
Ort
€ 1.229,37
Gesamtkosten
74,48 m²
Fläche
4
Zimmer

ECKDATEN
FindMyHome.at // Externe Immobilien-ID5562208 // 362/09990
ImmobilienartWohnung - Miete
Anschrift3423 St. Andrä-Wördern
Baujahr2024
Alt- oder NeubauNeubau
NäheKlosterneuburg
Liftja
Garagenplätze2
KellerJa
Beziehbar absofort
Fläche74,48 m²
Balkon1 (9,00 m²)
Zimmer4
Bad1
WC1
 Abstellraum
Kaution:€ 3.688,11
sonstige Kosten (inkl. MwSt):€ 184,17
Mehrwertsteuer:€ 1.228,37
Monatliche Gesamtkosten:€ 1.229,37
Provision: provisionsfrei




BESCHREIBUNG

++ NEU in St. Andrä Wördern ++ MIETKAUF oder KAUF

++ NEU in St. Andrä Wördern ++ MIETKAUF oder KAUF

++ VIER ZIMMER-WOHNUNG MIT BALKON ++

++ PROVISIONSFREI FÜR DEN KÄUFER ++

Hier der Link zur VIDEO-Tour:
https://www.youtube.com/watch?v=782s8VDh5KU

++ PROJEKT FORTUNA – Tullner Straße 6, 3423 St. Andrä Wördern:

In zentraler Grünlage von St. Andrä Wördern wurde eine moderne Wohnhausanlage mit insgesamt 30 hochwertig ausgestatteten Eigentumswohnungen errichtet.

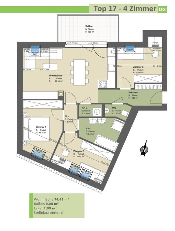
STIEGE 1 – TOP 17 (Dachgeschoss):

VIER Zimmer-Wohnung
mit durchdachtem Grundriss und Balkon.

Wohnfläche: ca. 74,48 m²
Balkon: ca. 9,00 m²

Raumaufteilung:
- Vorraum
- Wohnküche
- drei Schlafzimmer
- Badezimmer
- separate Toilette
- Abstellraum

SOFORTKAUF:
EUR 369.000.-

MIETKAUF:
Monatliche Bruttomiete inkl. BK:
1.229,37 Euro
Angeld: 34.206,30 Euro

Ihre Vorteile auf einen Blick:
Wertanrechnung beim Kauf: 100 % des geleisteten Angelds werden angerechnet und 1/3 der bezahlten Nettomiete wird vom Kaufpreis abgezogen.
Maximale Flexibilität – mieten und in Ruhe entscheiden.

Der Kauf kann nach 3 Jahren zu einem vorab fixierten Preis erfolgen.

Auf Anfrage senden wir Ihnen gerne das detaillierte Mietkaufmodell oder die gesamte Projektmappe für den Kauf per E-Mail zu.

Ausstattung & Highlights:

- Massivbauweise – nachhaltig und wertbeständig
- Fußbodenheizung über zentrale Pelletsheizung
- Hochwertige Parkettböden & DANA-Innentüren
- Kunststoff-Alufenster mit 3-fach Wärmeschutzverglasung
- Schlüsselfertige Ausführung: Sanitäranlagen, Türen, Fliesen & Parkett
- PKW-Stellplätze zur Auswahl

Lage & Infrastruktur:
St. Andrä Wördern – eine Gemeinde eingebettet ins Grüne, nur 17 Kilometer von Wiens Stadtrand entfernt.
Mit dem Auto oder öffentlichen Verkehrsmitteln erreicht man die Innenstadt in rund 30 Minuten.
Der Bahnhof ist nur wenige Minuten vom Wohnhaus entfernt.
Kindergärten, Schulen, Ärzte, Restaurants sowie zahlreiche Einkaufsmöglichkeiten befinden sich in Gehweite.

Nebenkosten beim SOFORTKAUF:
Grunderwerbssteuer: 3,5 % vom Kaufpreis
Grundbucheintragungsgebühr: 1,1% vom Kaufpreis
Kosten der Vertragserrichtung: 1,75 % vom Kaufpreis + Ust.
Maklerprovision: PROVISIONSFREI

Kontakt:
Prima Service Immobilien

Mobil: 0699 17 27 88 89
Mail: office@ps-immo.co.at

Wir halten fest, dass ein wirtschaftliches Naheverhältnis zum Abgeber besteht - eine Weitergabe an andere Interessenten ohne Rücksprache mit uns ist nicht gestattet.
Die Angaben erfolgen aufgrund von Informationen und Unterlagen, die uns vom Bauträger zur Verfügung gestellt wurden und sind ohne Gewähr. Irrtum vorbehalten.
Prima Service PS Immobilien tritt als Doppelmakler auf. Wir übernehmen keine Gewähr für die Vollständigkeit, Richtigkeit und Aktualität dieser Angaben.Barrierefrei: JA
Provision: provisionsfrei


Alle Details anzeigen

KONTAKT






 

Lasse dich kostenlos vom Anbieter dieser Immobilie zurückrufen.







 


 
Prima Service PS Immobilien
PS Immo
Telefonnummer anzeigen Handy Bearbeiter: +436643461311
 
Bitte dem Makler die FindMyHome.at - ID bekanntgeben: 5562208

Bewertungen dieses Anbieters
Qualitätsmakler
Qualitätsmakler:
2019, 2024, 2025,
Freundlichkeit

BEWERTUNGEN DIESES ANBIETERS

 
Qualit�tsmakler
Qualitätsmakler
2019, 2024, 2025
Freundlichkeit
BESONDERS
FREUNDLICH
Auch du kannst bewerten! 7 Tage nach deiner Anfrage erhältst du dafür von uns ein Bewertungsmail.
Alle Infos zu unseren Auszeichnungen und dem FINDMYHOME.AT Qualitätsprogramm findest du hier: Übersicht anzeigen


Du willst wissen, wie viel dein Umzug kosten wird?

Mach gleich den kostenlosen Preisvergleich und schau, welche seriösen Anbieter in deiner Region günstig deinen Umzug organisieren


ZUM UMZUGS-VERGLEICH
-->

MYHOME BLOG
SuchAgentin auf FindMyHome.at
Unterschiedlichen Rechtsthemen, köstliche Rezepte, neueste Design-Highlights, sowie aktuelle Technik-Tools für Ihr Eigenheim.


FINDMYHOME.AT SUCHAGENTIN
SuchAgentin auf FindMyHome.at
Hallo, soll ich dir ähnliche Immobilien kostenfrei per E-Mail schicken?


ÄHNLICHE IMMOBILIEN
Aehnliche Immobilie - Vorschaubild 1

++ Von der MIETE zum EIGENTUM ++ NEU in St. Andrä Wördern... - Objektnr. 5562209

74,29 m² - 4 Zimmer
1234.9 €
PLZ: 3423

Mehr anzeigen

Aehnliche Immobilie - Vorschaubild 2

++ Heute MIETEN, morgen KAUFEN ++ NEU in St. Andrä Wördern... - Objektnr. 5560224

76,77 m² - 4 Zimmer
1252.19 €
PLZ: 3423

Mehr anzeigen

Durch die Nutzung unserer Seite erklären Sie sich mit der Verwendung von Cookies zur Verbesserung Ihres Online-Erlebnisses einverstanden. Detaillierte Informationen zu diesem und weiteren Themen erhalten Sie in unserer Datenschutzerklärung.