MEIN ERGEBNIS ANPASSEN

++ FREIRAUM FÜR DIE SEELE ++ Ihr Ruhepol im Grünen - Objektnr. 5562207

  • HG 05
  • HG 02
  • HG 06
  • HG 03
  • HG 08
  • 2
  • 3
  • 4
  • HG 09
  • HG 07
  • 5
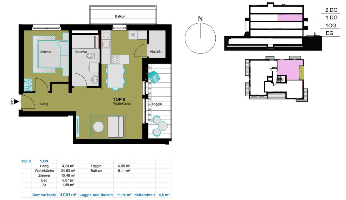
  • TOP 8
  • Lageplan
  • Prima
1140
Ort
47,01 m²
Fläche
2
Zimmer

ECKDATEN
FindMyHome.at // Externe Immobilien-ID5562207 // 362/09989
ImmobilienartWohnung - Eigentum
Anschrift1140 Wien
Baujahr2025
Alt- oder NeubauNeubau
NäheSchloss Laudon
Liftja
Garagenplätze1
KellerJa
Beziehbar absofort
Fläche47,01 m²
Balkon1 (5,00 m²)
Zimmer2
Bad1
WC1
 Abstellraum
Kaufpreis:€ 445.000,00
Ratenzahlung:Finanzierungsmöglichkeiten für diese Immobilie anzeigen
Mehrwertsteuer:€ 41,80
Provision: 3%







BESCHREIBUNG

++ FREIRAUM FÜR DIE SEELE ++ Ihr Ruhepol im Grünen

++ FREIRAUM FÜR DIE SEELE ++ Ihr Ruhepol im Grünen

++ EXKLUSIVES NEUBAUPROJEKT ++

++ Hüttergasse | 1140 Wien – Wohnen im Grünen ++

++ geplante Fertigstellung - Frühling 2026 ++

Inmitten idyllischer Ruhelage im beliebten 14. Bezirk entsteht ein exklusives Neubauprojekt – eingebettet in eine grüne Umgebung, fernab vom Stadtlärm und dennoch hervorragend angebunden.

Nur 9 hochwertige Eigentumswohnungen mit durchdachten Grundrissen und 7 Tiefgaragenplätzen schaffen ein Zuhause mit Privatsphäre, Qualität und Nachhaltigkeit.

Top 8 – Charmante ZWEI Zimmer Wohnung im Dachgeschoss:

Wohnfläche: 2 Zimmer | ca. 47,01 m² Wohnfläche
Freifläche: ca. 6,05 m² Loggia + Balkon ca. 5,11 m²

Raumaufteilung:
- Vorraum
- Wohn-/Essbereich mit offener Küche
- Schlafzimmer
- Badezimmer mit Wanne und Toilette
- Abstellraum

Kaufpreis:
Top 8 um EUR 445.000.-

PKW Tiefgaragenplatz optional um EUR 30.000.- möglich!


Ausstattungsmerkmale im Detail:
- Massivbauweise – langlebig & wertbeständig
- Hochwertiger Eichenparkettboden in allen Wohnräumen
- Kunststoff-Alufenster
- Bodentiefe Fenster für helle, lichtdurchflutete Räume
- Raffstores als außenliegender Sonnenschutz
- Klimaanlage für höchsten Wohnkomfort
- Fußbodenheizung in allen Räumen
- Markensanitärausstattung in Bad & WC
- Schlüsselfertige Ausführung inkl. Parkett, Fliesen, Sanitär
- Barrierefreier Zugang per Lift
- Luftwärmepumpe – ökologisch & kosteneffizient

Top-Infrastruktur in grüner Umgebung:
Nicht nur das malerische Schloss Laudon liegt quasi vor Ihrer Haustür – auch das beliebte Auhof Center mit zahlreichen Einkaufs- und Gastronomieangeboten ist in wenigen Minuten erreichbar.

Die grüne Umgebung lädt zu Spaziergängen, Joggingrunden oder entspannten Auszeiten im Freien ein – und das mit Wienerwald-Flair direkt vor der Tür.

In nur rund 30 Autominuten erreichen Sie den 1. Bezirk und somit das Herz von Wien.
Für eine komfortable Anbindung sorgt die Busstation direkt vor dem Haus, die Sie zur Hütteldorfer Straße bringt. Über die S-Bahn-Station Hadersdorf gelangen Sie ebenfalls rasch ins Stadtzentrum.

Ich freue mich auf Ihre Anfrage - für eine Besichtigung stehe ich jederzeit zur Verfügung!

Ansprechpartnerin:
Frau Franziska Schmutz
Tel: 0664 346 13 11
Mail: office@ps-immo.co.at
Homepage: www.ps-immo.co.at

Nebenkosten:
Grunderwerbssteuer: 3,5% vom Kaufpreis
Grundbucheintragungsgebühr: 1,1% vom Kaufpreis
Kosten der Vertragserrichtung: 1,5% vom Kaufpreis + Ust. (Anwaltsgebunden)
Maklerprovision: 3,0% vom Kaufpreis + Ust.

Wir halten fest, dass ein wirtschaftliches Naheverhältnis zum Abgeber besteht - eine Weitergabe an andere Interessenten ohne Rücksprache mit uns ist nicht gestattet.Prima Service PS Immobilien tritt als Doppelmakler auf. Alle Angaben sind ohne Gewähr und basieren ausschließlich auf Informationen, die uns von unserem Auftraggeber zur Verfügung gestellt wurden.Wir übernehmen keine Gewähr für die Vollständigkeit, Richtigkeit und Aktualität dieser Angaben.

Hinweis: Alle Visualisierungen dienen ausschließlich der Veranschaulichung und sind symbolhaft. Änderungen vorbehalten. Es wird keine Gewähr für Richtigkeit, Vollständigkeit oder Aktualität übernommen.Barrierefrei: JA
Provision: 3%


Alle Details anzeigen

KONTAKT






 

Lasse dich kostenlos vom Anbieter dieser Immobilie zurückrufen.







 


 
Prima Service PS Immobilien
PS Immo
Telefonnummer anzeigen Handy Bearbeiter: +436643461311
 
Bitte dem Makler die FindMyHome.at - ID bekanntgeben: 5562207

Bewertungen dieses Anbieters
Qualitätsmakler
Qualitätsmakler:
2019, 2024, 2025,
Freundlichkeit

BEWERTUNGEN DIESES ANBIETERS

 
Qualit�tsmakler
Qualitätsmakler
2019, 2024, 2025
Freundlichkeit
BESONDERS
FREUNDLICH
Auch du kannst bewerten! 7 Tage nach deiner Anfrage erhältst du dafür von uns ein Bewertungsmail.
Alle Infos zu unseren Auszeichnungen und dem FINDMYHOME.AT Qualitätsprogramm findest du hier: Übersicht anzeigen

FINANZIERUNG
?>

Du willst wissen, wie viel dein Umzug kosten wird?

Mach gleich den kostenlosen Preisvergleich und schau, welche seriösen Anbieter in deiner Region günstig deinen Umzug organisieren


ZUM UMZUGS-VERGLEICH
-->

MYHOME BLOG
SuchAgentin auf FindMyHome.at
Unterschiedlichen Rechtsthemen, köstliche Rezepte, neueste Design-Highlights, sowie aktuelle Technik-Tools für Ihr Eigenheim.


FINDMYHOME.AT SUCHAGENTIN
SuchAgentin auf FindMyHome.at
Hallo, soll ich dir ähnliche Immobilien kostenfrei per E-Mail schicken?


ÄHNLICHE IMMOBILIEN
Aehnliche Immobilie - Vorschaubild 1

Die Symbiose: Pärchentraum im Neubau mit südseitigem Balkon... - Objektnr. 5555126

54,30 m² - 2.0 Zimmer
425574.98 €
PLZ: 1140

Mehr anzeigen

Aehnliche Immobilie - Vorschaubild 2

moderne 2 Zimmerwohnung mit Südbalkon in U-Bahn Nähe... - Objektnr. 4789575

51,71 m² - 2.0 Zimmer
394000 €
PLZ: 1140

Mehr anzeigen

Aehnliche Immobilie - Vorschaubild 3

Die Symbiose: Nachhaltig und attraktiv - hofseitig gelegene ... - Objektnr. 5555120

49,81 m² - 2.0 Zimmer
362736.27 €
PLZ: 1140

Mehr anzeigen

Durch die Nutzung unserer Seite erklären Sie sich mit der Verwendung von Cookies zur Verbesserung Ihres Online-Erlebnisses einverstanden. Detaillierte Informationen zu diesem und weiteren Themen erhalten Sie in unserer Datenschutzerklärung.