Ankommen. Aufatmen. Im Grünen Zuhause sein.
Ein Zuhause, das vom ersten Moment an Geborgenheit ausstrahlt offen, hell und mit Liebe zum Detail gestaltet.
Dieses moderne Reihenhaus vereint stilvolle Architektur, durchdachte Raumplanung und ein außergewöhnliches Wohngefühl ideal für Familien, Paare oder Berufstätige, die Wert auf Lebensqualität legen.
Objektbeschreibung
Das Herzstück des Hauses ist der weitläufige Wohn- und Essbereich lichtdurchflutet, offen gestaltet und mit hohen Raumhöhen, die ein einzigartiges Raumgefühl schaffen. Über eine großzügige Hebeschiebetür gelangt man direkt auf den Balkon, der den Wohnraum harmonisch ins Freie erweitert.
Die offene Stiege verbindet den einladenden Wohnbereich harmonisch mit den privaten Rückzugsräumen im Obergeschoss.
Im Erdgeschoss erwarten Sie neben dem großzügigen Wohnraum auch eine praktische Dusche und ein separates WC komfortabel für den Alltag und Gäste. Ein großzügiger Vorraum mit Garderobe und ein Abstellraum erleichtern den Alltag und sorgen für ein harmonisches Wohngefühl vom ersten Moment an.
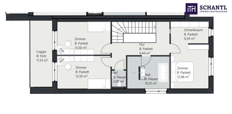
Im Obergeschoss entsteht Ihre persönliche Wohlfühloase:
Ein Schlafzimmer mit begehbarem Kleiderschrank, ein modernes Badezimmer mit großer Badewanne und einer riesigen, begehbaren Dusche, ein separates WC sowie zwei große Schlafräume für Familie, Gäste oder Homeoffice. Von den beiden Schlafzimmern gelangt man direkt auf die Loggia der perfekte Ort, um morgens frische Luft zu tanken oder abends in Ruhe abzuschalten.
Als Randhaus bietet dieses Objekt maximale Privatsphäre und überzeugt mit einem sonnigen Eigengarten (ca. 184 m²) sowie einer Loggia mit Blick ins Grüne perfekt zum Entspannen und Genießen.
Ausstattung & Highlights
- Randhaus mit zusätzlichem Gartenanteil und Privatsphäre
- Großzügiger Wohn-/Essbereich mit offener Bauweise und hohen Raumhöhen
- Offene Stiege als stilvolles Verbindungselement zwischen den Ebenen
- Schlafzimmer mit begehbarem Kleiderschrank
- Riesige Dusche im Obergeschoss
- Zwei WCs ideal für Alltag und Gäste
- Belagsfertig - Optionale Fertigstellung: € 30.000,-
- Beziehbar ab: ca. 2 Monate nach Vertragsabschluss
- Fußbodenheizung über nachhaltigen Nahwärmeanschluss (Hackgut)
- Parkplätze direkt vor dem Haus
Bautechnische Details
- Massivbauweise mit 25 cm Ziegelmauerwerk & 16 cm Vollwärmeschutz
- Kunststoff-/Alu-Fenster mit 3-fach-Isoplusverglasung
- Sämtliche Installationen für Badewanne, Dusche, Waschbecken & Waschmaschine vorbereitet
- Energieeffiziente Heiztechnik & moderne Bauweise
- Die angegebenen Betriebskosten basieren auf Erfahrungswerten und sind daher als Annahmen zu werten.
Raumaufteilung
Erdgeschoss
- Vorraum: ca. 6,56 m²
- Garderobe: ca. 2,64 m²
- Abstellraum: ca. 4,86 m²
- Haustechnik: ca. 3,93 m²
- Gäste-WC: ca. 4,80 m²
- Küche: ca. 14,24 m²
- Wohnen/Essen: ca. 29,53 m²
Obergeschoss
- Flur: ca. 9,44 m²
- Bad: ca. 10,55 m²
- Separates WC: ca. 2,00 m²
- Schrankraum: ca. 6,34 m²
- Schlafzimmer 1: ca. 13,50 m²
- Schlafzimmer 2: ca. 13,50 m²
- Schlafzimmer 3: ca. 12,98 m²
Gesamtwohnfläche: ca. 134,87 m²
Außenbereiche
- Eigengarten: ca. 221 m²
- Loggia (OG): ca. 11,33 m²
- Vorplatz: ca. 4,67 m²
- Gesamtfreifläche: ca. 237,03 m²
Fazit
Ein Zuhause, das begeistert modern, effizient und mit Liebe geplant.
Hier treffen Design, Komfort und Lebensqualität aufeinander.
Ankommen. Aufatmen. Zuhause fühlen.
Die Liegenschaft befindet sich in St. Ruprecht an der Raab.
Hinweis zur Visualisierung:
Die dargestellten Bilder mit Bodenbelägen, Küche oder Einrichtungsgegenständen dienen lediglich zur veranschaulichenden Darstellung. Das Haus wird belagsfertig, weiß ausgemalen (ohne Innentüren) übergeben die endgültige Gestaltung der Oberflächen, Böden und des Interieurs obliegt dem Käufer.
Worauf noch warten
Vereinbaren Sie noch heute eine Besichtigung oder eine persönliche Beratung mit uns!
Sie wollen Ihre Immobilie verkaufen Dann sind Sie bei uns goldrichtig!
Wir sind gerne für Sie da und unterstützen Sie unverbindlich bei der Bewertung Ihrer Immobilie. Mit viel Sorgfalt stellen wir Ihnen alle wichtigen Informationen und Unterlagen zusammen, damit Sie die besten Entscheidungen treffen können.
In Kooperation mit unserer SFI Vermögenstreuhand begleiten wir Sie bei der Verwirklichung Ihres Traumobjekts und unterstützen Sie beim nachhaltigen Vermögensaufbau. Mit unseren erfahrenen Experten sorgen wir dafür, dass Sie die besten Konditionen erhalten damit Ihre Träume Wirklichkeit werden!
Die Angaben über das angebotene Objekt erfolgen mit der Sorgfalt eines ordentlichen Immobilienmaklers; für die Richtigkeit solcher Angaben, die auf Informationen der über das Objekt Verfügungsberechtigten beruhen, wird keine Gewähr geleistet!
Wir weisen darauf hin, dass zwischen dem Vermittler und dem zu vermittelnden Dritten ein familiäres oder wirtschaftliches Naheverhältnis besteht.
Der Vermittler ist als Doppelmakler tätig.
Infrastruktur / Entfernungen
Gesundheit
Arzt <2.500m
Apotheke <3.000m
Krankenhaus <4.500m
Kinder & Schulen
Schule <3.000m
Kindergarten <3.000m
Höhere Schule <9.500m
Nahversorgung
Supermarkt <3.000m
Bäckerei <3.500m
Einkaufszentrum <5.000m
Sonstige
Geldautomat <3.000m
Bank <3.000m
Post <3.000m
Polizei <3.500m
Verkehr
Bus <500m
Bahnhof <500m
Autobahnanschluss <9.500m
Flughafen <1.500m
Angaben Entfernung Luftlinie / Quelle: OpenStreetMap
Provision: 3% des Kaufpreises zzgl. 20% USt.