MEIN ERGEBNIS ANPASSEN

#SQ - SONNIGE AUSSICHTEN! WG-TAUGLICHE 4-ZIMMER-ALTBAUWOHNUNG - MÄRZSTRASSE - Objektnr. 5560506

  • 8766v43bvdshaw
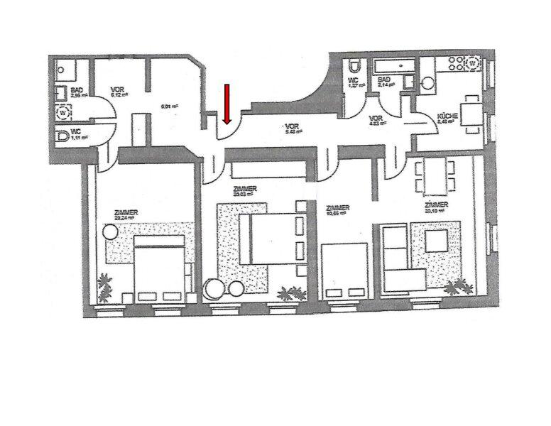
  • Grundriss
1140
Ort
109,52 m²
Fläche
4.0
Zimmer

ECKDATEN
FindMyHome.at // Externe Immobilien-ID5560506 // 20891
ImmobilienartEigentum
Anschrift1140 Wien
Baujahr1900
Stock2
Geschosse5
Fläche109,52 m²
Zimmer4.0
Bad2
WC2
 Abstellraum
Kaufpreis:€ 399.000,00
Ratenzahlung:Finanzierungsmöglichkeiten für diese Immobilie anzeigen
Provision: 3% vom KP zzgl. gesetzl. MwSt.







BESCHREIBUNG

#SQ - SONNIGE AUSSICHTEN! WG-TAUGLICHE 4-ZIMMER-ALTBAUWOHNUNG - MÄRZSTRASSE

Lichterfüllter Wohnkomfort - Zum Verkauf gelangt eine helle 4-Zimmer-Wohnung im 2. OG in einem Altbau errichtet um die Jahrhundertwende, wenige Minuten zu Fuß entfernt von der nächsten U3-Station. Die Liegenschaft verfügt über einen Personenlift.

Im gesamten Gebäude werden insgesamt 30 Einheiten verkauft, ca. 35-145m². Davon sind 14 Wohnungen bestandsfrei. Zusätzlich können 4 sanierte Wohnungen im Dachgeschoß erworben werden sowie 7 befristet vermietete Wohnungen und 4 unbefristet vermietete Wohnungen - perfekt geeignet als Anlage. Weiters steht ein Lager mit Gartenfläche zum Verkauf. 

Nähere Informationen finden Sie unter: https://www.m124-wien.com

Eckdaten im Überblick:
WNFL: ca. 109,52m² 
Zimmer: 4, separat begehbar
Küche: separat
Bad: 2
WC: 2
Abstellraum/ Wirtschaftsraum: 1
Lift: ja
Keller: ja
Zustand: durchschnittlich

Raumaufteilung:
Vorraum
Wohnzimmer
Küche
3 Schlafzimmer
2 Bäder (Dusche/ Wanne)
2 WC
Abstellraum/ Wirtschaftsraum

Kosten:
Kaufpreis: € 399.000,--
Provision: 3% vom KP zzgl. gesetzl. MwSt.

Hinweis gemäß Energieausweisvorlagegesetz: Ein Energieausweis wurde vom Eigentümer bzw. Verkäufer, nach unserer Aufklärung über die generell geltende Vorlagepflicht, sowie Aufforderung zu seiner Erstellung noch nicht vorgelegt. Daher gilt zumindest eine dem Alter und der Art des Gebäudes entsprechende Gesamtenergieeffizienz als vereinbart. Wir übernehmen keinerlei Gewähr oder Haftung für die tatsächliche Energieeffizienz der angebotenen Immobilie.

Wir weisen darauf hin, dass zwischen dem Vermittler und dem zu vermittelnden Dritten ein familiäres oder wirtschaftliches Naheverhältnis besteht.

Der Vermittler ist als Doppelmakler tätig.


Infrastruktur / Entfernungen

Gesundheit
Arzt <500m
Apotheke <500m
Klinik <1.500m
Krankenhaus <2.000m

Kinder & Schulen
Schule <500m
Kindergarten <500m
Universität <1.000m
Höhere Schule <1.500m

Nahversorgung
Supermarkt <500m
Bäckerei <500m
Einkaufszentrum <1.000m

Sonstige
Geldautomat <500m
Bank <500m
Post <1.000m
Polizei <1.000m

Verkehr
Bus <500m
U-Bahn <500m
Straßenbahn <500m
Bahnhof <500m
Autobahnanschluss <4.500m

Angaben Entfernung Luftlinie / Quelle: OpenStreetMap

Provision: 3% des Kaufpreises zzgl. 20% USt.


Alle Details anzeigen

KONTAKT






 

Lasse dich kostenlos vom Anbieter dieser Immobilie zurückrufen.







 


 
STADTQUARTIER Home GmbH
Mona Taghavi
Telefonnummer anzeigen Telefon Allgemein: +436502311113
Handy Bearbeiter: +436502311113
 
Bitte dem Makler die FindMyHome.at - ID bekanntgeben: 5560506

Bewertungen dieses Anbieters
Qualitätsmakler
Qualitätsmakler:
2013, 2018, 2019, 2021,
Netiquette
Freundlichkeit

BEWERTUNGEN DIESES ANBIETERS

 
Qualit�tsmakler
Qualitätsmakler
2013, 2018, 2019, 2021
Freundlichkeit
BESONDERS
FREUNDLICH
Netiquette
FINDMYHOME
NETIQUETTE
Auch du kannst bewerten! 7 Tage nach deiner Anfrage erhältst du dafür von uns ein Bewertungsmail.
Alle Infos zu unseren Auszeichnungen und dem FINDMYHOME.AT Qualitätsprogramm findest du hier: Übersicht anzeigen

FINANZIERUNG
?>

Du willst wissen, wie viel dein Umzug kosten wird?

Mach gleich den kostenlosen Preisvergleich und schau, welche seriösen Anbieter in deiner Region günstig deinen Umzug organisieren


ZUM UMZUGS-VERGLEICH
-->

MYHOME BLOG
SuchAgentin auf FindMyHome.at
Unterschiedlichen Rechtsthemen, köstliche Rezepte, neueste Design-Highlights, sowie aktuelle Technik-Tools für Ihr Eigenheim.


FINDMYHOME.AT SUCHAGENTIN
SuchAgentin auf FindMyHome.at
Hallo, soll ich dir ähnliche Immobilien kostenfrei per E-Mail schicken?


ÄHNLICHE IMMOBILIEN
Aehnliche Immobilie - Vorschaubild 1

# SQ - ELEGANTER WIENER ALTBAU IN PENZING - CHARMANTE LAGE B... - Objektnr. 5558721

91,71 m² - 3.0 Zimmer
379000 €
PLZ: 1140

Mehr anzeigen

Durch die Nutzung unserer Seite erklären Sie sich mit der Verwendung von Cookies zur Verbesserung Ihres Online-Erlebnisses einverstanden. Detaillierte Informationen zu diesem und weiteren Themen erhalten Sie in unserer Datenschutzerklärung.