MEIN ERGEBNIS ANPASSEN

Traumlage, einzigartiges Architektenhaus mit Pool in Teilrohbau zur Fertigstellung in Voitsberg - Objektnr. 5560428

8570
Ort
201,75 m²
Fläche
WEITERE MEDIEN

ECKDATEN
FindMyHome.at // Externe Immobilien-ID5560428 // 17221-2
ImmobilienartHaus - Eigentum
Anschrift8570 Voitsberg
Baujahr2022
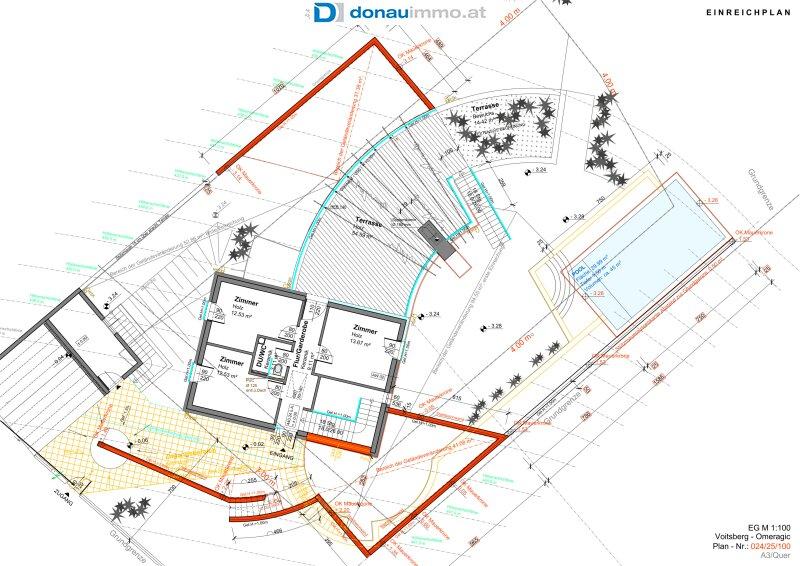
Grundfläche800,00 m²
Terrassen3 (137,00 m²)
Bad2
WC2
Kaufpreis:€ 210.000,00
Ratenzahlung:Finanzierungsmöglichkeiten für diese Immobilie anzeigen
Provision: 7.560,00 ? inkl. 20% USt.







BESCHREIBUNG

Traumlage, einzigartiges Architektenhaus mit Pool in Teilrohbau zur Fertigstellung in Voitsberg

Traumlage, einzigartiges Architektenhaus mit Pool in Teilrohbau zur Fertigstellung in Voitsberg

Eine absolute Rarität, wie man sie in Voitsberg kaum findet ! Einzigartiges, sonniges Baugrundstück mit baubewilligter Architektenplanung in Teilausführung (Rohbau).

Bauen Sie fertig und ziehen in Kürze in Ihr Traumhaus ein. Alle Anschlüsse vor Ort (Kanal, Wasser, Strom) und bezahlt.
Ein Traumgrundstück  für Luxusliebhaber mit Sinn für Weitblick! 

Objektdetails:

* ca. 800 m² Baugrund in bevorzugter, rarer Top-Lage.
* Luftwärmepumpe
* PV-Anlage, Pool ca. Fläche 30 m3, Kamin

EG:

  • ca. 119,83 m2 Wohnfläche
  • Technikraum 10,01 m2
  • Carport 2 PKW ca. 27,24 m2
  • 2 * Terrasse ca. 68,34 m2

OG:

  • ca. 61,90 m2 Wohnfläche
  • Abstellraum 10,01 m2
  • Carport 2 PKW ca. 27,24 m2
  • Terrasse ca. 54,59 m2

 

Verfügbarkeit:

  • sofort

Finanzierung:

Auf Grund der KIM-Verordnung haben wir für Sie individuelle Lösungen: unser Partner bietet Ihnen flexible Finanzierungsmöglichkeiten und Unterstützung.

Sichern Sie sich jetzt noch günstig ihre Wunsch Immobilie.

 

Der Vermittler ist als Doppelmakler tätig.


Infrastruktur / Entfernungen

Gesundheit
Arzt <1.000m
Apotheke <1.500m
Klinik <4.500m
Krankenhaus <2.500m

Kinder & Schulen
Schule <1.000m
Kindergarten <2.000m

Nahversorgung
Supermarkt <500m
Bäckerei <2.000m
Einkaufszentrum <1.500m

Sonstige
Geldautomat <1.500m
Bank <1.500m
Post <1.500m
Polizei <1.500m

Verkehr
Bus <500m
Bahnhof <1.500m
Autobahnanschluss <9.000m

Angaben Entfernung Luftlinie / Quelle: OpenStreetMap

Provision: 7.560,00 ? inkl. 20% USt.


Alle Details anzeigen

KONTAKT






 

Lasse dich kostenlos vom Anbieter dieser Immobilie zurückrufen.







 


 
Donau-Immobilien dieHausberater24 GmbH & CO KG
Georg Pachzelt
Telefonnummer anzeigen Handy Bearbeiter: +4369918348176
 
Bitte dem Makler die FindMyHome.at - ID bekanntgeben: 5560428

Bewertungen dieses Anbieters
Qualitätsmakler
Qualitätsmakler:
2019, 2021, 2023, 2024,
Netiquette
Freundlichkeit

BEWERTUNGEN DIESES ANBIETERS

 
Qualit�tsmakler
Qualitätsmakler
2019, 2021, 22/23, 2024
Freundlichkeit
BESONDERS
FREUNDLICH
Netiquette
FINDMYHOME
NETIQUETTE
Auch du kannst bewerten! 7 Tage nach deiner Anfrage erhältst du dafür von uns ein Bewertungsmail.
Alle Infos zu unseren Auszeichnungen und dem FINDMYHOME.AT Qualitätsprogramm findest du hier: Übersicht anzeigen

FINANZIERUNG
?>

Du willst wissen, wie viel dein Umzug kosten wird?

Mach gleich den kostenlosen Preisvergleich und schau, welche seriösen Anbieter in deiner Region günstig deinen Umzug organisieren


ZUM UMZUGS-VERGLEICH
-->

MYHOME BLOG
SuchAgentin auf FindMyHome.at
Unterschiedlichen Rechtsthemen, köstliche Rezepte, neueste Design-Highlights, sowie aktuelle Technik-Tools für Ihr Eigenheim.


FINDMYHOME.AT SUCHAGENTIN
SuchAgentin auf FindMyHome.at
Hallo, soll ich dir ähnliche Immobilien kostenfrei per E-Mail schicken?


ÄHNLICHE IMMOBILIEN
Aehnliche Immobilie - Vorschaubild 1

Einfamilienhaus mit Garage & Terrasse - Garten- und Freiheit... - Objektnr. 5560108

117,00 m² - 5 Zimmer
247500 €
PLZ: 8572

Mehr anzeigen

Durch die Nutzung unserer Seite erklären Sie sich mit der Verwendung von Cookies zur Verbesserung Ihres Online-Erlebnisses einverstanden. Detaillierte Informationen zu diesem und weiteren Themen erhalten Sie in unserer Datenschutzerklärung.