MEIN ERGEBNIS ANPASSEN

Exklusive Anlagewohnungen in Mauerbach: Wohnen zwischen Stadt und Natur - Objektnr. 5559320


ökologisch beheizt
1140
Ort
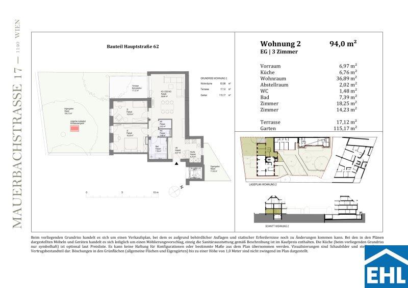
94,00 m²
Fläche
3.0
Zimmer
WEITERE MEDIEN

ECKDATEN
FindMyHome.at // Externe Immobilien-ID5559320 // 80152
ImmobilienartAnlage-Vorsorgewohnung - Eigentum
AnschriftHauptstraße/2
1140 Wien
Baujahr2026
Befeuerung
Luftwärmepumpe
Geschosse5
Fläche94,00 m²
Terrassen1 (17,00 m²)
Zimmer3.0
Bad1
WC1
Kaufpreis:€ 557.028,00
Ratenzahlung:Finanzierungsmöglichkeiten für diese Immobilie anzeigen
Provision: Provisionsfrei für den Käufer







BESCHREIBUNG

Exklusive Anlagewohnungen in Mauerbach: Wohnen zwischen Stadt und Natur

Zuhause in Hawei Ihr exklusives Investment zwischen Natur und Stadtleben!

In Hadersdorf-Weidlingau, dem familienfreundlichen 14. Wiener Gemeindebezirk, entsteht in der Mauerbachstraße, 1140 Wien, ein einzigartiges Wohnbauprojekt mit 13 hochwertig ausgestatteten Eigentums- und Vorsorgewohnungen zwischen 81 m² und 137 m² Wohnfläche sowie einem wunderschönen Salettl, das als Geschäftsfläche genutzt werden kann. Die ideale Lage, gleich um die Ecke vom Auhofcenter und der S-Bahn-Station, sowie die Nähe zum Grünen, bietet den Bewohnern eine perfekte Infrastruktur mit allen Geschäften, Schulen und Arztpraxen, die das Herz begehrt. Die S-Bahn und die Buslinien sind fußläufig schnell erreichbar. Das Projekt überzeugt durch effiziente und praktische Grundrisse und bietet eine Auswahl an wunderschönen 3- bis 4-Zimmer-Wohnungen. Der Großteil der Wohneinheiten verfügt über großzügige Freiflächen in Form von Balkonen, Terrassen oder Eigengärten.

Zuhause in Hawei Clever investieren, nachhaltig profitieren, entspannt vermieten!

Willkommen bei Zuhause in Hawei, einem außergewöhnlichen Wohnbauprojekt, das urbanen Komfort und naturnahe Ruhe vereint. Ideal gelegen, bietet dieses Projekt die perfekte Balance zwischen städtischer Anbindung und entspannter Atmosphäre im Grünen ein Investment, das nicht nur Rendite, sondern auch Lebensqualität verspricht.

 

Das Projekt

Die hochwertigen Baumaterialien und die moderne Gebäudetechnik sorgen nicht nur für eine ansprechende Ästhetik, sondern auch für langfristige Energieeffizienz und niedrige Betriebskosten. 

  • 14 freifinanzierte Vorsorgewohnungen
  • 14 Tiefgaragenplätze
  • 3 4 Zimmerwohnungen
  • Wohnungsgrößen zwischen 81 und 137 m²
  • Freiflächen wie Eigengarten, Terrasse, Loggia oder Balkon
  • Kinderwagen- und Fahrradabstellraum 

 

Die Ausstattung

  • Hochwertige Parkettböden
  • Feinsteinzeug in den Nassbereichen (Format 30x60 sowie 60x60)
  • Fußbodenheizung mit nachhaltiger Luft-Wärmepumpe
  • Beschattung je bauphysikalischer Gegebenheiten
  • Photovoltaikanlage
  • Klimageräte in den Dachgeschoßwohnungen (DG 1 und DG 2)

 

Kaufpreise der Vorsorgewohnungen

von EUR 520.003,00,- bis EUR 1.061.619,- netto zzgl. 20% USt.

Kaufpreis des Vorsorge-Stellplatzes

EUR 25.000,00 netto zzgl. 20% USt.

Zu erwartender Mietertrag

von ca. EUR 14,50 bis EUR 16,75 netto/m²

Provisionsfrei für den Käufer!
Fertigstellung:
1. Quartal 2026

 

Bei diesem Angebot handelt es sich um eine Vorsorgewohnung, die zu Vermietungszwecken erworben wird. Der angegebene Kaufpreis versteht sich daher zzgl. 20% USt. Diese Daten sind vorbehaltlich möglicher Änderungen.

Einen detaillierten Überblick finden Sie auf unserer EHL-Projekthomepage

Wir weisen darauf hin, dass zwischen dem Vermittler und dem zu vermittelnden Dritten ein familiäres oder wirtschaftliches Naheverhältnis besteht.

Der Vermittler ist als Doppelmakler tätig.


Infrastruktur / Entfernungen

Gesundheit
Arzt <2.500m
Apotheke <500m
Klinik <4.500m
Krankenhaus <3.250m

Kinder & Schulen
Schule <250m
Kindergarten <500m
Universität <1.500m
Höhere Schule <7.000m

Nahversorgung
Supermarkt <250m
Bäckerei <500m
Einkaufszentrum <750m

Sonstige
Geldautomat <750m
Bank <750m
Post <750m
Polizei <500m

Verkehr
Bus <250m
Straßenbahn <2.500m
U-Bahn <2.750m
Bahnhof <250m
Autobahnanschluss <750m

Angaben Entfernung Luftlinie / Quelle: OpenStreetMap

Klimaanlage: JA
Provision: Provisionsfrei für den Käufer


Alle Details anzeigen

KONTAKT






 

Lasse dich kostenlos vom Anbieter dieser Immobilie zurückrufen.







 


 
EHL Wohnen GmbH
Andrea PÖCHHACKER; MSc
Telefonnummer anzeigen Telefon Allgemein: +4315127690411
Handy Bearbeiter: +436648373481
 
Bitte dem Makler die FindMyHome.at - ID bekanntgeben: 5559320

Bewertungen dieses Anbieters
Qualitätsmakler
Qualitätsmakler:
Netiquette
Freundlichkeit
81 %

BEWERTUNGEN DIESES ANBIETERS

 
Qualitätsmakler
UNSERE HALL OF FAME DER BESTEN ANBIETER
Qualit�tsmakler
Qualitätsmakler
2012, 2013, 2014, 2015, 2016, 2017, 2018, 2019, 2020, 2021, 22/23, 2024, 2025
Weiterempfehlung
WIRD GERNE

Freundlichkeit
BESONDERS
FREUNDLICH
Netiquette
FINDMYHOME
NETIQUETTE
Auch du kannst bewerten! 7 Tage nach deiner Anfrage erhältst du dafür von uns ein Bewertungsmail.
Alle Infos zu unseren Auszeichnungen und dem FINDMYHOME.AT Qualitätsprogramm findest du hier: Übersicht anzeigen

FINANZIERUNG
?>

Du willst wissen, wie viel dein Umzug kosten wird?

Mach gleich den kostenlosen Preisvergleich und schau, welche seriösen Anbieter in deiner Region günstig deinen Umzug organisieren


ZUM UMZUGS-VERGLEICH
-->

MYHOME BLOG
SuchAgentin auf FindMyHome.at
Unterschiedlichen Rechtsthemen, köstliche Rezepte, neueste Design-Highlights, sowie aktuelle Technik-Tools für Ihr Eigenheim.


FINDMYHOME.AT SUCHAGENTIN
SuchAgentin auf FindMyHome.at
Hallo, soll ich dir ähnliche Immobilien kostenfrei per E-Mail schicken?


ÄHNLICHE IMMOBILIEN
Aehnliche Immobilie - Vorschaubild 1

Zukunftssicher investieren: Ihr Vorsorgeinvestment in Mauerb... - Objektnr. 5559319

82,10 m² - 3.0 Zimmer
565634 €
PLZ: 1140

Mehr anzeigen

Aehnliche Immobilie - Vorschaubild 2

Wohnen im Grünen: Ein exklusives Investment in Mauerbach... - Objektnr. 5559321

93,00 m² - 3.0 Zimmer
557730 €
PLZ: 1140

Mehr anzeigen

Aehnliche Immobilie - Vorschaubild 3

Ein Investment in Mauerbach: Ruhiges Wohnen & Urbane Anbindu... - Objektnr. 5559318

82,80 m² - 3.0 Zimmer
569113 €
PLZ: 1140

Mehr anzeigen

Durch die Nutzung unserer Seite erklären Sie sich mit der Verwendung von Cookies zur Verbesserung Ihres Online-Erlebnisses einverstanden. Detaillierte Informationen zu diesem und weiteren Themen erhalten Sie in unserer Datenschutzerklärung.