MEIN ERGEBNIS ANPASSEN

GARTENWOHNUNG NÄHE 1. BEZIRK, DONAUKANAL UND AUGARTEN | Komplett hofseitig | Sanierungsbedürftig | Rembrandtstraße - Objektnr. 5559067

1020
Ort
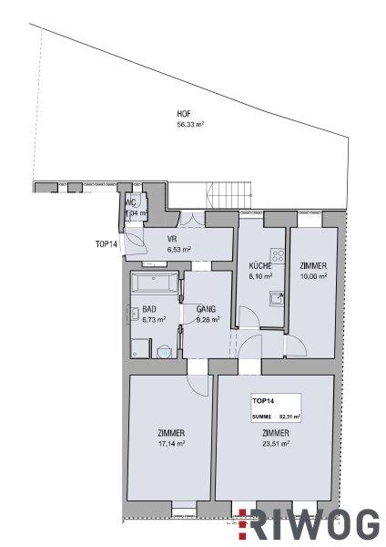
82,31 m²
Fläche
3.0
Zimmer

ECKDATEN
FindMyHome.at // Externe Immobilien-ID5559067 // 56275
ImmobilienartWohnung - Eigentum
Anschrift1020 Wien
Baujahr1889
Geschosse4
Fläche82,31 m²
Zimmer3.0
Bad1
WC1
Kaufpreis:€ 425.000,00
Ratenzahlung:Finanzierungsmöglichkeiten für diese Immobilie anzeigen
Provision: 15.300,00 ? inkl. 20% USt.







BESCHREIBUNG

GARTENWOHNUNG NÄHE 1. BEZIRK, DONAUKANAL UND AUGARTEN | Komplett hofseitig | Sanierungsbedürftig | Rembrandtstraße

In exklusiver Lage in der Rembrandtstraße, benannt nach dem niederländischen Maler und Radierer Rembrandt Harmensz van Rijn, gelangt diese sanierungsbedürftige Altbauwohnung mit Garten zum Verkauf. Gelegen ist die Wohnung mit einer Wohnfläche von ca. 82,7 m² und ca. 56 m² großem Garten im Hoftrakt eines Doppeltrakters aus der Gründerzeit. Der großzügig, komplett hofseitig angelegte Grundriss mit seinen drei separat begehbaren Zimmern und der separaten Küche eignet sich ideal für Familien oder eine WG und bietet eine hervorragende Basis zur individuellen Sanierung und Gestaltung. Die Lage überzeugt durch ihre hervorragende Anbindung (U2, U4, Straßenbahn und Bus) und Lebensqualität (zur Attraktivierung und Erhöhung der Lebensqualität wird die Rembrandtstraße derzeit mit Bäumen und Staudenbepflanzung begrünt und der Radweg verbreitert): In Gehweite befinden sich u. a. der Donaukanal, der 1. Bezirk sowie der idyllische Augarten  perfekte Voraussetzungen für urbanes Wohnen mit hohem Freizeitwert. 

HIGHLIGHTS

  • traumhafte Lage nahe Donaukanal, 1. Bezirk und Augarten
  • komplett hofseitig 
  • eigener Garten mitten in Stadt 
  • alle Zimmer separat begehbar - ideal auch zur WG-Nutzung
  • separate Küche 
  • viel Potenzial zur individuellen Gestaltung

INFOS ZUR WOHNUNG

  • WOHNFLÄCHE: ca. 82,3 m² 
  • ZIMMER: 3 + separate Küche
  • GARTEN: ca. 56,3 m² 
  • AUSRICHTUNG: Südost und Nordwest
  • GESCHOSS: Erdgeschoss
  • RAUMHÖHE: derzeit bis zu ca. 2,75 m
  • ZUSTAND: sanierungsbedürftig

Kaufpreis: € 425.000,00

Betriebskosten: € 217,29 inkl. 10% USt. p.M. derzeit
Reparaturrücklage: € 87,25 p.M. derzeit

Provision: 3% vom Kaufpreis zzgl. 20% USt.

Vertragserrichtung (gebunden): 1,5% netto zzgl. 20% USt., zzgl. Barauslagen und Beglaubigungskosten (Sauerzopf & Partner Rechtsanwälte)

Wohnungseigentum in Entstehung.

Die Wohnung wird in sanierungsbedürftigem Zustand verkauft, wie liegt und steht und wie besichtigt.

Bei den Fotos handelt es sich teilweise um KI-gestagte Fotos.


Zögern Sie nicht und vereinbaren Sie noch heute einen Besichtigungstermin! Ich freue mich auf Ihre Anfrage!

Besuchen Sie auch unsere Homepage unter www.RIWOG.at mit zahlreichen aktuellen TOP-Objekten!

Wir weisen darauf hin, dass zwischen dem Vermittler und dem zu vermittelnden Dritten ein familiäres oder wirtschaftliches Naheverhältnis besteht.

Der Vermittler ist als Doppelmakler tätig.


Infrastruktur / Entfernungen

Gesundheit
Arzt <500m
Apotheke <500m
Klinik <500m
Krankenhaus <1.500m

Kinder & Schulen
Schule <500m
Kindergarten <500m
Universität <500m
Höhere Schule <500m

Nahversorgung
Supermarkt <500m
Bäckerei <500m
Einkaufszentrum <2.000m

Sonstige
Geldautomat <500m
Bank <500m
Post <1.000m
Polizei <500m

Verkehr
Bus <500m
U-Bahn <500m
Straßenbahn <500m
Bahnhof <500m
Autobahnanschluss <2.500m

Angaben Entfernung Luftlinie / Quelle: OpenStreetMap

Objekt ist für eine Wohngemeinschaft geeignet
Gartennutzung: JA
Provision: 15.300,00 ? inkl. 20% USt.


Alle Details anzeigen

KONTAKT






 

Lasse dich kostenlos vom Anbieter dieser Immobilie zurückrufen.







 


 
RIWOG Real Estate Management GmbH
Learco Andrea Tews, MSc (WU)
Telefonnummer anzeigen Handy Bearbeiter: +436602479331
 
Bitte dem Makler die FindMyHome.at - ID bekanntgeben: 5559067

Bewertungen dieses Anbieters
Qualitätsmakler
Qualitätsmakler:
2015, 2016, 2017, 2018, 2019, 2021, 2023 ,
Netiquette
Freundlichkeit

BEWERTUNGEN DIESES ANBIETERS

 
Qualit�tsmakler
Qualitätsmakler
2015, 2016, 2017, 2018, 2019, 2021, 22/23
Freundlichkeit
BESONDERS
FREUNDLICH
Netiquette
FINDMYHOME
NETIQUETTE
Auch du kannst bewerten! 7 Tage nach deiner Anfrage erhältst du dafür von uns ein Bewertungsmail.
Alle Infos zu unseren Auszeichnungen und dem FINDMYHOME.AT Qualitätsprogramm findest du hier: Übersicht anzeigen

FINANZIERUNG
?>

Du willst wissen, wie viel dein Umzug kosten wird?

Mach gleich den kostenlosen Preisvergleich und schau, welche seriösen Anbieter in deiner Region günstig deinen Umzug organisieren


ZUM UMZUGS-VERGLEICH
-->

MYHOME BLOG
SuchAgentin auf FindMyHome.at
Unterschiedlichen Rechtsthemen, köstliche Rezepte, neueste Design-Highlights, sowie aktuelle Technik-Tools für Ihr Eigenheim.


FINDMYHOME.AT SUCHAGENTIN
SuchAgentin auf FindMyHome.at
Hallo, soll ich dir ähnliche Immobilien kostenfrei per E-Mail schicken?


ÄHNLICHE IMMOBILIEN
Aehnliche Immobilie - Vorschaubild 1

JOSEPHINE - Traumwohnung in Ruhelage direkt am Grünen Prater... - Objektnr. 5305598

68,72 m² - 3 Zimmer
474900 €
PLZ: 1020

Mehr anzeigen

Aehnliche Immobilie - Vorschaubild 2

Lichtdurchflutete 2-Zimmer-Altbauwohnung mit traumhaften Aus... - Objektnr. 5539869

68,00 m² - 2.0 Zimmer
375000 €
PLZ: 1020

Mehr anzeigen

Aehnliche Immobilie - Vorschaubild 3

JOSEPHINE - Vorsorgetraum: 3-Zimmer-Wohnung in Ruhelage am ... - Objektnr. 5537190

68,72 m² - 3 Zimmer
439800 €
PLZ: 1020

Mehr anzeigen

Durch die Nutzung unserer Seite erklären Sie sich mit der Verwendung von Cookies zur Verbesserung Ihres Online-Erlebnisses einverstanden. Detaillierte Informationen zu diesem und weiteren Themen erhalten Sie in unserer Datenschutzerklärung.