MEIN ERGEBNIS ANPASSEN

"Architektur trifft Potenzial ? ein Haus mit Geschichte und Zukunft" - Objektnr. 5556364

  • 01. Einfamilienhaus 1210 Wien
  • 02. Einfamilienhaus 1210 Wien
  • 03. Einfamilienhaus 1210 Wien
  • 04. Einfamilienhaus 1210 Wien
  • 05. Einfamilienhaus 1210 Wien
  • 06. Einfamilienhaus 1210 Wien
  • 07. Einfamilienhaus 1210 Wien
  • 08. Einfamilienhaus 1210 Wien
  • 09. Einfamilienhaus 1210 Wien
  • 10. Einfamilienhaus 1210 Wien
  • 11. Einfamilienhaus 1210 Wien
  • 12. Einfamilienhaus 1210 Wien
  • 13. Einfamilienhaus 1210 Wien
  • 14. Einfamilienhaus 1210 Wien
  • 15. Einfamilienhaus 1210 Wien
  • 16. Einfamilienhaus 1210 Wien
  • 17. Einfamilienhaus 1210 Wien
  • 18. Einfamilienhaus 1210 Wien
  • 19. Einfamilienhaus 1210 Wien
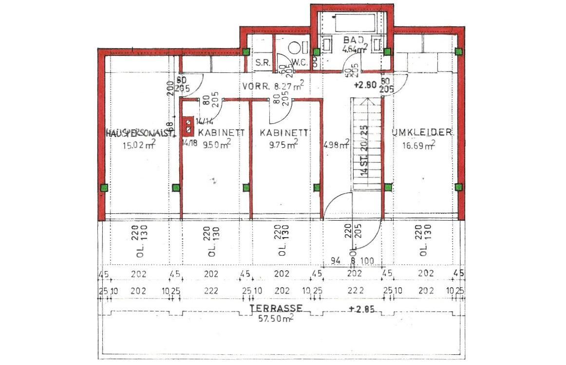
  • 21. Einfamilienhaus 1210 Wien - Grundriss EG
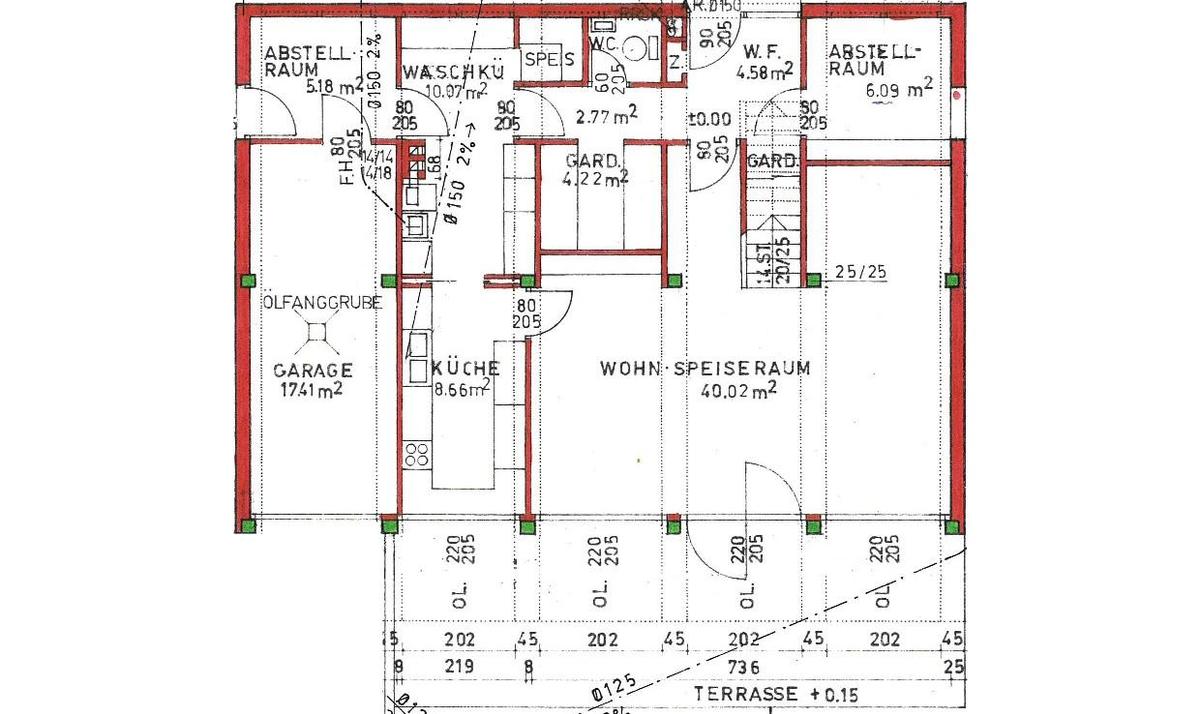
  • 20. Einfamilienhaus 1210 Wien Grundriss 1. Stock
1210
Ort
155,00 m²
Fläche
6.0
Zimmer

ECKDATEN
FindMyHome.at // Externe Immobilien-ID5556364 // 1626/27080
ImmobilienartHaus - Eigentum
Anschrift1210 Wien
NäheFloridsdorfer Aupark
HeizungZentralheizung mit Gas
Garagenplätze1
Beziehbar absofort
Fläche155,00 m²
Grundfläche753,00 m²
Terrassen2 (86,00 m²)
Zimmer6.0
Bad1
WC2
Kaufpreis:€ 510.000,00
Ratenzahlung:Finanzierungsmöglichkeiten für diese Immobilie anzeigen
sonstige Kosten (inkl. MwSt):€ 203,00
Provision Euro: 3.00 % exkl. MwSt.







BESCHREIBUNG

"Architektur trifft Potenzial ? ein Haus mit Geschichte und Zukunft"

"Architektur trifft Potenzial € ein Haus mit Geschichte und Zukunft"

Dieses Einfamilienhaus steht auf einem Pachtgrund des Stifts Klosterneuburg (Superädifikat) mit einer aktuell vertraglich gesicherten Laufzeit von 46 Jahren. Die jährliche Pacht beträgt € 7.117,95.

Entworfen vom renommierten Architekten Hans Puchhammer und im €Architektenführer Österreich? von Friedrich Achleitner gewürdigt, ist dieses Haus mehr als nur ein Gebäude € es ist ein Stück österreichische Architekturgeschichte. Die charakteristische Betonstützenkonstruktion, die klare Linienführung und der großzügige Grundriss schaffen eine Atmosphäre von Offenheit, Struktur und Individualität.

Im Erdgeschoss überzeugt der weitläufige Wohnraum mit imposanter Glasfront und direktem Zugang in den Garten € hell, ruhig und mit freiem Blick ins Grüne. Die angrenzende Küche ist zum Garten hin ausgerichtet und bietet ebenfalls einen schönen Blick ins Grüne. Ein großzügiger, direkt anschließender Raum € ursprünglich als Waschküche geplant € eröffnet zusätzliche Gestaltungsmöglichkeiten: etwa als zweite Küchenzone oder Hauswirtschaftsraum. Ergänzt wird diese Ebene durch ein WC, drei flexibel nutzbare Nebenräume (z. B. Büro, Atelier, Abstellraum) sowie eine integrierte Garage/Abstellraum.

Im Obergeschoss befinden sich vier Zimmer, ein Bad, ein separates WC und der Zugang zur rund 57,5 m² großen Sonnenterrasse € ein Ort zum Durchatmen und Genießen.

Das Gebäude präsentiert sich sanierungsbedürftig, bietet aber enormes Potenzial. Mit einer durchdachten Modernisierung € etwa einer thermischen Sanierung und einer zeitgemäßen Energieversorgung € lässt sich hier ein echtes Architektenjuwel neu zum Strahlen bringen.Das Flachdach eignet sich ideal für Solarkollektoren in Kombination mit einer Wärmepumpe. Ein Sanierungskostenvoranschlag ist verfügbar.

Die Lage punktet durch ihre Grünlage und Familienfreundlichkeit: Die Sackgasse endet an der €Gelben Brücke? zur Donauinsel € ideal für Spaziergänge, Laufen oder Radfahren. Nahversorger, Schule, Spielplatz und Bushaltestelle (Linie 34A, U6 Floridsdorf in rund 15 Minuten erreichbar) liegen praktisch vor der Tür.

Ein Haus für Menschen, die Architektur lieben € und den Mut haben, aus einem Rohdiamanten ihr persönliches Meisterstück zu formen.


Der Vermittler ist als Doppelmakler tätig!Angaben gemäß gesetzlichem Erfordernis:
Heizwärmebedarf:233.0 kWh/(m²a)Klasse Heizwärmebedarf:FFaktor Gesamtenergieeffizienz:2.84Klasse Faktor Gesamtenergieeffizienz:E
Gartennutzung: JA
Provision Euro: 3.00 % exkl. MwSt.


Alle Details anzeigen

KONTAKT






 

Lasse dich kostenlos vom Anbieter dieser Immobilie zurückrufen.







 


 
RE/MAX Elite
Wilhelm Fetscher
Telefonnummer anzeigen Telefon Allgemein: +4312083143
Handy Bearbeiter: +4369910102676
 
Bitte dem Makler die FindMyHome.at - ID bekanntgeben: 5556364

Bewertungen dieses Anbieters
Qualitätsmakler
Qualitätsmakler:
2012, 2015, 2017, 2018, 2019, 2020, 2021 , 2023, 2024, 2025,
Netiquette
Freundlichkeit

BEWERTUNGEN DIESES ANBIETERS

 
Qualit�tsmakler
Qualitätsmakler
2012, 2015, 2017, 2018, 2019, 2020, 2021, 22/23, 2024, 2025
Freundlichkeit
BESONDERS
FREUNDLICH
Netiquette
FINDMYHOME
NETIQUETTE
Auch du kannst bewerten! 7 Tage nach deiner Anfrage erhältst du dafür von uns ein Bewertungsmail.
Alle Infos zu unseren Auszeichnungen und dem FINDMYHOME.AT Qualitätsprogramm findest du hier: Übersicht anzeigen

FINANZIERUNG
?>

Du willst wissen, wie viel dein Umzug kosten wird?

Mach gleich den kostenlosen Preisvergleich und schau, welche seriösen Anbieter in deiner Region günstig deinen Umzug organisieren


ZUM UMZUGS-VERGLEICH
-->

MYHOME BLOG
SuchAgentin auf FindMyHome.at
Unterschiedlichen Rechtsthemen, köstliche Rezepte, neueste Design-Highlights, sowie aktuelle Technik-Tools für Ihr Eigenheim.


FINDMYHOME.AT SUCHAGENTIN
SuchAgentin auf FindMyHome.at
Hallo, soll ich dir ähnliche Immobilien kostenfrei per E-Mail schicken?


ÄHNLICHE IMMOBILIEN
Aehnliche Immobilie - Vorschaubild 1

Einfamilienhaus in absoluter Ruhelage - Objektnr. 5555036


129,56 m² - 5 Zimmer
480000 €
PLZ: 1210

Mehr anzeigen

Aehnliche Immobilie - Vorschaubild 2

"2 Doppelhäuser und ein Preis! Oberlisse 20 Meter vom 2... - Objektnr. 5548775

134,96 m² - 4.0 Zimmer
499000 €
PLZ: 1210

Mehr anzeigen

Durch die Nutzung unserer Seite erklären Sie sich mit der Verwendung von Cookies zur Verbesserung Ihres Online-Erlebnisses einverstanden. Detaillierte Informationen zu diesem und weiteren Themen erhalten Sie in unserer Datenschutzerklärung.