MEIN ERGEBNIS ANPASSEN

Exklusives Bauträgerprojekt nähe Denglerpark - Objektnr. 5554854

1210
Ort
204,00 m²
Fläche

ECKDATEN
FindMyHome.at // Externe Immobilien-ID5554854 // 4294
ImmobilienartGrundstück - Eigentum
Anschrift1210 Wien
Geschosse6
Grundfläche204,00 m²
Kaufpreis:€ 800.000,00
Ratenzahlung:Finanzierungsmöglichkeiten für diese Immobilie anzeigen
Provision: 3% des Kaufpreises zzgl. 20% USt.







BESCHREIBUNG

Exklusives Bauträgerprojekt nähe Denglerpark

Im Falle der Notwendigkeit einer Fremdfinanzierung Ihrer Wunschimmobilie ermittelt unser Wohnbau-Finanzierungsexperte gerne die optimale Finanzierungslösung und findet das passende Zins- und Konditionsangebot für Sie. Er vergleicht die aktuellen Angebote aller relevanten Banken und Bausparkassen. Der Angebotsvergleich kann aus einem Portfolio von über 120 Banken erfolgen. Das Erstgespräch ist für Sie kostenfrei und unverbindlich, gerne auch bei Ihnen vor Ort. So sparen Sie Ihre wertvolle Zeit und erhalten eine professionelle und unabhängige Finanzierungslösung vom Spezialisten. Sprechen Sie uns wegen eines Termins gerne an!

 

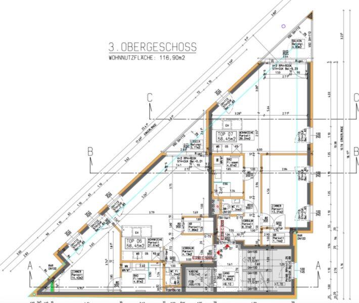
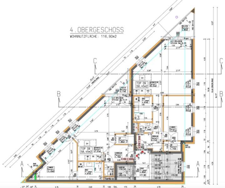
Zum Verkauf gelangt ein Bauträgerprojekt inklusive Einreichplan und Baubewilligung im 21. Wiener Bezirk.

Gut gelegen im 21. Wiener Bezirk, präsentieren wir Ihnen ein spannendes Bauträgerprojekt mit großartigem Potenzial.

Bei dem beigefügten Bild handelt es sich um ein Symbolbild.

Auf dem ca. 204 m² großen Grundstück soll sich das gut durchdachte Bauprojekt befinden. Dieses sieht ein Gebäude mit 10 Einheiten auf insgesamt 6 Etagen (EG, 1.-4. OG, 1.DG) vor. Im Erdgeschoss ist die Geschäftsfläche vorgesehen. Auf die restlichen Geschosse sind die 9 Wohneinheiten verteilt. Die Wohnnutzfläche beträgt ca. 558 m² und ca. 52 m² Geschäftsfläche. Die Wohneinheiten weisen Wohnflächen von ca. 58 m² bis ca. 90 m² vor. Zusätzlich verfügt das Projekt über Balkone mit einer Fläche von ca. 14,5 m² sowie Terrassen mit insgesamt ca. 7 m².

Zurzeit befindet sich ein Objekt auf dem Grundstück, welches abgerissen werden muss, um Platz für das neue Projekt zu schaffen.

Die attraktive Lage im aufstrebenden 21. Bezirk, kombiniert mit bereits genehmigten Bauplänen für einen sofortigen Baubeginn, machen dieses Angebot besonders vielversprechend. Das flexible Konzept ohne Garage ist ideal für urbane Lebensstile und bietet vielseitiges Potenzial für Investoren oder Entwickler. Geschäfte des täglichen Bedarfs liegen in unmittelbarer Umgebung.
Die Anbindung ist hervorragend, mit der Straßenbahnlinie 26 in unmittelbarer Nähe sowie dem Jedlersdorf Bahnhof. Den Bahnhof Wien Floridsdorf erreichen Sie in nur ca. 10 Minuten. Dieser bringt Sie mit Schnellbahnverbindungen, der U6, diversen Straßenbahnen und Bussen schnell an jedes Ziel. Naherholungsgebiete wie die Donauinsel liegen nur wenige Minuten mit dem Fahrrad entfernt.

Gerne lassen wir Ihnen bei ernsthaftem Interesse - vor Kaufanbotlegung - weitere vertraulichen Dokumente zu dieser Liegenschaft zukommen, welche nicht veröffentlicht werden dürfen.

Überzeugen Sie sich selbst von diesem überaus attraktiven Objekt. Für Besichtigungen und nähere Informationen stehen wir Ihnen gerne zur Verfügung!

Herr Aleksandar Mihajlovic, MSc
national - Tel: 0660 652 5500
international - Tel: +43 660 652 5500
e-mail:

 

Wir weisen darauf hin, dass zwischen dem Vermittler und dem zu vermittelnden Dritten ein familiäres oder wirtschaftliches Naheverhältnis besteht.

Der Vermittler ist als Doppelmakler tätig.

 

 


Infrastruktur / Entfernungen

Gesundheit
Arzt <500m
Apotheke <500m
Klinik <1.500m
Krankenhaus <1.500m

Kinder & Schulen
Schule <500m
Kindergarten <500m
Universität <2.000m
Höhere Schule <1.000m

Nahversorgung
Supermarkt <500m
Bäckerei <500m
Einkaufszentrum <1.000m

Sonstige
Geldautomat <1.000m
Bank <1.000m
Post <500m
Polizei <1.500m

Verkehr
Bus <500m
U-Bahn <1.500m
Straßenbahn <500m
Bahnhof <1.000m
Autobahnanschluss <1.000m

Angaben Entfernung Luftlinie / Quelle: OpenStreetMap

Provision: 3% des Kaufpreises zzgl. 20% USt.


Alle Details anzeigen

KONTAKT






 

Lasse dich kostenlos vom Anbieter dieser Immobilie zurückrufen.







 


 
IM Lifestyle Properties GmbH
Aleksandar Mihajlovic
Telefonnummer anzeigen Telefon Allgemein: +4315121484
Handy Bearbeiter: +436606525500
 
Bitte dem Makler die FindMyHome.at - ID bekanntgeben: 5554854

Bewertungen dieses Anbieters
Qualitätsmakler
Qualitätsmakler:
2019, 2023,
Netiquette
Freundlichkeit

BEWERTUNGEN DIESES ANBIETERS

 
Qualit�tsmakler
Qualitätsmakler
2019, 22/23
Freundlichkeit
BESONDERS
FREUNDLICH
Netiquette
FINDMYHOME
NETIQUETTE
Auch du kannst bewerten! 7 Tage nach deiner Anfrage erhältst du dafür von uns ein Bewertungsmail.
Alle Infos zu unseren Auszeichnungen und dem FINDMYHOME.AT Qualitätsprogramm findest du hier: Übersicht anzeigen

FINANZIERUNG
?>

Du willst wissen, wie viel dein Umzug kosten wird?

Mach gleich den kostenlosen Preisvergleich und schau, welche seriösen Anbieter in deiner Region günstig deinen Umzug organisieren


ZUM UMZUGS-VERGLEICH
-->

MYHOME BLOG
SuchAgentin auf FindMyHome.at
Unterschiedlichen Rechtsthemen, köstliche Rezepte, neueste Design-Highlights, sowie aktuelle Technik-Tools für Ihr Eigenheim.


FINDMYHOME.AT SUCHAGENTIN
SuchAgentin auf FindMyHome.at
Hallo, soll ich dir ähnliche Immobilien kostenfrei per E-Mail schicken?


ÄHNLICHE IMMOBILIEN
Aehnliche Immobilie - Vorschaubild 1

PERFEKT FÜR IMMOBILIENENTWICKLER - Objektnr. 5572112



771035 €
PLZ: 1210

Mehr anzeigen

Aehnliche Immobilie - Vorschaubild 2

Zukunftsprojekt: Abbruchgebäude mit bestehender Bauplanung f... - Objektnr. 5576693


650000 €
PLZ: 1210

Mehr anzeigen

Aehnliche Immobilie - Vorschaubild 3

Baugrund mit Abrissobjekt - Objektnr. 5513342



923750 €
PLZ: 1210

Mehr anzeigen

Durch die Nutzung unserer Seite erklären Sie sich mit der Verwendung von Cookies zur Verbesserung Ihres Online-Erlebnisses einverstanden. Detaillierte Informationen zu diesem und weiteren Themen erhalten Sie in unserer Datenschutzerklärung.