SÜDSEITIG : Stilaltbau beim Walter-Beck-Platz - Objektnr. 5550881

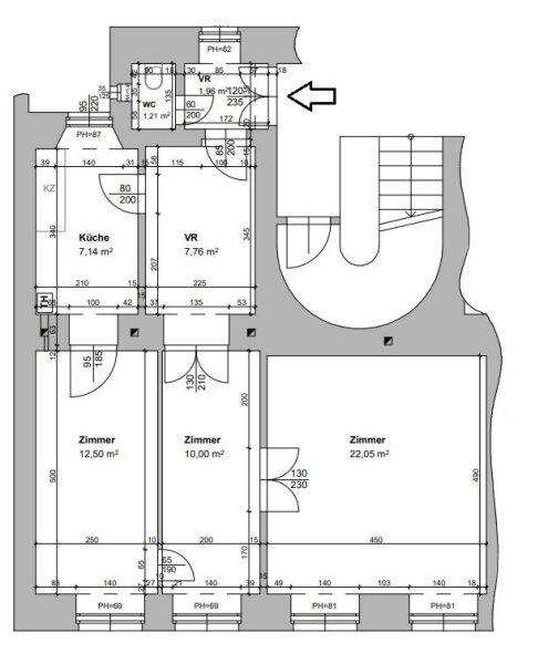
  • Grundriss aktuell
  • Grundrissoptimierung Vorschlag
1090
Ort
58,98 m²
Fläche
3.0
Zimmer

ECKDATEN
FindMyHome.at // Externe Immobilien-ID5550881 // 2988
ImmobilienartWohnung - Eigentum
Anschrift1090 Wien,Alsergrund
Baujahr1880
Befeuerung
Fläche58,98 m²
Zimmer3.0
WC1
Kaufpreis:€ 220.000,00
Ratenzahlung:Finanzierungsmöglichkeiten für diese Immobilie anzeigen
Provision: 7.920,00 ? inkl. 20% USt.







BESCHREIBUNG

SÜDSEITIG : Stilaltbau beim Walter-Beck-Platz

FAST FACTS: 1030 | EIGENTUM | 58,98m² | 3 Zimmer | € 220.000,-- | Sanierungsbedürftig | Erdgeschoß | Nähe Walter-Beck-Platz

Bringen Sie neues Leben in die alten Gemäuer  ganz nach Ihrem Geschmack!

In zentraler Lage, direkt beim Walter-Beck-Platz, liegt diese sanierungsbedürftige Wohnung mit gutem Grundriss im Erdgeschoß.
Der ca. 1880 errichtete Stilaltbau erstrahlt mit wunderschön gegliederter Fassade.

Durch das Vorzimmer hindurch gelangt man geradewegs über das Durchgangszimmer sowohl in das Wohnzimmer, als auch in das Kabinett. 
Die Räume sind südseitig ausgerichtet.

Die Küche ist vom Vorraum begehbar und hofseitig gelegen. Badezimmer ist derzeit keines vorhanden, die Toilette ist separat.
Geheizt wird mittels einer Gastherme.

Die Räumlichkeiten erfordern eine Sanierung. Das Dachgeschoß wurde bereits ausgebaut. 

Es bestehen leichte m²-Differenzen zwischen dem Nutzwertgutachten (58,98m²) und dem Plan (62,62m²).

Raumaufteilung
- Wohnzimmer
- Kabinett 
- Durchgangszimmer
- Küche
- Vorraum
- Separate Toilette

Ausstattung
- Teppich
- PVC
- Flügeltüre
- Gasetagenheizung
- Überdachter Fahrradständer in Hof

Für einen Besichtigungstermin oder Fragen stehe ich Ihnen gern zur Verfügung.

Wir möchten darauf hinweisen, dass zwischen ViennaEstate Makler GmbH und dem Auftraggeber ein wirtschaftliches Naheverhältnis besteht.
Die ViennaEstate Makler GmbH ist als Doppelmakler tätig.

 

Wir weisen darauf hin, dass zwischen dem Vermittler und dem zu vermittelnden Dritten ein familiäres oder wirtschaftliches Naheverhältnis besteht.

Der Vermittler ist als Doppelmakler tätig.


Infrastruktur / Entfernungen

Gesundheit
Arzt <500m
Apotheke <500m
Klinik <500m
Krankenhaus <500m

Kinder & Schulen
Schule <500m
Kindergarten <500m
Universität <500m
Höhere Schule <500m

Nahversorgung
Supermarkt <500m
Bäckerei <500m
Einkaufszentrum <1.500m

Sonstige
Geldautomat <500m
Bank <500m
Post <500m
Polizei <1.000m

Verkehr
Bus <500m
U-Bahn <500m
Straßenbahn <500m
Bahnhof <500m
Autobahnanschluss <3.000m

Angaben Entfernung Luftlinie / Quelle: OpenStreetMap

Provision: 7.920,00 ? inkl. 20% USt.


Alle Details anzeigen

KONTAKT






 

Lasse dich kostenlos vom Anbieter dieser Immobilie zurückrufen.







 


 
ViennaEstate Makler GmbH
Christina Radel
Telefonnummer anzeigen Telefon Allgemein: +4312360155813
Handy Bearbeiter: +4367683985813
 
Bitte dem Makler die FindMyHome.at - ID bekanntgeben: 5550881

Bewertungen dieses Anbieters
Qualitätsmakler
Qualitätsmakler:
2015, 2016, 2017, 2018, 2019, 2020, 2023 ,
Netiquette
Freundlichkeit

BEWERTUNGEN DIESES ANBIETERS

 
Qualit�tsmakler
Qualitätsmakler
2015, 2016, 2017, 2018, 2019, 2020, 22/23
Freundlichkeit
BESONDERS
FREUNDLICH
Netiquette
FINDMYHOME
NETIQUETTE
Auch du kannst bewerten! 7 Tage nach deiner Anfrage erhältst du dafür von uns ein Bewertungsmail.
Alle Infos zu unseren Auszeichnungen und dem FINDMYHOME.AT Qualitätsprogramm findest du hier: Übersicht anzeigen

FINANZIERUNG
?>

Du willst wissen, wie viel dein Umzug kosten wird?

Mach gleich den kostenlosen Preisvergleich und schau, welche seriösen Anbieter in deiner Region günstig deinen Umzug organisieren


ZUM UMZUGS-VERGLEICH
-->

MYHOME BLOG
SuchAgentin auf FindMyHome.at
Unterschiedlichen Rechtsthemen, köstliche Rezepte, neueste Design-Highlights, sowie aktuelle Technik-Tools für Ihr Eigenheim.


FINDMYHOME.AT SUCHAGENTIN
SuchAgentin auf FindMyHome.at
Hallo, soll ich dir ähnliche Immobilien kostenfrei per E-Mail schicken?


Durch die Nutzung unserer Seite erklären Sie sich mit der Verwendung von Cookies zur Verbesserung Ihres Online-Erlebnisses einverstanden. Detaillierte Informationen zu diesem und weiteren Themen erhalten Sie in unserer Datenschutzerklärung.