Erstbezug! 3-Zimmer Wohnung mit Loggia und Traumausblick, Nähe Neue Donau - Objektnr. 5549212


ökologisch beheizt
1020
Ort
75,62 m²
Fläche
3.0
Zimmer

ECKDATEN
FindMyHome.at // Externe Immobilien-ID5549212 // 3909
ImmobilienartEigentum
Anschrift1020 Wien
Baujahr2019
Befeuerung
Fernwärme
Stock15
Fläche75,62 m²
Terrassen1 (23,00 m²)
Zimmer3.0
Bad1
WC1
 Abstellraum
Kaufpreis:€ 749.000,00
Ratenzahlung:Finanzierungsmöglichkeiten für diese Immobilie anzeigen
Provision: 3% des Kaufpreises zzgl. 20% USt.







BESCHREIBUNG

Erstbezug! 3-Zimmer Wohnung mit Loggia und Traumausblick, Nähe Neue Donau

Im Falle der Notwendigkeit einer Fremdfinanzierung Ihrer Wunschimmobilie ermittelt unser Wohnbau-Finanzierungsexperte gerne die optimale Finanzierungslösung und findet das passende Zins- und Konditionsangebot für Sie. Er vergleicht die aktuellen Angebote aller relevanten Banken und Bausparkassen. Der Angebotsvergleich kann aus einem Portfolio von über 120 Banken erfolgen. Das Erstgespräch ist für Sie kostenfrei und unverbindlich, gerne auch bei Ihnen vor Ort. So sparen Sie Ihre wertvolle Zeit und erhalten eine professionelle und unabhängige Finanzierungslösung vom Spezialisten. Sprechen Sie uns wegen eines Termins gerne an!

 

Zum Verkauf gelangt eine 3-Zimmer Wohnung im 2. Wiener Gemeindebezirk.

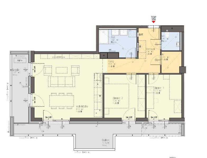
Diese wunderschöne Wohnung befindet sich im 15. Stock des neu gebauten Marina Towers. Die ca. 76 m² Fläche teilen sich auf in eine Wohnküche, zwei Zimmer, einen Vorraum, ein Badezimmer, ein separates WC und einen Abstellraum. Zusätzlich dazu bietet die Wohnung eine ca. 8 m² große Loggia und einen ca. 16 m² großen Balkon. In den Zimmern der Wohnung wurde hochwertiger Eichenparkett verlegt und in den Nassräumen modernes, helles Feinsteinzeug. Die 3-fach verglasten Fenster können mittels einer Fensterjalousie im Handumdrehen verdunkelt werden. Es besteht die Möglichkeit einen Garagenplatz in der APCOA Tiefgarage zu mieten.

Sie betreten die Wohnung und gelangen in den geräumigen Vorraum und Gang, der Ihnen direkt den Weg in die ca. 31 m² große Wohnküche bietet. Eine hochmoderne, voll ausgestattete Küche wartet hier bereits darauf, von Ihnen eigeweiht zu werden. Eine Sofalandschaft und ein Esstisch für mehrere Personen kann in der Wohnküche ebenfalls leicht Platz finden. Eine große Glasschiebetür gibt den Weg auf die ca.  8 m² große Loggia frei, von der Sie eine atemberaubende Aussicht auf die Donauinsel genießen können. Entspannten Abenden steht hier nichts mehr im Weg. Durch eine Tür gelangen Sie in das ca. 15m² große Schlafzimmer. Auch hier ermöglicht Ihnen ein großes Fenster, dieselbe wunderschöne Aussicht, wie aus der Wohnküche. Für ein großes Bett und Schränke finden Sie hier Platz. Das Badezimmer erreichen Sie En-Suite. Dieses ist mit einer Dusche und einem Waschbecken ausgestattet. Ein Waschmaschinenanschluss ist ebenfalls vorhanden. Die separate Toilette befindet sich am Wohnungseingang. Waschbecken und Toilette sind von Villeroy& Boch und sämtliche Armaturen von Grohe.

Die Wohnung ist zurzeit befristet bis zum 31.03.2028 vermietet und erzielt monatlich eine Netto Mieteinnahme von ca. € 1.609,55,- exkl. Betriebskosten exkl. 10% USt.

Der Marina Tower befindet sich in einer ausgezeichneten Lage. Die U-Bahnlinie U2 bringt Sie schnell in die Innenstadt mit seiner perfekten Anbindung an die U1. Auch viele S-Bahnen und Straßenbahnlinien sind schnell zu erreichen, am Knotenpunkt Praterstern. Weiters verfügt der Tower über besondere Zusatzmerkmale und Annehmlichkeiten. Ein Fitnessstudio und ein Café können gegen eine Gebühr genutzt werden. Sie haben die Möglichkeit Auto und Fahrräder mittels Car Sharing zu mieten. Ein Kindergarten, ein Supermarkt und eine Trafik sorgen für noch mehr Komfort und ersparen lange Wege. Weiters können Sie Gebrauch vom umfangreichen Concierge Service machen.

Gerne lassen wir Ihnen bei ernsthaftem Interesse - vor Kaufanbotlegung - weitere vertraulichen Dokumente zu dieser Liegenschaft zukommen, welche nicht veröffentlicht werden dürfen.

Überzeugen Sie sich selbst von diesem überaus attraktiven Objekt. Für Besichtigungen und nähere Informationen stehen wir Ihnen gerne zur Verfügung!

Mag. Viola Wasmuth
national - Tel: 0670 4039361
international - Tel: +43 670 4039361
e-mail:

Wir weisen darauf hin, dass zwischen dem Vermittler und dem zu vermittelnden Dritten ein familiäres oder wirtschaftliches Naheverhältnis besteht.

Der Vermittler ist als Doppelmakler tätig.

 

 


Infrastruktur / Entfernungen

Gesundheit
Arzt <2.500m
Apotheke <500m
Klinik <1.500m
Krankenhaus <3.000m

Kinder & Schulen
Schule <500m
Kindergarten <1.500m
Universität <1.000m
Höhere Schule <3.000m

Nahversorgung
Supermarkt <500m
Bäckerei <500m
Einkaufszentrum <1.000m

Sonstige
Geldautomat <500m
Bank <500m
Post <500m
Polizei <2.500m

Verkehr
Bus <500m
U-Bahn <500m
Straßenbahn <2.000m
Bahnhof <500m
Autobahnanschluss <500m

Angaben Entfernung Luftlinie / Quelle: OpenStreetMap

Provision: 3% des Kaufpreises zzgl. 20% USt.


Alle Details anzeigen

KONTAKT






 

Lasse dich kostenlos vom Anbieter dieser Immobilie zurückrufen.







 


 
IM Lifestyle Properties GmbH
Viola Wasmuth
Telefonnummer anzeigen Telefon Allgemein: +4315121484
Handy Bearbeiter: +436704039361
 
Bitte dem Makler die FindMyHome.at - ID bekanntgeben: 5549212

Bewertungen dieses Anbieters
Qualitätsmakler
Qualitätsmakler:
2019, 2023,
Netiquette
Freundlichkeit

BEWERTUNGEN DIESES ANBIETERS

 
Qualit�tsmakler
Qualitätsmakler
2019, 22/23
Freundlichkeit
BESONDERS
FREUNDLICH
Netiquette
FINDMYHOME
NETIQUETTE
Auch du kannst bewerten! 7 Tage nach deiner Anfrage erhältst du dafür von uns ein Bewertungsmail.
Alle Infos zu unseren Auszeichnungen und dem FINDMYHOME.AT Qualitätsprogramm findest du hier: Übersicht anzeigen

FINANZIERUNG
?>

Du willst wissen, wie viel dein Umzug kosten wird?

Mach gleich den kostenlosen Preisvergleich und schau, welche seriösen Anbieter in deiner Region günstig deinen Umzug organisieren


ZUM UMZUGS-VERGLEICH
-->

MYHOME BLOG
SuchAgentin auf FindMyHome.at
Unterschiedlichen Rechtsthemen, köstliche Rezepte, neueste Design-Highlights, sowie aktuelle Technik-Tools für Ihr Eigenheim.


FINDMYHOME.AT SUCHAGENTIN
SuchAgentin auf FindMyHome.at
Hallo, soll ich dir ähnliche Immobilien kostenfrei per E-Mail schicken?


ÄHNLICHE IMMOBILIEN
Aehnliche Immobilie - Vorschaubild 1

TOP FÜR ANLEGER | TERRASSSENWOHNUNG | 3 ZIMMER | VERMIETET |... - Objektnr. 5486190

75,52 m² - 3.0 Zimmer
643512.33 €
PLZ: 1020

Mehr anzeigen

Aehnliche Immobilie - Vorschaubild 2

++ SB1 ++ 2-Zimmer DG-Erstbezug mit Balkon und 360° Panorama... - Objektnr. 5461227

73,90 m² - 2.0 Zimmer
695000 €
PLZ: 1020

Mehr anzeigen

Aehnliche Immobilie - Vorschaubild 3

The Pearl: 2-Zimmer Erstbezug direkt beim Karmelitermarkt... - Objektnr. 5623529

60,90 m² - 2.0 Zimmer
619000 €
PLZ: 1020

Mehr anzeigen

Durch die Nutzung unserer Seite erklären Sie sich mit der Verwendung von Cookies zur Verbesserung Ihres Online-Erlebnisses einverstanden. Detaillierte Informationen zu diesem und weiteren Themen erhalten Sie in unserer Datenschutzerklärung.