MEIN ERGEBNIS ANPASSEN

DANUBEFLATS Penthouse. The One and Only. - Objektnr. 5543322

1220
Ort
304,00 m²
Fläche
4.5
Zimmer

ECKDATEN
FindMyHome.at // Externe Immobilien-ID5543322 // 1063
ImmobilienartEigentum
Anschrift1220 Wien
Baujahr2025
Geschosse48
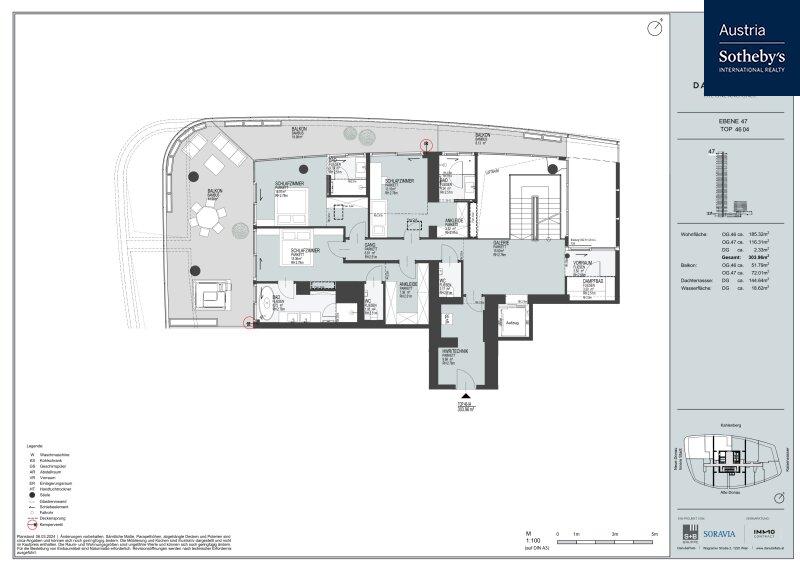
Fläche304,00 m²
Terrassen1 (269,00 m²)
Zimmer4.5
Provision:







BESCHREIBUNG

DANUBEFLATS Penthouse. The One and Only.

Es ist an der Zeit, Wohnqualität neu zu definieren, Maßstäbe in Sachen Lebensqualität, Architektur und Service zu setzen. Überragende Architektur, die schon auf den ersten Blick fasziniert und auf 48 Stockwerken genau das hält, was sie von außen verspricht. Das alles entsteht nun in Wien, direkt an der Donau: mit Österreichs höchstem Wohnturm. Lassen Sie sich die Welt zu Füßen legen!

Lebensqualität, die alles andere überragt

  • Mit rund 180 Metern der höchste Wohnturm Österreichs
  • Rund 500 Eigentumswohnungen, Wohnungsgrößen individuell schon ab ca. 30 m²
  • Hochwertige Ausstattung, großteils Raumhöhen von rund 2,8 m, Smart Living Technology in allen Wohnungen
  • Elegante 5 Star Lobby mit Doorman
  • Großzügiger Spa-Bereich mit Sauna, Fitness, Ruhezone, Yoga-Raum, ganzjährig beheiztem Pool und Cocktailbar
  • Top ausgestattete Business Lounge, Event Lounge, Executive Lounge, Sky-Gärten
  • Gastronomie mit attraktivem Gastgarten
  • Begrüntes Park-House

Infrastruktur ohne Grenzen

  • Top-Anbindung an die historische Innenstadt sowie an den Flughafen
  • Internationales Umfeld, UNO-City und zahlreiche internationale Unternehmen
  • U-Bahn Station angrenzend an das Areal
  • Gastronomie und Nahversorgung direkt im Haus, Schulen und Ärzte in unmittelbarer Nähe
  • Donauzentrum (das größte Shopping-Center Wiens) in wenigen Minuten erreichbar

Freizeitvergnügen vom Feinsten

  • Wunderschöne Naturschutzgebiete und Naherholungsgebiete vor der Haustür: Donau, Donaupark, Donauinsel 
  • sowie Alte Donau fußläufig erreichbar
  • Ideal für Sport, Freizeit, Rückzug
  • Direkter Zugang zur Neuen Donau
  • Bootsfahrten direkt im Kaiserwasser
  • Attraktive Gastronomie direkt im Haus und in der nahen Umgebung

Wir präsentieren Ihnen gerne alle noch verfügbaren Wohnungen. Vereinbaren Sie jetzt Ihren persönlichen Beratungstermin!

 

Der guten Ordnung halber weisen wir auf das wirtschaftliche Naheverhältnis zum Abgeber hin.

Die EXKLUSIVEN MAISONETTEWOHNUNGEN befinden sich in den beiden OBERSTEN STOCKWERKEN des Turms und bieten ein IMPOSANTES WOHNERLEBNIS Aus dem höchsten Penthouse Wiens haben Sie einen UNVERGLEICHLICHEN AUSBLICK auf die Stadt und genießen ein WEITLÄUFIGES WOHNGEFÜHL. Hier finden Sie LUXUS AUF HÖCHSTEM NIVEAU. Besonders beeindruckend ist der LUXURIÖSE WOHN-ESS-BEREICH, der sich wunderbar eignet, um Gäste zu empfangen und Dinnerpartys mit spektakulärem Ausblick zu feiern. Dank der großflächigen Verglasungen und großzügigen Raumhöhen sind die Wohnungen wunderbar HELL UND LICHTDURCHFLUTET. Auch für höchste Ansprüche bleiben hier keine Wünsche offen.

Noch nichts gefunden Wir informieren Sie über geeignete Immobilienangebote noch vor allen anderen.
Legen Sie jetzt Ihren individuellen Suchagenten unter folgendem Link an. Wir schicken Ihnen passende Immobilien exklusiv vorab zu.
Suchagent anlegen - https://austria-sotheby-s-international-realty.service.immo/registrieren/de

Wir weisen darauf hin, dass zwischen dem Vermittler und dem zu vermittelnden Dritten ein familiäres oder wirtschaftliches Naheverhältnis besteht.

Der Vermittler ist als Doppelmakler tätig.


Infrastruktur / Entfernungen

Gesundheit
Arzt <500m
Apotheke <500m
Klinik <1.500m
Krankenhaus <2.500m

Kinder & Schulen
Schule <500m
Kindergarten <500m
Universität <2.000m
Höhere Schule <3.000m

Nahversorgung
Supermarkt <500m
Bäckerei <500m
Einkaufszentrum <2.000m

Sonstige
Geldautomat <500m
Bank <500m
Post <500m
Polizei <500m

Verkehr
Bus <500m
U-Bahn <500m
Straßenbahn <1.500m
Bahnhof <500m
Autobahnanschluss <500m

Angaben Entfernung Luftlinie / Quelle: OpenStreetMap

Provision:


Alle Details anzeigen

KONTAKT






 

Lasse dich kostenlos vom Anbieter dieser Immobilie zurückrufen.







 


 
Austria Sotheby´s International Realty
Barbara Bradler
Telefonnummer anzeigen Telefon Allgemein: +4313431000
Handy Bearbeiter: +436766216415
 
Bitte dem Makler die FindMyHome.at - ID bekanntgeben: 5543322

Bewertungen dieses Anbieters
Netiquette

BEWERTUNGEN DIESES ANBIETERS

 
Netiquette
FINDMYHOME.AT
NETIQUETTE
Auch du kannst bewerten! 7 Tage nach deiner Anfrage erhältst du dafür von uns ein Bewertungsmail.
Alle Infos zu unseren Auszeichnungen und dem FINDMYHOME.AT Qualitätsprogramm findest du hier: Übersicht anzeigen


Du willst wissen, wie viel dein Umzug kosten wird?

Mach gleich den kostenlosen Preisvergleich und schau, welche seriösen Anbieter in deiner Region günstig deinen Umzug organisieren


ZUM UMZUGS-VERGLEICH
-->

MYHOME BLOG
SuchAgentin auf FindMyHome.at
Unterschiedlichen Rechtsthemen, köstliche Rezepte, neueste Design-Highlights, sowie aktuelle Technik-Tools für Ihr Eigenheim.


FINDMYHOME.AT SUCHAGENTIN
SuchAgentin auf FindMyHome.at
Hallo, soll ich dir ähnliche Immobilien kostenfrei per E-Mail schicken?


ÄHNLICHE IMMOBILIEN
Aehnliche Immobilie - Vorschaubild 1

DANUBEFLATS Penthouse. The One and Only. - Objektnr. 5543320


254,00 m² - 4.5 Zimmer
0 €
PLZ: 1220

Mehr anzeigen

Aehnliche Immobilie - Vorschaubild 2

DANUBEFLATS Penthouse. The One and Only. - Objektnr. 5543319


321,02 m² - 5.5 Zimmer
0 €
PLZ: 1220

Mehr anzeigen

Durch die Nutzung unserer Seite erklären Sie sich mit der Verwendung von Cookies zur Verbesserung Ihres Online-Erlebnisses einverstanden. Detaillierte Informationen zu diesem und weiteren Themen erhalten Sie in unserer Datenschutzerklärung.