MEIN ERGEBNIS ANPASSEN

Leben mit flow! 3-Zimmer zwischen Donau, Stadt und Leichtigkeit in den neuen DC-Flats - Objektnr. 5539606

virtuell besichtigen
  • Wohnküche BSP
  • Hausansicht
  • Wohnküche BSP
  • Schlafzimmer BSP
  • Küchen BSP
  • Hauseingang
  • Badezimmer BSP
  • Fahrradraum : Postboxen
  • Badezimmer BSP
  • Spielplatz
  • Lizenz Imagine Bild14
  • Lizenz Imagine Bild1
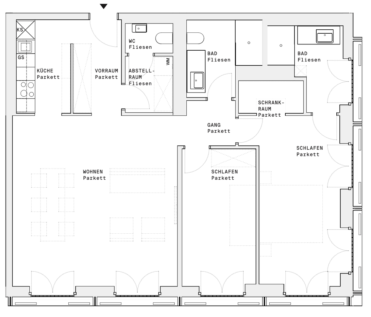
  • Grundriss Top 263
  • Logo
  • IMMY Preistra?ger
1220
Ort
€ 2.300,00
Gesamtkosten
92,00 m²
Fläche
3.0
Zimmer
WEITERE MEDIEN

Virtuelle Rundgänge


ECKDATEN
FindMyHome.at // Externe Immobilien-ID5539606 // 3610/8053
ImmobilienartWohnung - Miete
AnschriftDonau-City-Straße
1220 Wien
Baujahr2025
NäheDonau-City, Wagramer Straße
HeizungFußbodenheizung
Liftja
KellerJa
Beziehbar absofort
Mietdauer5.0
Fläche92,00 m²
Zimmer3.0
Bad2
WC2
Kaution:€ 6.900,00
sonstige Kosten (inkl. MwSt):€ 299,67
Mehrwertsteuer:€ 2.298,00
Monatliche Gesamtkosten:€ 2.300,00




BESCHREIBUNG

Leben mit flow! 3-Zimmer zwischen Donau, Stadt und Leichtigkeit in den neuen DC-Flats

DC-FLATS - HIGH END APARTMENTS € ERSTBEZUG
English version below

Bitte beachten Sie: Die dargestellten Fotos sind Beispielbilder und können von der tatsächlichen Wohnung abweichen.

? 17 Stockwerke gesamt, Terrassen im EG und 17. Stock
? 1-3 Zimmer Wohnungen
? 31 m2 € 92 m2
? EUR 670 € EUR 2.530
? Provisionsfrei

Modern. Smart. Exklusiv.
Die DC FLATS befinden sich in Bestlage des 22. Bezirks nahe der UNO-City, direkt an der Donauinsel gelegen und unweit zur Wiener Innenstadt in einem 17.-stöckigen neu errichteten Tower. Stephansdom in nur 10 min erreichbar.

Die Liste aller verfügbaren Wohnungen senden wir Ihnen gerne auf Wunsch.

Ob kompaktes City-Apartment, Business Wohnung oder Familienoase jede Einheit ist ein Unikat und steht für höchste Wohnqualität.

HIGHLIGHTS AUF EINEN BLICK
? Smarte Grundrisse
? Erstbezug
? Deckenkühlung
? Fußbodenheizung
? Hochwertige, moderne Ausstattung
? Bodentiefe öffenbare Fenster
? Edler Parkettboden
? Designerküche mit Markengeräten
? Tolle Infrastruktur
? Naherholungsgebiet €Donauinsel? direkt vor der Tür
? Geschäfte für den täglichen Bedarf fußläufig erreichbar (Bipa, Billa, Hofer, etc.)
? U1 vor der Türe

Garagenplätze in der hauseigenen Tiefgarage anmietbar
? PKW-Stellplatz € 150,00
? E-Stellplatz € 180,00
? Motorrad-Stellplatz € 75,00
(alle Preise brutto)
? Besuchergarage vorhanden

GRÄTZL & FREIZEIT
? UNO City € urbanes Wohnen mit internationalem Flair und idealer Anbindung
? Donauinsel direkt vor der Tür € die perfekte Lage für Sport, Strandbars, Restaurants und Freizeitangebote
? Innenstadt rasch erreichbar über die U1
? Donau Zentrum Westfield für Shopping, Gastronomie und Entertainment

SEHR GUTE ÖFFENTLICHE VERKEHRSANBINDUNG
? Autobus 20A
? U1 Kaisermühlen, Vienna International Center

VERTRAGSBEDINGUNGEN
? Befristung: 5 Jahre
? Kündigungsverzicht: 12 Monate
? Kündigungsfrist: 3 Monate
? benötigtes Mindestnettoeinkommen (Haushalt): 3-fache Bruttomiete

ERSTZAHLUNG
? Kaution: 3 Monatsmieten
? erste Monatsmiete

WEITERE MONATLICHE KOSTEN
? Strom wird nach Verbrauch direkt vom Energiedienstleister abgerechnet
? Akonto Heizung € 1,51/m² im Monat
? Akonto Kühlung € 0,17/m² im Monat

Gerne informieren wir Sie auf Anfrage ausführlicher und gehen dabei individuell auf Ihre Wünsche ein, um die Wohnung in den DC Flats zu finden, die perfekt zu Ihnen passt.

WIR SIND IHR MAKLER

Herr Robert Fried
Mobil: +43 664 88 296 010
robert.fried@hubner-immobilien.com

Frau Kerstin Fried
Mobil: +43 664 88 730 881
kerstin.fried@hubner-immobilien.com

?Wir weisen darauf hin, dass wir bei der Vermietung dieser Wohnung nicht als Doppelmakler tätig sind, sondern ausschließlich im Auftrag des Vermieters handeln. Aus diesem Grund bestätigen wir, dass unsere Tätigkeit für Sie provisionsfrei ist.?



English Version

DC-FLATS € HIGH-END APARTMENTS € FIRST RENTAL

Please note: The photos shown are examples and may differ from the actual apartment.

? 17 floors in total, terraces on the ground floor and 17th floor
? 1?3 room apartments
? 31 m² € 92 m²
? EUR 670 € EUR 2.530
? no commission

Modern. Smart. Exclusive.
DC FLATS are situated in a prime location in Vienna?s 22nd district, close to the UNO City, directly at the Donau Island and just a short distance from the city center, in a newly built 17-floor tower. St. Stephen?s Cathedral can be reached in just 10 minutes.

We will be happy to send you a full list of available apartments upon request.

Whether a compact city apartment, business flat or family retreat € each unit is unique and represents the highest residential quality.

HIGHLIGHTS AT A GLANCE
? Smart floor plans
? First rental
? Ceiling cooling
? Underfloor heating
? High-quality modern finishes
? Floor-to-ceiling operable windows
? Elegant parquet flooring
? Designer kitchen with branded appliances
? Excellent infrastructure
? Danube Island recreation area right on the doorstep
? Daily shopping needs within walking distance (e.g. Bipa, Billa, Hofer)
? U1 metro line directly close to the building

Parking spaces available for rent in-house underground garge:
? Car parking space € 150,00
? E-car parking space € 180,00
? Motorcycle parking space € 75,00
(all prices incl. VAT)
? Visitor parking available

NEIGHBORHOOD & LEISURE
? UNO City € urban living with international flair and perfect connectivity
? Donau Island directly at your doorstep € ideal for sports, beach bars, restaurants and leisure activities
? City center quickly accessible via the U1 metro line
? Westfield Donau Zentrum for shopping, dining and entertainment

EXCELLENT PUBLIC TRANSPORT CONNECTIONS
? Bus line 20A
? U1 Kaisermühlen, Vienna International Center (VIC)

CONTRACT TERMS
? Fixed-term contract: 5 years
? Waiver of termination by tenant: 12 months
? Notice period: 3 months
? Required minimum net household income: 3× gross monthly rent

UPFRONT PAYMENT
? Security deposit: 3 gross monthly rents
? First month?s rent

ADDITIONAL MONTHLY COSTS
? Electricity billed directly by the energy provider based on consumption
? Heating advance payment: € 1.51/m² per month
? Cooling advance payment: € 0.17/m² per month

We will be happy to provide you with further details upon request and assist you individually in finding the apartment at DC Flats that suits you perfectly.

YOUR REAL ESTATE AGENTS
Mr. Robert Fried
Mobile: +43 664 88 296 010
robert.fried@hubner-immobilien.com

Mrs. Kerstin Fried
Mobile: +43 664 88 730 881
kerstin.fried@hubner-immobilien.com

?We would like to point out that we are not acting as a dual agent in the letting of this apartment, but exclusively on behalf of the landlord. Therefore, we confirm that our services are commission-free for you.?Angaben gemäß gesetzlichem Erfordernis:
Miete €1818,48 zzgl 10% USt.Betriebskosten €272,43 zzgl 10% USt.Umsatzsteuer €209,09------------------------------------------------------------------Gesamtbetrag €2300------------------------------------------------------------------Heizwärmebedarf:19.12 kWh/(m²a)Klasse Heizwärmebedarf:AFaktor Gesamtenergieeffizienz:0.83Klasse Faktor Gesamtenergieeffizienz:AKlimaanlage: JA
Barrierefrei: JA


Alle Details anzeigen

KONTAKT






 

Lasse dich kostenlos vom Anbieter dieser Immobilie zurückrufen.







 


 
Hubner Immobilien GmbH
Robert Fried
Telefonnummer anzeigen Telefon Allgemein: +4366488296010
 
Bitte dem Makler die FindMyHome.at - ID bekanntgeben: 5539606

Bewertungen dieses Anbieters
Qualitätsmakler
Qualitätsmakler:
2014, 2015, 2016, 2018, 2019, 2020, 2021 , 2025,
Netiquette
Freundlichkeit
84 %

BEWERTUNGEN DIESES ANBIETERS

 
Qualit�tsmakler
Qualitätsmakler
2014, 2015, 2016, 2018, 2019, 2020, 2021 2025
Weiterempfehlung
WIRD GERNE

Freundlichkeit
BESONDERS
FREUNDLICH
Netiquette
FINDMYHOME
NETIQUETTE
Auch du kannst bewerten! 7 Tage nach deiner Anfrage erhältst du dafür von uns ein Bewertungsmail.
Alle Infos zu unseren Auszeichnungen und dem FINDMYHOME.AT Qualitätsprogramm findest du hier: Übersicht anzeigen


Du willst wissen, wie viel dein Umzug kosten wird?

Mach gleich den kostenlosen Preisvergleich und schau, welche seriösen Anbieter in deiner Region günstig deinen Umzug organisieren


ZUM UMZUGS-VERGLEICH
-->

MYHOME BLOG
SuchAgentin auf FindMyHome.at
Unterschiedlichen Rechtsthemen, köstliche Rezepte, neueste Design-Highlights, sowie aktuelle Technik-Tools für Ihr Eigenheim.


FINDMYHOME.AT SUCHAGENTIN
SuchAgentin auf FindMyHome.at
Hallo, soll ich dir ähnliche Immobilien kostenfrei per E-Mail schicken?


ÄHNLICHE IMMOBILIEN
Aehnliche Immobilie - Vorschaubild 1

Ihr neues High-End-Zuhause in den DC-FLATS bei der UNO-City!... - Objektnr. 5539604

92,00 m² - 3.0 Zimmer
2269.99 €
PLZ: 1220

Mehr anzeigen

Aehnliche Immobilie - Vorschaubild 2

DC-FLATS: Stilvolles 3-Zimmer-Neubauapartment nahe UNO-City ... - Objektnr. 5539603

92,00 m² - 3.0 Zimmer
2270 €
PLZ: 1220

Mehr anzeigen

Aehnliche Immobilie - Vorschaubild 3

3 ZIMMER! ? DC-FLATS ? Stilvolles Wohnen über den Dächern ? ... - Objektnr. 5543277

92,00 m² - 3.0 Zimmer
2290 €
PLZ: 1220

Mehr anzeigen

Durch die Nutzung unserer Seite erklären Sie sich mit der Verwendung von Cookies zur Verbesserung Ihres Online-Erlebnisses einverstanden. Detaillierte Informationen zu diesem und weiteren Themen erhalten Sie in unserer Datenschutzerklärung.