MEIN ERGEBNIS ANPASSEN

U4 PILGRAMGASSE: stilvoll sanierte Garconniere im schön sanierten Altbau mit separater Küche Nähe Naschmarkt - Objektnr. 5536976

1050
Ort
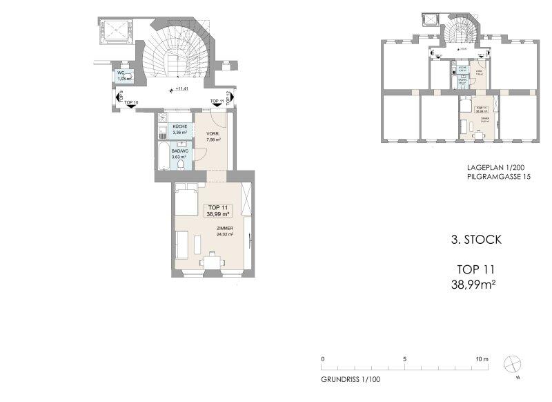
38,99 m²
Fläche
1.0
Zimmer
WEITERE MEDIEN

ECKDATEN
FindMyHome.at // Externe Immobilien-ID5536976 // 15893
ImmobilienartWohnung - Eigentum
Anschrift1050 Wien
Befeuerung
Stock3
Fläche38,99 m²
Zimmer1.0
Bad1
WC1
Kaufpreis:€ 299.000,00
Ratenzahlung:Finanzierungsmöglichkeiten für diese Immobilie anzeigen
Provision: 3% des Kaufpreises zzgl. 20% USt.







BESCHREIBUNG

U4 PILGRAMGASSE: stilvoll sanierte Garconniere im schön sanierten Altbau mit separater Küche Nähe Naschmarkt

U4 PILGRAMGASSE: stilvoll sanierte Garconniere im schön sanierten Altbau mit separater Küche Nähe Naschmarkt

Diese charmante 1-Zimmerwohnung mit ca. 39m² befindet sich im 3. Liftstock eines wunderschön saniertem Gründerzeithauses in der Pilgramgasse, mitten im 5. Wiener Gemeindebezirk. Die Wohnung wurde hochwertig generalsaniert und überzeugt durch ein offenes Raumgefühl sowie eine durchdachte Raumaufteilung.

Raumaufteilung & Ausstattung:

  • Großzügiger Vorraum mit Platz für Stauraum

  • Separate, neue und vollausgestattete Küche

  • Großes Wohn-/Schlafzimmer mit ca. 24m²

  • Neues Badezimmer mit geräumiger Dusche und WC

  • Moderner, hinterleuchteter Statement-Spiegel im Bad sowie stilvollen Waschtischunterverbau

  • Neuer Fischgrätparkettboden

  • Helle Räume und beeindruckende Raumhöhe durch klassische Altbaudecken

 

Ein Kellerabteil sorgt für zusätzlichen Stauraum, außerdem steht ein geräumiger Fahrradabstellraum im Keller zur Verfügung.

Lage:

Die Wohnung liegt in der Pilgramgasse im 5. Wiener Gemeindebezirk nahe dem Naschmarkt. Die Liegenschaft verfügt über eine ausgezeichnete Infrastruktur durch Busse und die nahe gelegene U-Bahn Station U4. Geschäfte des täglichen Bedarfs befinden sich in fußläufiger Umgebung. Auch der beliebte Naschmarkt mit seinen vielen Lokalen und Restaurants ist in ca. 9 Gehminuten erreichbar.

 

Öffentliche Verkehrsanbindung:

  • U-Bahn: U4 "Pilgramgasse"
  • Buslinie: 12A, 13A, 59A

 

Nebenkosten: 

Grundbucheintragung: 1,1% des Kaufpreises

Grunderwerbssteuer: 3,5% des Kaufpreises

Maklerprovision: 3% des Kaufpreises + 20% USt. 

Kaufvertragshonorar: 1,2% des Kaufpreises zzgl. USt und Barauslagen I Kaufvertragserstellung erfolgt durch die Kanzlei Tiefenthaler & Gnesda Rechtsanwälte

 

Maklervereinbarung: Wir ersuchen um Verständnis, dass wir bei Anfragen zur Objektadresse, bzw. Besichtigungstermin  aufgrund neuer gesetzlicher Bestimmungen Unterlagen erst dann zusenden können, wenn Sie vorab bestätigen, dass Sie unser sofortiges Tätigwerden wünschen und über Ihre Rücktrittsrechte aufgeklärt wurden. Sie bekommen nach Ihrer schriftlichen Anfrage mit vollständiger Angabe des Namens, Anschrift und Telefonnummer ein Email, in dem Sie diese Punkte bestätigen müssen.

 

Haftungsausschluss:  Wir weisen darauf hin, dass sämtliche Daten im vorliegenden Angebot sowie die von unserem Büro an Sie weitergegebenen Auskünfte, vom Eigentümer der Immobilie zur Verfügung gestellt wurden. Ebenso sind Informationen von Dritten (z.B. behördliche Informationen) eingeholt worden, auch für diese können wir unsererseits keinerlei Haftung für deren uneingeschränkte Richtigkeit übernehmen.

Wir weisen darauf hin, dass zwischen dem Vermittler und dem zu vermittelnden Dritten ein familiäres oder wirtschaftliches Naheverhältnis besteht.

Der Vermittler ist als Doppelmakler tätig.


Infrastruktur / Entfernungen

Gesundheit
Arzt <500m
Apotheke <500m
Klinik <500m
Krankenhaus <1.000m

Kinder & Schulen
Schule <500m
Kindergarten <500m
Universität <1.000m
Höhere Schule <500m

Nahversorgung
Supermarkt <500m
Bäckerei <500m
Einkaufszentrum <1.000m

Sonstige
Geldautomat <500m
Bank <500m
Post <500m
Polizei <500m

Verkehr
Bus <500m
U-Bahn <500m
Straßenbahn <1.000m
Bahnhof <500m
Autobahnanschluss <4.000m

Angaben Entfernung Luftlinie / Quelle: OpenStreetMap

Provision: 3% des Kaufpreises zzgl. 20% USt.


Alle Details anzeigen

KONTAKT






 

Lasse dich kostenlos vom Anbieter dieser Immobilie zurückrufen.







 


 
Moritz Immobilien
Anita Ochsenhofer
Telefonnummer anzeigen Telefon Allgemein: +4319971693
Handy Bearbeiter: +436607413324
 
Bitte dem Makler die FindMyHome.at - ID bekanntgeben: 5536976

Bewertungen dieses Anbieters
Netiquette

BEWERTUNGEN DIESES ANBIETERS

 
Netiquette
FINDMYHOME.AT
NETIQUETTE
Auch du kannst bewerten! 7 Tage nach deiner Anfrage erhältst du dafür von uns ein Bewertungsmail.
Alle Infos zu unseren Auszeichnungen und dem FINDMYHOME.AT Qualitätsprogramm findest du hier: Übersicht anzeigen

FINANZIERUNG
?>

Du willst wissen, wie viel dein Umzug kosten wird?

Mach gleich den kostenlosen Preisvergleich und schau, welche seriösen Anbieter in deiner Region günstig deinen Umzug organisieren


ZUM UMZUGS-VERGLEICH
-->

MYHOME BLOG
SuchAgentin auf FindMyHome.at
Unterschiedlichen Rechtsthemen, köstliche Rezepte, neueste Design-Highlights, sowie aktuelle Technik-Tools für Ihr Eigenheim.


FINDMYHOME.AT SUCHAGENTIN
SuchAgentin auf FindMyHome.at
Hallo, soll ich dir ähnliche Immobilien kostenfrei per E-Mail schicken?


ÄHNLICHE IMMOBILIEN
Aehnliche Immobilie - Vorschaubild 1

ESSENZ NO. 1 - Die neue Avantgarde des Wohnens - Apartment f... - Objektnr. 5578310

37,75 m² - 2.0 Zimmer
320000 €
PLZ: 1050

Mehr anzeigen

Aehnliche Immobilie - Vorschaubild 2

Siebenbrunnengasse 44 - Exklusives Wohngefühl im Herzen von ... - Objektnr. 5492630

42,89 m² - 2.0 Zimmer
352600 €
PLZ: 1050

Mehr anzeigen

Aehnliche Immobilie - Vorschaubild 3

Siebenbrunnengasse 44 - Exklusives Wohngefühl im Herzen von ... - Objektnr. 5492645

43,63 m² - 2.0 Zimmer
357200 €
PLZ: 1050

Mehr anzeigen

Durch die Nutzung unserer Seite erklären Sie sich mit der Verwendung von Cookies zur Verbesserung Ihres Online-Erlebnisses einverstanden. Detaillierte Informationen zu diesem und weiteren Themen erhalten Sie in unserer Datenschutzerklärung.