MEIN ERGEBNIS ANPASSEN

"DONAU PERLE" EINZIGARTIGE 2 ZIMMER MIT LOGGIA, TERRASSE UND GARTEN! HERRLICHER BLICK IN DEN PARK! - Objektnr. 5536238


ökologisch beheizt
1210
Ort
56,44 m²
Fläche
2.0
Zimmer

ECKDATEN
FindMyHome.at // Externe Immobilien-ID5536238 // 6078
ImmobilienartEigentum
Anschrift1210 Wien
Befeuerung
Erdwärme
Geschosse7
Fläche56,44 m²
Terrassen1 (16,00 m²)
Zimmer2.0
Bad1
WC1
 Abstellraum
Kaufpreis:€ 369.000,00
Ratenzahlung:Finanzierungsmöglichkeiten für diese Immobilie anzeigen
Provision: 3% des Kaufpreises zzgl. 20% USt.







BESCHREIBUNG

"DONAU PERLE" EINZIGARTIGE 2 ZIMMER MIT LOGGIA, TERRASSE UND GARTEN! HERRLICHER BLICK IN DEN PARK!

"DONAU PERLE" - IHR WOHNTRAUM MIT MEHRWERT

Willkommen in Floridsdorf hier entsteht ein Zuhause, das weit mehr ist als nur vier Wände. Ein Ort zum Wohlfühlen, Durchatmen und Ankommen. Dieses Neubauprojekt vereint modernen urbanen Lifestyle mit der Ruhe und Schönheit der Natur eine außergewöhnliche Kombination, die Wohnqualität auf höchstem Niveau garantiert.

Ob beim Einkaufsbummel am traditionsreichen Floridsdorfer Markt oder im Einkaufszentrum SCN, bei erholsamen Stunden an der Alten oder Neuen Donau, sportlichen Aktivitäten am Golfplatz, auf den Padelplätzen oder im Schwimmbad, oder bei einem Glas Wein in den idyllischen Kellergassen von Stammersdorf all dies befindet sich in unmittelbarer Nähe. Eine hervorragende Infrastruktur, die exzellente Verkehrsanbindung inner- und außerhalb Wiens sowie die naturnahe Umgebung machen diesen Standort besonders attraktiv.

Die 34 Eigentumswohnungen sind individuell durchdacht und bieten Freiflächen wie Gärten, Loggien, Balkone oder Terrassen. Mit Größen zwischen 42 und 105 m² (2 bis 4 Zimmer) verbinden sie zeitgemäßen Wohnkomfort mit höchsten Ansprüchen.

 

BESONDERHEITEN, DIE BEGEISTERN

Nachhaltig leben:

  • Energieeffiziente Heizung und Warmwasseraufbereitung über Sole-Wasser-Wärmepumpen aus Erdwärme
  • Photovoltaikanlage, die einen erheblichen Teil des allgemeinen Stromverbrauchs abdeckt
  • Vollwärmeschutz und innovative Technik, wie Betonkernaktivierung 

Komfort genießen:

  • Geräuschlose Deckenkühlung und Vorbereitung für zusätzliche Klimatisierung in den Dachgeschoßen
  • Große, bodentiefe Fensterfronten und lichtdurchflutete Räume
  • Hochwertige Materialien, präzise Verarbeitung, zeitloses Design

Sicherheit & Individualität:

  • Planen und bauen alles aus einer Hand. Und das auf höchstem Niveau 
  • Sie profitieren von maximaler Transparenz, Sicherheit und Qualität 
  • Sonderwünsche bei Ausstattung und Grundriss können, soweit technisch möglich, berücksichtigt werden - ein weiterer Vorteil für Schnellentschlossene!

 

TIEFGARAGE MIT 14 STELLPLÄTZEN SAMT E-LADESTATIONEN

Ein Stellplatz kann bei Bedarf zusätzlich erworben werden.

 

EINZIGARTIGE 2 ZIMMER MIT LOGGIA, TERRASSE UND GARTEN! HERRLICHER BLICK IN DEN PARK!

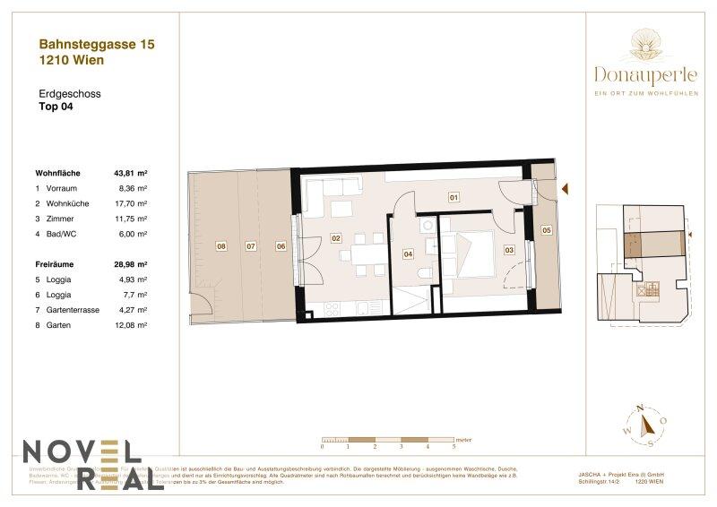
Diese außergewöhnliche 2-Zimmer-Wohnung im Erdgeschoss überzeugt durch ihren großzügigen Grundriss und vielfältige Außenbereiche wie Loggia, Garten und Terrasse. Die beiden lichtdurchfluteten Räume mit bodentiefen, hellen Fensterfronten schaffen ein Ambiente voller Komfort und bieten ein bemerkenswertes Maß an Lebensqualität.

  • geräumige Wohn-Küche mit Fenster und direktem Ausgang zu den herrlichen Außenflächen - Loggia, Terrasse und den Garten.
  • elegantes Badezimmer mit Walk-in-Dusche, Toilette und Fenster
  • zentraler Vorraum mit Abstellraum
  • Masterbedroom mit Loggia

AUSSTATTUNG FÜR HÖCHSTE ANSPRÜCHE

  • Fußbodenheizung und Deckenkühlung für ein perfektes Raumklima
  • außenliegenden, elektrischen Raffstores zur Beschattung & Verdunkelung
  • 3-fach verglaste Wärmeschutzfenster mit Aludeckschale
  • Loggia mit Glasgeländer und Edelstahlprofilen
  • exklusive Innentüren (flächenbündig mit Holzzarge)
  • Mehrschicht-Parkettböden - Eichen Landhausdielen
  • hochwertige Sanitärausstattung (u.a. Laufen Kartell, Laufen Lua) 
  • Regendusche
  • exklusiver Handtuchheizkörper
  • bodenebene Walk-in-Dusche mit Echtglas-Trennwand
  • hochqualitative, italienische, großflächige Fliesen (60x60 cm) aus Feinsteinzeug
  • einbruchshemmende Sicherheitstüre (WK III)
  • Video-Gegensprechanlage

 

URBANE WOHNOASE AM PARK - IN DONAUNÄHE -  MIT PERFEKTER VERKEHRSANBINDUNG UND INFRASTUKTUR

Das Wohnprojekt befindet sich in einer Toplage im zentralen Herzen von Floridsdorf. Dieser Bezirk ist bekannt für seine angenehme Mischung aus urbanem Flair und grünen Rückzugsorten, was ihn zu einer der begehrtesten Wohngegenden in Wien macht.

Hier wohnen Sie zentral und dennoch dem Grünen so nah. Alles, was Sie brauchen, liegt in fußläufiger Entfernung: öffentliche Verkehrsmittel, Markt, Einkaufszentrum, Möbelhäuser, Baumarkt, Restaurants, Schulen, Ärzte und Parks.

Die Straßenbahnen 25, 26, 30, 31, 33 und der Bus 36a befinden sich fast vor der Haustüre. So erreichen Sie in wenigen Minuten den Bahnhof Floridsdorf (U-Bahnlinie U6, div. S-Bahn, Regionalzüge) sowie die Alte und Neue Donau und gelangen mit der Straßenbahn 31 rasch und ohne Umsteigen direkt in die Wiener Innenstadt oder ins Weinbaugebiet Stammersdorf. Die Straßenbahnlinie 26 ist die perfekte Verbindung zwischen dem 21. und 22. Bezirk und bietet somit eine direkte Anbindung an die Vienna International School, die Japanische Internationale Schule, die veterinärmedizinische Universität und den Campus Donaufeld. Mit der Schnellbahn vom Bahnhof Floridsdorf erreichen sie auch ohne Umsteigen den Flughafen Wien. Es gibt wahrscheinlich keinen Standort der eine bessere öffentliche Verkehrsanbindung in und rund um Wien anbietet.

Die Nähe zu A22, B3 und B7 sorgt für optimale Anbindung in alle Richtungen.

Zahlreiche Kindergärten, Schulen und Spielplätze bieten Familien hervorragende Bildungs- und Freizeitmöglichkeiten. 

Die Umgebung bietet ideale Voraussetzungen für Erholungssuchende, Familien, Hundebesitzer und sportlich Aktive. Neben zahlreichen Parks, Sportvereinen und Fitnessstudios überzeugt insbesondere die Nähe zur Alten und Neuen Donau: Hier erwarten Sie der Floridsdorfer Wasserpark, das Angelibad sowie die weitläufige Erholungslandschaft der Donauinsel. Auch der Marco Polo Golfplatz und moderne Padelplätze sind mit dem Bus in rund 20 Minuten bequem erreichbar. Darüber hinaus befindet sich das Floridsdorfer Hallenbad mit angeschlossener Sauna in fußläufiger Entfernung.

 

FINANZIERUNGSSERVICE - IHRE WUNSCHIMMOBILIE OPTIMAL FINANZIERT

Unsere Finanzierungsexperten vergleichen unabhängig & unverbindlich die besten Kreditangebote für Sie und helfen Ihnen, Zeit und Geld zu sparen.

Als Ihr Partner für Immobilien, bieten wir Ihnen ein einzigartiges Gesamtpaket, das den komplexen Kaufprozess für Sie vereinfacht und optimiert.  

Profitieren Sie von unserer optimal abgestimmten Zusammenarbeit mit unseren Finanzierungspartnern Hruza & Partner GmbH - INFINA und sichern Sie sich damit Best-Konditionen bei den Banken. 

Von der ersten Besichtigung über die individuelle Finanzierungsplanung bis hin zum Kauf  wir stimmen alles für Sie ab. Gemeinsam bieten wir unseren Kunden ein Premium Service, welches auch außerhalb der normalen Öffnungszeiten für Sie zur Verfügung steht. 

 

Die Aufstellung der verfügbaren Wohneinheiten samt Kaufpreisen finden Sie auch in entsprechenden pdf-Datei.

Senden Sie uns Ihre Anfrage per Mail und Sie erhalten umgehend alle detaillierten Informationen samt Plänen zu diesem Projekt.

Für etwaige Rückfragen stehen wir Ihnen selbstverständlich jederzeit auch gerne telefonisch zur Verfügung.

 

ON REQUEST YOU WILL GET ANY INFORMATION IN ENGLISH!

!

 

Alle Angaben basieren alleinig auf Informationen, die uns von unserem Auftraggeber übermittelt wurden. Trotz aller Sorgfalt können wir für die Richtigkeit, Vollständigkeit und Aktualität dieser Angaben keine Gewähr übernehmen. Jegliche Weitergabe der übermittelten Daten an Dritte ist nicht gestattet. Der Maklervertrag kommt durch schriftliche Vereinbarung oder Inanspruchnahme unserer Maklertätigkeit zustande. Der Makler kann als Doppelmakler tätig werden. Sollte das von uns nachgewiesene Objekt bereits bekannt sein, teilen sie uns dies bitte unverzüglich mit.

Das Vermittlungshonorar ist ausschließlich bei Zustandekommen eines gültigen Rechtsgeschäfts fällig und vom Käufer an Novel Real Immobilien GmbH zu zahlen. Es wird ausdrücklich auf die Nebenkostenübersicht hingewiesen. Bei den Visualisierungen und Abbildungen der Immobilie (insbesondere von Inneneinrichtungen) kann es sich um Symbolfotos bzw. fototechnisch optimierte Fotos handeln.

Hiermit weisen wir auf das Bestehen eines familiären und/oder wirtschaftlichen Naheverhältnisses zum Verkäufer hin.

 

 

 

 

 

 

 

 

 

 

 

 

 

 

 

 

 

 

 

 

 

 


Infrastruktur / Entfernungen

Gesundheit
Arzt <500m
Apotheke <500m
Klinik <1.000m
Krankenhaus <1.000m

Kinder & Schulen
Schule <500m
Kindergarten <500m
Universität <1.500m
Höhere Schule <1.000m

Nahversorgung
Supermarkt <500m
Bäckerei <500m
Einkaufszentrum <500m

Sonstige
Geldautomat <500m
Bank <500m
Post <500m
Polizei <1.000m

Verkehr
Bus <500m
U-Bahn <1.000m
Straßenbahn <500m
Bahnhof <500m
Autobahnanschluss <500m

Angaben Entfernung Luftlinie / Quelle: OpenStreetMap

Klimaanlage: JA
Gartennutzung: JA
Kabel/SAT/TV: JA
Provision: 3% des Kaufpreises zzgl. 20% USt.


Alle Details anzeigen

KONTAKT






 

Lasse dich kostenlos vom Anbieter dieser Immobilie zurückrufen.







 


 
Novel Real Immobilien GmbH
Tatiana Hanzl
Telefonnummer anzeigen Telefon Allgemein: +431361401466
Handy Bearbeiter: +4367761959633
 
Bitte dem Makler die FindMyHome.at - ID bekanntgeben: 5536238

Bewertungen dieses Anbieters
Qualitätsmakler
Qualitätsmakler:
2019,
Netiquette
Freundlichkeit
81 %

BEWERTUNGEN DIESES ANBIETERS

 
Qualit�tsmakler
Qualitätsmakler
2019
Antwortzeit
ø 48h ANTWORT
Weiterempfehlung
WIRD GERNE

Freundlichkeit
BESONDERS
FREUNDLICH
Netiquette
FINDMYHOME
NETIQUETTE
Auch du kannst bewerten! 7 Tage nach deiner Anfrage erhältst du dafür von uns ein Bewertungsmail.
Alle Infos zu unseren Auszeichnungen und dem FINDMYHOME.AT Qualitätsprogramm findest du hier: Übersicht anzeigen

FINANZIERUNG
?>

Du willst wissen, wie viel dein Umzug kosten wird?

Mach gleich den kostenlosen Preisvergleich und schau, welche seriösen Anbieter in deiner Region günstig deinen Umzug organisieren


ZUM UMZUGS-VERGLEICH
-->

MYHOME BLOG
SuchAgentin auf FindMyHome.at
Unterschiedlichen Rechtsthemen, köstliche Rezepte, neueste Design-Highlights, sowie aktuelle Technik-Tools für Ihr Eigenheim.


FINDMYHOME.AT SUCHAGENTIN
SuchAgentin auf FindMyHome.at
Hallo, soll ich dir ähnliche Immobilien kostenfrei per E-Mail schicken?


ÄHNLICHE IMMOBILIEN
Aehnliche Immobilie - Vorschaubild 1

Viel draußen, smart drinnen - Gartenwohnung für modernes Woh... - Objektnr. 5636933

66,89 m² - 3.0 Zimmer
399000 €
PLZ: 1210

Mehr anzeigen

Aehnliche Immobilie - Vorschaubild 2

NEUES WOHNGLÜCK in Floridsdorf + TOP 1/2+ moderne Erstbezugs... - Objektnr. 5635933

67,43 m² - 3.0 Zimmer
409000 €
PLZ: 1210

Mehr anzeigen

Aehnliche Immobilie - Vorschaubild 3

NEUES WOHNGLÜCK in Floridsdorf + TOP 1/5 + moderne Erstbezug... - Objektnr. 5635929

56,28 m² - 2.0 Zimmer
297500 €
PLZ: 1210

Mehr anzeigen

Durch die Nutzung unserer Seite erklären Sie sich mit der Verwendung von Cookies zur Verbesserung Ihres Online-Erlebnisses einverstanden. Detaillierte Informationen zu diesem und weiteren Themen erhalten Sie in unserer Datenschutzerklärung.