MEIN ERGEBNIS ANPASSEN

Modernes Wohnen - Objektnr. 5529506


ökologisch beheizt
  • Top 4 EG
  • Top 4 OG
2751
Ort
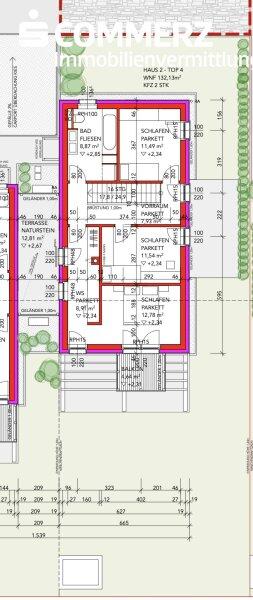
132,13 m²
Fläche
4.0
Zimmer

ECKDATEN
FindMyHome.at // Externe Immobilien-ID5529506 // 3565
ImmobilienartHaus - Eigentum
Anschrift2751 Steinabrückl
Baujahr2022
Befeuerung
Luftwärmepumpe
Fläche132,13 m²
Terrassen3 (5,00 m²)
Zimmer4.0
Bad1
WC2
 Abstellraum
Kaufpreis:€ 590.000,00
Ratenzahlung:Finanzierungsmöglichkeiten für diese Immobilie anzeigen
Provision: 21.240,00 ? inkl. 20% USt.







BESCHREIBUNG

Modernes Wohnen

Willkommen in Ihrem neuen Zuhause! Es erwartet Sie hier eine neuwertige Immobilie, die keine Wünsche offenlässt.

Betreten Sie Ihren zukünftigen Rückzugsort und lassen Sie sich von der durchdachten Raumaufteilung und der hochwertigen Ausstattung begeistern. Der lichtdurchflutete Wohnbereich mit schönen Fliesen, Parkettboden und Fußbodenheizung sorgt für eine behagliche Atmosphäre, in der Sie entspannen und den Alltag hinter sich lassen können. Große Fensterfronten ermöglichen einen herrlichen Ausblick auf die umliegende Grünlandschaft und schaffen eine Verbindung zur Natur, die Sie täglich genießen können.

Zusätzlich finden Sie hier ein Carport, welches Platz für zwei PKW´s bietet und Ihnen das mühelose Ein- und Ausparken ermöglichen. Die Luftwärmepumpe garantiert Ihnen eine umweltfreundliche und kosteneffiziente Heizlösung, die auch im Sommer für angenehme Temperaturen sorgt.

Die einfach bessere Raumaufteilung:

Erdgeschoss

  • Großzügiger Wohn-/Essbereich und Küche mit Ausgängen in den Garten und auf die Terrassen
  • Vorraum
  • Toilette mit Handwaschbecken
  • Technikraum mit Waschmaschinenanschluss
  • Abstellraum

Obergeschoss

  • Vorraum
  • Zimmer 1
  • Zimmer 2 mit Garderobe
  • Zimmer mit Ausgang auf den Balkon
  • Terrasse
  • Badezimmer mit  Dusche, Toilette und Badewanne

Wichtige Eckdaten

  • Hochwertige Doppelhaushälfte
  • 3 Terrassen
  • Moderne Raumaufteilung
  • Gerätehaus 
  • Zwei PKW-Stellplätze (unter Carport) direkt vor der Haustür

Vereinbaren Sie noch heute einen Besichtigungstermin!

Für weitere Auskünfte steht Ihnen Frau LANG Nina unter 050100-72789

oder gerne zur Verfügung.

Bitte beachten Sie, dass wir aufgrund gesetzlicher Vorgaben nur Anfragen mit vollständigen Daten (Name, Wohnanschrift, Telefonnummer) bearbeiten können und auch nur in diesem Fall Auskünfte, Objektunterlagen und die genaue Liegenschaftsadresse weitergeben dürfen. Vielen Dank für Ihr Verständnis!

Grundbuchseintragung: Bei einem Kaufpreis unter 500.000 € entfällt derzeit die Grundbuchseintragungsgebühr. Bei einem höheren Kaufpreis von bis zu 2.000.000 € fällt nur für die Differenz über 500.000 € eine Eintragungsgebühr von 1,1 % an. Gerne informieren wir Sie über die weiteren Voraussetzungen, wie Sie von dieser vorübergehenden Gebührenbefreiung profitieren können.

Noch nichts gefunden Wir informieren Sie über geeignete Immobilienangebote noch vor allen anderen.
Legen Sie jetzt Ihren individuellen Suchagenten unter folgendem Link an. Wir schicken Ihnen passende Immobilien exklusiv vorab zu.
Suchagent anlegen - https://s-commerz-immobilienvermittlung.service.immo/registrieren/de


Infrastruktur / Entfernungen

Gesundheit
Arzt <2.500m
Apotheke <2.500m
Klinik <8.000m
Krankenhaus <7.000m

Kinder & Schulen
Schule <2.000m
Kindergarten <1.500m
Höhere Schule <7.500m
Universität <4.500m

Nahversorgung
Supermarkt <1.500m
Bäckerei <2.500m
Einkaufszentrum <6.000m

Sonstige
Bank <2.000m
Geldautomat <2.000m
Post <3.000m
Polizei <3.500m

Verkehr
Bus <500m
Bahnhof <2.500m
Autobahnanschluss <3.000m
Flughafen <4.000m

Angaben Entfernung Luftlinie / Quelle: OpenStreetMap

Kabel/SAT/TV: JA
Provision: 21.240,00 ? inkl. 20% USt.


Alle Details anzeigen

KONTAKT






 

Lasse dich kostenlos vom Anbieter dieser Immobilie zurückrufen.







 


 
S-COMMERZ Immobilienvermittlung GmbH
Nina LANG
Telefonnummer anzeigen Telefon Allgemein: +4350100672789
Handy Bearbeiter: +4350100672789
 
Bitte dem Makler die FindMyHome.at - ID bekanntgeben: 5529506

Bewertungen dieses Anbieters
Qualitätsmakler
Qualitätsmakler:
2018, 2019, 2020,
Netiquette
Freundlichkeit

BEWERTUNGEN DIESES ANBIETERS

 
Qualit�tsmakler
Qualitätsmakler
2018, 2019, 2020
Freundlichkeit
BESONDERS
FREUNDLICH
Netiquette
FINDMYHOME
NETIQUETTE
Auch du kannst bewerten! 7 Tage nach deiner Anfrage erhältst du dafür von uns ein Bewertungsmail.
Alle Infos zu unseren Auszeichnungen und dem FINDMYHOME.AT Qualitätsprogramm findest du hier: Übersicht anzeigen

FINANZIERUNG
?>

Du willst wissen, wie viel dein Umzug kosten wird?

Mach gleich den kostenlosen Preisvergleich und schau, welche seriösen Anbieter in deiner Region günstig deinen Umzug organisieren


ZUM UMZUGS-VERGLEICH
-->

MYHOME BLOG
SuchAgentin auf FindMyHome.at
Unterschiedlichen Rechtsthemen, köstliche Rezepte, neueste Design-Highlights, sowie aktuelle Technik-Tools für Ihr Eigenheim.


FINDMYHOME.AT SUCHAGENTIN
SuchAgentin auf FindMyHome.at
Hallo, soll ich dir ähnliche Immobilien kostenfrei per E-Mail schicken?


ÄHNLICHE IMMOBILIEN
Aehnliche Immobilie - Vorschaubild 1

Wohnerlebnis der Extraklasse - mit Photovoltaikanlage... - Objektnr. 5545449

109,00 m² - 4.0 Zimmer
479000 €
PLZ: 2752

Mehr anzeigen

Aehnliche Immobilie - Vorschaubild 2

"Solides, Charmantes Haus mit Garten und Pool"... - Objektnr. 5547509

145,00 m² - 5.0 Zimmer
475000 €
PLZ: 2751

Mehr anzeigen

Aehnliche Immobilie - Vorschaubild 3

Charmante Doppelhaushälfte - Objektnr. 5523010


112,40 m² - 4.0 Zimmer
499000 €
PLZ: 2751

Mehr anzeigen

Durch die Nutzung unserer Seite erklären Sie sich mit der Verwendung von Cookies zur Verbesserung Ihres Online-Erlebnisses einverstanden. Detaillierte Informationen zu diesem und weiteren Themen erhalten Sie in unserer Datenschutzerklärung.