MEIN ERGEBNIS ANPASSEN

NEU! ++ NEUER KAUFPREIS! ++ 6 EXKLUSIVE DG-WOHNUNGEN MIT WIENBLICK ++ SOFORT BEZIEHBAR ++ EIGENTUM AM SIEBENBRUNNENPLATZ, 1050 WIEN ++ - Objektnr. 5523250


ökologisch beheizt
1050
Ort
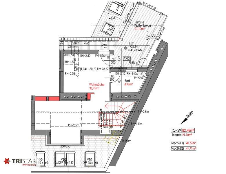
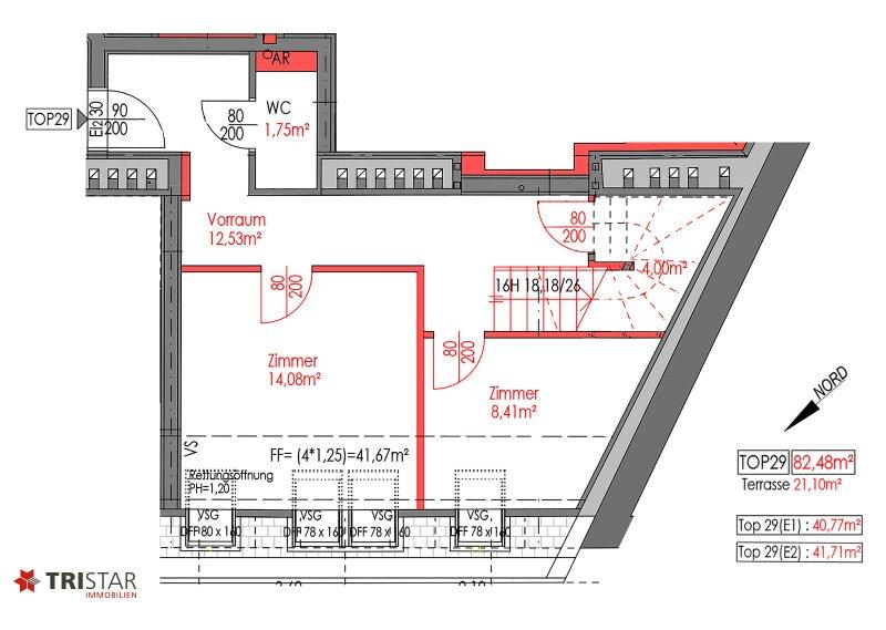
82,48 m²
Fläche
3.0
Zimmer

ECKDATEN
FindMyHome.at // Externe Immobilien-ID5523250 // 27454
ImmobilienartEigentum
Anschrift/29W
1050 Wien
Baujahr2024
Befeuerung
Luftwärmepumpe
Stock6
Geschosse7
Fläche82,48 m²
Terrassen1 (21,00 m²)
Zimmer3.0
Bad1
WC2
Kaufpreis:€ 669.000,00
Ratenzahlung:Finanzierungsmöglichkeiten für diese Immobilie anzeigen
Provision: 3% des Kaufpreises zzgl. 20% USt.







BESCHREIBUNG

NEU! ++ NEUER KAUFPREIS! ++ 6 EXKLUSIVE DG-WOHNUNGEN MIT WIENBLICK ++ SOFORT BEZIEHBAR ++ EIGENTUM AM SIEBENBRUNNENPLATZ, 1050 WIEN ++

6 EXKLUSIVE DACHGESCHOSSWOHNUNGEN MIT WIENBLICK:

  • In einem hochwertig revitalisierten Wiener Gründerzeithaus nahe dem Siebenbrunnenplatz gelangen sechs neu ausgebaute Dachgeschosswohnungen zum Verkauf, die soeben fertiggestellt wurden und ab sofort bezugsfertig sind.
  • Die Lage überzeugt durch eine ideale Kombination aus urbanem Flair, hervorragender Nahversorgung, zahlreichen Grünflächen sowie charmanten Lokalen ergänzt durch eine ausgezeichnete öffentliche Anbindung.
  • Die Wohnungen bieten großzügige Terrassen, lichtdurchflutete Räume und einen fantastischen Ausblick über Wien.

----------------------------------------------------

DACHGESCHOSSWOHNUNGEN IM ÜBERBLICK

  • Top 28: Wohnfläche ca. 77m² + Terrasse ca. 9m²  EUR 599.000
  • Top 29: Wohnfläche ca. 87,50m² + Terrasse ca. 21,10m²  EUR 669.000
  •  
  • Top 30: VERKAUFT!
  •  
  • Top 31: Wohnfläche ca. 115,21m² + Terrasse ca. 3,52m² + Loggia ca. 5,97m²  EUR 879.000
  •  
  • Top 32: Wohnfläche ca. 123,19m² + Loggia/Terrasse ca. 5,50m²  EUR 969.000
  • Top 33: Wohnfläche ca. 75,58m² + Terrasse ca. 8,50m²  EUR 599.000

----------------------------------------------------

AUSSTATTUNG

  • Dieses moderne Dachgeschoss in saniertem Altbau bietet hochwertige Ausstattung mit Fokus auf Qualität, Design und Funktionalität. Fassade, Treppenhäuser, Hofseiten saniert, inkl. Kellerabteile mit Trennwänden.
  • Böden/Wände:   Eichen-Landhausdiele in Wohnräumen, Keramikfliesen (120x120 cm, grau) in Sanitär, wasserbeständige Latexfarbe.
  • Türen/Fenster:   WK-3-Sicherheitstüren mit 4-fach-Verriegelung, weiße Innentüren, Alu-Fenster/Terrassentüren mit 3-fach-Verglasung, Schallschutz, elektrische Rolläden. VELUX-Dachfenster mit Klappfunktion, Außenrollos. mit Solar-Antrieb!
  • Sanitär:    Fußbodenheizung in Bädern, Wand-WC (Tiefspüler), Handwaschbecken (43x34 cm), Waschtisch (120x46 cm), Chrom-Armaturen, Duschkopf, Mischer, Handbrause.
  • Heizung/Warmwasser:    Luft-Wärmepumpe mit Fußbodenheizung, Bad-Heizkörper, öffentliche Versorgung.
  • Elektro/Multimedia:    Schalter (weiß matt) mit Steckdosen, Netzwerk/Koax/Jalousie, Video-Sprechanlage, Internet-Vorbereitung.
  • Klima:    Mono-Split-Klimaanlage für Luftkühlung.
  • Sonstiges:    Lüftung mit Filtern, Sonnenschutz, WPC-Terrassendielen (dunkelgrau), pulverbeschichtete Geländer, WLAN-Thermostate, Unterputz-Touch-Radio.
  • Komfort und Energieeffizienz durch langlebige Materialien.

----------------------------------------------------

Hinweis: Die Möblierung auf einzelnen Bildern wurde mittels KI (künstlicher Intelligenz) generiert und dient ausschließlich der Veranschaulichung.

----------------------------------------------------

NEU! ++ NEUER KAUFPREIS! ++ 6 EXKLUSIVE DG-WOHNUNGEN MIT WIENBLICK ++ SOFORT BEZIEHBAR ++ EIGENTUM AM SIEBENBRUNNENPLATZ, 1050 WIEN ++

Wir weisen darauf hin, dass zwischen dem Vermittler und dem zu vermittelnden Dritten ein familiäres oder wirtschaftliches Naheverhältnis besteht.

Der Vermittler ist als Doppelmakler tätig.

Objekt ist für eine Wohngemeinschaft geeignet
Klimaanlage: JA
Provision: 3% des Kaufpreises zzgl. 20% USt.


Alle Details anzeigen

KONTAKT






 

Lasse dich kostenlos vom Anbieter dieser Immobilie zurückrufen.







 


 
TRISTAR Immobilien
TRISTAR Immobilien
Telefonnummer anzeigen Handy Bearbeiter: +436769017374
 
Bitte dem Makler die FindMyHome.at - ID bekanntgeben: 5523250

Bewertungen dieses Anbieters
Qualitätsmakler
Qualitätsmakler:
2017, 2019, 2020, 2021,
Netiquette
Freundlichkeit

BEWERTUNGEN DIESES ANBIETERS

 
Qualit�tsmakler
Qualitätsmakler
2017, 2019, 2020, 2021
Freundlichkeit
BESONDERS
FREUNDLICH
Netiquette
FINDMYHOME
NETIQUETTE
Auch du kannst bewerten! 7 Tage nach deiner Anfrage erhältst du dafür von uns ein Bewertungsmail.
Alle Infos zu unseren Auszeichnungen und dem FINDMYHOME.AT Qualitätsprogramm findest du hier: Übersicht anzeigen

FINANZIERUNG
?>

Du willst wissen, wie viel dein Umzug kosten wird?

Mach gleich den kostenlosen Preisvergleich und schau, welche seriösen Anbieter in deiner Region günstig deinen Umzug organisieren


ZUM UMZUGS-VERGLEICH
-->

MYHOME BLOG
SuchAgentin auf FindMyHome.at
Unterschiedlichen Rechtsthemen, köstliche Rezepte, neueste Design-Highlights, sowie aktuelle Technik-Tools für Ihr Eigenheim.


FINDMYHOME.AT SUCHAGENTIN
SuchAgentin auf FindMyHome.at
Hallo, soll ich dir ähnliche Immobilien kostenfrei per E-Mail schicken?


ÄHNLICHE IMMOBILIEN
Aehnliche Immobilie - Vorschaubild 1

NEU! ++ SIEBENBRUNNENPLATZ ++ ERSTBEZUG ++ EXKLUSIVE 3-4 ZIM... - Objektnr. 5503323

90,00 m² - 4.0 Zimmer
749000 €
PLZ: 1050

Mehr anzeigen

Aehnliche Immobilie - Vorschaubild 2

NEU! ++ SIEBENBRUNNENPLATZ ++ ERSTBEZUG ++ EXKLUSIVE 3-4 ZIM... - Objektnr. 5503325

90,00 m² - 4.0 Zimmer
719000 €
PLZ: 1050

Mehr anzeigen

Aehnliche Immobilie - Vorschaubild 3

AH11 - Ein prachtvolles Gründerzeithaus erstrahlt in neuem G... - Objektnr. 5562389

73,56 m² - 3.0 Zimmer
551700 €
PLZ: 1050

Mehr anzeigen

Durch die Nutzung unserer Seite erklären Sie sich mit der Verwendung von Cookies zur Verbesserung Ihres Online-Erlebnisses einverstanden. Detaillierte Informationen zu diesem und weiteren Themen erhalten Sie in unserer Datenschutzerklärung.