MEIN ERGEBNIS ANPASSEN

3-Zimmer-Wohnung mit Terrasse, Top 112 - Objektnr. 5570971

  • 3-Zimmer-Wohnung mit Terrasse, Top 112 /  / 3160 Traisen / Bild 0
  • 3-Zimmer-Wohnung mit Terrasse, Top 112 /  / 3160 Traisen / Bild 1
  • 3-Zimmer-Wohnung mit Terrasse, Top 112 /  / 3160 Traisen / Bild 2
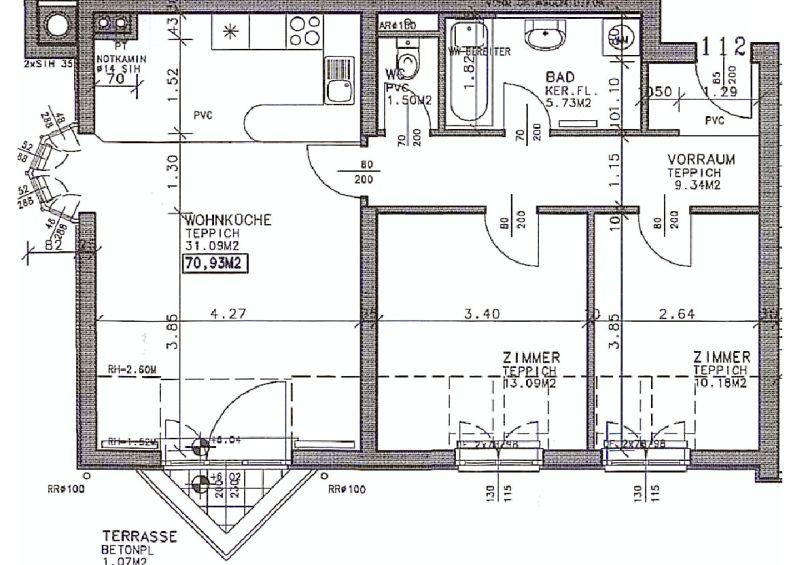
  • 3-Zimmer-Wohnung mit Terrasse, Top 112 /  / 3160 Traisen / Bild 3
3160
Ort
€ 471,60
Gesamtkosten
70,93 m²
Fläche
3
Zimmer

ECKDATEN
FindMyHome.at // Externe Immobilien-ID5570971 // 15320-012
ImmobilienartWohnung - Miete
Anschrift3160 Traisen
HeizungZentralheizung mit Fernwärme
Beziehbar ab01.12.2025
MietdauerUnbefristet
Fläche70,93 m²
Zimmer3
Bad1
WC1
Monatliche Gesamtkosten:€ 471,60




BESCHREIBUNG

3-Zimmer-Wohnung mit Terrasse, Top 112

Rauchenbergergasse 6 / Stiege 1 / Top 112, 3160 Traisen
(Objekt Nr. 15320-012)

- 3 Zimmer inklusive Wohnküche
- 1 Vorraum
- 1 Badezimmer
- 1 WC
- 1 Terrasse (1,07 m²)
- 1 Kellerabteil

Die benötigten Eigenmittel belaufen sich auf - 9.316,12 (- 5.824,93 Grundkostenanteil, - 3.491,19 Baukostenanteil).


Alle Details anzeigen

KONTAKT






 

Lasse dich kostenlos vom Anbieter dieser Immobilie zurückrufen.







 


 
EGW Erste gemeinnützige Wohnungsgesellschaft mbH
Ana Newekla
Telefonnummer anzeigen Telefon Allgemein: +4315451567124
 
Bitte dem Makler die FindMyHome.at - ID bekanntgeben: 5570971

Bewertungen dieses Anbieters
Qualitätsmakler
Qualitätsmakler:
2015, 2020,
Netiquette
Freundlichkeit
Antwortszeit
100 %

BEWERTUNGEN DIESES ANBIETERS

 
Qualit�tsmakler
Qualitätsmakler
2015, 2020
Antwortzeit
ø 24h ANTWORT
Weiterempfehlung
WIRD SEHR GERNE

Freundlichkeit
BESONDERS
FREUNDLICH
Netiquette
FINDMYHOME
NETIQUETTE
Auch du kannst bewerten! 7 Tage nach deiner Anfrage erhältst du dafür von uns ein Bewertungsmail.
Alle Infos zu unseren Auszeichnungen und dem FINDMYHOME.AT Qualitätsprogramm findest du hier: Übersicht anzeigen


Du willst wissen, wie viel dein Umzug kosten wird?

Mach gleich den kostenlosen Preisvergleich und schau, welche seriösen Anbieter in deiner Region günstig deinen Umzug organisieren


ZUM UMZUGS-VERGLEICH
-->

MYHOME BLOG
SuchAgentin auf FindMyHome.at
Unterschiedlichen Rechtsthemen, köstliche Rezepte, neueste Design-Highlights, sowie aktuelle Technik-Tools für Ihr Eigenheim.


FINDMYHOME.AT SUCHAGENTIN
SuchAgentin auf FindMyHome.at
Hallo, soll ich dir ähnliche Immobilien kostenfrei per E-Mail schicken?


Durch die Nutzung unserer Seite erklären Sie sich mit der Verwendung von Cookies zur Verbesserung Ihres Online-Erlebnisses einverstanden. Detaillierte Informationen zu diesem und weiteren Themen erhalten Sie in unserer Datenschutzerklärung.